賃貸マンション
L`GENTE VALU麻布十番の賃貸物件情報(ワンルーム/7階)
| 家賃 | 管理費等 | 敷金 | 礼金 | 間取り | 専有面積 |
|---|---|---|---|---|---|
| 21.3万円 | 6,000円 | 21.3万円 | 21.3万円 | ワンルーム | 37.06m2 |
入居決定でお祝い金最大100,000円
- 保証金
- -
- 償却・敷引
- -
- 築年数
- 築11年
- 所在階
- 7階
- 向き
- 南
Point
☆初期費用クレジット決済もご相談ください◎オンライン内見・契約承ります☆
提供:(株)カムグラン(SUUMO経由)

詳細情報 L`GENTE VALU麻布十番
物件紹介
L`GENTE VALU麻布十番は東京メトロ南北線麻布十番駅から徒歩2分にあり、駅近で通勤通学に便利なマンションです。
このお部屋は2階以上に位置しているので、通行人や周囲の住人からの視線が気になりにくく、防犯面でも安心。建物のエントランスはオートロックがついており、インターホンにはTVモニタもついているため、相手の顔を確認してから来客対応することができます。
人気の南向き・フローリングのお部屋。角部屋でもあるため、周囲の居住者の生活音も気になりにくい場所です。キッチンはシステムキッチン仕様になっていますので、お料理好きの方にもぴったり。バス・トイレは別なので、のんびりお風呂タイムも楽しめるでしょう。また、雨の日でも浴室乾燥機を使えば、お洗濯も問題ありません。
通信設備面では、インターネットが無料で使えるので、月々の出費を抑えられるのも魅力です。また、BSアンテナ・CSアンテナがありCATVにも対応しているので、おうち時間も充実するでしょう(別途工事、BS・CS・CATVの契約料等が必要な場合あり)。
建物にはエレベーターがついているので、重い荷物があっても安心。共用部には宅配ボックスが設定されているので、不在の時にも荷物を受け取ることができます。
このお部屋は2階以上に位置しているので、通行人や周囲の住人からの視線が気になりにくく、防犯面でも安心。建物のエントランスはオートロックがついており、インターホンにはTVモニタもついているため、相手の顔を確認してから来客対応することができます。
人気の南向き・フローリングのお部屋。角部屋でもあるため、周囲の居住者の生活音も気になりにくい場所です。キッチンはシステムキッチン仕様になっていますので、お料理好きの方にもぴったり。バス・トイレは別なので、のんびりお風呂タイムも楽しめるでしょう。また、雨の日でも浴室乾燥機を使えば、お洗濯も問題ありません。
通信設備面では、インターネットが無料で使えるので、月々の出費を抑えられるのも魅力です。また、BSアンテナ・CSアンテナがありCATVにも対応しているので、おうち時間も充実するでしょう(別途工事、BS・CS・CATVの契約料等が必要な場合あり)。
建物にはエレベーターがついているので、重い荷物があっても安心。共用部には宅配ボックスが設定されているので、不在の時にも荷物を受け取ることができます。
お金・契約の情報
※「-」と表示されているものは、実際は料金が発生するものもございます。詳細はお問い合わせください。
| 家賃 | 21.3万円 | 管理費・共益費 | 6,000円 |
|---|---|---|---|
| 敷金 | 21.3万円 | 礼金 | 21.3万円 |
| 入居決定でお祝い金最大100,000円 | |||
| 保証金 | - | 償却・敷引 | - |
| 住宅保険料 | - | 更新料 | - |
| 保証会社利用 | 必須 | 保証会社名 | - |
| 保証会社費用 | - | 保証会社備考 | 保証会社利用必 初回契約時:50%、月額:1% |
| 契約形態 | - | 契約期間 | - |
| 入居・引渡期間 | - | 現況 | - |
| 契約備考 | 通勤管理 合計12.85万円(内訳:エアコン清掃費 16500円税込 鍵交換代 55000円税込 ハウスクリーニング 56980円税込) 更新料 1ヶ月 ワンルーム 二人入居可 普通借家2年 損保【1.66万円2年】 バストイレ別、バルコニー、エアコン、ガスコンロ対応、クロゼット、フローリング、TVインターホン、浴室乾燥機、オートロック、室内洗濯置、陽当り良好、シューズボックス、システムキッチン、南向き、角住戸、温水洗浄便座、脱衣所、エレベーター、洗面所独立、洗面化粧台、駐輪場、宅配ボックス、CATV、外壁タイル張り、2面採光、BS・CS、防犯カメラ、独立型キッチン、保証人不要、敷金1ヶ月、二人入居相談、バイク置場、全居室フローリング、ディンプルキー、CS、ネット専用回線、ネット使用料不要、ダブルロックキー、24時間換気システム、南面リビング、耐震構造、3駅以上利用可、3沿線以上利用可、駅徒歩5分以内、24時間ゴミ出し可、敷地内ごみ置き場、日勤管理、寝室8畳以上、寝室10畳以上、全居室6畳以上、全居室8畳以上、都市ガス、南面バルコニー、BS、礼金1ヶ月、初期費用カード決済可、通風良好 入居日:'26年6月上旬 | ||
部屋の情報
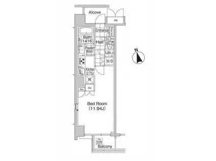
| 間取り | ワンルーム | 専有面積 | 37.06m2 |
|---|---|---|---|
| 所在階 / 向き | 7階 / 南 | バルコニー面積 | - |
| 水道 / ガス | - | ||
| 設備 | バス・トイレ別、2階以上、オートロック、テレビドアホン、宅配ボックス、浴室乾燥機、インターネット対応、システムキッチン、エアコン、エレベーター、温水洗浄便座、南向き、角部屋、バルコニー、フローリング、洗髪洗面化粧台、コンロ:ガス、CATV、CSアンテナ、BSアンテナ、インターネット使用料無料、洗濯機:室内 | ||
| 当社物件ID | 160547093 | ||
建物の情報
| 建物名 | L`GENTE VALU麻布十番 | ||
|---|---|---|---|
| 所在地 | 東京都港区麻布十番 | ||
| 交通 | 東京メトロ南北線 麻布十番駅 徒歩2分 都営大江戸線 赤羽橋駅 徒歩10分 東京メトロ日比谷線 六本木駅 徒歩12分 | ||
| 階数 | 11階建 | 総戸数 | 16戸 |
| 築年月 | 2016年02月 / 築11年 | エレベーター | あり |
| 駐車場 | 近隣 50m40000円 | バイク置き場 | あり |
| 駐輪場 | あり | 管理人/管理会社 | - |
| 周辺環境 | その他 ファミリーマート 麻布十番商店街通り店(コンビニ)まで39m その他 セブンイレブン 港区麻布十番2丁目店(コンビニ)まで107m | ||
| 建物種別 | マンション | 建物構造 | RC(鉄筋コンクリート) |
この部屋の取扱い不動産会社
| 会社名 | (株)カムグラン(SUUMO経由) | ||
|---|---|---|---|
| 所在地 | 東京都港区麻布十番2-19-4Laniビル4F | 交通 | - |
| 営業時間 | 9:00-21:00 | 定休日 | なし |
| 免許番号 | 東京都知事113019 | 取引態様 | 仲介 |
| 不動産会社管理番号 | 100493121571 | 当社管理番号 | 89 |
| 所属団体 | (公社)東京都宅地建物取引業協会会員 | ||
| 公正取引協議会 | (公社)首都圏不動産公正取引協議会加盟 | ||
| 取扱い物件情報 | 物件詳細へ | ||
※各種情報と現状に差異がある場合は、現状優先となります。問い合わせをすることで、より詳しい条件、情報を確認する事ができます。
提供:(株)カムグラン(SUUMO経由)
この物件が気になったら掲載期限まであと11日
L`GENTE VALU麻布十番に条件(家賃・エリア)が近い物件一覧
| 写真 | 家賃 管理費等 | 敷金 礼金 | 間取り 専有面積 | 築年数 | 最寄り駅 所在地 | キープ | 詳細 |
|---|---|---|---|---|---|---|---|
マンション RADIANT IWAIDA(1DK/7階) | |||||||
![]() | 12.9万円 7,000円 | 6.45万円 19.35万円 | 1DK 37.52m2 | 築18年 | JR総武線 亀戸駅 徒歩5分 都営新宿線 西大島駅 徒歩8分 東京都江東区亀戸 | 詳細を見る | |
マンション コンフォリア・リヴ豊洲キャナル(2LDK/3階) | |||||||
![]() | 27.3万円 1.2万円 | 27.3万円 なし | 2LDK 64.02m2 | 築2年 | 東京地下鉄有楽町線 豊洲駅 徒歩14分 東京都江東区枝川1丁目 | 詳細を見る | |
マンション ドルチェ月島・弐番館(1K/10階) | |||||||
![]() | 12.8万円 1.1万円 | なし 12.8万円 | 1K 22.7m2 | 築23年 | 都営大江戸線 勝どき駅 徒歩4分 東京メトロ有楽町線 月島駅 徒歩6分 東京メトロ日比谷線 築地駅 徒歩20分 東京都中央区月島 | 詳細を見る | |
マンション ラング・タワー京橋(1K/4階) | |||||||
![]() | 13.3万円 1.1万円 | なし 13.3万円 | 1K 20.8m2 | 築24年 | 東京メトロ銀座線 京橋駅(東京) 徒歩1分 都営浅草線 宝町駅 徒歩4分 東京メトロ有楽町線 銀座一丁目駅 徒歩8分 東京都中央区京橋 | 詳細を見る | |
マンション エスティメゾン豊洲レジデンス E棟(2LDK/2階) | |||||||
![]() | 24.8万円 1.2万円 | 24.8万円 24.8万円 | 2LDK 56.5m2 | 築19年 | 東京メトロ有楽町線 豊洲駅 徒歩5分 東京メトロ有楽町線 月島駅 徒歩19分 新交通ゆりかもめ 新豊洲駅 徒歩20分 東京都江東区豊洲 | 詳細を見る | |
マンション エスティメゾン豊洲レジデンスC棟(1LDK/4階) | |||||||
![]() | 17万円 1万円 | 17万円 17万円 | 1LDK 38.62m2 | 築19年 | 東京メトロ有楽町線 豊洲駅 徒歩5分 JR京葉線 越中島駅 徒歩17分 東京メトロ東西線 門前仲町駅 徒歩25分 東京都江東区豊洲 | 詳細を見る | |
マンション サンウッド東日本橋フラッツ(1LDK/3階) | |||||||
![]() | 18万円 9,000円 | 18万円 18万円 | 1LDK 39.93m2 | 築10年 | JR総武線快速 馬喰町駅 徒歩1分 都営浅草線 東日本橋駅 徒歩3分 都営新宿線 馬喰横山駅 徒歩3分 東京都中央区日本橋横山町 | 詳細を見る | |
マンション ガリシア日本橋水天宮II(ワンルーム/6階) | |||||||
![]() | 14.4万円 1.1万円 | なし 14.4万円 | ワンルーム 25.61m2 | 築10年 | 東京地下鉄半蔵門線 水天宮前駅 徒歩3分 東京地下鉄日比谷線 人形町駅 徒歩11分 東京地下鉄東西線 茅場町駅 徒歩13分 東京都中央区日本橋箱崎町 | 詳細を見る | |









