賃貸アパート
プレサンスNEO新深江リュミエルの賃貸物件情報(3LDK/7階)
| 家賃 | 管理費等 | 敷金 | 礼金 | 間取り | 専有面積 |
|---|---|---|---|---|---|
| 16.62万円 | 1.388万円 | なし | 16.62万円 | 3LDK | 59.8m2 |
入居決定でお祝い金最大100,000円
- 保証金
- -
- 償却・敷引
- -
- 築年数
- 築2年
- 所在階
- 7階
- 向き
- 北
- 交通
- 地下鉄千日前線 新深江駅 徒歩6分
近鉄大阪線 布施駅 徒歩7分
地下鉄千日前線 小路駅(大阪メトロ) 徒歩9分
- 所在地
- 大阪府東大阪市足代北
プレサンスNEO新深江リュミエル
[地図を表示]
Point
【オンライン内覧可能】ご自宅から希望のお部屋のご内覧も承っております♪インターネット・ライフラインのお手続きもお任せ下さい♪現地待合せ、営業時間外、法人契約、初期費用分割決済、家賃交渉等ご相談下さい♪
提供:ハウスコムFC今里店(株)クランホーム(SUUMO経由)

詳細情報 プレサンスNEO新深江リュミエル
物件紹介
プレサンスNEO新深江リュミエルは地下鉄千日前線新深江駅から徒歩6分にあり、駅近で通勤通学に便利なアパートです。
このお部屋は2階以上に位置しているので、通行人や周囲の住人からの視線が気になりにくく、防犯面でも安心。建物のエントランスはオートロックがついており、インターホンにはTVモニタもついているため、相手の顔を確認してから来客対応することができます。
人気の角部屋で周囲の居住者の生活音も気になりにくく、また、フローリングのお部屋なのでお掃除もラクラク。キッチンはシステムキッチン仕様になっていますので、お料理好きの方にもぴったり。バス・トイレは別なので、のんびりお風呂タイムも楽しめるでしょう。また、雨の日でも浴室乾燥機を使えば、お洗濯も問題ありません。
通信設備面では、インターネットが無料で使えるので、月々の出費を抑えられるのも魅力です。また、BSアンテナがありCATVにも対応しているので、おうち時間も充実するでしょう(別途工事、BS・CATVの契約料等が必要な場合あり)。
建物にはエレベーターがついているので、重い荷物があっても安心。共用部には宅配ボックスが設定されているので、不在の時にも荷物を受け取ることができます。
このお部屋は2階以上に位置しているので、通行人や周囲の住人からの視線が気になりにくく、防犯面でも安心。建物のエントランスはオートロックがついており、インターホンにはTVモニタもついているため、相手の顔を確認してから来客対応することができます。
人気の角部屋で周囲の居住者の生活音も気になりにくく、また、フローリングのお部屋なのでお掃除もラクラク。キッチンはシステムキッチン仕様になっていますので、お料理好きの方にもぴったり。バス・トイレは別なので、のんびりお風呂タイムも楽しめるでしょう。また、雨の日でも浴室乾燥機を使えば、お洗濯も問題ありません。
通信設備面では、インターネットが無料で使えるので、月々の出費を抑えられるのも魅力です。また、BSアンテナがありCATVにも対応しているので、おうち時間も充実するでしょう(別途工事、BS・CATVの契約料等が必要な場合あり)。
建物にはエレベーターがついているので、重い荷物があっても安心。共用部には宅配ボックスが設定されているので、不在の時にも荷物を受け取ることができます。
お金・契約の情報
※「-」と表示されているものは、実際は料金が発生するものもございます。詳細はお問い合わせください。
| 家賃 | 16.62万円 | 管理費・共益費 | 1.388万円 |
|---|---|---|---|
| 敷金 | なし | 礼金 | 16.62万円 |
| 入居決定でお祝い金最大100,000円 | |||
| 保証金 | - | 償却・敷引 | - |
| 住宅保険料 | - | 更新料 | - |
| 保証会社利用 | 必須 | 保証会社名 | - |
| 保証会社費用 | - | 保証会社備考 | 保証会社利用必 初回契約時:50%、月額:1.5%、最低保証料 20,000円 |
| 契約形態 | - | 契約期間 | - |
| 入居・引渡期間 | 相談 | 現況 | - |
| 入居可能条件 | 事務所可 | ||
| 契約備考 | 近鉄大阪線今里駅徒歩11分/インターネット掲載物件に関わらず、大阪市内全域のお部屋探しが可能となっております!複数の業者にお問い合わせすることなく弊社にて正確な最新の空室状況をご確認させていただきます♪初期費用分割決算も可能となっており、ご都合に合わせて支払い回数も選べます!現地で待ち合わせ、営業時間外のご案内、保証人なし、法人契約、初期費用等その他何でもご相談下さい!インターネットに掲載していない非公開物件ご用意してます! プレサポ安心24 990円/月額 ハウスクリーニング 55000円/退去時 更新料 11000円 3LDK 二人入居可/子供可/事務所利用相談 普通借家1年 損保【1.1万円1年】 バストイレ別、バルコニー、エアコン、ガスコンロ対応、フローリング、シャワー付洗面台、TVインターホン、浴室乾燥機、オートロック、室内洗濯置、陽当り良好、システムキッチン、追焚機能浴室、角住戸、温水洗浄便座、脱衣所、エレベーター、洗面所独立、駐輪場、宅配ボックス、CATV、光ファイバー、閑静な住宅地、2面採光、3口以上コンロ、対面式キッチン、防犯カメラ、照明付、全居室収納、分譲賃貸、オートバス、グリル付、二人入居相談、バイク置場、カードキー、全居室フローリング、2沿線利用可、ディンプルキー、ネット使用料不要、食器洗乾燥機、眺望良好、ダブルロックキー、事務所相談、24時間換気システム、エアコン3台、平坦地、3駅以上利用可、駅徒歩10分以内、高層階、24時間ゴミ出し可、敷地内ごみ置き場、都市ガス、洗面所にドア、シューズWIC、玄関収納、間接照明、BS、高速ネット対応、IT重説対応物件、通風良好 | ||
部屋の情報
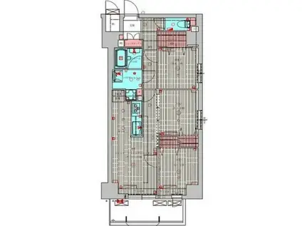
| 間取り | 3LDK | 専有面積 | 59.8m2 |
|---|---|---|---|
| 所在階 / 向き | 7階 / 北 | バルコニー面積 | - |
| 水道 / ガス | - | ||
| 設備 | バス・トイレ別、2階以上、オートロック、テレビドアホン、宅配ボックス、浴室乾燥機、追い焚き、インターネット対応、システムキッチン、エアコン、エレベーター、温水洗浄便座、角部屋、バルコニー、フローリング、洗髪洗面化粧台、2口コンロ、コンロ:ガス、CATV、BSアンテナ、インターネット使用料無料、洗濯機:室内 | ||
| 当社物件ID | 157770320 | ||
建物の情報
| 建物名 | プレサンスNEO新深江リュミエル | ||
|---|---|---|---|
| 所在地 | 大阪府東大阪市足代北 | ||
| 交通 | 地下鉄千日前線 新深江駅 徒歩6分 近鉄大阪線 布施駅 徒歩7分 地下鉄千日前線 小路駅(大阪メトロ) 徒歩9分 | ||
| 階数 | 10階建 | 総戸数 | - |
| 築年月 | 2024年08月 / 築2年 | エレベーター | あり |
| 駐車場 | 空有 22000円 | バイク置き場 | あり |
| 駐輪場 | あり | 管理人/管理会社 | - |
| 周辺環境 | その他 ユニクロフッセ布施店(ショッピングセンター)まで447m その他 サンプラザ 布施店(スーパー)まで191m その他 サンディ布施店(スーパー)まで447m その他 スーパーマーケットKINSHO布施店(スーパー)まで447m その他 ファミリーマート 東大阪足代北一丁目店(コンビニ)まで177m その他 セブンーイレブン 東大阪足代新町店(コンビニ)まで225m | ||
| 建物種別 | アパート | 建物構造 | RC(鉄筋コンクリート) |
この部屋の取扱い不動産会社
| 会社名 | ハウスコムFC森ノ宮駅前店(株)クランホーム(SUUMO経由) | ||
|---|---|---|---|
| 所在地 | 大阪府大阪市中央区森ノ宮中央1-2-21 第3森ノ宮中央ハイツ1階 | 交通 | - |
| 営業時間 | AM9:30~PM7:00 | 定休日 | 年中無休 |
| 免許番号 | 大阪府知事57596 | 取引態様 | 仲介 |
| 不動産会社管理番号 | 100472960528 | 当社管理番号 | 89 |
| 所属団体 | (公社)全日本不動産協会大阪府本部会員 | ||
| 公正取引協議会 | (公社)近畿地区不動産公正取引協議会加盟 | ||
| 取扱い物件情報 | 物件詳細へ | ||
※各種情報と現状に差異がある場合は、現状優先となります。問い合わせをすることで、より詳しい条件、情報を確認する事ができます。
提供:ハウスコムFC森ノ宮駅前店(株)クランホーム(SUUMO経由)
この物件が気になったら掲載期限まであと10日
プレサンスNEO新深江リュミエルに条件(家賃・エリア)が近い物件一覧
| 写真 | 家賃 管理費等 | 敷金 礼金 | 間取り 専有面積 | 築年数 | 最寄り駅 所在地 | キープ | 詳細 |
|---|---|---|---|---|---|---|---|
マンション モンセル(1LDK/1階) | |||||||
| 12.2万円 1.2万円 | 10万円 なし | 1LDK 51.03m2 | 新築 | 阪急電鉄千里線 下新庄駅 徒歩6分 阪急電鉄千里線 淡路駅 徒歩15分 おおさか東線 南吹田駅 徒歩22分 大阪府大阪市東淀川区下新庄5丁目256-5 | 詳細を見る | ||
マンション ルアナ北梅田(1LDK/5階) | |||||||
| 11.8万円 1.2万円 | なし 23.6万円 | 1LDK 40.34m2 | 築7年 | 大阪環状線 福島駅(JR西日本) 徒歩14分 阪急電鉄宝塚線 中津駅(阪急) 徒歩15分 JR東西線 新福島駅 徒歩17分 大阪府大阪市北区大淀中4丁目13-13 | 詳細を見る | ||
マンション SENSE東淀川(5DK/2階) | |||||||
| 11.7万円 3,000円 | なし 11.7万円 | 5DK 87m2 | 築45年 | 大阪市今里筋線 だいどう豊里駅 徒歩18分 阪急電鉄京都線 上新庄駅 徒歩20分 阪急電鉄千里線 淡路駅 徒歩22分 大阪府大阪市東淀川区豊里1丁目7-31 | 詳細を見る | ||
マンション GMTENJIMBASHI(1LDK/4階) | |||||||
| 12万円 1万円 | なし 26万円 | 1LDK 36.71m2 | 築1年 | 大阪市谷町線 天神橋筋六丁目駅 徒歩6分 大阪市堺筋線 天神橋筋六丁目駅 徒歩7分 大阪市谷町線 中崎町駅 徒歩15分 大阪府大阪市北区天神橋8丁目5-2 | 詳細を見る | ||
マンション RETUMEKITA(1LDK/2階) | |||||||
| 12.9万円 1万円 | なし 12.9万円 | 1LDK 36m2 | 築1年 | 大阪環状線 福島駅(JR西日本) 徒歩13分 大阪環状線 大阪駅 徒歩16分 阪神電鉄本線 福島駅(阪神) 徒歩16分 大阪府大阪市北区大淀中4丁目7-10 | 詳細を見る | ||
マンション リビオメゾン新大阪(1LDK/13階) | |||||||
| 10.8万円 1万円 | なし なし | 1LDK 30.7m2 | 築1年 | 大阪市御堂筋線 新大阪駅 徒歩8分 東海道本線 東淀川駅 徒歩8分 大阪市御堂筋線 東三国駅 徒歩13分 大阪府大阪市淀川区宮原1丁目16-31 | 詳細を見る | ||
マンション LASANTE梅田北(1LDK/9階) | |||||||
| 15.5万円 1.5万円 | 17万円 17万円 | 1LDK 42.75m2 | 築12年 | 大阪市御堂筋線 中津駅(大阪メトロ) 徒歩7分 大阪市谷町線 中崎町駅 徒歩11分 大阪市堺筋線 天神橋筋六丁目駅 徒歩12分 大阪府大阪市北区豊崎4丁目1-17 | 詳細を見る | ||
マンション ルフォンプログレ南森町(2LDK/5階) | |||||||
| 20万円 1.5万円 | なし 20万円 | 2LDK 45.64m2 | 築1年 | JR東西線 大阪天満宮駅 徒歩5分 大阪市谷町線 南森町駅 徒歩7分 大阪市堺筋線 扇町駅(大阪) 徒歩10分 大阪府大阪市北区同心1丁目4-5 | 詳細を見る | ||
東大阪市の町名から探す
東大阪市の部屋を間取りから探す
東大阪市の駅から探す
東大阪市と隣接している市区町村から探す
- 東大阪市(7,920)
- 大阪市都島区(1,862)
- 大阪市福島区(2,460)
- 大阪市此花区(428)
- 大阪市西区(4,829)
- 大阪市港区(1,221)
- 大阪市大正区(1,074)
- 大阪市天王寺区(1,333)
- 大阪市浪速区(3,910)
- 大阪市西淀川区(1,919)
- 大阪市東淀川区(4,524)
- 大阪市東成区(2,863)
- 大阪市生野区(1,749)
- 大阪市旭区(2,185)
- 大阪市城東区(2,018)
- 大阪市阿倍野区(1,467)
- 大阪市住吉区(1,932)
- 大阪市東住吉区(2,103)
- 大阪市西成区(791)
- 大阪市淀川区(5,343)
- 大阪市鶴見区(1,095)
- 大阪市住之江区(944)
- 大阪市平野区(1,891)
- 大阪市北区(5,533)
- 大阪市中央区(5,633)
- 八尾市(2,110)
- 大東市(1,212)
