賃貸マンション
THE HERMITAGEザ・ハーミティッジの賃貸物件情報(1LDK/4階)
| 家賃 | 管理費等 | 敷金 | 礼金 | 間取り | 専有面積 |
|---|---|---|---|---|---|
| 24.5万円 | 8,000円 | 24.5万円 | なし | 1LDK | 55.65m2 |
入居決定でお祝い金最大100,000円
- 保証金
- -
- 償却・敷引
- -
- 築年数
- 築25年
- 所在階
- 4階
- 向き
- 北
Point
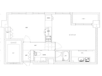
LD12.9J、洋室7.8Jの広々1LDK♪室内は南向きの為、日当たり良好。全居室エアコン付きです。
提供:(株)マイライフ・ハウジング芝浦店(SUUMO経由)

詳細情報 THE HERMITAGEザ・ハーミティッジ
物件紹介
THE HERMITAGEザ・ハーミティッジは東京メトロ半蔵門線半蔵門駅から徒歩5分にあり、駅近で通勤通学に便利なマンションです。
このお部屋は2階以上に位置しているので通行人や周囲の住人からの視線が気になりにくく、建物のエントランスはオートロックがついているので防犯性が高くなっています。
バス・トイレ別の仕様で、のんびりお風呂タイムも楽しめます。
建物にはエレベーターがついているので、重い荷物があっても安心。共用部には宅配ボックスが設定されているので、不在の時にも荷物を受け取ることができます。
このお部屋は2階以上に位置しているので通行人や周囲の住人からの視線が気になりにくく、建物のエントランスはオートロックがついているので防犯性が高くなっています。
バス・トイレ別の仕様で、のんびりお風呂タイムも楽しめます。
建物にはエレベーターがついているので、重い荷物があっても安心。共用部には宅配ボックスが設定されているので、不在の時にも荷物を受け取ることができます。
お金・契約の情報
※「-」と表示されているものは、実際は料金が発生するものもございます。詳細はお問い合わせください。
| 家賃 | 24.5万円 | 管理費・共益費 | 8,000円 |
|---|---|---|---|
| 敷金 | 24.5万円 | 礼金 | なし |
| 入居決定でお祝い金最大100,000円 | |||
| 保証金 | - | 償却・敷引 | - |
| 住宅保険料 | - | 更新料 | - |
| 保証会社利用 | 必須 | 保証会社名 | - |
| 保証会社費用 | - | 保証会社備考 | 保証会社利用必 エルズサポート初回:月額賃料総額の50% 更新料 1年毎 10,000円 |
| 契約形態 | - | 契約期間 | - |
| 入居・引渡期間 | 相談 | 現況 | - |
| 契約備考 | 通勤管理 合計1.65万円(内訳:鍵交換費用16500円) 1年未満短期解約違約金有り 1LDK 単身者可/事務所利用不可 普通借家2年 損保【2.15万円2年】 バストイレ別、オートロック、エレベーター、2口コンロ、宅配ボックス、外壁タイル張り、礼金不要、閑静な住宅地、敷金1ヶ月、二人入居相談、カーポート、内階段、平坦地、3駅以上利用可、3沿線以上利用可、駅徒歩5分以内、風除室、敷地内ごみ置き場、電動シャッター車庫、平面駐車場、日勤管理、都市ガス、洗面所にドア | ||
部屋の情報
| 間取り | 1LDK | 専有面積 | 55.65m2 |
|---|---|---|---|
| 所在階 / 向き | 4階 / 北 | バルコニー面積 | - |
| 水道 / ガス | - | ||
| 設備 | バス・トイレ別、2階以上、オートロック、宅配ボックス、エレベーター、2口コンロ | ||
| 当社物件ID | 13518573 | ||
建物の情報
| 建物名 | THE HERMITAGEザ・ハーミティッジ | ||
|---|---|---|---|
| 所在地 | 東京都千代田区平河町 | ||
| 交通 | 東京メトロ半蔵門線 半蔵門駅 徒歩5分 東京メトロ有楽町線 永田町駅 徒歩6分 東京メトロ銀座線 赤坂見附駅 徒歩11分 | ||
| 階数 | 5階建 | 総戸数 | 38戸 |
| 築年月 | 2001年04月 / 築25年 | エレベーター | あり |
| 駐車場 | 空有 49500円/屋根付駐 | バイク置き場 | - |
| 駐輪場 | - | 管理人/管理会社 | - |
| 周辺環境 | その他 ローソンサテライト JA共済ビル店(コンビニ)まで13m その他 成城石井 東京ガーデンテラス紀尾井町店(スーパー)まで558m その他 エクセルシオール カフェ 平河町森タワー店(その他)まで200m その他 国立劇場(その他)まで150m | ||
| 建物種別 | マンション | 建物構造 | RC(鉄筋コンクリート) |
この部屋の取扱い不動産会社
| 会社名 | (株)マイライフ・ハウジング芝浦店(SUUMO経由) | ||
|---|---|---|---|
| 所在地 | 東京都港区芝浦2-7-11 パークタワー芝浦ベイワードオーシャンウイング1F | 交通 | - |
| 営業時間 | AM10:00~PM6:00 | 定休日 | 水曜日・日曜日 |
| 免許番号 | 国土交通大臣5235 | 取引態様 | 仲介 |
| 不動産会社管理番号 | 100484513457 | 当社管理番号 | 89 |
| 所属団体 | (公社)全日本不動産協会東京都本部会員 | ||
| 公正取引協議会 | (公社)首都圏不動産公正取引協議会加盟 | ||
| 取扱い物件情報 | 物件詳細へ | ||
※各種情報と現状に差異がある場合は、現状優先となります。問い合わせをすることで、より詳しい条件、情報を確認する事ができます。
提供:(株)マイライフ・ハウジング芝浦店(SUUMO経由)
この物件が気になったら掲載期限まであと11日
THE HERMITAGEザ・ハーミティッジに条件(家賃・エリア)が近い物件一覧
| 写真 | 家賃 管理費等 | 敷金 礼金 | 間取り 専有面積 | 築年数 | 最寄り駅 所在地 | キープ | 詳細 |
|---|---|---|---|---|---|---|---|
マンション ロイヤルプラザ浅草(2LDK/2階) | |||||||
![]() | 17万円 8,000円 | 34万円 なし | 2LDK 55.16m2 | 築31年 | 東京地下鉄日比谷線 三ノ輪駅 徒歩10分 東京地下鉄日比谷線 入谷駅(東京) 徒歩12分 東京都台東区千束4丁目 | 詳細を見る | |
マンション プライマル日本橋馬喰町(1LDK/14階) | |||||||
![]() | 21.1万円 1.5万円 | なし なし | 1LDK 40.66m2 | 築3年 | JR総武線快速 馬喰町駅 徒歩1分 JR総武線 浅草橋駅 徒歩5分 都営新宿線 馬喰横山駅 徒歩7分 東京都中央区日本橋馬喰町 | 詳細を見る | |
マンション イースタンホームズ六本木(1LDK/3階) | |||||||
![]() | 27万円 2万円 | 27万円 27万円 | 1LDK 53.44m2 | 築46年 | 東京地下鉄日比谷線 六本木駅 徒歩11分 東京地下鉄日比谷線 広尾駅 徒歩14分 東京地下鉄南北線 麻布十番駅 徒歩15分 東京都港区元麻布3丁目 | 詳細を見る | |




