賃貸アパート
レオパレスプレミールの賃貸物件情報(1K/1階)
| 家賃 | 管理費等 | 敷金 | 礼金 | 間取り | 専有面積 |
|---|---|---|---|---|---|
| 6万円 | 5,000円 | なし | 6万円 | 1K | 19.87m2 |
入居決定でお祝い金最大100,000円
Point
まずはお問い合わせ!
不動産会社は街のプロ、あなたに合った物件がきっと見つかります。
提供:ハウスコム西神奈川株式会社 橋本店

詳細情報 レオパレスプレミール
物件紹介
レオパレスプレミールは横浜線相原駅から徒歩14分にあるアパートです。
このお部屋のインターホンにはTVモニタがついているため、相手の顔を確認してから来客対応することができます。
人気の角部屋で周囲の居住者の生活音も気になりにくく、また、フローリングのお部屋なのでお掃除もラクラク。室内にはウォークインクローゼットがありますので、たくさんの荷物も効率的に収納ができます。バス・トイレ別の仕様で、のんびりお風呂タイムも楽しめます。また、浴室乾燥機を使えば、雨の日でもお洗濯は問題ありません。
通信設備面では、インターネット接続が可能です。また、CATVにも対応しているので、おうち時間も充実するでしょう(別途工事、契約料が必要な場合あり)。
共用部には宅配ボックスが設定されているので、不在の時にも荷物を受け取ることができます。
コンビニまで徒歩10分の場所にあり、日用品や食料品のお買い物にも便利です。
このお部屋のインターホンにはTVモニタがついているため、相手の顔を確認してから来客対応することができます。
人気の角部屋で周囲の居住者の生活音も気になりにくく、また、フローリングのお部屋なのでお掃除もラクラク。室内にはウォークインクローゼットがありますので、たくさんの荷物も効率的に収納ができます。バス・トイレ別の仕様で、のんびりお風呂タイムも楽しめます。また、浴室乾燥機を使えば、雨の日でもお洗濯は問題ありません。
通信設備面では、インターネット接続が可能です。また、CATVにも対応しているので、おうち時間も充実するでしょう(別途工事、契約料が必要な場合あり)。
共用部には宅配ボックスが設定されているので、不在の時にも荷物を受け取ることができます。
コンビニまで徒歩10分の場所にあり、日用品や食料品のお買い物にも便利です。
お金・契約の情報
※「-」と表示されているものは、実際は料金が発生するものもございます。詳細はお問い合わせください。
| 家賃 | 6万円 | 管理費・共益費 | 5,000円 |
|---|---|---|---|
| 敷金 | なし | 礼金 | 6万円 |
| 入居決定でお祝い金最大100,000円 | |||
| 保証金 | - | 償却・敷引 | - |
| 住宅保険料 | 1円 | 更新料 | - |
| その他費用 | 抗菌施工(任意):2.376万円 | ||
| 保証会社利用 | 必須 | 保証会社名 | - |
| 保証会社費用 | - | 保証会社備考 | 保証料:56390円(契約内容により100〜120%で変動有)※記載金額は120%の場合 |
| 契約形態 | - | 契約期間 | - |
| 入居・引渡期間 | 即時 | 現況 | - |
| 入居可能条件 | 事務所不可、単身者限定、2人入居不可、楽器不可、ペット不可 | ||
| 契約備考 | 鍵交換費10450円、抗菌施工(任意)18040円から23760円(税込)/環境維持費550円/月、更新手数料16500円/2年(税込)/基本清掃料:31350円(税込) 月額(環境維持費 550円) 鍵交換費用:16500 室内清掃費用:41800 その他設備/条件:室内洗濯機置き場、ルームシェア不可、シューズボックス | ||
部屋の情報
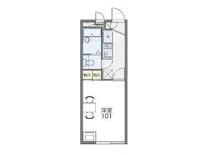
| 間取り | 1K | 専有面積 | 19.87m2 |
|---|---|---|---|
| 間取り詳細 | 洋室(6帖) | ||
| 所在階 / 向き | 1階 / 東 | バルコニー面積 | - |
| 水道 / ガス | 水道【公営】 | ||
| 設備 | バス・トイレ別、宅配ボックス、光ファイバー対応、エアコン、温水洗浄便座、角部屋、フローリング、ロフトあり、2口コンロ、コンロ:IH、CATV、シャワー、給湯 | ||
| 当社物件ID | 7989474 | ||
建物の情報
| 建物名 | レオパレスプレミール | ||
|---|---|---|---|
| 所在地 | 神奈川県相模原市緑区相原1丁目 | ||
| 交通 | 横浜線 相原駅 徒歩14分 | ||
| 階数 | 2階建 | 総戸数 | 20戸 |
| 築年月 | 2004年10月 / 築22年 | エレベーター | - |
| 駐車場 | なし | バイク置き場 | - |
| 駐輪場 | - | 管理人/管理会社 | - |
| 周辺環境 | コンビニ 徒歩10分(768m) 販売店 徒歩18分(1418m) その他 ドラッグストア その他 公園 その他 銀行 その他 * | ||
| 建物種別 | アパート | 建物構造 | 軽量鉄骨造 |
この部屋の取扱い不動産会社
| 会社名 | ハウスコム西東京株式会社 八王子駅前店 | ||
|---|---|---|---|
| 所在地 | 東京都八王子市2-12サンドラッグ八王子駅前ビル6階 | 交通 | - |
| 営業時間 | 10:00~18:00 | 定休日 | - |
| 免許番号 | 東京都知事(1)第108225号 | 取引態様 | 仲介 |
| 不動産会社管理番号 | HC5-82858-104-0078 | 当社管理番号 | 468 |
| 所属団体 | 、 | ||
| 取扱い物件情報 | 物件詳細へ | ||
※各種情報と現状に差異がある場合は、現状優先となります。問い合わせをすることで、より詳しい条件、情報を確認する事ができます。
提供:ハウスコム西東京株式会社 八王子駅前店
この物件が気になったら掲載期限まであと4日
レオパレスプレミールに条件(家賃・エリア)が近い物件一覧
| 写真 | 家賃 管理費等 | 敷金 礼金 | 間取り 専有面積 | 築年数 | 最寄り駅 所在地 | キープ | 詳細 |
|---|---|---|---|---|---|---|---|
アパート レオパレス大和田Ⅱ(1K/3階) | |||||||
![]() | 6.2万円 5,000円 | なし 6.2万円 | 1K 19.87m2 | 築18年 | 八高線 北八王子駅 徒歩12分 京王電鉄京王線 京王八王子駅 徒歩22分 中央本線 八王子駅 徒歩28分 東京都八王子市大和田町4丁目 | 詳細を見る | |
アパート ヴェルジェ(1K/2階) | |||||||
![]() | 6.2万円 4,000円 | なし なし | 1K 20.69m2 | 築1年 | 京王高尾線 京王片倉駅 徒歩6分 JR横浜線 片倉駅 徒歩9分 JR中央線 八王子駅 徒歩16分 東京都八王子市片倉町 | 詳細を見る | |
アパート レオパレス大楽寺Ⅱ(1K/2階) | |||||||
![]() | 4.7万円 5,000円 | なし 4.7万円 | 1K 28.02m2 | 築17年 | 中央本線 高尾駅(東京) 徒歩62分 京王電鉄高尾線 狭間駅 徒歩70分 東京都八王子市大楽寺町 | 詳細を見る | |
アパート レオパレスハピネスオリーブ(1K/3階) | |||||||
![]() | 5.5万円 5,000円 | なし 5.5万円 | 1K 19.87m2 | 築16年 | 中央本線 西八王子駅 徒歩17分 中央本線 八王子駅 徒歩19分 京王電鉄京王線 京王八王子駅 徒歩23分 東京都八王子市上野町 | 詳細を見る | |
マンション レオパレス南大和田(1K/2階) | |||||||
![]() | 6.1万円 7,000円 | なし 6.1万円 | 1K 19.87m2 | 築17年 | 京王電鉄京王線 京王八王子駅 徒歩11分 中央本線 八王子駅 徒歩17分 八高線 北八王子駅 徒歩21分 東京都八王子市大和田町3丁目 | 詳細を見る | |
アパート レオパレスヴィオラⅡ(1K/2階) | |||||||
![]() | 5.1万円 7,000円 | なし 5.1万円 | 1K 19.87m2 | 築17年 | 中央本線 西八王子駅 徒歩14分 京王電鉄高尾線 めじろ台駅 徒歩15分 東京都八王子市散田町4丁目 | 詳細を見る | |
マンション フォーリア(ワンルーム/6階) | |||||||
![]() | 8.8万円 6,000円 | 8.8万円 8.8万円 | ワンルーム 32.4m2 | 築23年 | 中央本線 八王子駅 徒歩6分 京王電鉄京王線 京王八王子駅 徒歩10分 京王電鉄高尾線 京王片倉駅 徒歩25分 東京都八王子市横山町 | 詳細を見る | |
マンション MAXIV八王子TRE(1K/9階) | |||||||
![]() | 9.55万円 なし | なし なし | 1K 25.6m2 | 築1年 | 京王電鉄京王線 京王八王子駅 徒歩2分 中央本線 八王子駅 徒歩7分 京王電鉄高尾線 京王片倉駅 徒歩27分 東京都八王子市明神町4丁目 | 詳細を見る | |









