賃貸マンション
セジョリ東陽町IIの賃貸物件情報(1LDK/4階)
| 家賃 | 管理費等 | 敷金 | 礼金 | 間取り | 専有面積 |
|---|---|---|---|---|---|
| 17.15万円 | 2万円 | なし | なし | 1LDK | 37.19m2 |
入居決定でお祝い金最大100,000円
- 保証金
- -
- 償却・敷引
- -
- 築年数
- 築1年
- 所在階
- 4階
- 向き
- 南
Point
嬉しい独立洗面台付き★浴室TV付きでおうち時間も充実★買い物に便利なコンビニ、スーパー徒歩圏内にございます♪お部屋探しはピタットハウス清澄白河店へ!!
提供:いい部屋ネット大東建託リーシング(株)亀戸店(SUUMO経由)

詳細情報 セジョリ東陽町II
物件紹介
セジョリ東陽町IIは東京メトロ東西線東陽町駅から徒歩11分にあるマンションです。
このお部屋は2階以上に位置しているので、通行人や周囲の住人からの視線が気になりにくく、防犯面でも安心。建物のエントランスはオートロックがついており、インターホンにはTVモニタもついているため、相手の顔を確認してから来客対応することができます。
人気の南向きのお部屋。また、フローリングなのでお掃除もラクラク。キッチンはシステムキッチン仕様になっていますので、お料理好きの方にもぴったり。バス・トイレは別なので、のんびりお風呂タイムも楽しめるでしょう。また、雨の日でも浴室乾燥機を使えば、お洗濯も問題ありません。
通信設備面では、インターネットが無料で使えるので、月々の出費を抑えられるのも魅力です。また、BSアンテナ・CSアンテナもありますので、おうち時間も充実するでしょう(別途工事、BS・CSの契約料等が必要な場合あり)。
建物にはエレベーターがついているので、重い荷物があっても安心。共用部には宅配ボックスが設定されているので、不在の時にも荷物を受け取ることができます。また、ペット飼育の相談ができますので、あなたの大切な家族の一員も快適に暮らせるか、ぜひ確認してみてください。
このお部屋は2階以上に位置しているので、通行人や周囲の住人からの視線が気になりにくく、防犯面でも安心。建物のエントランスはオートロックがついており、インターホンにはTVモニタもついているため、相手の顔を確認してから来客対応することができます。
人気の南向きのお部屋。また、フローリングなのでお掃除もラクラク。キッチンはシステムキッチン仕様になっていますので、お料理好きの方にもぴったり。バス・トイレは別なので、のんびりお風呂タイムも楽しめるでしょう。また、雨の日でも浴室乾燥機を使えば、お洗濯も問題ありません。
通信設備面では、インターネットが無料で使えるので、月々の出費を抑えられるのも魅力です。また、BSアンテナ・CSアンテナもありますので、おうち時間も充実するでしょう(別途工事、BS・CSの契約料等が必要な場合あり)。
建物にはエレベーターがついているので、重い荷物があっても安心。共用部には宅配ボックスが設定されているので、不在の時にも荷物を受け取ることができます。また、ペット飼育の相談ができますので、あなたの大切な家族の一員も快適に暮らせるか、ぜひ確認してみてください。
お金・契約の情報
※「-」と表示されているものは、実際は料金が発生するものもございます。詳細はお問い合わせください。
| 家賃 | 17.15万円 | 管理費・共益費 | 2万円 |
|---|---|---|---|
| 敷金 | なし | 礼金 | なし |
| 入居決定でお祝い金最大100,000円 | |||
| 保証金 | - | 償却・敷引 | - |
| 住宅保険料 | - | 更新料 | - |
| 保証会社利用 | 必須 | 保証会社名 | - |
| 保証会社費用 | - | 保証会社備考 | 保証会社利用必 その他 初回保証料:総賃料の50% 継続保証料:15000円/年 |
| 契約形態 | - | 契約期間 | - |
| 入居・引渡期間 | 即時 | 現況 | - |
| 入居可能条件 | ペット相談 | ||
| 契約備考 | 合計8.25万円(内訳:安心入居サポート1.65万円/クリーニング費用4.95万円/エアコン内部洗浄費用1.65万円) 1LDK ペット相談 損保【1.8万円2年】 バストイレ別、バルコニー、エアコン、クロゼット、フローリング、TVインターホン、浴室乾燥機、室内洗濯置、シューズボックス、システムキッチン、南向き、追焚機能浴室、温水洗浄便座、脱衣所、エレベーター、洗面所独立、2口コンロ、駐輪場、宅配ボックス、外壁タイル張り、即入居可、礼金不要、2面採光、最上階、BS・CS、敷金不要、3口以上コンロ、防犯カメラ、ペット相談、全居室洋室、バイク置場、全居室フローリング、CS、ネット使用料不要、築2年以内、TV付浴室、クロゼット2ヶ所、南面リビング、3沿線以上利用可、敷地内ごみ置き場、都市ガス、洗面所にドア、南面バルコニー、室内物干機、シューズWIC、BS、敷金・礼金不要 敷金積み増し【ペット飼育の場合敷金17.15万円(総額)】 | ||
部屋の情報
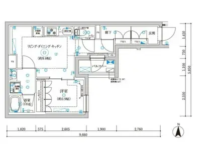
| 間取り | 1LDK | 専有面積 | 37.19m2 |
|---|---|---|---|
| 所在階 / 向き | 4階 / 南 | バルコニー面積 | 2m2 |
| 水道 / ガス | - | ||
| 設備 | バス・トイレ別、2階以上、テレビドアホン、宅配ボックス、浴室乾燥機、追い焚き、インターネット対応、システムキッチン、エアコン、エレベーター、温水洗浄便座、南向き、バルコニー、フローリング、洗髪洗面化粧台、2口コンロ、CSアンテナ、BSアンテナ、インターネット使用料無料、洗濯機:室内 | ||
| 当社物件ID | 158728421 | ||
建物の情報
| 建物名 | セジョリ東陽町II | ||
|---|---|---|---|
| 所在地 | 東京都江東区千石 | ||
| 交通 | 東京メトロ東西線 東陽町駅 徒歩11分 都営新宿線 住吉駅(東京) 徒歩15分 東京メトロ半蔵門線 清澄白河駅 徒歩23分 | ||
| 階数 | 4階建 | 総戸数 | - |
| 築年月 | 2025年01月 / 築1年 | エレベーター | あり |
| 駐車場 | なし | バイク置き場 | あり |
| 駐輪場 | あり | 管理人/管理会社 | - |
| 周辺環境 | その他 江東区役所(役所)まで637m その他 江東千田郵便局(郵便局)まで564m その他 深川警察署(警察署・交番)まで1188m その他 豊住公園(公園)まで678m その他 セブンイレブン江東千石1丁目店(コンビニ)まで232m その他 サミットストアイースト21店(スーパー)まで388m | ||
| 建物種別 | マンション | 建物構造 | RC(鉄筋コンクリート) |
この部屋の取扱い不動産会社
| 会社名 | ピタットハウス清澄白河店(株)東京PM不動産(SUUMO経由) | ||
|---|---|---|---|
| 所在地 | 東京都江東区三好2-17-11 | 交通 | - |
| 営業時間 | 10時~18時 | 定休日 | 毎週水曜日 |
| 免許番号 | 東京都知事96076 | 取引態様 | 仲介 |
| 不動産会社管理番号 | 100463328084 | 当社管理番号 | 89 |
| 所属団体 | (公社)全日本不動産協会東京都本部会員 | ||
| 公正取引協議会 | (公社)首都圏不動産公正取引協議会加盟 | ||
| 取扱い物件情報 | 物件詳細へ | ||
※各種情報と現状に差異がある場合は、現状優先となります。問い合わせをすることで、より詳しい条件、情報を確認する事ができます。
提供:ピタットハウス清澄白河店(株)東京PM不動産(SUUMO経由)
この物件が気になったら掲載期限まであと10日
セジョリ東陽町IIに条件(家賃・エリア)が近い物件一覧
| 写真 | 家賃 管理費等 | 敷金 礼金 | 間取り 専有面積 | 築年数 | 最寄り駅 所在地 | キープ | 詳細 |
|---|---|---|---|---|---|---|---|
マンション ゼファーズ日本橋浜町(1LDK/6階) | |||||||
![]() | 17.5万円 1.1万円 | なし 17.5万円 | 1LDK 32.57m2 | 築14年 | 東京都新宿線 浜町駅 徒歩4分 東京地下鉄半蔵門線 水天宮前駅 徒歩9分 東京地下鉄日比谷線 人形町駅 徒歩10分 東京都中央区日本橋浜町2丁目 | 詳細を見る | |
マンション エスティメゾン錦糸町2(1LDK/6階) | |||||||
![]() | 17.5万円 1.2万円 | 17.5万円 なし | 1LDK 40m2 | 築18年 | 総武・中央緩行線 錦糸町駅 徒歩5分 東京地下鉄半蔵門線 錦糸町駅 徒歩5分 東京都墨田区江東橋3丁目 | 詳細を見る | |
アパート SEED SAVE PETIRASU Ⅲ(1LDK/1階) | |||||||
![]() | 11.5万円 1万円 | 23万円 11.5万円 | 1LDK 30.55m2 | 新築 | 東京モノレール羽田 昭和島駅 徒歩12分 京浜急行電鉄本線 大森町駅 徒歩18分 東京都大田区大森東5丁目 | 詳細を見る | |
マンション ジーグランデ森下(1LDK/9階) | |||||||
![]() | 21万円 1万円 | なし なし | 1LDK 44.03m2 | 築1年 | 東京都新宿線 森下駅(東京) 徒歩5分 東京都大江戸線 両国駅 徒歩9分 総武・中央緩行線 両国駅 徒歩9分 東京都墨田区千歳3丁目 | 詳細を見る | |
マンション メゾンドヴィレ勝どき(1K/4階) | |||||||
![]() | 11.5万円 7,000円 | なし 11.5万円 | 1K 25.01m2 | 築28年 | 都営大江戸線 勝どき駅 徒歩3分 東京メトロ有楽町線 月島駅 徒歩9分 東京メトロ日比谷線 築地駅 徒歩17分 東京都中央区勝どき | 詳細を見る | |
マンション パークアクシス錦糸町レジデンス(1K/14階) | |||||||
![]() | 12万円 1万円 | 12万円 12万円 | 1K 25.6m2 | 築13年 | 総武・中央緩行線 錦糸町駅 徒歩8分 東京地下鉄半蔵門線 錦糸町駅 徒歩8分 東京地下鉄半蔵門線 住吉駅(東京) 徒歩10分 東京都墨田区江東橋1丁目 | 詳細を見る | |
マンション ベルフェリーク木場(1K/3階) | |||||||
![]() | 11.6万円 1万円 | 11.6万円 11.6万円 | 1K 25.19m2 | 築9年 | 東京地下鉄東西線 木場駅 徒歩6分 東京地下鉄東西線 東陽町駅 徒歩10分 東京都江東区東陽1丁目 | 詳細を見る | |
マンション オーキッドレジデンス住吉(ワンルーム/2階) | |||||||
![]() | 11.5万円 1万円 | 11.5万円 なし | ワンルーム 25.99m2 | 築6年 | 東京地下鉄半蔵門線 住吉駅(東京) 徒歩6分 東京都江東区毛利1丁目 | 詳細を見る | |








