賃貸マンション
アスティーレ日本橋浜町の賃貸物件情報(1LDK/2階)
| 家賃 | 管理費等 | 敷金 | 礼金 | 間取り | 専有面積 |
|---|---|---|---|---|---|
| 19.3万円 | 1.5万円 | なし | なし | 1LDK | 40.02m2 |
入居決定でお祝い金最大100,000円
- 保証金
- -
- 償却・敷引
- -
- 築年数
- 築3年
- 所在階
- 2階
- 向き
- 北東
Point
初期費用分割払い可能☆最大24ヶ月払い☆カード決済も対応しております!!遠方の方や忙しい方向けオンライン内見実施中☆
提供:PRA(株)青山店(SUUMO経由)

詳細情報 アスティーレ日本橋浜町
物件紹介
アスティーレ日本橋浜町は都営新宿線浜町駅から徒歩7分にあり、駅近で通勤通学に便利なマンションです。
このお部屋は2階以上に位置しているので、通行人や周囲の住人からの視線が気になりにくく、防犯面でも安心。建物のエントランスはオートロックがついており、インターホンにはTVモニタもついているため、相手の顔を確認してから来客対応することができます。
人気の角部屋で周囲の居住者の生活音も気になりにくく、また、フローリングのお部屋なのでお掃除もラクラク。室内にはウォークインクローゼットがありますので、たくさんの荷物も効率的に収納ができます。キッチンはシステムキッチン仕様になっていますので、お料理好きの方にもぴったり。バス・トイレは別なので、のんびりお風呂タイムも楽しめるでしょう。また、雨の日でも浴室乾燥機を使えば、お洗濯も問題ありません。
通信設備面では、インターネットが無料で使えるので、月々の出費を抑えられるのも魅力です。また、BSアンテナ・CSアンテナもありますので、おうち時間も充実するでしょう(別途工事、BS・CSの契約料等が必要な場合あり)。
建物にはエレベーターがついているので、重い荷物があっても安心。共用部には宅配ボックスが設定されているので、不在の時にも荷物を受け取ることができます。
このお部屋は2階以上に位置しているので、通行人や周囲の住人からの視線が気になりにくく、防犯面でも安心。建物のエントランスはオートロックがついており、インターホンにはTVモニタもついているため、相手の顔を確認してから来客対応することができます。
人気の角部屋で周囲の居住者の生活音も気になりにくく、また、フローリングのお部屋なのでお掃除もラクラク。室内にはウォークインクローゼットがありますので、たくさんの荷物も効率的に収納ができます。キッチンはシステムキッチン仕様になっていますので、お料理好きの方にもぴったり。バス・トイレは別なので、のんびりお風呂タイムも楽しめるでしょう。また、雨の日でも浴室乾燥機を使えば、お洗濯も問題ありません。
通信設備面では、インターネットが無料で使えるので、月々の出費を抑えられるのも魅力です。また、BSアンテナ・CSアンテナもありますので、おうち時間も充実するでしょう(別途工事、BS・CSの契約料等が必要な場合あり)。
建物にはエレベーターがついているので、重い荷物があっても安心。共用部には宅配ボックスが設定されているので、不在の時にも荷物を受け取ることができます。
お金・契約の情報
※「-」と表示されているものは、実際は料金が発生するものもございます。詳細はお問い合わせください。
| 家賃 | 19.3万円 | 管理費・共益費 | 1.5万円 |
|---|---|---|---|
| 敷金 | なし | 礼金 | なし |
| 入居決定でお祝い金最大100,000円 | |||
| 保証金 | - | 償却・敷引 | - |
| 住宅保険料 | - | 更新料 | - |
| 保証会社利用 | 必須 | 保証会社名 | - |
| 保証会社費用 | - | 保証会社備考 | 保証会社利用必 初回保証委託料:月額賃料等の40%、月次保証料:無し 詳細はお問い合わせください。 |
| 契約形態 | - | 契約期間 | - |
| 入居・引渡期間 | 即時 | 現況 | - |
| 契約備考 | 通勤管理 合計2.2万円(内訳:鍵交換代2.2万円) 更新料 新賃料1.00ヶ月分 室内清掃費用 55000円 1LDK 二人入居可 普通借家2年 損保【2.2万円2年】 バストイレ別、バルコニー、エアコン、クロゼット、TVインターホン、浴室乾燥機、オートロック、室内洗濯置、陽当り良好、シューズボックス、システムキッチン、角住戸、温水洗浄便座、エレベーター、洗面所独立、駐輪場、宅配ボックス、礼金不要、閑静な住宅地、2面採光、BS・CS、敷金不要、3口以上コンロ、防犯カメラ、IHクッキングヒーター、ウォークインクロゼット、保証人不要、二人入居相談、全居室フローリング、ディンプルキー、ネット専用回線、ネット使用料不要、眺望良好、24時間換気システム、築3年以内、人感照明センサー、耐火構造、耐震構造、防犯ガラス、高気密住宅、2駅利用可、3駅以上利用可、防犯強化地域、駅徒歩10分以内、耐風構造、24時間ゴミ出し可、敷地内ごみ置き場、日勤管理、備付食器棚、都市ガス、敷金・礼金不要、通風良好 | ||
部屋の情報
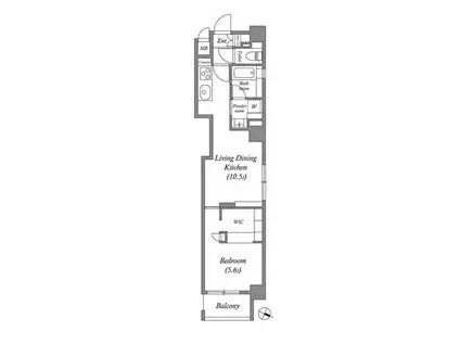
| 間取り | 1LDK | 専有面積 | 40.02m2 |
|---|---|---|---|
| 所在階 / 向き | 2階 / 北東 | バルコニー面積 | - |
| 水道 / ガス | - | ||
| 設備 | バス・トイレ別、2階以上、オートロック、テレビドアホン、宅配ボックス、浴室乾燥機、ウォークインクローゼット、インターネット対応、システムキッチン、エアコン、エレベーター、温水洗浄便座、角部屋、バルコニー、フローリング、洗髪洗面化粧台、2口コンロ、コンロ:IH、CSアンテナ、BSアンテナ、インターネット使用料無料、洗濯機:室内 | ||
| 当社物件ID | 137490532 | ||
建物の情報
| 建物名 | アスティーレ日本橋浜町 | ||
|---|---|---|---|
| 所在地 | 東京都中央区日本橋浜町 | ||
| 交通 | 都営新宿線 浜町駅 徒歩7分 東京メトロ半蔵門線 水天宮前駅 徒歩10分 都営大江戸線 森下駅(東京) 徒歩13分 | ||
| 階数 | 7階建 | 総戸数 | - |
| 築年月 | 2023年05月 / 築3年 | エレベーター | あり |
| 駐車場 | なし | バイク置き場 | - |
| 駐輪場 | あり | 管理人/管理会社 | - |
| 周辺環境 | その他 浜町軒(飲食店)まで234m その他 首都6号向島線 箱崎出入口 上り 出口(その他)まで266m その他 鳳蘭(飲食店)まで243m その他 まいばすけっと 清洲橋西店(スーパー)まで347m | ||
| 建物種別 | マンション | 建物構造 | RC(鉄筋コンクリート) |
この部屋の取扱い不動産会社
| 会社名 | Ptif(株)(SUUMO経由) | ||
|---|---|---|---|
| 所在地 | 東京都港区北青山1-3-3 6階 | 交通 | - |
| 営業時間 | 9:00~21:00 | 定休日 | 年中無休です! |
| 免許番号 | 東京都知事107647 | 取引態様 | 仲介 |
| 不動産会社管理番号 | 100444438559 | 当社管理番号 | 89 |
| 所属団体 | (公社)東京都宅地建物取引業協会会員 | ||
| 公正取引協議会 | (公社)首都圏不動産公正取引協議会加盟 | ||
| 取扱い物件情報 | 物件詳細へ | ||
※各種情報と現状に差異がある場合は、現状優先となります。問い合わせをすることで、より詳しい条件、情報を確認する事ができます。
提供:Ptif(株)(SUUMO経由)
この物件が気になったら掲載期限まであと10日
アスティーレ日本橋浜町に条件(家賃・エリア)が近い物件一覧
| 写真 | 家賃 管理費等 | 敷金 礼金 | 間取り 専有面積 | 築年数 | 最寄り駅 所在地 | キープ | 詳細 |
|---|---|---|---|---|---|---|---|
マンション エスティメゾン錦糸町2(1LDK/6階) | |||||||
![]() | 17.5万円 1.2万円 | 17.5万円 なし | 1LDK 40m2 | 築18年 | 総武・中央緩行線 錦糸町駅 徒歩5分 東京地下鉄半蔵門線 錦糸町駅 徒歩5分 東京都墨田区江東橋3丁目 | 詳細を見る | |
マンション プライマルフロント錦糸町(1K/10階) | |||||||
![]() | 12万円 1万円 | 12万円 なし | 1K 25.26m2 | 築6年 | 総武・中央緩行線 錦糸町駅 徒歩7分 東京地下鉄半蔵門線 錦糸町駅 徒歩7分 東京都新宿線 菊川駅(東京) 徒歩13分 東京都墨田区江東橋1丁目 | 詳細を見る | |
マンション レジディア錦糸町(1LDK/11階) | |||||||
![]() | 19.8万円 1.5万円 | 19.8万円 なし | 1LDK 40.02m2 | 築19年 | 東京地下鉄半蔵門線 錦糸町駅 徒歩5分 総武・中央緩行線 錦糸町駅 徒歩5分 東京都新宿線 住吉駅(東京) 徒歩17分 東京都墨田区錦糸1丁目 | 詳細を見る | |
マンション ブランセ森下(1K/6階) | |||||||
![]() | 12.05万円 1万円 | なし なし | 1K 25.27m2 | 築7年 | 東京都大江戸線 森下駅(東京) 徒歩3分 東京都新宿線 森下駅(東京) 徒歩3分 総武・中央緩行線 両国駅 徒歩17分 東京都墨田区千歳3丁目 | 詳細を見る | |
マンション アーバンパーク浅草2(1K/8階) | |||||||
![]() | 11.8万円 1万円 | なし なし | 1K 25.62m2 | 築2年 | 東武伊勢崎・大師線 浅草駅(東武・都営・メトロ) 徒歩12分 東京地下鉄銀座線 浅草駅(東武・都営・メトロ) 徒歩14分 東京都浅草線 浅草駅(東武・都営・メトロ) 徒歩14分 東京都台東区今戸1丁目 | 詳細を見る | |
マンション メディオ月島(1K/4階) | |||||||
![]() | 12.5万円 6,000円 | 12.5万円 なし | 1K 25.36m2 | 築10年 | 東京都大江戸線 月島駅 徒歩3分 東京地下鉄有楽町線 月島駅 徒歩5分 東京都大江戸線 勝どき駅 徒歩9分 東京都中央区月島3丁目 | 詳細を見る | |
マンション プレサンスブルーム浅草(1LDK/5階) | |||||||
![]() | 18.1万円 1.5万円 | なし なし | 1LDK 43m2 | 築4年 | 東武伊勢崎・大師線 浅草駅(東武・都営・メトロ) 徒歩8分 東京地下鉄銀座線 浅草駅(東武・都営・メトロ) 徒歩8分 東京都浅草線 浅草駅(東武・都営・メトロ) 徒歩8分 東京都台東区浅草6丁目 | 詳細を見る | |
マンション メゾン根岸(ワンルーム/8階) | |||||||
![]() | 19.5万円 なし | 19.5万円 19.5万円 | ワンルーム 40.55m2 | 築54年 | 山手線 鶯谷駅 徒歩3分 東京地下鉄日比谷線 入谷駅(東京) 徒歩4分 山手線 上野駅 徒歩12分 東京都台東区根岸3丁目 | 詳細を見る | |









