賃貸マンション
Nハウスの賃貸物件情報(1LDK/2階)
| 家賃 | 管理費等 | 敷金 | 礼金 | 間取り | 専有面積 |
|---|---|---|---|---|---|
| 18万円 | なし | 18万円 | 18万円 | 1LDK | 44.31m2 |
入居決定でお祝い金最大100,000円
- 保証金
- -
- 償却・敷引
- -
- 築年数
- 築15年
- 所在階
- 2階
- 向き
- 南東
Point
まずはお問い合わせ!
不動産会社は街のプロ、あなたに合った物件がきっと見つかります。
提供:(株)Vision上野店(SUUMO経由)

詳細情報 Nハウス
物件紹介
Nハウスは東京メトロ南北線東大前駅から徒歩7分にあり、駅近で通勤通学に便利なマンションです。
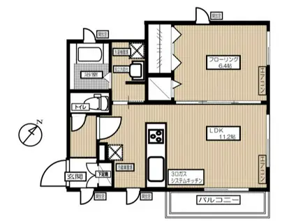
このお部屋は2階以上に位置しているので、通行人や周囲の住人からの視線が気になりにくく、防犯面でも安心。建物のエントランスはオートロックがついており、インターホンにはTVモニタもついているため、相手の顔を確認してから来客対応することができます。
人気の南向き・フローリングのお部屋。角部屋でもあるため、周囲の居住者の生活音も気になりにくい場所です。キッチンはシステムキッチン仕様になっていますので、お料理好きの方にもぴったり。バス・トイレは別なので、のんびりお風呂タイムも楽しめるでしょう。また、雨の日でも浴室乾燥機を使えば、お洗濯も問題ありません。
ペット飼育の相談ができますので、あなたの大切な家族の一員も快適に暮らせるか、ぜひ確認してみてください。
このお部屋は2階以上に位置しているので、通行人や周囲の住人からの視線が気になりにくく、防犯面でも安心。建物のエントランスはオートロックがついており、インターホンにはTVモニタもついているため、相手の顔を確認してから来客対応することができます。
人気の南向き・フローリングのお部屋。角部屋でもあるため、周囲の居住者の生活音も気になりにくい場所です。キッチンはシステムキッチン仕様になっていますので、お料理好きの方にもぴったり。バス・トイレは別なので、のんびりお風呂タイムも楽しめるでしょう。また、雨の日でも浴室乾燥機を使えば、お洗濯も問題ありません。
ペット飼育の相談ができますので、あなたの大切な家族の一員も快適に暮らせるか、ぜひ確認してみてください。
お金・契約の情報
※「-」と表示されているものは、実際は料金が発生するものもございます。詳細はお問い合わせください。
| 家賃 | 18万円 | 管理費・共益費 | なし |
|---|---|---|---|
| 敷金 | 18万円 | 礼金 | 18万円 |
| 入居決定でお祝い金最大100,000円 | |||
| 保証金 | - | 償却・敷引 | - |
| 住宅保険料 | - | 更新料 | - |
| 保証会社利用 | 必須 | 保証会社名 | - |
| 保証会社費用 | - | 保証会社備考 | 保証会社利用必 保証人無:初回/総賃料80% 保証人有:初回/総賃料100% |
| 契約形態 | - | 契約期間 | - |
| 入居・引渡期間 | 即時 | 現況 | - |
| 入居可能条件 | ペット相談 | ||
| 契約備考 | 【電話問い合わせ限定】仲介手数料0.55ヶ月(対象物件)。退去時クリーニング費用実費。ペット飼育相談:敷金1ヶ月追加償却。 1LDK ペット相談 普通借家2年 損保【2万円2年】 バストイレ別、バルコニー、エアコン、ガスコンロ対応、クロゼット、フローリング、シャワー付洗面台、TVインターホン、浴室乾燥機、オートロック、室内洗濯置、シューズボックス、システムキッチン、追焚機能浴室、角住戸、温水洗浄便座、脱衣所、洗面所独立、即入居可、最上階、3口以上コンロ、対面式キッチン、ペット相談、グリル付、全居室洋室、保証人不要、二人入居相談、全居室フローリング、3面採光、エアコン2台、エアコン全室、南面リビング、3駅以上利用可、3沿線以上利用可、駅徒歩10分以内、上階無し、東南向き、全居室6畳以上、都市ガス、洗面所にドア、南面バルコニー、初期費用カード決済可 敷金積み増し【ペット飼育の場合敷金2ヶ月(総額)】 | ||
部屋の情報
| 間取り | 1LDK | 専有面積 | 44.31m2 |
|---|---|---|---|
| 所在階 / 向き | 2階 / 南東 | バルコニー面積 | - |
| 水道 / ガス | - | ||
| 設備 | バス・トイレ別、2階以上、オートロック、テレビドアホン、浴室乾燥機、追い焚き、システムキッチン、エアコン、温水洗浄便座、南向き、角部屋、バルコニー、フローリング、洗髪洗面化粧台、2口コンロ、コンロ:ガス、洗濯機:室内 | ||
| 当社物件ID | 101893554 | ||
建物の情報
| 建物名 | Nハウス | ||
|---|---|---|---|
| 所在地 | 東京都文京区向丘 | ||
| 交通 | 東京メトロ南北線 東大前駅 徒歩7分 都営三田線 白山駅(東京) 徒歩7分 東京メトロ千代田線 根津駅 徒歩15分 | ||
| 階数 | 2階建 | 総戸数 | - |
| 築年月 | 2011年06月 / 築15年 | エレベーター | - |
| 駐車場 | なし | バイク置き場 | - |
| 駐輪場 | - | 管理人/管理会社 | - |
| 周辺環境 | その他 マクドナルド 白山駅前店(飲食店)まで510m その他 コープみらい(スーパー)まで463m その他 クイーンズ伊勢丹 小石川店(その他)まで917m その他 Olympicハイパーストア・白山店(ショッピングセンター)まで807m その他 ファミリーマート 文京向丘一丁目店(コンビニ)まで370m その他 スギ薬局白山通り店(ドラッグストア)まで991m | ||
| 建物種別 | マンション | 建物構造 | 鉄骨造 |
この部屋の取扱い不動産会社
| 会社名 | (株)Vision上野店(SUUMO経由) | ||
|---|---|---|---|
| 所在地 | 東京都台東区上野7-2-1 南大門上野駅前ビル8階 | 交通 | - |
| 営業時間 | 10:00~19:00 | 定休日 | 年末年始 |
| 免許番号 | 東京都知事96944 | 取引態様 | 仲介 |
| 不動産会社管理番号 | 100481844740 | 当社管理番号 | 89 |
| 所属団体 | (公社)東京都宅地建物取引業協会会員 | ||
| 公正取引協議会 | (公社)首都圏不動産公正取引協議会加盟 | ||
| 取扱い物件情報 | 物件詳細へ | ||
※各種情報と現状に差異がある場合は、現状優先となります。問い合わせをすることで、より詳しい条件、情報を確認する事ができます。
提供:(株)Vision上野店(SUUMO経由)
この物件が気になったら掲載期限まであと10日
Nハウスに条件(家賃・エリア)が近い物件一覧
| 写真 | 家賃 管理費等 | 敷金 礼金 | 間取り 専有面積 | 築年数 | 最寄り駅 所在地 | キープ | 詳細 |
|---|---|---|---|---|---|---|---|
マンション ルーチェ六義園(1K/1階) | |||||||
![]() | 14万円 なし | 14万円 14万円 | 1K 28.92m2 | 築5年 | 山手線 巣鴨駅 徒歩6分 東京都三田線 千石駅 徒歩7分 東京都文京区本駒込6丁目 | 詳細を見る | |
マンション ラグジュアリーアパートメント御徒町(ワンルーム/6階) | |||||||
![]() | 11万円 1.5万円 | 11万円 なし | ワンルーム 31.35m2 | 築21年 | 東京地下鉄日比谷線 仲御徒町駅 徒歩4分 東京都大江戸線 新御徒町駅 徒歩5分 山手線 御徒町駅 徒歩7分 東京都台東区台東4丁目 | 詳細を見る | |
マンション ザ・グローヴ浅草(1K/2階) | |||||||
![]() | 11.5万円 8,000円 | 11.5万円 11.5万円 | 1K 26.24m2 | 築5年 | 東京地下鉄銀座線 浅草駅(東武・都営・メトロ) 徒歩2分 東京都台東区浅草1丁目 | 詳細を見る | |
マンション 本郷エーワン東大前(1K/9階) | |||||||
![]() | 11.7万円 6,000円 | 11.7万円 11.7万円 | 1K 22.55m2 | 築18年 | 東京地下鉄南北線 東大前駅 徒歩1分 東京地下鉄千代田線 根津駅 徒歩9分 東京都三田線 白山駅(東京) 徒歩12分 東京都文京区向丘1丁目 | 詳細を見る | |
マンション バウスフラッツ蔵前(1LDK/9階) | |||||||
![]() | 16.6万円 1万円 | 16.6万円 なし | 1LDK 30.4m2 | 築1年 | 東京都浅草線 蔵前駅 徒歩2分 東京都大江戸線 蔵前駅 徒歩7分 東京都台東区蔵前4丁目 | 詳細を見る | |
マンション プラウドフラット文京千駄木(ワンルーム/10階) | |||||||
![]() | 14万円 1万円 | 14万円 14万円 | ワンルーム 25.81m2 | 築3年 | 山手線 田端駅 徒歩10分 山手線 西日暮里駅 徒歩11分 東京地下鉄千代田線 千駄木駅 徒歩11分 東京都文京区千駄木4丁目 | 詳細を見る | |
マンション THEATER COURT本駒込(1K/3階) | |||||||
![]() | 12.8万円 1万円 | 12.8万円 なし | 1K 26m2 | 築3年 | 東京地下鉄南北線 本駒込駅 徒歩6分 東京地下鉄南北線 駒込駅 徒歩10分 東京都三田線 千石駅 徒歩10分 東京都文京区本駒込3丁目 | 詳細を見る | |
マンション HYS三ノ輪(1SLDK/2階) | |||||||
![]() | 20.8万円 1.2万円 | 20.8万円 20.8万円 | 1SLDK 51.02m2 | 築8年 | 東京地下鉄日比谷線 三ノ輪駅 徒歩5分 東京都台東区竜泉2丁目 | 詳細を見る | |









