賃貸アパート
サンハイツの賃貸物件情報(1K/2階)
| 家賃 | 管理費等 | 敷金 | 礼金 | 間取り | 専有面積 |
|---|---|---|---|---|---|
| 5.4万円 | なし | 5.4万円 | 5.4万円 | 1K | 24.7m2 |
入居決定でお祝い金最大100,000円
- 保証金
- -
- 償却・敷引
- -
- 築年数
- 築39年
- 所在階
- 2階
- 向き
- 南西
Point
当物件は初期費用分割払い可(クレジットカード決済も可)/お客様のご希望に合わせた方法(店頭、オンライン等)で物件をご提案いたします。初期費用のお見積りや入居希望日のご相談もお気軽にお問い合わせください
提供:アエラス八王子店 (株)アエラス.FR(SUUMO経由)

詳細情報 サンハイツ
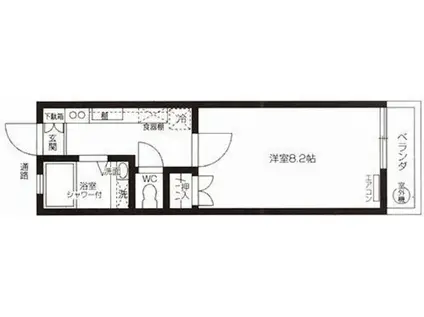
物件紹介
サンハイツはJR中央線西国分寺駅から徒歩4分にあり、駅近で通勤通学に便利なアパートです。
このお部屋は2階以上に位置しているので、通行人や周囲の住人からの視線が気になりにくく、防犯面でも安心です。
人気の南向きのお部屋。また、フローリングなのでお掃除もラクラク。キッチンはシステムキッチン仕様になっていますので、お料理好きの方にもぴったり。また、バス・トイレは別で、のんびりお風呂タイムも楽しめるでしょう。
通信設備面では、インターネット接続が可能です。また、CATVにも対応しているので、おうち時間も充実するでしょう(別途工事、契約料が必要な場合あり)。
このお部屋は2階以上に位置しているので、通行人や周囲の住人からの視線が気になりにくく、防犯面でも安心です。
人気の南向きのお部屋。また、フローリングなのでお掃除もラクラク。キッチンはシステムキッチン仕様になっていますので、お料理好きの方にもぴったり。また、バス・トイレは別で、のんびりお風呂タイムも楽しめるでしょう。
通信設備面では、インターネット接続が可能です。また、CATVにも対応しているので、おうち時間も充実するでしょう(別途工事、契約料が必要な場合あり)。
お金・契約の情報
※「-」と表示されているものは、実際は料金が発生するものもございます。詳細はお問い合わせください。
| 家賃 | 5.4万円 | 管理費・共益費 | なし |
|---|---|---|---|
| 敷金 | 5.4万円 | 礼金 | 5.4万円 |
| 入居決定でお祝い金最大100,000円 | |||
| 保証金 | - | 償却・敷引 | - |
| 住宅保険料 | - | 更新料 | - |
| 契約形態 | - | 契約期間 | - |
| 入居・引渡期間 | 即時 | 現況 | - |
| 契約備考 | 中央本線国立駅徒歩25分/奥山内科クリニックまで286m/国分寺泉郵便局まで365m/CATVでBSCS視聴可(CATVBS別途契約要有償)/鍵交換代借主負担/室内清掃費用借主負担 1K 普通借家2年 損保【要】 バストイレ別、エアコン、ガスコンロ対応、フローリング、室内洗濯置、システムキッチン、CATV、光ファイバー、即入居可、敷金1ヶ月、保証金不要、3駅以上利用可、3沿線以上利用可、駅徒歩5分以内、南西向き、都市ガス、高速ネット対応、礼金1ヶ月、初期費用カード決済可 | ||
部屋の情報
| 間取り | 1K | 専有面積 | 24.7m2 |
|---|---|---|---|
| 所在階 / 向き | 2階 / 南西 | バルコニー面積 | - |
| 水道 / ガス | - | ||
| 設備 | バス・トイレ別、2階以上、インターネット対応、システムキッチン、エアコン、南向き、フローリング、コンロ:ガス、CATV、洗濯機:室内 | ||
| 当社物件ID | 6770868 | ||
建物の情報
| 建物名 | サンハイツ | ||
|---|---|---|---|
| 所在地 | 東京都国分寺市泉町 | ||
| 交通 | JR中央線 西国分寺駅 徒歩4分 西武国分寺線 恋ケ窪駅 徒歩24分 JR中央線 国分寺駅 徒歩27分 | ||
| 階数 | 2階建 | 総戸数 | - |
| 築年月 | 1987年04月 / 築39年 | エレベーター | - |
| 駐車場 | 近隣 377m15336円 | バイク置き場 | - |
| 駐輪場 | - | 管理人/管理会社 | - |
| 周辺環境 | その他 西国分寺レガ(ショッピングセンター)まで490m その他 東武ストアにしこくマイン(スーパー)まで532m その他 セブン-イレブン 西国分寺駅南口店(コンビニ)まで386m その他 クリエイトSD府中武蔵台店(ドラッグストア)まで275m その他 エ・プロント西国分寺店(飲食店)まで540m その他 東京都立多摩総合医療センター(病院)まで1084m | ||
| 建物種別 | アパート | 建物構造 | 木造 |
この部屋の取扱い不動産会社
| 会社名 | アエラス八王子店 (株)アエラス.FR(SUUMO経由) | ||
|---|---|---|---|
| 所在地 | 東京都八王子市東町 8-2 豊泉2号ビル 1階 | 交通 | - |
| 営業時間 | 10:00~19:00(時間外対応出来る場合有り) | 定休日 | 毎週水曜日 |
| 免許番号 | 国土交通大臣10206 | 取引態様 | 仲介 |
| 不動産会社管理番号 | 100475228177 | 当社管理番号 | 89 |
| 所属団体 | (公社)全日本不動産協会東京都本部会員 | ||
| 公正取引協議会 | (公社)首都圏不動産公正取引協議会加盟 | ||
| 取扱い物件情報 | 物件詳細へ | ||
※各種情報と現状に差異がある場合は、現状優先となります。問い合わせをすることで、より詳しい条件、情報を確認する事ができます。
提供:アエラス八王子店 (株)アエラス.FR(SUUMO経由)
この物件が気になったら掲載期限まであと10日
サンハイツに条件(家賃・エリア)が近い物件一覧
| 写真 | 家賃 管理費等 | 敷金 礼金 | 間取り 専有面積 | 築年数 | 最寄り駅 所在地 | キープ | 詳細 |
|---|---|---|---|---|---|---|---|
アパート コア・フォーレストタウンⅠ(1K/1階) | |||||||
![]() | 5.8万円 なし | なし なし | 1K 20.06m2 | 築26年 | 中央本線 国立駅 徒歩14分 南武線 西国立駅 徒歩20分 南武線 矢川駅 徒歩25分 東京都国立市北2丁目 | 詳細を見る | |
アパート SOLANA国立(1K/1階) | |||||||
![]() | 6.2万円 4,000円 | 6.2万円 なし | 1K 22.45m2 | 築10年 | 中央本線 国立駅 徒歩12分 南武線 西国立駅 徒歩21分 青梅線 立川駅 徒歩31分 東京都国立市北2丁目 | 詳細を見る | |
アパート Kハイツ山田(1K/2階) | |||||||
![]() | 4.3万円 3,000円 | なし なし | 1K 18m2 | 築40年 | JR中央線 国立駅 徒歩13分 JR南武線 西国立駅 徒歩17分 JR南武線 矢川駅 徒歩22分 東京都国立市西 | 詳細を見る | |
アパート MELLAS矢川Ⅳ(ワンルーム/1階) | |||||||
![]() | 6.2万円 3,000円 | なし なし | ワンルーム 16.3m2 | 新築 | 南武線 矢川駅 徒歩2分 東京都国立市谷保 | 詳細を見る | |
アパート パセーオⅡ(1LDK/2階) | |||||||
![]() | 7.65万円 3,500円 | なし 9.65万円 | 1LDK 46.09m2 | 築16年 | 西武鉄道拝島線 西武立川駅 徒歩15分 青梅線 拝島駅 徒歩26分 青梅線 昭島駅 徒歩32分 東京都立川市西砂町2丁目 | 詳細を見る | |
マンション リブリ・GREEN CREST(1K/2階) | |||||||
![]() | 7.6万円 4,000円 | なし 7.6万円 | 1K 22.35m2 | 築9年 | 多摩都市モノレール 高松駅(東京) 徒歩14分 JR中央線 立川駅 徒歩16分 JR南武線 西国立駅 徒歩25分 東京都立川市高松町 | 詳細を見る | |
アパート ルナハイツ(2DK/2階) | |||||||
![]() | 7.2万円 3,000円 | なし なし | 2DK 39.7m2 | 築29年 | 西武鉄道拝島線 武蔵砂川駅 徒歩20分 東京都立川市上砂町1丁目 | 詳細を見る | |
マンション カトル・セゾンⅠ(1K/2階) | |||||||
![]() | 6.1万円 2,000円 | 6.1万円 6.1万円 | 1K 20.84m2 | 築30年 | 多摩モノレール 立川南駅 徒歩3分 中央本線 立川駅 徒歩5分 多摩モノレール 柴崎体育館駅 徒歩7分 東京都立川市柴崎町3丁目 | 詳細を見る | |









