賃貸アパート
カーサベルデの賃貸物件情報(2LDK/1階)
| 家賃 | 管理費等 | 敷金 | 礼金 | 間取り | 専有面積 |
|---|---|---|---|---|---|
| 13万円 | 4,000円 | 13万円 | なし | 2LDK | 52.17m2 |
入居決定でお祝い金最大100,000円
Point
室内設備はシステムキッチン・エアコン・追い焚きなど大変充実しております。
提供:(株)ルームワン蒲田店(SUUMO経由)

詳細情報 カーサベルデ
物件紹介
カーサベルデは東急大井町線上野毛駅から徒歩8分にあり、駅近で通勤通学に便利なアパートです。
このお部屋のインターホンにはTVモニタがついているため、相手の顔を確認してから来客対応することができます。
人気の南向き・フローリングのお部屋。角部屋でもあるため、周囲の居住者の生活音も気になりにくい場所です。キッチンはシステムキッチン仕様になっていますので、お料理好きの方にもぴったり。バス・トイレは別なので、のんびりお風呂タイムも楽しめるでしょう。また、雨の日でも浴室乾燥機を使えば、お洗濯も問題ありません。
通信設備面では、インターネットが無料で使えるので、月々の出費を抑えられるのも魅力です。また、BSアンテナがありCATVにも対応しているので、おうち時間も充実するでしょう(別途工事、BS・CATVの契約料等が必要な場合あり)。
このお部屋のインターホンにはTVモニタがついているため、相手の顔を確認してから来客対応することができます。
人気の南向き・フローリングのお部屋。角部屋でもあるため、周囲の居住者の生活音も気になりにくい場所です。キッチンはシステムキッチン仕様になっていますので、お料理好きの方にもぴったり。バス・トイレは別なので、のんびりお風呂タイムも楽しめるでしょう。また、雨の日でも浴室乾燥機を使えば、お洗濯も問題ありません。
通信設備面では、インターネットが無料で使えるので、月々の出費を抑えられるのも魅力です。また、BSアンテナがありCATVにも対応しているので、おうち時間も充実するでしょう(別途工事、BS・CATVの契約料等が必要な場合あり)。
お金・契約の情報
※「-」と表示されているものは、実際は料金が発生するものもございます。詳細はお問い合わせください。
| 家賃 | 13万円 | 管理費・共益費 | 4,000円 |
|---|---|---|---|
| 敷金 | 13万円 | 礼金 | なし |
| 入居決定でお祝い金最大100,000円 | |||
| 保証金 | - | 償却・敷引 | - |
| 住宅保険料 | 1円 | 更新料 | - |
| その他費用 | 諸経費:3,300円 | ||
| 保証会社利用 | 必須 | 保証会社名 | - |
| 保証会社費用 | - | 保証会社備考 | 初回保証料賃料等50%〜 月額1,000円 |
| 契約形態 | - | 契約期間 | 1年 |
| 入居・引渡期間 | 2026年02月中旬 | 現況 | - |
| 入居可能条件 | 2人入居可 | ||
| 契約備考 | 1年未満の解約は違約金として総賃料の1カ月分 月額(ArtClub 1320円) 鍵交換費用:33000 その他設備/条件:室内洗濯機置き場、独立洗面台、クローゼット、照明器具付き | ||
部屋の情報
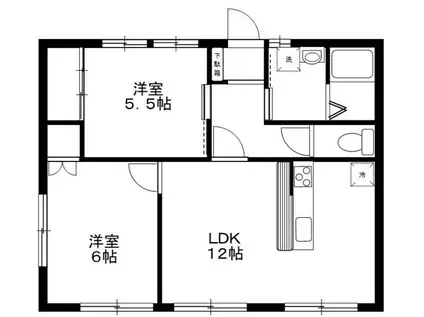
| 間取り | 2LDK | 専有面積 | 52.17m2 |
|---|---|---|---|
| 間取り詳細 | 洋室(6帖)、洋室(5.5帖)、LDK(12帖) | ||
| 所在階 / 向き | 1階 / 南西 | バルコニー面積 | - |
| 水道 / ガス | 水道【公営】、ガス【都市】 | ||
| 設備 | バス・トイレ別、テレビドアホン、追い焚き、システムキッチン、カウンターキッチン、エアコン、温水洗浄便座、角部屋、フローリング、2口コンロ、コンロ:ガス、インターネット使用料無料、シャワー、給湯、タイル張り | ||
| 当社物件ID | 98528 | ||
建物の情報
| 建物名 | カーサベルデ | ||
|---|---|---|---|
| 所在地 | 東京都世田谷区上野毛4丁目 | ||
| 交通 | 東急大井町線 上野毛駅 徒歩8分 東急田園都市線 用賀駅 徒歩15分 | ||
| 階数 | 2階建 | 総戸数 | - |
| 築年月 | 1973年04月 / 築53年 | エレベーター | - |
| 駐車場 | - | バイク置き場 | あり |
| 駐輪場 | あり | 管理人/管理会社 | - |
| 周辺環境 | その他 ドラッグストア その他 公園 その他 銀行 その他 * | ||
| 建物種別 | アパート | 建物構造 | 木造 |
この部屋の取扱い不動産会社
| 会社名 | ハウスコム東神奈川株式会社 溝の口店 | ||
|---|---|---|---|
| 所在地 | 神奈川県川崎市高津区8-1溝ノ口丸広ビル1階 | 交通 | - |
| 営業時間 | 10:00~18:00 | 定休日 | - |
| 免許番号 | 神奈川県知事(1)第31769号 | 取引態様 | 仲介 |
| 不動産会社管理番号 | HC2-589578-102-0073 | 当社管理番号 | 468 |
| 所属団体 | 、 | ||
| 取扱い物件情報 | 物件詳細へ | ||
※各種情報と現状に差異がある場合は、現状優先となります。問い合わせをすることで、より詳しい条件、情報を確認する事ができます。
提供:ハウスコム東神奈川株式会社 溝の口店
この物件が気になったら掲載期限まであと5日
カーサベルデに条件(家賃・エリア)が近い物件一覧
| 写真 | 家賃 管理費等 | 敷金 礼金 | 間取り 専有面積 | 築年数 | 最寄り駅 所在地 | キープ | 詳細 |
|---|---|---|---|---|---|---|---|
マンション SEED JUST B-BASE Ⅱ(1LDK/3階) | |||||||
![]() | 10.1万円 1.5万円 | 10.1万円 10.1万円 | 1LDK 27.92m2 | 新築 | 東京モノレール羽田 昭和島駅 徒歩11分 京浜急行電鉄本線 梅屋敷駅(東京) 徒歩19分 東京都大田区大森南4丁目 | 詳細を見る | |
マンション ドゥーエ蒲田(1K/7階) | |||||||
![]() | 10.6万円 7,000円 | 10.6万円 10.6万円 | 1K 22.08m2 | 築19年 | JR京浜東北線 蒲田駅 徒歩5分 東急池上線 蓮沼駅 徒歩6分 京急空港線 糀谷駅 徒歩27分 東京都大田区西蒲田 | 詳細を見る | |
マンション 菊鮨ビル(1K/3階) | |||||||
![]() | 8.2万円 3,000円 | 8.2万円 8.2万円 | 1K 22m2 | 築42年 | JR京浜東北線 蒲田駅 徒歩9分 京急本線 京急蒲田駅 徒歩10分 京急本線 梅屋敷駅(東京) 徒歩12分 東京都大田区蒲田 | 詳細を見る | |
マンション アルファコート東六郷(1LDK/5階) | |||||||
![]() | 19.8万円 1.2万円 | 19.8万円 なし | 1LDK 41.05m2 | 築4年 | 京浜急行電鉄本線 雑色駅 徒歩8分 東京都大田区東六郷2丁目 | 詳細を見る | |
アパート SEED SAVE PETIRASU Ⅲ(1LDK/1階) | |||||||
![]() | 10.4万円 1万円 | 20.8万円 10.4万円 | 1LDK 32.95m2 | 新築 | 東京モノレール羽田 昭和島駅 徒歩12分 京浜急行電鉄本線 大森町駅 徒歩18分 東京都大田区大森東5丁目 | 詳細を見る | |
マンション FLOURISH SI(2LDK/10階) | |||||||
![]() | 20.5万円 1.1万円 | 20.5万円 20.5万円 | 2LDK 53.9m2 | 築15年 | 京浜急行電鉄本線 梅屋敷駅(東京) 徒歩9分 東京都大田区大森中2丁目 | 詳細を見る | |
マンション ARCOBALENO HANEDA(1K/5階) | |||||||
![]() | 9.5万円 1.5万円 | なし 9.5万円 | 1K 25.57m2 | 築5年 | 京浜急行電鉄空港線 大鳥居駅 徒歩10分 東京都大田区本羽田3丁目 | 詳細を見る | |
マンション ロイジェント山王(1DK/8階) | |||||||
![]() | 13.4万円 1万円 | 13.4万円 13.4万円 | 1DK 29.3m2 | 築3年 | 京浜東北・根岸線 大森駅(東京) 徒歩12分 東京都大田区山王2丁目 | 詳細を見る | |








