賃貸アパート
プロヴァンス富永の賃貸物件情報(1DK/2階)
| 家賃 | 管理費等 | 敷金 | 礼金 | 間取り | 専有面積 |
|---|---|---|---|---|---|
| 4.7万円 | なし | なし | 4.7万円 | 1DK | 40.99m2 |
入居決定でお祝い金最大100,000円
- 保証金
- -
- 償却・敷引
- -
- 築年数
- 築25年
- 所在階
- 2階
- 向き
- 南
Point
初期費用がない!入居審査が不安!等も当社スタッフが様々なお悩みに対応します♪
提供:(株)SUMOMIT(SUUMO経由)

詳細情報 プロヴァンス富永
物件紹介
プロヴァンス富永はJR姫新線本竜野駅から徒歩6分にあり、駅近で通勤通学に便利なアパートです。
このお部屋は2階以上に位置しているので、通行人や周囲の住人からの視線が気になりにくく、防犯面でも安心。インターホンにはTVモニタもついているため、相手の顔を確認してから来客対応することができます。
人気の南向き・フローリングのお部屋。角部屋でもあるため、周囲の居住者の生活音も気になりにくい場所です。バス・トイレ別の仕様で、のんびりお風呂タイムも楽しめます。
通信設備面では、インターネット接続が可能です。また、BSアンテナもありますので、おうち時間も充実するでしょう(別途工事、契約料が必要な場合あり)。
このお部屋は2階以上に位置しているので、通行人や周囲の住人からの視線が気になりにくく、防犯面でも安心。インターホンにはTVモニタもついているため、相手の顔を確認してから来客対応することができます。
人気の南向き・フローリングのお部屋。角部屋でもあるため、周囲の居住者の生活音も気になりにくい場所です。バス・トイレ別の仕様で、のんびりお風呂タイムも楽しめます。
通信設備面では、インターネット接続が可能です。また、BSアンテナもありますので、おうち時間も充実するでしょう(別途工事、契約料が必要な場合あり)。
お金・契約の情報
※「-」と表示されているものは、実際は料金が発生するものもございます。詳細はお問い合わせください。
| 家賃 | 4.7万円 | 管理費・共益費 | なし |
|---|---|---|---|
| 敷金 | なし | 礼金 | 4.7万円 |
| 入居決定でお祝い金最大100,000円 | |||
| 保証金 | - | 償却・敷引 | - |
| 住宅保険料 | - | 更新料 | - |
| 契約形態 | - | 契約期間 | - |
| 入居・引渡期間 | 即時 | 現況 | - |
| 契約備考 | 巡回管理/マックスバリューやコンビニ近く、住環境◯!BSアンテナ・エアコン・TVモニター・eo光完備!広々収納で女性のお客様も安心です♪南向きバルコニーで日当たり良好! 町会費(月額)230円初期費用の分割可能!クレジットカード決済可(分割最大24回払いOK)☆ 1DK 損保【要】 バストイレ別、バルコニー、エアコン、フローリング、TVインターホン、室内洗濯置、角住戸、洗面所独立、駐輪場、光ファイバー、閑静な住宅地、最上階、バイク置場、2沿線利用可、2駅利用可、3駅以上利用可、プロパンガス、BS、IT重説対応物件、高齢者歓迎、LGBTフレンドリー、初期費用カード決済可 | ||
部屋の情報
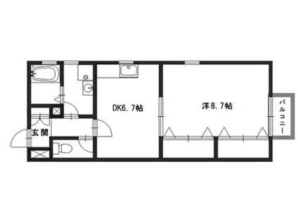
| 間取り | 1DK | 専有面積 | 40.99m2 |
|---|---|---|---|
| 所在階 / 向き | 2階 / 南 | バルコニー面積 | - |
| 水道 / ガス | - | ||
| 設備 | バス・トイレ別、2階以上、テレビドアホン、インターネット対応、エアコン、南向き、角部屋、バルコニー、フローリング、洗髪洗面化粧台、BSアンテナ、洗濯機:室内 | ||
| 当社物件ID | 9023328 | ||
建物の情報
| 建物名 | プロヴァンス富永 | ||
|---|---|---|---|
| 所在地 | 兵庫県たつの市龍野町富永 | ||
| 交通 | JR姫新線 本竜野駅 徒歩6分 JR姫新線 東觜崎駅 徒歩42分 JR山陽本線 竜野駅 徒歩69分 | ||
| 階数 | 2階建 | 総戸数 | 4戸 |
| 築年月 | 2001年03月 / 築25年 | エレベーター | - |
| 駐車場 | 空有 付無料 | バイク置き場 | あり |
| 駐輪場 | あり | 管理人/管理会社 | - |
| 周辺環境 | その他 たつの市立小宅小学校(小学校)まで812m その他 たつの市立龍野東中学校(中学校)まで1025m | ||
| 建物種別 | アパート | 建物構造 | 木造 |
この部屋の取扱い不動産会社
| 会社名 | (株)SUMOMIT(SUUMO経由) | ||
|---|---|---|---|
| 所在地 | 兵庫県姫路市本町 233 岸田ビル | 交通 | - |
| 営業時間 | 10:00~19:00 | 定休日 | 年中無休 |
| 免許番号 | 兵庫県知事451691 | 取引態様 | 仲介 |
| 不動産会社管理番号 | 100490472911 | 当社管理番号 | 89 |
| 所属団体 | (公社)全日本不動産協会兵庫県本部会員 | ||
| 公正取引協議会 | (公社)近畿地区不動産公正取引協議会加盟 | ||
| 取扱い物件情報 | 物件詳細へ | ||
※各種情報と現状に差異がある場合は、現状優先となります。問い合わせをすることで、より詳しい条件、情報を確認する事ができます。
提供:(株)SUMOMIT(SUUMO経由)
この物件が気になったら掲載期限まであと11日
プロヴァンス富永に条件(家賃・エリア)が近い物件一覧
| 写真 | 家賃 管理費等 | 敷金 礼金 | 間取り 専有面積 | 築年数 | 最寄り駅 所在地 | キープ | 詳細 |
|---|---|---|---|---|---|---|---|
一戸建て 山陽本線 はりま勝原駅 徒歩2分 築49年(5DK) | |||||||
![]() | 6.4万円 なし | なし 6.4万円 | 5DK 68.72m2 | 築49年 | 山陽本線 はりま勝原駅 徒歩2分 兵庫県姫路市広畑区則直 | 詳細を見る | |
一戸建て 姫新線 播磨高岡駅 徒歩20分 築63年(4DK) | |||||||
![]() | 4.5万円 なし | なし 9万円 | 4DK 80.75m2 | 築63年 | 姫新線 播磨高岡駅 徒歩20分 兵庫県姫路市神子岡前2 | 詳細を見る | |
アパート フィグガーデン(1LDK/1階) | |||||||
![]() | 6.3万円 5,000円 | なし 6.3万円 | 1LDK 41.67m2 | 築17年 | 山陽電鉄本線 飾磨駅 徒歩3分 山陽電鉄本線 亀山駅(兵庫) 徒歩19分 山陽電鉄本線 妻鹿駅 徒歩24分 兵庫県姫路市飾磨区玉地 | 詳細を見る | |
マンション アクロポリスⅤ(1K/3階) | |||||||
![]() | 4.7万円 4,000円 | なし 5.7万円 | 1K 26.87m2 | 築15年 | 播但線 京口駅 徒歩17分 兵庫県姫路市野里 | 詳細を見る | |
アパート 新和苑東棟ハ号(3DK/2階) | |||||||
![]() | 3.5万円 なし | 3.5万円 3.5万円 | 3DK 48m2 | 築55年 | 山陽電鉄網干線 西飾磨駅 徒歩17分 山陽電鉄本線 飾磨駅 徒歩22分 山陽電鉄網干線 飾磨駅 徒歩22分 兵庫県姫路市飾磨区構 | 詳細を見る | |
マンション 飾磨サンハイツ(3LDK/4階) | |||||||
![]() | 4万円 3,000円 | なし 12万円 | 3LDK 55m2 | 築41年 | 山陽電気鉄道本線 飾磨駅 徒歩4分 山陽電気鉄道本線 亀山駅(兵庫) 徒歩18分 山陽電気鉄道本線 妻鹿駅 徒歩27分 兵庫県姫路市飾磨区清水 | 詳細を見る | |
一戸建て 姫新線 余部駅 徒歩21分 築48年(4DK) | |||||||
![]() | 6.3万円 なし | なし なし | 4DK 77.83m2 | 築48年 | 姫新線 余部駅 徒歩21分 姫新線 播磨高岡駅 徒歩22分 兵庫県姫路市下手野4 | 詳細を見る | |
アパート エステートピア白浜Ⅱ(2DK/1階) | |||||||
![]() | 4.8万円 なし | なし なし | 2DK 50m2 | 築32年 | 山陽電気鉄道本線 八家駅 徒歩7分 山陽電気鉄道本線 白浜の宮駅 徒歩19分 山陽電気鉄道本線 的形駅 徒歩34分 兵庫県姫路市白浜町宇佐崎中1 | 詳細を見る | |









