賃貸アパート
パーチェの賃貸物件情報(1LDK/2階)
| 家賃 | 管理費等 | 敷金 | 礼金 | 間取り | 専有面積 |
|---|---|---|---|---|---|
| 6.3万円 | 4,000円 | 6.3万円 | なし | 1LDK | 43.2m2 |
入居決定でお祝い金最大100,000円
Point
2026年2月完成予定の新築物件★
提供:アパマンショップ西条駅前店

詳細情報 パーチェ
物件紹介
パーチェはJR山陽本線西条駅から徒歩10分にあり、駅近で通勤通学に便利なアパートです。
このお部屋は2階以上に位置しているので、通行人や周囲の住人からの視線が気になりにくく、防犯面でも安心。インターホンにはTVモニタもついているため、相手の顔を確認してから来客対応することができます。
人気の南向きのお部屋。室内にはウォークインクローゼットがありますので、たくさんの荷物も効率的に収納ができます。キッチンはシステムキッチン仕様になっていますので、お料理好きの方にもぴったり。バス・トイレは別なので、のんびりお風呂タイムも楽しめるでしょう。また、雨の日でも浴室乾燥機を使えば、お洗濯も問題ありません。
通信設備面では、インターネットが無料で使えるので、月々の出費を抑えられるのも魅力です。また、BSアンテナ・CSアンテナもありますので、おうち時間も充実するでしょう(別途工事、BS・CSの契約料等が必要な場合あり)。
ペット飼育の相談ができますので、あなたの大切な家族の一員も快適に暮らせるか、ぜひ確認してみてください。
このお部屋は2階以上に位置しているので、通行人や周囲の住人からの視線が気になりにくく、防犯面でも安心。インターホンにはTVモニタもついているため、相手の顔を確認してから来客対応することができます。
人気の南向きのお部屋。室内にはウォークインクローゼットがありますので、たくさんの荷物も効率的に収納ができます。キッチンはシステムキッチン仕様になっていますので、お料理好きの方にもぴったり。バス・トイレは別なので、のんびりお風呂タイムも楽しめるでしょう。また、雨の日でも浴室乾燥機を使えば、お洗濯も問題ありません。
通信設備面では、インターネットが無料で使えるので、月々の出費を抑えられるのも魅力です。また、BSアンテナ・CSアンテナもありますので、おうち時間も充実するでしょう(別途工事、BS・CSの契約料等が必要な場合あり)。
ペット飼育の相談ができますので、あなたの大切な家族の一員も快適に暮らせるか、ぜひ確認してみてください。
お金・契約の情報
※「-」と表示されているものは、実際は料金が発生するものもございます。詳細はお問い合わせください。
| 家賃 | 6.3万円 | 管理費・共益費 | 4,000円 |
|---|---|---|---|
| 敷金 | 6.3万円 | 礼金 | なし |
| 入居決定でお祝い金最大100,000円 | |||
| 保証金 | - | 償却・敷引 | - |
| 住宅保険料 | - | 更新料 | - |
| 保証会社利用 | 必須 | 保証会社名 | 保証人代行サービス保証料・家賃集金サービス手数料 |
| 保証会社費用 | - | 保証会社備考 | 10,000円/入居時、以降は月額賃料の1%/毎月(入居期間中) |
| 契約形態 | - | 契約期間 | 2年 |
| 入居・引渡期間 | 2026年02月下旬 | 現況 | - |
| 入居可能条件 | ペット可 | ||
| 契約備考 | ハウスクリーニング代58,300円(退去時に敷金から相殺) 保険加入義務有 消毒施工(入居時のみ) 17050円 | ||
部屋の情報
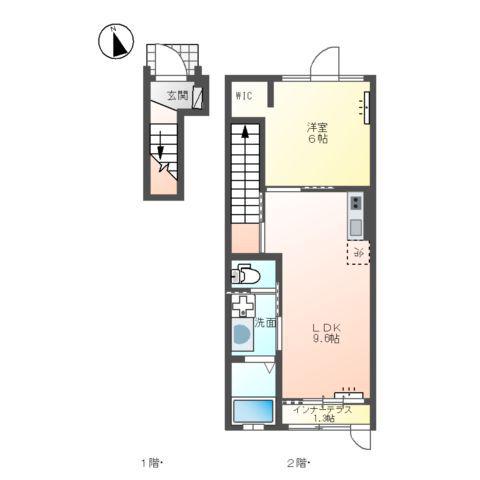
| 間取り | 1LDK | 専有面積 | 43.2m2 |
|---|---|---|---|
| 間取り詳細 | LDK(9.6帖)、洋室(6帖) | ||
| 所在階 / 向き | 2階 / 南 | バルコニー面積 | - |
| 水道 / ガス | ガス【プロパン】 | ||
| 設備 | バス・トイレ別、テレビドアホン、浴室乾燥機、ウォークインクローゼット、追い焚き、インターネット対応、システムキッチン、温水洗浄便座、コンロ:ガス、CSアンテナ、BSアンテナ、インターネット使用料無料、シャワー、冷房、洗濯機:室内 | ||
| 当社物件ID | 159474343 | ||
建物の情報
| 建物名 | パーチェ | ||
|---|---|---|---|
| 所在地 | 広島県東広島市西条東北町 | ||
| 交通 | 山陽本線 西条駅(広島) 徒歩15分 | ||
| 階数 | 2階建 | 総戸数 | 14戸 |
| 築年月 | 2026年02月 / 新築 | エレベーター | - |
| 駐車場 | 空有 3,960円/月 | バイク置き場 | - |
| 駐輪場 | あり | 管理人/管理会社 | - |
| 周辺環境 | 病院 本永病院 徒歩8分(583m) 病院 三浦医院 徒歩10分(754m) その他 とんかつ一久 徒歩8分(563m) その他 コメダ珈琲店 東広島西条店 徒歩9分(661m) その他 東広島市立サンスクエア児童青少年図書館 徒歩8分(597m) その他 ハローズ東広島店 徒歩8分(575m) その他 セブンイレブン 徒歩10分(757m) その他 賀茂高等学校 徒歩9分(680m) | ||
| 建物種別 | アパート | 建物構造 | 木造 |
この部屋の取扱い不動産会社
| 会社名 | アパマンショップ東広島寺家駅前店 | ||
|---|---|---|---|
| 所在地 | 広島県東広島市西条町寺家 3955 | 交通 | 山陽本線寺家から徒歩6分 |
| 営業時間 | 09:30〜18:30(昼休憩時間12時00分〜45分) | 定休日 | 水曜日 |
| 免許番号 | 広島県知事(10)5499 | 取引態様 | 仲介 |
| 不動産会社管理番号 | 111069518 | 当社管理番号 | 4 |
| 所属団体 | (公社)広島県宅地建物取引業協会 | ||
| 公正取引協議会 | 中国地区不動産公正取引協議会加盟 | ||
| 取扱い物件情報 | 物件詳細へ | ||
※各種情報と現状に差異がある場合は、現状優先となります。問い合わせをすることで、より詳しい条件、情報を確認する事ができます。
提供:アパマンショップ東広島寺家駅前店
この物件が気になったら掲載期限まであと1日
パーチェに条件(家賃・エリア)が近い物件一覧
| 写真 | 家賃 管理費等 | 敷金 礼金 | 間取り 専有面積 | 築年数 | 最寄り駅 所在地 | キープ | 詳細 |
|---|---|---|---|---|---|---|---|
マンション ベルリオ(1K/2階) | |||||||
![]() | 4万円 3,000円 | なし 4万円 | 1K 19.12m2 | 築28年 | アストラムライン 祇園新橋北駅 徒歩6分 可部線 下祇園駅 徒歩18分 広島県広島市安佐南区西原2丁目 | 詳細を見る | |
アパート リバーサイド川内I(3DK/2階) | |||||||
![]() | 7万円 なし | なし 7万円 | 3DK 60m2 | 築34年 | 芸備線 安芸矢口駅 徒歩15分 可部線 七軒茶屋駅 徒歩22分 広島県広島市安佐南区川内3丁目 | 詳細を見る | |
マンション F&T長束(1DK/3階) | |||||||
![]() | 3.9万円 3,000円 | 3.9万円 なし | 1DK 29.16m2 | 築56年 | 可部線 安芸長束駅 徒歩11分 アストラムライン 祇園新橋北駅 徒歩19分 広島県広島市安佐南区長束6丁目 | 詳細を見る | |



