賃貸マンション
ガーラ・グランディ深川住吉の賃貸物件情報(2K/4階)
| 家賃 | 管理費等 | 敷金 | 礼金 | 間取り | 専有面積 |
|---|---|---|---|---|---|
| 10.6万円 | 9,000円 | 10.6万円 | 21.2万円 | 2K | 25.51m2 |
入居決定でお祝い金最大100,000円
- 保証金
- -
- 償却・敷引
- -
- 築年数
- 築4年
- 所在階
- 4階
- 向き
- -
Point
人気の分譲【ガーラ・グランディ】シリーズ☆ テレワークの方にもおすすめな2Kタイプの間取り☆ 近隣には大型スーパーやドラッグストア等の生活便利施設もそろっています。
提供:(株)Link Roomリンクルーム門前仲町店(SUUMO経由)

詳細情報 ガーラ・グランディ深川住吉
物件紹介
ガーラ・グランディ深川住吉は東京メトロ半蔵門線住吉駅から徒歩7分にあり、駅近で通勤通学に便利なマンションです。
このお部屋は2階以上に位置しているので、通行人や周囲の住人からの視線が気になりにくく、防犯面でも安心。建物のエントランスはオートロックがついており、インターホンにはTVモニタもついているため、相手の顔を確認してから来客対応することができます。
おしゃれなデザイナーズ物件!人気の角部屋で周囲の居住者の生活音も気になりにくく、また、フローリングのお部屋なのでお掃除もラクラク。キッチンはシステムキッチン仕様になっていますので、お料理好きの方にもぴったり。バス・トイレは別なので、のんびりお風呂タイムも楽しめるでしょう。また、雨の日でも浴室乾燥機を使えば、お洗濯も問題ありません。
通信設備面では、インターネットが無料で使えるので、月々の出費を抑えられるのも魅力です。また、BSアンテナ・CSアンテナもありますので、おうち時間も充実するでしょう(別途工事、BS・CSの契約料等が必要な場合あり)。
建物にはエレベーターがついているので、重い荷物があっても安心。共用部には宅配ボックスが設定されているので、不在の時にも荷物を受け取ることができます。
このお部屋は2階以上に位置しているので、通行人や周囲の住人からの視線が気になりにくく、防犯面でも安心。建物のエントランスはオートロックがついており、インターホンにはTVモニタもついているため、相手の顔を確認してから来客対応することができます。
おしゃれなデザイナーズ物件!人気の角部屋で周囲の居住者の生活音も気になりにくく、また、フローリングのお部屋なのでお掃除もラクラク。キッチンはシステムキッチン仕様になっていますので、お料理好きの方にもぴったり。バス・トイレは別なので、のんびりお風呂タイムも楽しめるでしょう。また、雨の日でも浴室乾燥機を使えば、お洗濯も問題ありません。
通信設備面では、インターネットが無料で使えるので、月々の出費を抑えられるのも魅力です。また、BSアンテナ・CSアンテナもありますので、おうち時間も充実するでしょう(別途工事、BS・CSの契約料等が必要な場合あり)。
建物にはエレベーターがついているので、重い荷物があっても安心。共用部には宅配ボックスが設定されているので、不在の時にも荷物を受け取ることができます。
お金・契約の情報
※「-」と表示されているものは、実際は料金が発生するものもございます。詳細はお問い合わせください。
| 家賃 | 10.6万円 | 管理費・共益費 | 9,000円 |
|---|---|---|---|
| 敷金 | 10.6万円 | 礼金 | 21.2万円 |
| 入居決定でお祝い金最大100,000円 | |||
| 保証金 | - | 償却・敷引 | - |
| 住宅保険料 | - | 更新料 | - |
| 保証会社利用 | 必須 | 保証会社名 | - |
| 保証会社費用 | - | 保証会社備考 | 保証会社利用必 初回:総賃料の50% 、年間保証料10 000円 |
| 契約形態 | - | 契約期間 | - |
| 入居・引渡期間 | 即時 | 現況 | - |
| 契約備考 | 巡回管理/【リンクルーム清澄白河店】では、江東区・墨田区を中心に数多くの物件を取り扱っているので、他社さん掲載の物件もご紹介が可能です。 物件情報だけではなく、周辺環境なども熟知したスタッフがご対応させていただきますので、お気軽にお問い合わせください♪ 合計2.31万円(内訳:鍵交換代2.31万円) 更新料 新賃料1.00ヶ月分 2K 二人入居可 普通借家2年 損保【2万円2年】 バストイレ別、バルコニー、エアコン、ガスコンロ対応、クロゼット、フローリング、TVインターホン、浴室乾燥機、オートロック、室内洗濯置、陽当り良好、シューズボックス、システムキッチン、追焚機能浴室、角住戸、温水洗浄便座、脱衣所、エレベーター、洗面所独立、洗面化粧台、2口コンロ、駐輪場、宅配ボックス、光ファイバー、即入居可、2面採光、防犯カメラ、分譲賃貸、オートバス、グリル付、保証人不要、カードキー、2沿線利用可、CS、ネット使用料不要、眺望良好、24時間換気システム、人感照明センサー、耐震構造、2駅利用可、3駅以上利用可、駅徒歩10分以内、高層階、24時間ゴミ出し可、敷地内ごみ置き場、都市ガス、玄関収納、BS、マルチメディアコンセント、IT重説対応物件、初期費用カード決済可、通風良好 | ||
部屋の情報
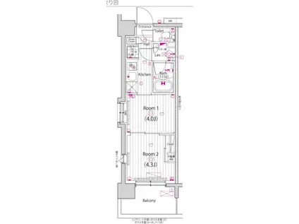
| 間取り | 2K | 専有面積 | 25.51m2 |
|---|---|---|---|
| 所在階 / 向き | 4階 / - | バルコニー面積 | - |
| 水道 / ガス | - | ||
| 設備 | バス・トイレ別、2階以上、オートロック、テレビドアホン、宅配ボックス、浴室乾燥機、追い焚き、インターネット対応、システムキッチン、エアコン、エレベーター、温水洗浄便座、角部屋、バルコニー、フローリング、洗髪洗面化粧台、2口コンロ、コンロ:ガス、CSアンテナ、BSアンテナ、インターネット使用料無料、洗濯機:室内 | ||
| 当社物件ID | 159963836 | ||
建物の情報
| 建物名 | ガーラ・グランディ深川住吉 | ||
|---|---|---|---|
| 所在地 | 東京都江東区扇橋 | ||
| 交通 | 東京メトロ半蔵門線 住吉駅(東京) 徒歩7分 都営新宿線 西大島駅 徒歩19分 都営新宿線 菊川駅(東京) 徒歩21分 | ||
| 階数 | 地下1地上12階建 | 総戸数 | 74戸 |
| 築年月 | 2022年12月 / 築4年 | エレベーター | あり |
| 駐車場 | なし | バイク置き場 | - |
| 駐輪場 | あり | 管理人/管理会社 | - |
| 周辺環境 | その他 セブンイレブン 江東扇橋2丁目店(コンビニ)まで126m その他 ライフ 深川猿江店(スーパー)まで373m その他 深川立川病院(病院)まで238m その他 江東区役所小松橋出張所(役所)まで254m その他 chocoZAP 江東千田(その他)まで346m その他 江東区スポ-ツ会館(その他)まで542m | ||
| 建物種別 | マンション | 建物構造 | RC(鉄筋コンクリート) |
この部屋の取扱い不動産会社
| 会社名 | (株)Link Roomリンクルーム清澄白河本店(SUUMO経由) | ||
|---|---|---|---|
| 所在地 | 東京都江東区清澄3-6-15 オープンレジデンシア清澄白河102 | 交通 | - |
| 営業時間 | 10時~19時 | 定休日 | 不定休 |
| 免許番号 | 東京都知事108549 | 取引態様 | 仲介 |
| 不動産会社管理番号 | 100480037721 | 当社管理番号 | 89 |
| 取扱い物件情報 | 物件詳細へ | ||
※各種情報と現状に差異がある場合は、現状優先となります。問い合わせをすることで、より詳しい条件、情報を確認する事ができます。
提供:(株)Link Roomリンクルーム清澄白河本店(SUUMO経由)
この物件が気になったら掲載期限まであと10日
ガーラ・グランディ深川住吉に条件(家賃・エリア)が近い物件一覧
| 写真 | 家賃 管理費等 | 敷金 礼金 | 間取り 専有面積 | 築年数 | 最寄り駅 所在地 | キープ | 詳細 |
|---|---|---|---|---|---|---|---|
アパート タカマルハイム(1LDK/1階) | |||||||
![]() | 11.5万円 3,000円 | 11.5万円 11.5万円 | 1LDK 34m2 | 築11年 | 東急多摩川線 武蔵新田駅 徒歩8分 東急多摩川線 下丸子駅 徒歩9分 東京都大田区下丸子2丁目 | 詳細を見る | |
マンション GRAN PASEO大森Ⅲ(ワンルーム/1階) | |||||||
![]() | 11万円 1万円 | なし なし | ワンルーム 20.01m2 | 築1年 | 京浜急行電鉄本線 大森海岸駅 徒歩6分 京浜東北・根岸線 大森駅(東京) 徒歩10分 東京モノレール羽田 大井競馬場前駅 徒歩22分 東京都品川区南大井3丁目 | 詳細を見る | |
マンション 菊鮨ビル(1K/3階) | |||||||
![]() | 8.5万円 3,000円 | 8.5万円 なし | 1K 22m2 | 築42年 | JR京浜東北線 蒲田駅 徒歩9分 京急本線 京急蒲田駅 徒歩10分 京急本線 梅屋敷駅(東京) 徒歩12分 東京都大田区蒲田 | 詳細を見る | |
マンション リブリ・曳舟(1LDK/3階) | |||||||
![]() | 12.8万円 3,000円 | なし 19.2万円 | 1LDK 32.04m2 | 築1年 | 東武伊勢崎・大師線 曳舟駅 徒歩13分 東武伊勢崎・大師線 東向島駅 徒歩13分 京成電鉄押上線 京成曳舟駅 徒歩16分 東京都墨田区堤通1丁目 | 詳細を見る | |
マンション CONFORT(1LDK/2階) | |||||||
![]() | 11.6万円 3,000円 | 11.6万円 11.6万円 | 1LDK 34.43m2 | 築10年 | 京浜急行電鉄本線 雑色駅 徒歩7分 京浜急行電鉄空港線 糀谷駅 徒歩16分 東京都大田区東六郷1丁目 | 詳細を見る | |
マンション 第二ハイツ桐原(1K/2階) | |||||||
![]() | 6.7万円 2,000円 | 6.7万円 なし | 1K 18m2 | 築34年 | 東急大井町線 荏原町駅 徒歩4分 東急池上線 旗の台駅 徒歩9分 東急大井町線 旗の台駅 徒歩9分 東京都品川区中延 | 詳細を見る | |
マンション SEED JUST B-BASE Ⅱ(1LDK/4階) | |||||||
![]() | 8.8万円 1.5万円 | 8.8万円 8.8万円 | 1LDK 23.07m2 | 新築 | 東京モノレール羽田 昭和島駅 徒歩11分 京浜急行電鉄本線 梅屋敷駅(東京) 徒歩19分 東京都大田区大森南4丁目 | 詳細を見る | |
マンション ラフィスタ蒲田南Ⅱ(2K/5階) | |||||||
![]() | 10.45万円 1.5万円 | なし 10.45万円 | 2K 25.65m2 | 築5年 | 京浜急行電鉄本線 雑色駅 徒歩12分 東急多摩川線 矢口渡駅 徒歩18分 京浜東北・根岸線 蒲田駅 徒歩22分 東京都大田区西六郷1丁目 | 詳細を見る | |








