賃貸マンション
パークアクシス大塚の賃貸物件情報(3LDK/14階)
| 家賃 | 管理費等 | 敷金 | 礼金 | 間取り | 専有面積 |
|---|---|---|---|---|---|
| 26.6万円 | 1.2万円 | 26.6万円 | 26.6万円 | 3LDK | 60.04m2 |
入居決定でお祝い金最大100,000円
Point
まずはお問い合わせ!
不動産会社は街のプロ、あなたに合った物件がきっと見つかります。
提供:ハウス・トゥ・ハウス・ネットサービス(株)王子店(SUUMO経由)

詳細情報 パークアクシス大塚
物件紹介
パークアクシス大塚はJR山手線大塚駅から徒歩3分にあり、駅近で通勤通学に便利なマンションです。
このお部屋は2階以上に位置しているので、通行人や周囲の住人からの視線が気になりにくく、防犯面でも安心。建物のエントランスはオートロックがついており、インターホンにはTVモニタもついているため、相手の顔を確認してから来客対応することができます。
おしゃれなデザイナーズ物件!また、楽器相談が可能な物件となっているので、楽器演奏をお考えの方はぜひ相談してみてください。人気の南向き・フローリングのお部屋。角部屋でもあるため、周囲の居住者の生活音も気になりにくい場所です。キッチンはシステムキッチン仕様になっていますので、お料理好きの方にもぴったり。バス・トイレは別なので、のんびりお風呂タイムも楽しめるでしょう。また、雨の日でも浴室乾燥機を使えば、お洗濯も問題ありません。
通信設備面では、インターネット接続が可能です。また、BSアンテナ・CSアンテナがありCATVにも対応しているので、おうち時間も充実するでしょう(別途工事、契約料が必要な場合あり)。
建物にはエレベーターがついているので、重い荷物があっても安心。共用部には宅配ボックスが設定されているので、不在の時にも荷物を受け取ることができます。
コンビニまで徒歩6分の場所にあり、日用品や食料品のお買い物にも便利です。
このお部屋は2階以上に位置しているので、通行人や周囲の住人からの視線が気になりにくく、防犯面でも安心。建物のエントランスはオートロックがついており、インターホンにはTVモニタもついているため、相手の顔を確認してから来客対応することができます。
おしゃれなデザイナーズ物件!また、楽器相談が可能な物件となっているので、楽器演奏をお考えの方はぜひ相談してみてください。人気の南向き・フローリングのお部屋。角部屋でもあるため、周囲の居住者の生活音も気になりにくい場所です。キッチンはシステムキッチン仕様になっていますので、お料理好きの方にもぴったり。バス・トイレは別なので、のんびりお風呂タイムも楽しめるでしょう。また、雨の日でも浴室乾燥機を使えば、お洗濯も問題ありません。
通信設備面では、インターネット接続が可能です。また、BSアンテナ・CSアンテナがありCATVにも対応しているので、おうち時間も充実するでしょう(別途工事、契約料が必要な場合あり)。
建物にはエレベーターがついているので、重い荷物があっても安心。共用部には宅配ボックスが設定されているので、不在の時にも荷物を受け取ることができます。
コンビニまで徒歩6分の場所にあり、日用品や食料品のお買い物にも便利です。
お金・契約の情報
※「-」と表示されているものは、実際は料金が発生するものもございます。詳細はお問い合わせください。
| 家賃 | 26.6万円 | 管理費・共益費 | 1.2万円 |
|---|---|---|---|
| 敷金 | 26.6万円 | 礼金 | 26.6万円 |
| 入居決定でお祝い金最大100,000円 | |||
| 保証金 | - | 償却・敷引 | - |
| 住宅保険料 | 1円 | 更新料 | - |
| その他費用 | 室内清掃費:11.2274万円、16500円: | ||
| 保証会社利用 | 必須 | 保証会社名 | - |
| 保証会社費用 | - | 保証会社備考 | 保証会社名:レジデントアシスタンス株式会社/初回保証委託料(最低20000円):月額賃料等の50%、 2年目以降:9600円/年 |
| 契約形態 | - | 契約期間 | 2年 |
| 入居・引渡期間 | 即時 | 現況 | - |
| 入居可能条件 | 楽器可 | ||
| 契約備考 | 礼金0ヶ月1年未満ペナルティ有/駐輪場1台無料/ペット飼育不可 保証会社利用必須 月額(口座振替事務手数料 110円) その他設備/条件:室内洗濯機置き場 | ||
部屋の情報
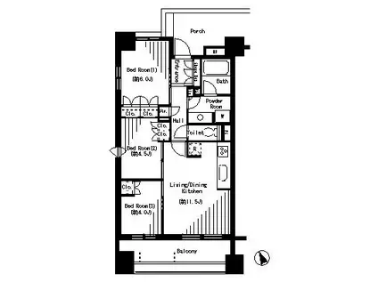
| 間取り | 3LDK | 専有面積 | 60.04m2 |
|---|---|---|---|
| 間取り詳細 | 洋室(6帖)、洋室(4.5帖)、洋室(4帖)、LDK(11.5帖) | ||
| 所在階 / 向き | 14階 / 南 | バルコニー面積 | - |
| 水道 / ガス | - | ||
| 設備 | バス・トイレ別、オートロック、宅配ボックス、インターネット対応、システムキッチン、エアコン、エレベーター、バルコニー、フローリング、CATV、CSアンテナ、BSアンテナ | ||
| 当社物件ID | 730945 | ||
建物の情報
| 建物名 | パークアクシス大塚 | ||
|---|---|---|---|
| 所在地 | 東京都豊島区北大塚2丁目 | ||
| 交通 | 山手線 大塚駅(東京) 徒歩4分 東京地下鉄丸ノ内線 新大塚駅 徒歩12分 | ||
| 階数 | 14階建 | 総戸数 | - |
| 築年月 | 2005年12月 / 築21年 | エレベーター | あり |
| 駐車場 | なし | バイク置き場 | あり |
| 駐輪場 | - | 管理人/管理会社 | - |
| 周辺環境 | コンビニ 徒歩6分(447m) その他 ドラッグストア その他 公園 その他 銀行 その他 * | ||
| 建物種別 | マンション | 建物構造 | RC(鉄筋コンクリート) |
この部屋の取扱い不動産会社
| 会社名 | ハウスコム東東京株式会社 練馬店 | ||
|---|---|---|---|
| 所在地 | 東京都練馬区2-9K&Iビル1階 | 交通 | - |
| 営業時間 | 10:00~18:00 | 定休日 | - |
| 免許番号 | 東京都知事(1)第108283号 | 取引態様 | 仲介 |
| 不動産会社管理番号 | HC5-94504-1401-0135 | 当社管理番号 | 468 |
| 所属団体 | 、 | ||
| 取扱い物件情報 | 物件詳細へ | ||
※各種情報と現状に差異がある場合は、現状優先となります。問い合わせをすることで、より詳しい条件、情報を確認する事ができます。
提供:ハウスコム東東京株式会社 練馬店
この物件が気になったら掲載期限まであと0日
パークアクシス大塚に条件(家賃・エリア)が近い物件一覧
| 写真 | 家賃 管理費等 | 敷金 礼金 | 間取り 専有面積 | 築年数 | 最寄り駅 所在地 | キープ | 詳細 |
|---|---|---|---|---|---|---|---|
マンション PASEO文京茗荷谷(1LDK/4階) | |||||||
![]() | 17.8万円 1.2万円 | なし なし | 1LDK 40.1m2 | 築6年 | 東京地下鉄丸ノ内線 新大塚駅 徒歩7分 東京地下鉄丸ノ内線 茗荷谷駅 徒歩8分 東京地下鉄有楽町線 護国寺駅 徒歩10分 東京都文京区大塚4丁目 | 詳細を見る | |
マンション LASANTE 千駄木(1LDK/10階) | |||||||
![]() | 22.3万円 1.2万円 | なし なし | 1LDK 42.35m2 | 築18年 | 山手線 西日暮里駅 徒歩5分 東京都文京区千駄木3丁目 | 詳細を見る | |
マンション パークホームズ文京小石川ヒルテラス(1DK/2階) | |||||||
![]() | 20.6万円 1万円 | 20.6万円 20.6万円 | 1DK 37.45m2 | 築3年 | 東京地下鉄丸ノ内線 後楽園駅 徒歩3分 東京地下鉄南北線 後楽園駅 徒歩3分 東京都三田線 春日駅(東京) 徒歩3分 東京都文京区小石川2丁目 | 詳細を見る | |
マンション レジディア文京音羽(1LDK/1階) | |||||||
![]() | 17.9万円 2万円 | 17.9万円 なし | 1LDK 47.46m2 | 築23年 | 東京地下鉄有楽町線 護国寺駅 徒歩2分 東京地下鉄丸ノ内線 新大塚駅 徒歩13分 東京地下鉄丸ノ内線 茗荷谷駅 徒歩16分 東京都文京区大塚5丁目 | 詳細を見る | |
マンション アーバンコア本郷(1LDK/10階) | |||||||
![]() | 23.3万円 1.5万円 | 23.3万円 なし | 1LDK 40.09m2 | 築5年 | 東京地下鉄丸ノ内線 本郷三丁目駅 徒歩4分 総武・中央緩行線 水道橋駅 徒歩9分 東京地下鉄丸ノ内線 御茶ノ水駅 徒歩10分 東京都文京区本郷2丁目 | 詳細を見る | |
マンション エスティメゾン千石(1LDK/1階) | |||||||
![]() | 16万円 1.2万円 | 16万円 16万円 | 1LDK 39.85m2 | 築17年 | 東京都三田線 千石駅 徒歩7分 山手線 巣鴨駅 徒歩9分 東京都文京区千石4丁目 | 詳細を見る | |
マンション オーパスホームズ白山(1LDK/3階) | |||||||
![]() | 27.5万円 2万円 | なし なし | 1LDK 56.24m2 | 築26年 | 東京都三田線 白山駅(東京) 徒歩5分 東京地下鉄南北線 東大前駅 徒歩5分 東京都文京区向丘1丁目 | 詳細を見る | |
マンション ジオエント駒込(1LDK/5階) | |||||||
![]() | 22.5万円 1.5万円 | 22.5万円 なし | 1LDK 40.4m2 | 築1年 | 東京地下鉄南北線 駒込駅 徒歩6分 山手線 駒込駅 徒歩8分 東京都三田線 千石駅 徒歩13分 東京都文京区本駒込5丁目 | 詳細を見る | |








