賃貸マンション
ファーストレジデンス栄の賃貸物件情報(1LDK/13階)
| 家賃 | 管理費等 | 敷金 | 礼金 | 間取り | 専有面積 |
|---|---|---|---|---|---|
| 14.4万円 | 7,000円 | なし | なし | 1LDK | 48.46m2 |
入居決定でお祝い金最大100,000円
- 保証金
- -
- 償却・敷引
- -
- 築年数
- 築9年
- 所在階
- 13階
- 向き
- 西
Point
こちらのお部屋について少しでもご興味があれば、フォームからお問合せ下さい!ご入居に関してのご相談についてもご連絡をお待ちしております。
提供:ホームメイトFC栄駅前店(有)アクアネット(SUUMO経由)

詳細情報 ファーストレジデンス栄
物件紹介
ファーストレジデンス栄は地下鉄名城線矢場町駅から徒歩9分にあり、駅近で通勤通学に便利なマンションです。
このお部屋は2階以上に位置しているので通行人や周囲の住人からの視線が気になりにくく、建物のエントランスはオートロックがついているので防犯性が高くなっています。
フローリングのお部屋なのでお掃除もラクラク。バス・トイレ別の仕様で、のんびりお風呂タイムも楽しめます。また、浴室乾燥機を使えば、雨の日でもお洗濯は問題ありません。
通信設備面では、インターネットが無料で使えるので、月々の出費を抑えられるのも魅力です。また、BSアンテナ・CSアンテナがありCATVにも対応しているので、おうち時間も充実するでしょう(別途工事、BS・CS・CATVの契約料等が必要な場合あり)。
建物にはエレベーターがついているので、重い荷物があっても安心。共用部には宅配ボックスが設定されているので、不在の時にも荷物を受け取ることができます。
このお部屋は2階以上に位置しているので通行人や周囲の住人からの視線が気になりにくく、建物のエントランスはオートロックがついているので防犯性が高くなっています。
フローリングのお部屋なのでお掃除もラクラク。バス・トイレ別の仕様で、のんびりお風呂タイムも楽しめます。また、浴室乾燥機を使えば、雨の日でもお洗濯は問題ありません。
通信設備面では、インターネットが無料で使えるので、月々の出費を抑えられるのも魅力です。また、BSアンテナ・CSアンテナがありCATVにも対応しているので、おうち時間も充実するでしょう(別途工事、BS・CS・CATVの契約料等が必要な場合あり)。
建物にはエレベーターがついているので、重い荷物があっても安心。共用部には宅配ボックスが設定されているので、不在の時にも荷物を受け取ることができます。
お金・契約の情報
※「-」と表示されているものは、実際は料金が発生するものもございます。詳細はお問い合わせください。
| 家賃 | 14.4万円 | 管理費・共益費 | 7,000円 |
|---|---|---|---|
| 敷金 | なし | 礼金 | なし |
| 入居決定でお祝い金最大100,000円 | |||
| 保証金 | - | 償却・敷引 | - |
| 住宅保険料 | - | 更新料 | - |
| 保証会社利用 | 必須 | 保証会社名 | - |
| 保証会社費用 | - | 保証会社備考 | 保証会社利用必 株式会社エポスカード ※大手法人、諸条件相談可 |
| 契約形態 | - | 契約期間 | - |
| 入居・引渡期間 | - | 現況 | - |
| 契約備考 | ■解約予告2ヶ月前(日割)■退去時RC代あり、エアコン清掃費1基辺り:15000円 合計2.2万円(内訳:カギ代2.2万円) 室内清掃費用 55000円 1LDK 二人入居可 損保【2.2万円2年】 バストイレ別、バルコニー、エアコン、フローリング、浴室乾燥機、オートロック、室内洗濯置、シューズボックス、温水洗浄便座、エレベーター、洗面所独立、駐輪場、宅配ボックス、CATV、防犯カメラ、バイク置場、CS、プロパンガス、BS、IT重説対応物件 入居日:'26年4月下旬 | ||
部屋の情報
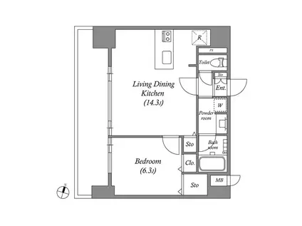
| 間取り | 1LDK | 専有面積 | 48.46m2 |
|---|---|---|---|
| 所在階 / 向き | 13階 / 西 | バルコニー面積 | - |
| 水道 / ガス | - | ||
| 設備 | バス・トイレ別、2階以上、オートロック、宅配ボックス、浴室乾燥機、エアコン、エレベーター、温水洗浄便座、バルコニー、フローリング、洗髪洗面化粧台、CATV、CSアンテナ、BSアンテナ、洗濯機:室内 | ||
| 当社物件ID | 26240937 | ||
建物の情報
| 建物名 | ファーストレジデンス栄 | ||
|---|---|---|---|
| 所在地 | 愛知県名古屋市中区新栄 | ||
| 交通 | 地下鉄名城線 矢場町駅 徒歩11分 地下鉄東山線 新栄町駅(愛知) 徒歩13分 地下鉄東山線 栄駅(名古屋) 徒歩15分 | ||
| 階数 | 15階建 | 総戸数 | 84戸 |
| 築年月 | 2018年03月 / 築9年 | エレベーター | あり |
| 駐車場 | 空有 23100円 | バイク置き場 | あり |
| 駐輪場 | あり | 管理人/管理会社 | - |
| 周辺環境 | その他 ローソン(コンビニ)まで214m その他 コメダ珈琲店東桜武平通店(飲食店)まで1202m その他 サブウェイ 栄ブロッサ店(飲食店)まで1398m その他 マクドナルド 栄オアシス21店(飲食店)まで1133m その他 スギドラッグ 東新町店(ドラッグストア)まで449m | ||
| 建物種別 | マンション | 建物構造 | RC(鉄筋コンクリート) |
この部屋の取扱い不動産会社
| 会社名 | いい部屋ネット大東建託リーシング(株)中村公園店(SUUMO経由) | ||
|---|---|---|---|
| 所在地 | 愛知県名古屋市中村区豊国通1-2 中央ビル2階 | 交通 | - |
| 営業時間 | 10:00~12:30 13:30~18:00 | 定休日 | 火・水 |
| 免許番号 | 国土交通大臣9120 | 取引態様 | 仲介 |
| 不動産会社管理番号 | 100493896886 | 当社管理番号 | 89 |
| 所属団体 | (公財)日本賃貸住宅管理協会会員 | ||
| 公正取引協議会 | (公社)首都圏不動産公正取引協議会加盟 | ||
| 取扱い物件情報 | 物件詳細へ | ||
※各種情報と現状に差異がある場合は、現状優先となります。問い合わせをすることで、より詳しい条件、情報を確認する事ができます。
提供:いい部屋ネット大東建託リーシング(株)中村公園店(SUUMO経由)
この物件が気になったら掲載期限まであと12日
ファーストレジデンス栄に条件(家賃・エリア)が近い物件一覧
| 写真 | 家賃 管理費等 | 敷金 礼金 | 間取り 専有面積 | 築年数 | 最寄り駅 所在地 | キープ | 詳細 |
|---|---|---|---|---|---|---|---|
マンション GRANDUKE千代田REGARIA(1LDK/7階) | |||||||
![]() | 10.65万円 8,500円 | なし なし | 1LDK 42.72m2 | 築5年 | 名古屋市名城線 東別院駅 徒歩8分 名古屋市鶴舞線 上前津駅 徒歩14分 名古屋市名城線 上前津駅 徒歩15分 愛知県名古屋市中区千代田4丁目 | 詳細を見る | |
マンション プレサンス上前津ディアシス(1LDK/10階) | |||||||
![]() | 8.77万円 8,880円 | なし 8.77万円 | 1LDK 32.3m2 | 築1年 | 名古屋市鶴舞線 上前津駅 徒歩4分 名古屋市名城線 上前津駅 徒歩4分 中央本線 鶴舞駅 徒歩17分 愛知県名古屋市中区上前津1丁目 | 詳細を見る | |
マンション さくらHILLS NISHIKI PLATINUM RESIDENCE(1DK/8階) | |||||||
![]() | 9.5万円 9,500円 | なし 9.5万円 | 1DK 29.39m2 | 築7年 | 名古屋市鶴舞線 伏見駅(愛知) 徒歩1分 名古屋市桜通線 丸の内駅(愛知) 徒歩4分 名古屋市東山線 栄駅(名古屋) 徒歩7分 愛知県名古屋市中区錦2丁目 | 詳細を見る | |
マンション FIRST RESIDENCE SAKAE(1LDK/8階) | |||||||
![]() | 14.1万円 7,000円 | なし なし | 1LDK 48.28m2 | 築9年 | 名古屋市名城線 矢場町駅 徒歩9分 名古屋市東山線 栄駅(名古屋) 徒歩10分 名古屋市東山線 新栄町駅(愛知) 徒歩13分 愛知県名古屋市中区新栄1丁目 | 詳細を見る | |
マンション コンセール東桜(2LDK/1階) | |||||||
![]() | 11.1万円 1.2万円 | なし 11.1万円 | 2LDK 55.15m2 | 築6年 | 地下鉄桜通線 高岳駅 徒歩5分 地下鉄東山線 新栄町駅(愛知) 徒歩6分 地下鉄名城線 栄駅(名古屋) 徒歩12分 愛知県名古屋市東区東桜 | 詳細を見る | |
マンション MAXIV大須観音(2LDK/13階) | |||||||
![]() | 12.15万円 1.2万円 | なし なし | 2LDK 43.29m2 | 築1年 | 名鉄名古屋本線 山王駅(愛知) 徒歩11分 名古屋市鶴舞線 大須観音駅 徒歩15分 東海道本線 尾頭橋駅 徒歩15分 愛知県名古屋市中区松原3丁目 | 詳細を見る | |
マンション アドバンス名古屋ブランシュ(1LDK/8階) | |||||||
![]() | 8.86万円 7,400円 | なし 17.72万円 | 1LDK 31.98m2 | 築2年 | 中央本線 鶴舞駅 徒歩8分 名古屋市鶴舞線 鶴舞駅 徒歩10分 名古屋市名城線 矢場町駅 徒歩15分 愛知県名古屋市中区新栄1丁目 | 詳細を見る | |
マンション プレサンス ロジェ 栄三丁目(1SLDK/4階) | |||||||
![]() | 15.038万円 1.162万円 | なし 16.2万円 | 1SLDK 54.9m2 | 築3年 | 名古屋市名城線 矢場町駅 徒歩7分 名古屋市鶴舞線 大須観音駅 徒歩10分 名古屋市東山線 伏見駅(愛知) 徒歩14分 愛知県名古屋市中区栄3丁目 | 詳細を見る | |






