賃貸マンション
ビレッジハウス羽後2号棟の賃貸物件情報(3DK/5階)
| 家賃 | 管理費等 | 敷金 | 礼金 | 間取り | 専有面積 |
|---|---|---|---|---|---|
| 2.56万円 | なし | なし | なし | 3DK | 53.08m2 |
入居決定でお祝い金最大100,000円
- 保証金
- -
- 償却・敷引
- -
- 築年数
- 築43年
- 所在階
- 5階
- 向き
- 南
Point
いちのせき不動産限定特典!家賃1ヶ月分&仲介手数料無料+初期費用から【4万円値引き】来店不要・スマホ契約対応。初期費用を抑えたい方におすすめです。
提供:(株)カシータ横手店 横手賃貸管理センター(SUUMO経由)

詳細情報 ビレッジハウス羽後2号棟
物件紹介
ビレッジハウス羽後2号棟はJR奥羽本線下湯沢駅から徒歩126分にあるマンションです。
このお部屋は2階以上に位置しているので、通行人や周囲の住人からの視線が気になりにくく、防犯面でも安心です。
人気の南向き・フローリングのお部屋。角部屋でもあるため、周囲の居住者の生活音も気になりにくい場所です。キッチンはシステムキッチン仕様になっていますので、お料理好きの方にもぴったり。また、バス・トイレは別で、のんびりお風呂タイムも楽しめるでしょう。
通信設備面では、インターネット接続が可能です(別途工事、契約料が必要な場合あり)。
このお部屋は2階以上に位置しているので、通行人や周囲の住人からの視線が気になりにくく、防犯面でも安心です。
人気の南向き・フローリングのお部屋。角部屋でもあるため、周囲の居住者の生活音も気になりにくい場所です。キッチンはシステムキッチン仕様になっていますので、お料理好きの方にもぴったり。また、バス・トイレは別で、のんびりお風呂タイムも楽しめるでしょう。
通信設備面では、インターネット接続が可能です(別途工事、契約料が必要な場合あり)。
お金・契約の情報
※「-」と表示されているものは、実際は料金が発生するものもございます。詳細はお問い合わせください。
| 家賃 | 2.56万円 | 管理費・共益費 | なし |
|---|---|---|---|
| 敷金 | なし | 礼金 | なし |
| フリーレント | あり | ||
| 入居決定でお祝い金最大100,000円 | |||
| 保証金 | - | 償却・敷引 | - |
| 住宅保険料 | - | 更新料 | - |
| 契約形態 | - | 契約期間 | - |
| 入居・引渡期間 | 即時 | 現況 | - |
| 契約備考 | 巡回管理/仲介手数料なし!初期費用を抑えたい方におすすめのお部屋です。ご来店不要で、スマートフォンからのご契約も可能です。※退去時にクリーニング費用がかかります。※短期解約の場合は違約金が発生いたします。詳細はお気軽にお問い合わせください。【初期費用例】1ヶ月目の家賃+2ヶ月目の家賃+保険料10000円(2年)-値引き40000円=初期費用 退去時にハウスクリーニング費64,226円の精算が有ります。 3DK 単身者可/二人入居可/子供可/事務所利用不可/ルームシェア相談/フリーレント1ヶ月3ヶ月目の家賃無料。 損保【1万円2年】 バストイレ別、バルコニー、エアコン、ガスコンロ対応、室内洗濯置、シューズボックス、システムキッチン、南向き、追焚機能浴室、角住戸、温水洗浄便座、洗面所独立、駐輪場、光ファイバー、最上階、オートバス、保証人不要、駐車2台可、バイク置場、フリーレント、ルームシェア相談、南面2室、バス停徒歩3分以内、敷地内ごみ置き場、平面駐車場、自走式駐車場、日勤管理、プロパンガス、南面バルコニー、高速ネット対応、リノベーション、IT重説対応物件、高齢者歓迎 | ||
部屋の情報
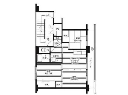
| 間取り | 3DK | 専有面積 | 53.08m2 |
|---|---|---|---|
| 所在階 / 向き | 5階 / 南 | バルコニー面積 | - |
| 水道 / ガス | - | ||
| 設備 | バス・トイレ別、2階以上、追い焚き、インターネット対応、システムキッチン、エアコン、温水洗浄便座、南向き、角部屋、バルコニー、洗髪洗面化粧台、コンロ:ガス、洗濯機:室内 | ||
| 当社物件ID | 159930303 | ||
建物の情報
| 建物名 | ビレッジハウス羽後2号棟 | ||
|---|---|---|---|
| 所在地 | 秋田県雄勝郡羽後町西馬音内堀回下岩本 | ||
| 交通 | JR奥羽本線 湯沢駅 バス乗車時間:6分 最寄りバス停で下車 徒歩5分 | ||
| 階数 | 5階建 | 総戸数 | 80戸 |
| 築年月 | 1983年10月 / 築43年 | エレベーター | - |
| 駐車場 | 空有 2200円/駐2台可 | バイク置き場 | あり |
| 駐輪場 | あり | 管理人/管理会社 | - |
| 周辺環境 | その他 マックスバリュ西馬音内店(スーパー)まで1419m その他 ローソン羽後南西馬音内店(コンビニ)まで1675m その他 セブンイレブン羽後西馬音内店(コンビニ)まで1679m その他 ツルハドラッグ羽後店(ドラッグストア)まで1366m その他 薬王堂秋田羽後店(ドラッグストア)まで1641m その他 DCM羽後店(ホームセンター)まで1425m | ||
| 建物種別 | マンション | 建物構造 | RC(鉄筋コンクリート) |
この部屋の取扱い不動産会社
| 会社名 | (株)いちのせき不動産(SUUMO経由) | ||
|---|---|---|---|
| 所在地 | 岩手県一関市字機織山 194-8 | 交通 | - |
| 営業時間 | 9:00~17:00 土日もご内見OKです。 | 定休日 | 土曜・日曜・祝日 |
| 免許番号 | 岩手県知事2415 | 取引態様 | 仲介 |
| 不動産会社管理番号 | 100474049264 | 当社管理番号 | 89 |
| 所属団体 | (一社)岩手県宅地建物取引業協会会員 | ||
| 公正取引協議会 | 東北地区不動産公正取引協議会加盟 | ||
| 取扱い物件情報 | 物件詳細へ | ||
※各種情報と現状に差異がある場合は、現状優先となります。問い合わせをすることで、より詳しい条件、情報を確認する事ができます。
提供:(株)いちのせき不動産(SUUMO経由)
この物件が気になったら掲載期限まであと7日
ビレッジハウス羽後2号棟に条件(家賃・エリア)が近い物件一覧
| 写真 | 家賃 管理費等 | 敷金 礼金 | 間取り 専有面積 | 築年数 | 最寄り駅 所在地 | キープ | 詳細 |
|---|---|---|---|---|---|---|---|
アパート ラ シフォン(ワンルーム/2階) | |||||||
![]() | 3.5万円 2,000円 | なし なし | ワンルーム 29m2 | 築50年 | 奥羽本線 横手駅 徒歩3分 秋田県横手市寿町 | 詳細を見る | |
アパート コーポ高長(2DK/1階) | |||||||
![]() | 3.5万円 なし | なし なし | 2DK 39.69m2 | 築33年 | JR奥羽本線 下湯沢駅 徒歩5分 秋田県湯沢市岩崎南四条 | 詳細を見る | |
アパート イエローグリーン(ワンルーム/2階) | |||||||
![]() | 2.9万円 2,000円 | なし なし | ワンルーム 22.2m2 | 築36年 | JR羽越本線 羽後本荘駅 徒歩33分 秋田県由利本荘市水林 | 詳細を見る | |
アパート フレッシュハイツ(1K/1階) | |||||||
![]() | 3万円 2,000円 | なし なし | 1K 23m2 | 築35年 | 秋田県由利本荘市川口字後野 | 詳細を見る | |
マンション ビレッジハウス石脇1号棟(2DK/3階) | |||||||
![]() | 3.39万円 なし | なし なし | 2DK 33.61m2 | 築51年 | JR羽越本線 羽後本荘駅 徒歩55分 由利高原鉄道 薬師堂駅(秋田) 徒歩65分 JR羽越本線 西目駅 徒歩92分 秋田県由利本荘市石脇田尻 | 詳細を見る | |
アパート メゾンこまつ(1K/1階) | |||||||
![]() | 3.5万円 3,000円 | なし なし | 1K 26.44m2 | 築29年 | 羽越本線 羽後本荘駅 徒歩10分 秋田県由利本荘市中梵天 | 詳細を見る | |
アパート COURTパンプトン(1DK/1階) | |||||||
![]() | 3.5万円 3,000円 | なし なし | 1DK 33.12m2 | 築37年 | 奥羽本線 横手駅 徒歩12分 秋田県横手市婦気大堤字谷地添 | 詳細を見る | |








