賃貸アパート
DーROOM銀杏町IIの賃貸物件情報(1LDK/2階)
| 家賃 | 管理費等 | 敷金 | 礼金 | 間取り | 専有面積 |
|---|---|---|---|---|---|
| 8万円 | 5,500円 | なし | なし | 1LDK | 42.13m2 |
入居決定でお祝い金最大100,000円
- 保証金
- -
- 償却・敷引
- -
- 築年数
- 築1年
- 所在階
- 2階
- 向き
- 南東
Point
ご来店不要でオンライン内見・オンライン契約も可★全物件の初期費用クレジット払いも承ります★費用を抑えたい方、仙台市のお部屋探しは仙台駅近くのハウスコムFC仙台東口店へお気軽にご相談ください♪
提供:ハウスコムFC仙台東口店(株)Ys8(SUUMO経由)

詳細情報 DーROOM銀杏町II
物件紹介
DーROOM銀杏町IIはJR仙石線陸前原ノ町駅から徒歩6分にあり、駅近で通勤通学に便利なアパートです。
このお部屋は2階以上に位置しているので、通行人や周囲の住人からの視線が気になりにくく、防犯面でも安心。建物のエントランスはオートロックがついており、インターホンにはTVモニタもついているため、相手の顔を確認してから来客対応することができます。
人気の南向きのお部屋。また、フローリングなのでお掃除もラクラク。浴室乾燥機付きで、雨の日でもお洗濯は問題ありません。
通信設備面では、インターネットが無料で使えるので、月々の出費を抑えられるのも魅力です。また、BSアンテナ・CSアンテナもありますので、おうち時間も充実するでしょう(別途工事、BS・CSの契約料等が必要な場合あり)。
共用部には宅配ボックスが設定されているので、不在の時にも荷物を受け取ることができます。
このお部屋は2階以上に位置しているので、通行人や周囲の住人からの視線が気になりにくく、防犯面でも安心。建物のエントランスはオートロックがついており、インターホンにはTVモニタもついているため、相手の顔を確認してから来客対応することができます。
人気の南向きのお部屋。また、フローリングなのでお掃除もラクラク。浴室乾燥機付きで、雨の日でもお洗濯は問題ありません。
通信設備面では、インターネットが無料で使えるので、月々の出費を抑えられるのも魅力です。また、BSアンテナ・CSアンテナもありますので、おうち時間も充実するでしょう(別途工事、BS・CSの契約料等が必要な場合あり)。
共用部には宅配ボックスが設定されているので、不在の時にも荷物を受け取ることができます。
お金・契約の情報
※「-」と表示されているものは、実際は料金が発生するものもございます。詳細はお問い合わせください。
| 家賃 | 8万円 | 管理費・共益費 | 5,500円 |
|---|---|---|---|
| 敷金 | なし | 礼金 | なし |
| 入居決定でお祝い金最大100,000円 | |||
| 保証金 | - | 償却・敷引 | - |
| 住宅保険料 | - | 更新料 | - |
| 保証会社利用 | 必須 | 保証会社名 | - |
| 保証会社費用 | - | 保証会社備考 | 保証会社利用必 イントラスト初回保証料35000円、月額保証料賃料等総額の1%+800円/月 |
| 契約形態 | - | 契約期間 | - |
| 入居・引渡期間 | 即時 | 現況 | - |
| 契約備考 | 1LDK 普通借家2年 エアコン、クロゼット、フローリング、シャワー付洗面台、TVインターホン、浴室乾燥機、オートロック、室内洗濯置、陽当り良好、追焚機能浴室、温水洗浄便座、脱衣所、洗面所独立、宅配ボックス、即入居可、2面採光、BS・CS、対面式キッチン、防犯カメラ、IHクッキングヒーター、CS、ネット使用料不要、築2年以内、未入居、3駅以上利用可、駅徒歩10分以内、東南向き、都市ガス、BS、敷金・礼金不要、IT重説対応物件、初期費用カード決済可 | ||
部屋の情報
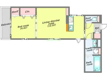
| 間取り | 1LDK | 専有面積 | 42.13m2 |
|---|---|---|---|
| 所在階 / 向き | 2階 / 南東 | バルコニー面積 | - |
| 水道 / ガス | - | ||
| 設備 | 2階以上、オートロック、テレビドアホン、宅配ボックス、浴室乾燥機、追い焚き、インターネット対応、エアコン、温水洗浄便座、南向き、フローリング、洗髪洗面化粧台、コンロ:IH、CSアンテナ、BSアンテナ、インターネット使用料無料、洗濯機:室内 | ||
| 当社物件ID | 159383388 | ||
建物の情報
| 建物名 | DーROOM銀杏町II | ||
|---|---|---|---|
| 所在地 | 宮城県仙台市宮城野区銀杏町 | ||
| 交通 | JR仙石線 陸前原ノ町駅 徒歩6分 JR仙石線 宮城野原駅 徒歩8分 JR仙石線 苦竹駅 徒歩16分 | ||
| 階数 | 3階建 | 総戸数 | - |
| 築年月 | 2025年08月 / 築1年 | エレベーター | - |
| 駐車場 | なし | バイク置き場 | - |
| 駐輪場 | - | 管理人/管理会社 | - |
| 周辺環境 | その他 ファミリーマート仙台銀杏町店(コンビニ)(コンビニ)まで111m その他 ツルハドラッグ仙台原町店(ドラッグストア)(ドラッグストア)まで373m その他 仙台市宮城野区役所(役所)(役所)まで421m その他 ローソン仙台宮城野二丁目店(コンビニ)(コンビニ)まで440m その他 セブンイレブン仙台原町店(コンビニ)(コンビニ)まで695m その他 仙台国立病院前郵便局(郵便局)(郵便局)まで767m | ||
| 建物種別 | アパート | 建物構造 | 軽量鉄骨造 |
この部屋の取扱い不動産会社
| 会社名 | ハウスコムFC仙台東口店(株)Ys8(SUUMO経由) | ||
|---|---|---|---|
| 所在地 | 宮城県仙台市宮城野区榴岡4-12-2オダシマビル3F | 交通 | - |
| 営業時間 | 10:00~18:00 | 定休日 | 水曜日 |
| 免許番号 | 宮城県知事7082 | 取引態様 | 仲介 |
| 不動産会社管理番号 | 100474225697 | 当社管理番号 | 89 |
| 取扱い物件情報 | 物件詳細へ | ||
※各種情報と現状に差異がある場合は、現状優先となります。問い合わせをすることで、より詳しい条件、情報を確認する事ができます。
提供:ハウスコムFC仙台東口店(株)Ys8(SUUMO経由)
この物件が気になったら掲載期限まであと3日
DーROOM銀杏町IIに条件(家賃・エリア)が近い物件一覧
| 写真 | 家賃 管理費等 | 敷金 礼金 | 間取り 専有面積 | 築年数 | 最寄り駅 所在地 | キープ | 詳細 |
|---|---|---|---|---|---|---|---|
アパート サニーセトル拾号館(2LDK/2階) | |||||||
![]() | 6.75万円 1,800円 | なし 6.75万円 | 2LDK 57.64m2 | 築11年 | 東北本線 岩切駅 徒歩14分 宮城県仙台市宮城野区岩切字観音前 | 詳細を見る | |
アパート SHINE-C(1LDK/2階) | |||||||
![]() | 5.4万円 1,500円 | なし なし | 1LDK 42.37m2 | 築12年 | 宮城県黒川郡大和町吉岡まほろば | 詳細を見る | |
マンション ビレッジハウス仙台鶴ケ谷五丁目2号棟(3K/3階) | |||||||
![]() | 4.87万円 なし | なし なし | 3K 43.34m2 | 築54年 | 宮城県仙台市宮城野区鶴ケ谷 | 詳細を見る | |
アパート レオパレス山崎(1K/2階) | |||||||
![]() | 5.4万円 4,000円 | なし 5.4万円 | 1K 20.28m2 | 築20年 | 宮城県仙台市宮城野区岩切1丁目 | 詳細を見る | |
アパート メゾン・サントウC棟(2LDK/1階) | |||||||
![]() | 6.55万円 1,700円 | 13.1万円 なし | 2LDK 55.72m2 | 築20年 | JR東北本線 名取駅 徒歩10分 宮城県名取市手倉田堰根 | 詳細を見る | |
アパート ビビクレスト(1K/1階) | |||||||
![]() | 4.8万円 4,000円 | なし なし | 1K 20.04m2 | 築1年 | JR仙石線 福田町駅 徒歩5分 JR仙石線 陸前高砂駅 徒歩14分 JR仙石線 小鶴新田駅 徒歩29分 宮城県仙台市宮城野区福田町 | 詳細を見る | |
アパート メゾンカセ・SK-II(1LDK/1階) | |||||||
![]() | 6.8万円 2,000円 | 13.6万円 6.8万円 | 1LDK 40.57m2 | 築1年 | JR東北本線 利府駅 徒歩24分 JR東北本線 塩釜駅 徒歩29分 JR東北本線 新利府駅 徒歩32分 宮城県宮城郡利府町加瀬十三本塚 | 詳細を見る | |




/105x80-f1-q70-wp1)



