賃貸マンション
プライムメゾン浅草イーストの賃貸物件情報(1K/2階)
| 家賃 | 管理費等 | 敷金 | 礼金 | 間取り | 専有面積 |
|---|---|---|---|---|---|
| 13万円 | 1万円 | 13万円 | なし | 1K | 25.78m2 |
入居決定でお祝い金最大100,000円
- 保証金
- -
- 償却・敷引
- -
- 築年数
- 築4年
- 所在階
- 2階
- 向き
- 西
- 交通
- 東京メトロ銀座線 浅草駅(東武・都営・メトロ) 徒歩8分
つくばエクスプレス 浅草駅(つくばEXP) 徒歩8分
都営大江戸線 蔵前駅 徒歩9分
- 所在地
- 東京都墨田区本所
プライムメゾン浅草イースト
[地図を表示]
Point
室内見学承ります・お客様のご都合に合わせてオンラインまたはお近くの店舗でご提案可・初期費用分割払い可・クレジットカード利用可・引越業者割引・初期費用のお見積や入居日のご相談もお気軽にお問合せください
提供:(株)イチイ国際部(SUUMO経由)

詳細情報 プライムメゾン浅草イースト
物件紹介
プライムメゾン浅草イーストは東京メトロ銀座線浅草駅から徒歩8分にあり、駅近で通勤通学に便利なマンションです。
このお部屋は2階以上に位置しているので、通行人や周囲の住人からの視線が気になりにくく、防犯面でも安心。建物のエントランスはオートロックがついており、インターホンにはTVモニタもついているため、相手の顔を確認してから来客対応することができます。
フローリングのお部屋なのでお掃除もラクラク。キッチンはシステムキッチン仕様になっていますので、お料理好きの方にもぴったり。バス・トイレは別なので、のんびりお風呂タイムも楽しめるでしょう。また、雨の日でも浴室乾燥機を使えば、お洗濯も問題ありません。
通信設備面では、インターネットが無料で使えるので、月々の出費を抑えられるのも魅力です(別途工事等が必要な場合あり)。
建物にはエレベーターがついているので、重い荷物があっても安心。共用部には宅配ボックスが設定されているので、不在の時にも荷物を受け取ることができます。
このお部屋は2階以上に位置しているので、通行人や周囲の住人からの視線が気になりにくく、防犯面でも安心。建物のエントランスはオートロックがついており、インターホンにはTVモニタもついているため、相手の顔を確認してから来客対応することができます。
フローリングのお部屋なのでお掃除もラクラク。キッチンはシステムキッチン仕様になっていますので、お料理好きの方にもぴったり。バス・トイレは別なので、のんびりお風呂タイムも楽しめるでしょう。また、雨の日でも浴室乾燥機を使えば、お洗濯も問題ありません。
通信設備面では、インターネットが無料で使えるので、月々の出費を抑えられるのも魅力です(別途工事等が必要な場合あり)。
建物にはエレベーターがついているので、重い荷物があっても安心。共用部には宅配ボックスが設定されているので、不在の時にも荷物を受け取ることができます。
お金・契約の情報
※「-」と表示されているものは、実際は料金が発生するものもございます。詳細はお問い合わせください。
| 家賃 | 13万円 | 管理費・共益費 | 1万円 |
|---|---|---|---|
| 敷金 | 13万円 | 礼金 | なし |
| フリーレント | あり | ||
| 入居決定でお祝い金最大100,000円 | |||
| 保証金 | - | 償却・敷引 | - |
| 住宅保険料 | - | 更新料 | - |
| 保証会社利用 | 必須 | 保証会社名 | - |
| 保証会社費用 | - | 保証会社備考 | 保証会社利用必 初回:33000円~ |
| 契約形態 | - | 契約期間 | - |
| 入居・引渡期間 | 相談 | 現況 | - |
| 契約備考 | 当物件は「住まいのリライフ」で取り扱っております。リライフは首都圏24店舗のネットワークで豊富な物件情報をお客様へご提供します。当物件に類似した未公開物件なども合わせてご提案可能です。お気軽にお問合せください。違約金有:1年未満賃料1ヶ月 合計3.41万円(内訳:鍵交換代金2.75万円駐輪場2年間一括(初回のみ)0.66万円) バイク置場(月額)0.66万円 1K フリーレント1ヶ月フリーレント付き(賃料のみ)フリーレント違約金有(6カ月未満:家賃免除相当額) 損保【要】 バストイレ別、バルコニー、エアコン、ガスコンロ対応、クロゼット、フローリング、TVインターホン、浴室乾燥機、オートロック、室内洗濯置、シューズボックス、システムキッチン、追焚機能浴室、温水洗浄便座、脱衣所、エレベーター、洗面所独立、2口コンロ、駐輪場、宅配ボックス、防犯カメラ、オートバス、保証人不要、バイク置場、フリーレント、24時間換気システム、複層ガラス、始発駅、3駅以上利用可、3沿線以上利用可、敷地内ごみ置き場、平面駐車場、自走式駐車場、都市ガス、玄関収納、LAN、保証会社利用可、初期費用カード決済可 | ||
部屋の情報
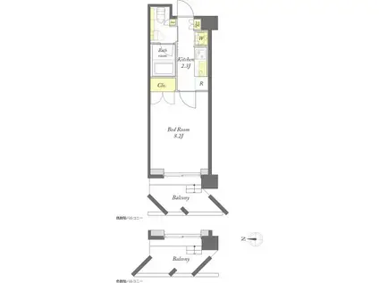
| 間取り | 1K | 専有面積 | 25.78m2 |
|---|---|---|---|
| 所在階 / 向き | 2階 / 西 | バルコニー面積 | - |
| 水道 / ガス | - | ||
| 設備 | バス・トイレ別、2階以上、オートロック、テレビドアホン、宅配ボックス、浴室乾燥機、追い焚き、インターネット対応、システムキッチン、エアコン、エレベーター、温水洗浄便座、バルコニー、フローリング、洗髪洗面化粧台、2口コンロ、コンロ:ガス、洗濯機:室内 | ||
| 当社物件ID | 117652937 | ||
建物の情報
| 建物名 | プライムメゾン浅草イースト | ||
|---|---|---|---|
| 所在地 | 東京都墨田区本所 | ||
| 交通 | 東京メトロ銀座線 浅草駅(東武・都営・メトロ) 徒歩8分 つくばエクスプレス 浅草駅(つくばEXP) 徒歩8分 都営大江戸線 蔵前駅 徒歩9分 | ||
| 階数 | 7階建 | 総戸数 | 49戸 |
| 築年月 | 2022年06月 / 築4年 | エレベーター | あり |
| 駐車場 | なし 平置駐 | バイク置き場 | あり |
| 駐輪場 | あり | 管理人/管理会社 | - |
| 周辺環境 | その他 サミットストア 両国石原店(スーパー)まで439m その他 まいばすけっと本所3丁目店(スーパー)まで448m その他 セブンイレブン墨田本所2丁目店(コンビニ)まで202m その他 ローソンストア100東駒形二丁目店(コンビニ)まで209m その他 どらっぐぱぱす東駒形店(ドラッグストア)まで557m その他 ホワイト急便本所3丁目店(その他)まで273m | ||
| 建物種別 | マンション | 建物構造 | RC(鉄筋コンクリート) |
この部屋の取扱い不動産会社
| 会社名 | (株)リライフ浅草橋店(SUUMO経由) | ||
|---|---|---|---|
| 所在地 | 東京都台東区柳橋1-13-5 大島屋浅草橋ビル2階 | 交通 | - |
| 営業時間 | 10:00~20:00 | 定休日 | なし |
| 免許番号 | 国土交通大臣10792 | 取引態様 | 仲介 |
| 不動産会社管理番号 | 100480090670 | 当社管理番号 | 89 |
| 所属団体 | (公社)東京都宅地建物取引業協会会員 | ||
| 公正取引協議会 | (公社)首都圏不動産公正取引協議会加盟 | ||
| 取扱い物件情報 | 物件詳細へ | ||
※各種情報と現状に差異がある場合は、現状優先となります。問い合わせをすることで、より詳しい条件、情報を確認する事ができます。
提供:(株)リライフ浅草橋店(SUUMO経由)
この物件が気になったら掲載期限まであと10日
プライムメゾン浅草イーストに条件(家賃・エリア)が近い物件一覧
| 写真 | 家賃 管理費等 | 敷金 礼金 | 間取り 専有面積 | 築年数 | 最寄り駅 所在地 | キープ | 詳細 |
|---|---|---|---|---|---|---|---|
マンション プレール・ドゥーク両国Ⅲ(1K/4階) | |||||||
![]() | 11.3万円 1万円 | なし なし | 1K 25.95m2 | 築3年 | 東京都大江戸線 両国駅 徒歩8分 総武・中央緩行線 両国駅 徒歩13分 総武本線 錦糸町駅 徒歩15分 東京都墨田区緑3丁目 | 詳細を見る | |
マンション BRILLIA IST 上野御徒町(1K/10階) | |||||||
![]() | 12.2万円 1万円 | 12.2万円 12.2万円 | 1K 26.06m2 | 築9年 | 東京都大江戸線 新御徒町駅 徒歩5分 つくばエクスプレス 新御徒町駅 徒歩5分 東京地下鉄日比谷線 仲御徒町駅 徒歩7分 東京都台東区台東3丁目 | 詳細を見る | |
マンション ARTESSIMO ESK(1K/8階) | |||||||
![]() | 10.7万円 1万円 | なし 10.7万円 | 1K 25.21m2 | 築3年 | 東武伊勢崎・大師線 曳舟駅 徒歩6分 京成電鉄押上線 京成曳舟駅 徒歩9分 東京地下鉄半蔵門線 押上駅 徒歩13分 東京都墨田区東向島1丁目 | 詳細を見る | |
マンション リブリ・曳舟(1LDK/2階) | |||||||
![]() | 13万円 3,000円 | なし 19.5万円 | 1LDK 34.96m2 | 築1年 | 東武伊勢崎・大師線 曳舟駅 徒歩13分 東武伊勢崎・大師線 東向島駅 徒歩13分 京成電鉄押上線 京成曳舟駅 徒歩16分 東京都墨田区堤通1丁目 | 詳細を見る | |
マンション FIRSTSTAGE ASAKUSA BUILDING(1LDK/4階) | |||||||
![]() | 13.8万円 5,000円 | 13.8万円 なし | 1LDK 42.71m2 | 築34年 | つくばエクスプレス 新御徒町駅 徒歩6分 東京都大江戸線 新御徒町駅 徒歩6分 東京地下鉄銀座線 稲荷町駅(東京) 徒歩8分 東京都台東区元浅草3丁目 | 詳細を見る | |
マンション HF上野レジデンスイースト(ワンルーム/15階) | |||||||
![]() | 17万円 1.1万円 | 17万円 17万円 | ワンルーム 35.69m2 | 築9年 | 東京地下鉄銀座線 稲荷町駅(東京) 徒歩2分 山手線 上野駅 徒歩7分 東京地下鉄日比谷線 上野駅 徒歩7分 東京都台東区東上野5丁目 | 詳細を見る | |
マンション マガンダ(1DK/4階) | |||||||
![]() | 10.6万円 7,000円 | 5.3万円 15.9万円 | 1DK 32.35m2 | 築13年 | 東京地下鉄日比谷線 南千住駅 徒歩7分 東京地下鉄日比谷線 三ノ輪駅 徒歩12分 東京都荒川線 三ノ輪橋駅 徒歩15分 東京都台東区清川2丁目 | 詳細を見る | |
マンション N-FLATS三ノ輪(1LDK/13階) | |||||||
![]() | 20.1万円 1.5万円 | 20.1万円 なし | 1LDK 51.66m2 | 築3年 | 東京都荒川線 三ノ輪橋駅 徒歩1分 東京地下鉄日比谷線 三ノ輪駅 徒歩4分 東京地下鉄日比谷線 南千住駅 徒歩9分 東京都荒川区南千住1丁目 | 詳細を見る | |








