賃貸マンション
コスモ油津電器本社ビルの賃貸物件情報(ワンルーム/2階)
| 家賃 | 管理費等 | 敷金 | 礼金 | 間取り | 専有面積 |
|---|---|---|---|---|---|
| 4.9万円 | 4,000円 | なし | なし | ワンルーム | 40.9m2 |
入居決定でお祝い金最大100,000円
Point
まずはお問い合わせ!
不動産会社は街のプロ、あなたに合った物件がきっと見つかります。
提供:(株)OSHIRO不動産(SUUMO経由)

詳細情報 コスモ油津電器本社ビル
物件紹介
コスモ油津電器本社ビルはJR日南線日南駅から徒歩4分にあり、駅近で通勤通学に便利なマンションです。
このお部屋は2階以上に位置しているので、通行人や周囲の住人からの視線が気になりにくく、防犯面でも安心。建物のエントランスはオートロックがついており、インターホンにはTVモニタもついているため、相手の顔を確認してから来客対応することができます。
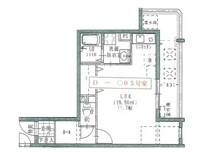
人気の南向き・フローリングのお部屋。角部屋でもあるため、周囲の居住者の生活音も気になりにくい場所です。キッチンはシステムキッチン仕様になっていますので、お料理好きの方にもぴったり。バス・トイレは別なので、のんびりお風呂タイムも楽しめるでしょう。また、雨の日でも浴室乾燥機を使えば、お洗濯も問題ありません。
通信設備面では、インターネットが無料で使えるので、月々の出費を抑えられるのも魅力です。また、CATVにも対応しているので、おうち時間も充実するでしょう(別途工事、CATVの契約料等が必要な場合あり)。
建物にはエレベーターがついているので、重い荷物があっても安心。共用部には宅配ボックスが設定されているので、不在の時にも荷物を受け取ることができます。
このお部屋は2階以上に位置しているので、通行人や周囲の住人からの視線が気になりにくく、防犯面でも安心。建物のエントランスはオートロックがついており、インターホンにはTVモニタもついているため、相手の顔を確認してから来客対応することができます。
人気の南向き・フローリングのお部屋。角部屋でもあるため、周囲の居住者の生活音も気になりにくい場所です。キッチンはシステムキッチン仕様になっていますので、お料理好きの方にもぴったり。バス・トイレは別なので、のんびりお風呂タイムも楽しめるでしょう。また、雨の日でも浴室乾燥機を使えば、お洗濯も問題ありません。
通信設備面では、インターネットが無料で使えるので、月々の出費を抑えられるのも魅力です。また、CATVにも対応しているので、おうち時間も充実するでしょう(別途工事、CATVの契約料等が必要な場合あり)。
建物にはエレベーターがついているので、重い荷物があっても安心。共用部には宅配ボックスが設定されているので、不在の時にも荷物を受け取ることができます。
お金・契約の情報
※「-」と表示されているものは、実際は料金が発生するものもございます。詳細はお問い合わせください。
| 家賃 | 4.9万円 | 管理費・共益費 | 4,000円 |
|---|---|---|---|
| 敷金 | なし | 礼金 | なし |
| 入居決定でお祝い金最大100,000円 | |||
| 保証金 | - | 償却・敷引 | - |
| 住宅保険料 | - | 更新料 | - |
| 保証会社利用 | 必須 | 保証会社名 | - |
| 保証会社費用 | - | 保証会社備考 | 保証会社利用必 保証会社:アルファ―、ひなた保証 保証料:初回のみプラン(総賃料50%~100%) 月額プラン(初回保証料総賃料30%、月額保証料総賃料2%) 保証プランにより金額が異なります。 |
| 契約形態 | - | 契約期間 | - |
| 入居・引渡期間 | 即時 | 現況 | - |
| 契約備考 | 通勤管理/契約時に退去時のクリーニング費をお預かります。 合計3万円(内訳:クリーニング費30,000円) ワンルーム 普通借家2年 損保【1.8万円2年】 バストイレ別、バルコニー、エアコン、クロゼット、シャワー付洗面台、TVインターホン、浴室乾燥機、オートロック、室内洗濯置、陽当り良好、システムキッチン、追焚機能浴室、角住戸、温水洗浄便座、脱衣所、エレベーター、洗面所独立、2口コンロ、駐輪場、宅配ボックス、CATV、即入居可、防犯カメラ、IHクッキングヒーター、オートバス、グリル付、全居室洋室、CATVインターネット、オール電化、全居室フローリング、玄関ホール、駅まで平坦、ネット使用料不要、キッチンに窓、眺望良好、24時間換気システム、浴室未使用、トイレ未使用、耐火構造、始発駅、駅徒歩5分以内、省エネルギー対策、敷地内ごみ置き場、平面駐車場、東南向き、日勤管理、ガラストップコンロ、キッチン未使用、洗面所にドア、エコキュート、天井高シューズクロゼット、敷金・礼金不要、通風良好 | ||
部屋の情報
| 間取り | ワンルーム | 専有面積 | 40.9m2 |
|---|---|---|---|
| 所在階 / 向き | 2階 / - | バルコニー面積 | 8m2 |
| 水道 / ガス | - | ||
| 設備 | バス・トイレ別、2階以上、オートロック、テレビドアホン、宅配ボックス、浴室乾燥機、追い焚き、インターネット対応、システムキッチン、エアコン、エレベーター、温水洗浄便座、南向き、角部屋、バルコニー、フローリング、洗髪洗面化粧台、オール電化、2口コンロ、コンロ:IH、CATV、インターネット使用料無料、洗濯機:室内 | ||
| 当社物件ID | 159568697 | ||
建物の情報
| 建物名 | コスモ油津電器本社ビル | ||
|---|---|---|---|
| 所在地 | 宮崎県日南市中央通 | ||
| 交通 | JR日南線 日南駅 徒歩5分 | ||
| 階数 | 5階建 | 総戸数 | - |
| 築年月 | 2025年09月 / 築1年 | エレベーター | あり |
| 駐車場 | 近隣 20m3000円 | バイク置き場 | - |
| 駐輪場 | あり | 管理人/管理会社 | - |
| 周辺環境 | その他 コープみやざき日南店(スーパー)まで546m その他 ファミリーマート日南戸高一丁目店(コンビニ)まで377m その他 セブンイレブン日南戸高2丁目店(コンビニ)まで592m その他 マクドナルド日南店(飲食店)まで246m その他 日南市役所(役所)まで174m その他 日南警察署(警察署・交番)まで310m | ||
| 建物種別 | マンション | 建物構造 | RC(鉄筋コンクリート) |
この部屋の取扱い不動産会社
| 会社名 | 合同会社三栄不動産(SUUMO経由) | ||
|---|---|---|---|
| 所在地 | 宮崎県日南市中平野1-1-8 1階 | 交通 | - |
| 営業時間 | 9:00~18:00 | 定休日 | 水曜日 |
| 免許番号 | 宮崎県知事4859 | 取引態様 | 仲介 |
| 不動産会社管理番号 | 100462594930 | 当社管理番号 | 89 |
| 所属団体 | (一社)宮崎県宅地建物取引業協会会員 | ||
| 公正取引協議会 | (一社)九州不動産公正取引協議会加盟 | ||
| 取扱い物件情報 | 物件詳細へ | ||
※各種情報と現状に差異がある場合は、現状優先となります。問い合わせをすることで、より詳しい条件、情報を確認する事ができます。
提供:合同会社三栄不動産(SUUMO経由)
この物件が気になったら掲載期限まであと9日
コスモ油津電器本社ビルに条件(家賃・エリア)が近い物件一覧
| 写真 | 家賃 管理費等 | 敷金 礼金 | 間取り 専有面積 | 築年数 | 最寄り駅 所在地 | キープ | 詳細 |
|---|---|---|---|---|---|---|---|
アパート リヴィエール清武 II(1LDK/1階) | |||||||
![]() | 6.4万円 3,000円 | なし 6.4万円 | 1LDK 44.2m2 | 新築 | JR日豊本線 清武駅 徒歩12分 JR日豊本線 加納駅(宮崎) 徒歩42分 JR日南線 南方駅(宮崎) 徒歩56分 宮崎県宮崎市清武町木原 | 詳細を見る | |
アパート レオパレス住吉ヒルズ(1K/2階) | |||||||
![]() | 6.9万円 3,500円 | なし 6.9万円 | 1K 22.35m2 | 築20年 | 日豊本線 日向住吉駅 徒歩5分 宮崎県宮崎市大字島之内 | 詳細を見る | |
アパート ペルソナ Ⅰ(1LDK/3階) | |||||||
![]() | 4.8万円 1,800円 | なし 4.8万円 | 1LDK 53.01m2 | 築11年 | 宮崎県宮崎市大字田吉 | 詳細を見る | |
アパート ラパン郡元(ワンルーム/2階) | |||||||
![]() | 4万円 なし | なし 6万円 | ワンルーム 33.53m2 | 築19年 | 宮崎県都城市郡元町 | 詳細を見る | |
マンション MS ONE(2LDK/3階) | |||||||
![]() | 6.9万円 2,000円 | なし 10.35万円 | 2LDK 58.5m2 | 築13年 | 宮崎県都城市菖蒲原町 | 詳細を見る | |
マンション オーブⅢ(1K/4階) | |||||||
![]() | 5万円 なし | なし なし | 1K 27.54m2 | 築30年 | 宮崎県宮崎市大工3丁目 | 詳細を見る | |
マンション ルオーゴ(ワンルーム/4階) | |||||||
![]() | 5.2万円 なし | 7.8万円 なし | ワンルーム 29.64m2 | 築7年 | JR日豊本線 宮崎駅 徒歩30分 宮崎県宮崎市大橋 | 詳細を見る | |
マンション 野中コーポ(3DK/1階) | |||||||
![]() | 5万円 なし | なし なし | 3DK 57m2 | 築46年 | 日南線 宮崎駅 徒歩15分 宮崎県宮崎市吉村町西中 | 詳細を見る | |








