賃貸マンション
パークアクシス亀戸中央公園の賃貸物件情報(ワンルーム/14階)
| 家賃 | 管理費等 | 敷金 | 礼金 | 間取り | 専有面積 |
|---|---|---|---|---|---|
| 12.6万円 | 1万円 | 12.6万円 | 12.6万円 | ワンルーム | 24.97m2 |
入居決定でお祝い金最大100,000円
Point
まずはお問い合わせ!
不動産会社は街のプロ、あなたに合った物件がきっと見つかります。
提供:アパマンショップ目黒西口店

詳細情報 パークアクシス亀戸中央公園
物件紹介
パークアクシス亀戸中央公園は東武亀戸線亀戸水神駅から徒歩7分にあり、駅近で通勤通学に便利なマンションです。
このお部屋は2階以上に位置しているので、通行人や周囲の住人からの視線が気になりにくく、防犯面でも安心。建物のエントランスはオートロックがついており、インターホンにはTVモニタもついているため、相手の顔を確認してから来客対応することができます。
こちらは楽器相談が可能な物件。楽器演奏をお考えの方はぜひ相談してみてください。人気の南向きのお部屋。また、フローリングなのでお掃除もラクラク。キッチンはシステムキッチン仕様になっていますので、お料理好きの方にもぴったり。バス・トイレは別なので、のんびりお風呂タイムも楽しめるでしょう。また、雨の日でも浴室乾燥機を使えば、お洗濯も問題ありません。
通信設備面では、インターネット接続が可能です。また、BSアンテナ・CSアンテナがありCATVにも対応しているので、おうち時間も充実するでしょう(別途工事、契約料が必要な場合あり)。
建物にはエレベーターがついているので、重い荷物があっても安心。共用部には宅配ボックスが設定されているので、不在の時にも荷物を受け取ることができます。また、ペット飼育の相談ができますので、あなたの大切な家族の一員も快適に暮らせるか、ぜひ確認してみてください。
コンビニまで徒歩17分の場所にあり、日用品や食料品のお買い物にも便利です。
このお部屋は2階以上に位置しているので、通行人や周囲の住人からの視線が気になりにくく、防犯面でも安心。建物のエントランスはオートロックがついており、インターホンにはTVモニタもついているため、相手の顔を確認してから来客対応することができます。
こちらは楽器相談が可能な物件。楽器演奏をお考えの方はぜひ相談してみてください。人気の南向きのお部屋。また、フローリングなのでお掃除もラクラク。キッチンはシステムキッチン仕様になっていますので、お料理好きの方にもぴったり。バス・トイレは別なので、のんびりお風呂タイムも楽しめるでしょう。また、雨の日でも浴室乾燥機を使えば、お洗濯も問題ありません。
通信設備面では、インターネット接続が可能です。また、BSアンテナ・CSアンテナがありCATVにも対応しているので、おうち時間も充実するでしょう(別途工事、契約料が必要な場合あり)。
建物にはエレベーターがついているので、重い荷物があっても安心。共用部には宅配ボックスが設定されているので、不在の時にも荷物を受け取ることができます。また、ペット飼育の相談ができますので、あなたの大切な家族の一員も快適に暮らせるか、ぜひ確認してみてください。
コンビニまで徒歩17分の場所にあり、日用品や食料品のお買い物にも便利です。
お金・契約の情報
※「-」と表示されているものは、実際は料金が発生するものもございます。詳細はお問い合わせください。
| 家賃 | 12.6万円 | 管理費・共益費 | 1万円 |
|---|---|---|---|
| 敷金 | 12.6万円 | 礼金 | 12.6万円 |
| 入居決定でお祝い金最大100,000円 | |||
| 保証金 | - | 償却・敷引 | - |
| 住宅保険料 | - | 更新料 | - |
| 保証会社利用 | 利用可 | 保証会社名 | レジデントアシスタント |
| 保証会社費用 | - | 保証会社備考 | 初回:月額賃料(共益費・駐車場料金含む)の50%、年間:9,600円 |
| 契約形態 | - | 契約期間 | 2年 |
| 入居・引渡期間 | 2026年02月中旬 | 現況 | - |
| 入居可能条件 | 楽器可、ペット可 | ||
| 契約備考 | 口座振替事務手数料 110円/鍵交換費 22000円、[退去時費用:室内清掃費 55,000円 ※故意・過失等別途実費] | ||
部屋の情報
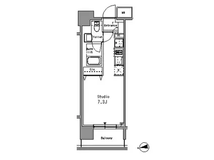
| 間取り | ワンルーム | 専有面積 | 24.97m2 |
|---|---|---|---|
| 所在階 / 向き | 14階 / 西 | バルコニー面積 | 4m2 |
| 水道 / ガス | - | ||
| 設備 | バス・トイレ別、オートロック、宅配ボックス、浴室乾燥機、インターネット対応、エレベーター、バルコニー、フローリング、CATV、CSアンテナ、BSアンテナ、洗濯機:室内 | ||
| 当社物件ID | 101124354 | ||
建物の情報
| 建物名 | パークアクシス亀戸中央公園 | ||
|---|---|---|---|
| 所在地 | 東京都江東区亀戸7丁目 | ||
| 交通 | 東武鉄道亀戸線 亀戸水神駅 徒歩8分 | ||
| 階数 | 14階建 | 総戸数 | - |
| 築年月 | 2007年11月 / 築19年 | エレベーター | あり |
| 駐車場 | - | バイク置き場 | あり |
| 駐輪場 | - | 管理人/管理会社 | - |
| 周辺環境 | 病院 五和貴江東クリニック 徒歩8分(599m) その他 亀戸水神駅 徒歩9分(679m) その他 江東亀戸五郵便局 徒歩9分(697m) その他 セブン-イレブン 亀戸昭和橋通り店 徒歩10分(742m) その他 まいばすけっと 江東亀戸5丁目店 徒歩11分(842m) その他 カメイドクロック 徒歩10分(757m) その他 セブン−イレブン亀戸駅東口店 徒歩10分(794m) その他 マックスバリュエクスプレス亀戸センタープラザ店 徒歩11分(879m) | ||
| 建物種別 | マンション | 建物構造 | RC(鉄筋コンクリート) |
この部屋の取扱い不動産会社
| 会社名 | アパマンショップ亀戸店 | ||
|---|---|---|---|
| 所在地 | 東京都江東区亀戸5丁目 2-1カメヤビル401 | 交通 | 総武・中央緩行線亀戸から徒歩1分 |
| 営業時間 | 10:00〜19:00(毎週水曜日は定休となります。) | 定休日 | 水曜日 |
| 免許番号 | 国土交通大臣(5)6971 | 取引態様 | 仲介 |
| 不動産会社管理番号 | 91369959 | 当社管理番号 | 4 |
| 所属団体 | (公社)東京都宅地建物取引業協会 | ||
| 公正取引協議会 | (公社) 首都圏不動産公正取引協議会加盟 | ||
| 取扱い物件情報 | 物件詳細へ | ||
※各種情報と現状に差異がある場合は、現状優先となります。問い合わせをすることで、より詳しい条件、情報を確認する事ができます。
提供:アパマンショップ亀戸店
この物件が気になったら掲載期限まであと13日
パークアクシス亀戸中央公園に条件(家賃・エリア)が近い物件一覧
| 写真 | 家賃 管理費等 | 敷金 礼金 | 間取り 専有面積 | 築年数 | 最寄り駅 所在地 | キープ | 詳細 |
|---|---|---|---|---|---|---|---|
マンション コンフォリア・リヴ大森西(2LDK/4階) | |||||||
![]() | 19.5万円 1.8万円 | 19.5万円 なし | 2LDK 42.19m2 | 築1年 | 京急本線 大森町駅 徒歩11分 京急本線 梅屋敷駅(東京) 徒歩16分 京急本線 平和島駅 徒歩18分 東京都大田区大森西 | 詳細を見る | |
アパート タカマルハイム(1LDK/1階) | |||||||
![]() | 11.5万円 3,000円 | 11.5万円 11.5万円 | 1LDK 34m2 | 築11年 | 東急多摩川線 武蔵新田駅 徒歩8分 東急多摩川線 下丸子駅 徒歩9分 東京都大田区下丸子2丁目 | 詳細を見る | |
一戸建て 東京地下鉄有楽町線 豊洲駅 徒歩12分 築51年(3DK) | |||||||
![]() | 13.8万円 なし | 13.8万円 13.8万円 | 3DK 64.71m2 | 築51年 | 東京地下鉄有楽町線 豊洲駅 徒歩12分 京葉線 潮見駅 徒歩20分 東京地下鉄東西線 木場駅 徒歩24分 東京都江東区枝川1丁目 | 詳細を見る | |
マンション CHART HOUSEふるはま公園(2LDK/1階) | |||||||
![]() | 17.6万円 4,000円 | 17.6万円 35.2万円 | 2LDK 52.5m2 | 築6年 | 京浜急行電鉄本線 大森町駅 徒歩14分 東京モノレール羽田 昭和島駅 徒歩16分 東京都大田区大森東3丁目 | 詳細を見る | |
マンション イプセ蒲田ウエスト(ワンルーム/5階) | |||||||
![]() | 9.6万円 6,000円 | 9.6万円 9.6万円 | ワンルーム 24.15m2 | 築19年 | 東急池上線 蓮沼駅 徒歩5分 JR京浜東北線 蒲田駅 徒歩10分 京急空港線 京急蒲田駅 徒歩21分 東京都大田区東矢口 | 詳細を見る | |
マンション 菊鮨ビル(1K/3階) | |||||||
![]() | 8.5万円 3,000円 | 8.5万円 なし | 1K 22m2 | 築42年 | 京浜東北・根岸線 蒲田駅 徒歩9分 京浜急行電鉄本線 京急蒲田駅 徒歩10分 東京都大田区蒲田1丁目 | 詳細を見る | |






