賃貸アパート
清美荘の賃貸物件情報(3DK/3階)
| 家賃 | 管理費等 | 敷金 | 礼金 | 間取り | 専有面積 |
|---|---|---|---|---|---|
| 3.5万円 | なし | なし | なし | 3DK | 43.06m2 |
入居決定でお祝い金最大100,000円
Point
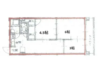
収納はシューズボックス・押入など豊富なので、広々と空間を利用することも可能です。室内設備は洗面台・バストイレ別・浴室に窓など大変充実しております。こちらの物件はアパートです。
提供:いい部屋ネット大東建託リーシング(株)岐阜店(SUUMO経由)

詳細情報 清美荘
物件紹介
このお部屋は2階以上に位置しているので、通行人や周囲の住人からの視線が気になりにくく、防犯面でも安心です。
バス・トイレ別の仕様で、のんびりお風呂タイムも楽しめます。
バス・トイレ別の仕様で、のんびりお風呂タイムも楽しめます。
お金・契約の情報
※「-」と表示されているものは、実際は料金が発生するものもございます。詳細はお問い合わせください。
| 家賃 | 3.5万円 | 管理費・共益費 | なし |
|---|---|---|---|
| 敷金 | なし | 礼金 | なし |
| 入居決定でお祝い金最大100,000円 | |||
| 保証金 | - | 償却・敷引 | - |
| 住宅保険料 | - | 更新料 | - |
| 保証会社利用 | 必須 | 保証会社名 | - |
| 保証会社費用 | - | 保証会社備考 | 保証会社利用必 初回保証料月額総賃料の50%(最低保証料20000円)、月額2.6% 初回保証料:月額賃料等の50%(最低保証料20,000円) 継続保証料:賃料口座振替の場合1,000円/月もしくは10,000円/年、賃料クレジットカード払いの場合 月額賃料等の2.6%/月 |
| 契約形態 | - | 契約期間 | - |
| 入居・引渡期間 | 即時 | 現況 | - |
| 契約備考 | 更新事務手数料22,000円賃料等月額を口座引落又は、クレジットカードでお支払い頂く際、収納手数料170円がかかります。「24時間サポート費用 330円(月額)」が必要となります。契約時に鍵セット費3,300円(税込)が必要となります。保険要加入。 合計1.65万円(内訳:サポートコール24/2年毎1.65万円) 室内清掃費用 35000円 3DK 普通借家2年 損保【要】 バストイレ別、バルコニー、室内洗濯置、シューズボックス、温水洗浄便座、押入、即入居可、礼金不要、キッチンに窓、浴室に窓、プロパンガス、敷金・礼金不要 | ||
部屋の情報
| 間取り | 3DK | 専有面積 | 43.06m2 |
|---|---|---|---|
| 所在階 / 向き | 3階 / - | バルコニー面積 | - |
| 水道 / ガス | - | ||
| 設備 | バス・トイレ別、2階以上、温水洗浄便座、バルコニー、洗濯機:室内 | ||
| 当社物件ID | 160381486 | ||
建物の情報
| 建物名 | 清美荘 | ||
|---|---|---|---|
| 所在地 | 岐阜県岐阜市正木 | ||
| 交通 | JR東海道本線 岐阜駅 バス乗車時間:20分 最寄りバス停で下車 徒歩4分 | ||
| 階数 | 4階建 | 総戸数 | - |
| 築年月 | 1971年08月 / 築55年 | エレベーター | - |
| 駐車場 | 空有 付無料 | バイク置き場 | - |
| 駐輪場 | - | 管理人/管理会社 | - |
| 周辺環境 | その他 スーパー三心(スーパー)まで1260m その他 MASA(マーサ)21(ショッピングセンター)まで298m その他 岐阜市立女子短期大学(大学・短大)まで4612m その他 岐阜薬科大学 本部学舎(大学・短大)まで2884m その他 岐阜大学(大学・短大)まで2568m その他 名鉄岐阜駅(その他)まで4983m | ||
| 建物種別 | アパート | 建物構造 | RC(鉄筋コンクリート) |
この部屋の取扱い不動産会社
| 会社名 | (株)ニッショー岐阜北支店(SUUMO経由) | ||
|---|---|---|---|
| 所在地 | 岐阜県岐阜市福光西2-9-1 | 交通 | - |
| 営業時間 | 10:00~18:00 | 定休日 | 水曜定休 |
| 免許番号 | 国土交通大臣2018 | 取引態様 | 仲介 |
| 不動産会社管理番号 | 100488551582 | 当社管理番号 | 89 |
| 所属団体 | (公社)岐阜県宅地建物取引業協会会員 | ||
| 公正取引協議会 | 東海不動産公正取引協議会加盟 | ||
| 取扱い物件情報 | 物件詳細へ | ||
※各種情報と現状に差異がある場合は、現状優先となります。問い合わせをすることで、より詳しい条件、情報を確認する事ができます。
提供:(株)ニッショー岐阜北支店(SUUMO経由)
この物件が気になったら掲載期限まであと10日
清美荘に条件(家賃・エリア)が近い物件一覧
| 写真 | 家賃 管理費等 | 敷金 礼金 | 間取り 専有面積 | 築年数 | 最寄り駅 所在地 | キープ | 詳細 |
|---|---|---|---|---|---|---|---|
マンション シティリバー(3K/3階) | |||||||
![]() | 3.9万円 3,000円 | 3.9万円 なし | 3K 49.5m2 | 築31年 | 養老鉄道養老線 美濃青柳駅 徒歩12分 岐阜県大垣市南若森 | 詳細を見る | |
マンション MIWAビル(2K/3階) | |||||||
![]() | 3.5万円 なし | なし なし | 2K 32.4m2 | 築55年 | 岐阜県岐阜市鍵屋西町 | 詳細を見る | |
アパート カーサ ヴェルデB(3DK/2階) | |||||||
![]() | 5.5万円 4,000円 | なし 5.5万円 | 3DK 50.54m2 | 築29年 | 名鉄各務原線 高田橋駅 徒歩7分 JR高山本線 長森駅 徒歩23分 岐阜県岐阜市高田 | 詳細を見る | |
アパート ル・プランタンB棟(2K/1階) | |||||||
![]() | 4.4万円 3,900円 | なし 1万円 | 2K 41.04m2 | 築23年 | 名鉄各務原線 手力駅 徒歩2分 JR高山本線 長森駅 徒歩10分 岐阜県岐阜市蔵前 | 詳細を見る | |
マンション YOUハイツⅡ(1LDK/1階) | |||||||
![]() | 3.8万円 5,000円 | なし なし | 1LDK 49.5m2 | 築32年 | 岐阜県岐阜市旦島3丁目 | 詳細を見る | |
マンション ファミール加藤(1LDK/3階) | |||||||
![]() | 4.7万円 3,900円 | なし 1万円 | 1LDK 36.58m2 | 築39年 | 名鉄各務原線 細畑駅 徒歩12分 岐阜県羽島郡岐南町八剣北6丁目 | 詳細を見る | |
アパート タニハイツ(1K/2階) | |||||||
![]() | 2.5万円 3万円 | なし なし | 1K 17.76m2 | 築30年 | 養老鉄道 東赤坂駅 徒歩18分 岐阜県大垣市三津屋町4丁目 | 詳細を見る | |
アパート メゾン・ド・伊藤III(2DK/2階) | |||||||
![]() | 4.5万円 3,000円 | なし なし | 2DK 40m2 | 築28年 | 名鉄竹鼻線 柳津駅(岐阜) 徒歩31分 JR東海道本線 西岐阜駅 徒歩41分 名鉄竹鼻線 西笠松駅 徒歩43分 岐阜県岐阜市西鶉 | 詳細を見る | |








