賃貸マンション
EL VIENT RIDE KAMINAKAZATOの賃貸物件情報(1K/1階)
| 家賃 | 管理費等 | 敷金 | 礼金 | 間取り | 専有面積 |
|---|---|---|---|---|---|
| 8万円 | 1万円 | なし | 8万円 | 1K | 26.22m2 |
入居決定でお祝い金最大100,000円
- 保証金
- 8.0万円
- 償却・敷引
- 8万円
- 築年数
- 築19年
- 所在階
- 1階
- 向き
- 北西
Point
オンラインにて申込みから契約までのお手続きも可能です。入居日が合わずにお悩みの方、契約金のお見積もりや室内写真のご要望などお気軽にお問い合わせください。初期費用の分割払いも承ります。
提供:(株)アクセス上野店(SUUMO経由)

詳細情報 EL VIENT RIDE KAMINAKAZATO
物件紹介
EL VIENT RIDE KAMINAKAZATOはJR京浜東北線上中里駅から徒歩4分にあり、駅近で通勤通学に便利なマンションです。
建物のエントランスはオートロックがついており、防犯性が高くなっています。
フローリングのお部屋なのでお掃除もラクラク。バス・トイレ別の仕様で、のんびりお風呂タイムも楽しめます。また、浴室乾燥機を使えば、雨の日でもお洗濯は問題ありません。
共用部には宅配ボックスが設定されているので、不在の時にも荷物を受け取ることができます。また、ペット飼育の相談ができますので、あなたの大切な家族の一員も快適に暮らせるか、ぜひ確認してみてください。
建物のエントランスはオートロックがついており、防犯性が高くなっています。
フローリングのお部屋なのでお掃除もラクラク。バス・トイレ別の仕様で、のんびりお風呂タイムも楽しめます。また、浴室乾燥機を使えば、雨の日でもお洗濯は問題ありません。
共用部には宅配ボックスが設定されているので、不在の時にも荷物を受け取ることができます。また、ペット飼育の相談ができますので、あなたの大切な家族の一員も快適に暮らせるか、ぜひ確認してみてください。
お金・契約の情報
※「-」と表示されているものは、実際は料金が発生するものもございます。詳細はお問い合わせください。
| 家賃 | 8万円 | 管理費・共益費 | 1万円 |
|---|---|---|---|
| 敷金 | なし | 礼金 | 8万円 |
| 入居決定でお祝い金最大100,000円 | |||
| 保証金 | 8.0万円 | 償却・敷引 | 8万円 |
| 住宅保険料 | - | 更新料 | - |
| 保証会社利用 | 必須 | 保証会社名 | - |
| 保証会社費用 | - | 保証会社備考 | 保証会社利用必 初回保証料:総賃料の50パーセント 更新保証料:10000円/年 |
| 契約形態 | - | 契約期間 | - |
| 入居・引渡期間 | 即時 | 現況 | - |
| 入居可能条件 | ペット相談 | ||
| 契約備考 | 【仲介手数料無料(0円)対象物件】初期費用の分割・クレジットカード決済可能です!お気軽にご相談下さい。ペット飼育の場合、保証金1ヶ月積み増し、退去時1ヶ月償却となります。 合計5.5万円(内訳:24hサポート1.65万円鍵交換代3.85万円) 更新料 新賃料1.00ヶ月分 1K ペット相談 普通借家2年 損保【2万円2年】 バストイレ別、バルコニー、エアコン、ガスコンロ対応、クロゼット、フローリング、浴室乾燥機、オートロック、室内洗濯置、シューズボックス、脱衣所、洗面所独立、駐輪場、宅配ボックス、外壁タイル張り、即入居可、ペット相談、分譲賃貸、仲介手数料不要、2沿線利用可、2駅利用可、3駅以上利用可、3沿線以上利用可、駅徒歩5分以内、駅徒歩10分以内、都市ガス、洗面所にドア、初期費用カード決済可 | ||
部屋の情報
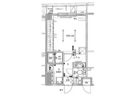
| 間取り | 1K | 専有面積 | 26.22m2 |
|---|---|---|---|
| 所在階 / 向き | 1階 / 北西 | バルコニー面積 | - |
| 水道 / ガス | - | ||
| 設備 | バス・トイレ別、オートロック、宅配ボックス、浴室乾燥機、エアコン、バルコニー、フローリング、洗髪洗面化粧台、コンロ:ガス、洗濯機:室内 | ||
| 当社物件ID | 160109222 | ||
建物の情報
| 建物名 | EL VIENT RIDE KAMINAKAZATO | ||
|---|---|---|---|
| 所在地 | 東京都北区上中里 | ||
| 交通 | JR京浜東北線 上中里駅 徒歩4分 東京メトロ南北線 西ケ原駅 徒歩11分 JR高崎線 尾久駅 徒歩13分 | ||
| 階数 | 4階建 | 総戸数 | - |
| 築年月 | 2007年03月 / 築19年 | エレベーター | - |
| 駐車場 | なし | バイク置き場 | - |
| 駐輪場 | あり | 管理人/管理会社 | - |
| 周辺環境 | その他 上中里駅(その他)まで426m その他 尾久(その他)まで958m その他 東京メトロ 西ケ原駅(その他)まで809m その他 マルエツ プチ 上中里店(スーパー)まで281m その他 セブンイレブン 北区上中里2丁目店(コンビニ)まで359m その他 ウェルパーク荒川西尾久店(ドラッグストア)まで1791m | ||
| 建物種別 | マンション | 建物構造 | RC(鉄筋コンクリート) |
この部屋の取扱い不動産会社
| 会社名 | (株)エールーム上野店(SUUMO経由) | ||
|---|---|---|---|
| 所在地 | 東京都台東区上野6-7-16 古谷ビル8階 | 交通 | - |
| 営業時間 | 10:00~19:00 | 定休日 | 毎週水曜日(祝日の場合は営業) |
| 免許番号 | 国土交通大臣9710 | 取引態様 | 仲介 |
| 不動産会社管理番号 | 100480067340 | 当社管理番号 | 89 |
| 所属団体 | (公社)東京都宅地建物取引業協会会員 | ||
| 公正取引協議会 | (公社)首都圏不動産公正取引協議会加盟 | ||
| 取扱い物件情報 | 物件詳細へ | ||
※各種情報と現状に差異がある場合は、現状優先となります。問い合わせをすることで、より詳しい条件、情報を確認する事ができます。
提供:(株)エールーム上野店(SUUMO経由)
この物件が気になったら掲載期限まであと11日
EL VIENT RIDE KAMINAKAZATOに条件(家賃・エリア)が近い物件一覧
| 写真 | 家賃 管理費等 | 敷金 礼金 | 間取り 専有面積 | 築年数 | 最寄り駅 所在地 | キープ | 詳細 |
|---|---|---|---|---|---|---|---|
アパート パークウェイ(1LDK/2階) | |||||||
![]() | 12.2万円 5,000円 | 12.2万円 12.2万円 | 1LDK 36.16m2 | 築13年 | 東武東上線 北池袋駅 徒歩10分 JR山手線 池袋駅 徒歩13分 JR埼京線 板橋駅 徒歩15分 東京都豊島区上池袋 | 詳細を見る | |
アパート ベルハイツB棟(1K/1階) | |||||||
![]() | 6万円 2,000円 | なし なし | 1K 19.87m2 | 築35年 | 千代田・常磐緩行線 亀有駅 徒歩7分 東京都足立区中川2丁目 | 詳細を見る | |
アパート 第12ヒカリハイツC(ワンルーム/2階) | |||||||
![]() | 5.4万円 2,000円 | 2.7万円 5.4万円 | ワンルーム 17.41m2 | 築37年 | 東武伊勢崎線 西新井駅 徒歩4分 東武伊勢崎線 梅島駅 徒歩10分 東武大師線 大師前駅 徒歩16分 東京都足立区梅島 | 詳細を見る | |
マンション 南常盤台石井若松ビル(1K/2階) | |||||||
![]() | 5.5万円 3,000円 | なし なし | 1K 19.71m2 | 築40年 | 東武東上線 ときわ台駅(東京) 徒歩2分 東京メトロ副都心線 小竹向原駅 徒歩25分 東京メトロ有楽町線 小竹向原駅 徒歩25分 東京都板橋区南常盤台 | 詳細を見る | |
アパート メゾンドールS(1K/1階) | |||||||
![]() | 5.7万円 3,000円 | 5.7万円 5.7万円 | 1K 21.23m2 | 築41年 | JR京浜東北線 上中里駅 徒歩5分 東京メトロ南北線 西ケ原駅 徒歩8分 JR山手線 駒込駅 徒歩12分 東京都北区上中里 | 詳細を見る | |
マンション ルーブル高島平(1K/6階) | |||||||
![]() | 8.55万円 1.15万円 | なし 8.55万円 | 1K 25.52m2 | 築8年 | 都営三田線 高島平駅 徒歩6分 都営三田線 新高島平駅 徒歩13分 都営三田線 西台駅 徒歩20分 東京都板橋区高島平 | 詳細を見る | |
マンション メゾン・イツワ(2DK/6階) | |||||||
![]() | 9万円 4,000円 | 9万円 9万円 | 2DK 40.29m2 | 築39年 | 都営三田線 高島平駅 徒歩2分 都営三田線 新高島平駅 徒歩12分 都営三田線 西台駅 徒歩14分 東京都板橋区高島平 | 詳細を見る | |








