賃貸マンション
ザ・パークハビオ滝野川の賃貸物件情報(2LDK/8階)
| 家賃 | 管理費等 | 敷金 | 礼金 | 間取り | 専有面積 |
|---|---|---|---|---|---|
| 24万円 | 2.5万円 | 24万円 | 24万円 | 2LDK | 56.61m2 |
入居決定でお祝い金最大100,000円
Point
『アパマンショップ本社直営店』の当店にお任せください!
提供:アパマンショップ新宿東南口店

詳細情報 ザ・パークハビオ滝野川
物件紹介
ザ・パークハビオ滝野川は東京都三田線西巣鴨駅から徒歩2分にあり、駅近で通勤通学に便利なマンションです。
このお部屋は2階以上に位置しているので、通行人や周囲の住人からの視線が気になりにくく、防犯面でも安心。建物のエントランスはオートロックがついており、インターホンにはTVモニタもついているため、相手の顔を確認してから来客対応することができます。
おしゃれなデザイナーズ物件!また、楽器相談が可能な物件となっているので、楽器演奏をお考えの方はぜひ相談してみてください。人気の南向き・フローリングのお部屋。角部屋でもあるため、周囲の居住者の生活音も気になりにくい場所です。室内にはウォークインクローゼットがありますので、たくさんの荷物も効率的に収納ができます。キッチンはシステムキッチン仕様になっていますので、お料理好きの方にもぴったり。バス・トイレは別なので、のんびりお風呂タイムも楽しめるでしょう。また、雨の日でも浴室乾燥機を使えば、お洗濯も問題ありません。
通信設備面では、インターネットが無料で使えるので、月々の出費を抑えられるのも魅力です。また、BSアンテナ・CSアンテナがありCATVにも対応しているので、おうち時間も充実するでしょう(別途工事、BS・CS・CATVの契約料等が必要な場合あり)。
建物にはエレベーターがついているので、重い荷物があっても安心。共用部には宅配ボックスが設定されているので、不在の時にも荷物を受け取ることができます。また、ペット飼育の相談ができますので、あなたの大切な家族の一員も快適に暮らせるか、ぜひ確認してみてください。
このお部屋は2階以上に位置しているので、通行人や周囲の住人からの視線が気になりにくく、防犯面でも安心。建物のエントランスはオートロックがついており、インターホンにはTVモニタもついているため、相手の顔を確認してから来客対応することができます。
おしゃれなデザイナーズ物件!また、楽器相談が可能な物件となっているので、楽器演奏をお考えの方はぜひ相談してみてください。人気の南向き・フローリングのお部屋。角部屋でもあるため、周囲の居住者の生活音も気になりにくい場所です。室内にはウォークインクローゼットがありますので、たくさんの荷物も効率的に収納ができます。キッチンはシステムキッチン仕様になっていますので、お料理好きの方にもぴったり。バス・トイレは別なので、のんびりお風呂タイムも楽しめるでしょう。また、雨の日でも浴室乾燥機を使えば、お洗濯も問題ありません。
通信設備面では、インターネットが無料で使えるので、月々の出費を抑えられるのも魅力です。また、BSアンテナ・CSアンテナがありCATVにも対応しているので、おうち時間も充実するでしょう(別途工事、BS・CS・CATVの契約料等が必要な場合あり)。
建物にはエレベーターがついているので、重い荷物があっても安心。共用部には宅配ボックスが設定されているので、不在の時にも荷物を受け取ることができます。また、ペット飼育の相談ができますので、あなたの大切な家族の一員も快適に暮らせるか、ぜひ確認してみてください。
お金・契約の情報
※「-」と表示されているものは、実際は料金が発生するものもございます。詳細はお問い合わせください。
| 家賃 | 24万円 | 管理費・共益費 | 2.5万円 |
|---|---|---|---|
| 敷金 | 24万円 | 礼金 | 24万円 |
| 入居決定でお祝い金最大100,000円 | |||
| 保証金 | - | 償却・敷引 | - |
| 住宅保険料 | - | 更新料 | - |
| 保証会社利用 | 必須 | 保証会社名 | - |
| 保証会社費用 | - | 保証会社備考 | 日本セーフティー 初年度保証料:賃料等合計額の50%(最低保証料2万円)2年目以降:1年毎1万円 |
| 契約形態 | - | 契約期間 | 2年 |
| 入居・引渡期間 | 2026年02月上旬 | 現況 | - |
| 入居可能条件 | 楽器可、ペット可 | ||
| 契約備考 | 駆付けサポート24借主加入 保証会社未使用時敷金2か月 ペット・楽器相談(諸条件弊社募集図面要確認) 民泊不可 鍵交換必須/退去時:室内清掃・エアコン洗浄費借主負担 付属施設空状況要確認 鍵交換代 33000円 | ||
部屋の情報
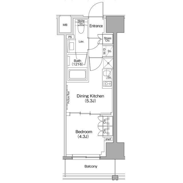
| 間取り | 2LDK | 専有面積 | 56.61m2 |
|---|---|---|---|
| 間取り詳細 | LDK(15.4帖)、洋室(5.5帖)、洋室(4.5帖) | ||
| 所在階 / 向き | 8階 / 南東 | バルコニー面積 | 15m2 |
| 水道 / ガス | - | ||
| 設備 | バス・トイレ別、オートロック、テレビドアホン、宅配ボックス、浴室乾燥機、ウォークインクローゼット、追い焚き、光ファイバー対応、システムキッチン、エレベーター、温水洗浄便座、角部屋、バルコニー、フローリング、コンロ:ガス、CSアンテナ、BSアンテナ、シャワー、給湯、洗濯機:室内 | ||
| 当社物件ID | 128028311 | ||
建物の情報
| 建物名 | ザ・パークハビオ滝野川 | ||
|---|---|---|---|
| 所在地 | 東京都北区滝野川6丁目 | ||
| 交通 | 東京都三田線 西巣鴨駅 徒歩3分 | ||
| 階数 | 14階建 | 総戸数 | 138戸 |
| 築年月 | 2023年02月 / 築3年 | エレベーター | あり |
| 駐車場 | 空有 3.85万円/月 | バイク置き場 | - |
| 駐輪場 | あり | 管理人/管理会社 | - |
| 周辺環境 | その他 ビッグ・エー 豊島上池袋店 徒歩11分(879m) その他 ミニストップ 徒歩13分(972m) その他 まいばすけっと 北池袋駅東店 徒歩14分(1046m) その他 セブンイレブン 徒歩19分(1470m) その他 ローソン×スリーエフ 徒歩17分(1293m) その他 池袋本町郵便局 徒歩17分(1356m) その他 セブン−イレブン板橋1丁目店 徒歩18分(1396m) その他 ファミリーマート下板橋駅前店 徒歩19分(1468m) | ||
| 建物種別 | マンション | 建物構造 | RC(鉄筋コンクリート) |
この部屋の取扱い不動産会社
| 会社名 | アパマンショップ池袋西口店 | ||
|---|---|---|---|
| 所在地 | 東京都豊島区西池袋1丁目 20−6広瀬ビル6F | 交通 | 山手線池袋から徒歩1分 |
| 営業時間 | 09:30〜19:30(9:30〜19:30) | 定休日 | - |
| 免許番号 | 国土交通大臣(1)10927 | 取引態様 | 仲介 |
| 不動産会社管理番号 | 96898064 | 当社管理番号 | 4 |
| 所属団体 | (公社)東京都宅地建物取引業協会 | ||
| 公正取引協議会 | (公社) 首都圏不動産公正取引協議会加盟 | ||
| 取扱い物件情報 | 物件詳細へ | ||
※各種情報と現状に差異がある場合は、現状優先となります。問い合わせをすることで、より詳しい条件、情報を確認する事ができます。
提供:アパマンショップ池袋西口店
この物件が気になったら掲載期限まであと13日
ザ・パークハビオ滝野川に条件(家賃・エリア)が近い物件一覧
| 写真 | 家賃 管理費等 | 敷金 礼金 | 間取り 専有面積 | 築年数 | 最寄り駅 所在地 | キープ | 詳細 |
|---|---|---|---|---|---|---|---|
マンション メゾンフラワー(2DK/1階) | |||||||
![]() | 15.3万円 なし | 15.3万円 なし | 2DK 41.54m2 | 築39年 | 東京メトロ丸ノ内線 新大塚駅 徒歩9分 東京メトロ丸ノ内線 茗荷谷駅 徒歩12分 東京メトロ有楽町線 護国寺駅 徒歩13分 東京都文京区大塚 | 詳細を見る | |
マンション WEAVE BASE -ITABASHI HONCHO(1LDK/8階) | |||||||
![]() | 18.8万円 1.5万円 | なし なし | 1LDK 40.48m2 | 築1年 | 都営三田線 板橋本町駅 徒歩7分 JR埼京線 十条駅(東京) 徒歩20分 東武東上線 中板橋駅 徒歩24分 東京都板橋区清水町 | 詳細を見る | |
マンション ALIVIS本郷三丁目(ワンルーム/9階) | |||||||
![]() | 14.85万円 1.5万円 | なし なし | ワンルーム 25.22m2 | 築1年 | 都営大江戸線 本郷三丁目駅 徒歩6分 東京メトロ丸ノ内線 本郷三丁目駅 徒歩6分 JR中央線 御茶ノ水駅 徒歩8分 東京都文京区本郷 | 詳細を見る | |
マンション スカイテラス南大塚(2SLDK/6階) | |||||||
![]() | 31.7万円 1万円 | なし 63.4万円 | 2SLDK 68.52m2 | 新築 | 東京メトロ丸ノ内線 新大塚駅 徒歩3分 JR山手線 大塚駅(東京) 徒歩5分 東京都豊島区南大塚 | 詳細を見る | |
マンション アーバンフラッツ池袋プレミアム(1LDK/24階) | |||||||
![]() | 25.7万円 1.5万円 | なし なし | 1LDK 40.01m2 | 築19年 | JR山手線 池袋駅 徒歩2分 JR山手線 目白駅 徒歩14分 東京メトロ有楽町線 要町駅 徒歩15分 東京都豊島区西池袋 | 詳細を見る | |
マンション ロイヤルパークス新田(2LDK/5階) | |||||||
![]() | 15.6万円 1.3万円 | 15.6万円 15.6万円 | 2LDK 63.24m2 | 築19年 | 東京メトロ南北線 王子神谷駅 徒歩17分 東京メトロ南北線 志茂駅 徒歩32分 東京都足立区新田 | 詳細を見る | |
マンション 東京アクアガーデン(3LDK/12階) | |||||||
![]() | 14.9万円 1万円 | 14.9万円 14.9万円 | 3LDK 67.01m2 | 築20年 | 東武伊勢崎線 谷塚駅 徒歩13分 東武伊勢崎線 竹ノ塚駅 徒歩19分 東京都足立区西保木間 | 詳細を見る | |
マンション リコラータ(2LDK/3階) | |||||||
![]() | 24.7万円 1.1万円 | なし 49.4万円 | 2LDK 64.95m2 | 新築 | 東京メトロ有楽町線 千川駅 徒歩5分 東京メトロ副都心線 千川駅 徒歩5分 西武有楽町線 小竹向原駅 徒歩11分 東京都板橋区向原 | 詳細を見る | |








