賃貸マンション
近鉄京都線 向島駅 徒歩7分 3階建 築51年の賃貸物件情報(2DK/3階)
| 家賃 | 管理費等 | 敷金 | 礼金 | 間取り | 専有面積 |
|---|---|---|---|---|---|
| 4.5万円 | 5,000円 | なし | 4.5万円 | 2DK | 31.5m2 |
入居決定でお祝い金最大100,000円
Point
この家賃で2DK コンパクトにまとまっています。
提供:株式会社 京都ライフ 小倉店(賃貸スモッカ経由)

詳細情報 近鉄京都線 向島駅 徒歩7分 3階建 築51年
物件紹介
近鉄京都線向島駅から徒歩7分にあり、駅近で通勤通学に便利なマンションです。
このお部屋は2階以上に位置しているので、通行人や周囲の住人からの視線が気になりにくく、防犯面でも安心です。
人気の南向きのお部屋。バス・トイレ別の仕様で、のんびりお風呂タイムも楽しめます。
通信設備面では、インターネット接続が可能です。また、BSアンテナもありますので、おうち時間も充実するでしょう(別途工事、契約料が必要な場合あり)。
このお部屋は2階以上に位置しているので、通行人や周囲の住人からの視線が気になりにくく、防犯面でも安心です。
人気の南向きのお部屋。バス・トイレ別の仕様で、のんびりお風呂タイムも楽しめます。
通信設備面では、インターネット接続が可能です。また、BSアンテナもありますので、おうち時間も充実するでしょう(別途工事、契約料が必要な場合あり)。
お金・契約の情報
※「-」と表示されているものは、実際は料金が発生するものもございます。詳細はお問い合わせください。
| 家賃 | 4.5万円 | 管理費・共益費 | 5,000円 |
|---|---|---|---|
| 敷金 | なし | 礼金 | 4.5万円 |
| 入居決定でお祝い金最大100,000円 | |||
| 保証金 | - | 償却・敷引 | - |
| 住宅保険料 | 住宅保険料あり | 更新料 | - |
| 契約形態 | - | 契約期間 | 2年 |
| 入居・引渡期間 | 即時 | 現況 | 空室 |
| 契約備考 | この家賃で2DK コンパクトにまとまっています。更新料がなしも嬉しいですね。京都の賃貸は京都ライフまでお待ちしております。ご質問、ご不明な点等がございましたらお気軽にお、メールにてお問い合わせくださいませ。 更新料:無し 保証会社:利用必須 初回:月額賃料等の100%、更新時:1万円/1年 その他設備/条件:最上階の物件、即入居可 | ||
部屋の情報
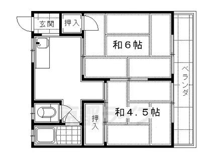
| 間取り | 2DK | 専有面積 | 31.5m2 |
|---|---|---|---|
| 間取り詳細 | 和室(6帖)、和室(4.5帖)、DK(4.5帖) | ||
| 所在階 / 向き | 3階 / 南 | バルコニー面積 | - |
| 水道 / ガス | ガス【プロパン】 | ||
| 設備 | バス・トイレ別、2階以上、インターネット対応、南向き、バルコニー、BSアンテナ | ||
| 当社物件ID | 157489489 | ||
建物の情報
| 建物名 | 近鉄京都線 向島駅 徒歩7分 3階建 築51年 | ||
|---|---|---|---|
| 所在地 | 京都府京都市伏見区向島津田町 | ||
| 交通 | 近鉄京都線 向島駅 徒歩7分 京阪電気鉄道宇治線 観月橋駅 徒歩10分 | ||
| 階数 | 3階建 | 総戸数 | - |
| 築年月 | 1975年09月 / 築51年 | エレベーター | - |
| 駐車場 | - | バイク置き場 | - |
| 駐輪場 | あり | 管理人/管理会社 | - |
| 建物種別 | マンション | 建物構造 | RC(鉄筋コンクリート) |
この部屋の取扱い不動産会社
| 会社名 | 株式会社 京都ライフ 小倉店(賃貸スモッカ経由) | ||
|---|---|---|---|
| 所在地 | 宇治市小倉町神楽田21-5 | 交通 | - |
| 営業時間 | - | 定休日 | - |
| 免許番号 | 京都府知事(11)第6353号 | 取引態様 | 仲介 |
| 不動産会社管理番号 | kyotolife_46641-306-11 | 当社管理番号 | 463 |
| 所属団体 | 京都府宅地建物取引業協会\n公益社団法人近畿地区不動産公正取引協議会 | ||
| 公正取引協議会 | 全国宅地建物取引業保証協会 | ||
| 取扱い物件情報 | 物件詳細へ | ||
※各種情報と現状に差異がある場合は、現状優先となります。問い合わせをすることで、より詳しい条件、情報を確認する事ができます。
提供:株式会社 京都ライフ 小倉店(賃貸スモッカ経由)
この物件が気になったら掲載期限まであと6日
近鉄京都線 向島駅 徒歩7分 3階建 築51年に条件(家賃・エリア)が近い物件一覧
| 写真 | 家賃 管理費等 | 敷金 礼金 | 間取り 専有面積 | 築年数 | 最寄り駅 所在地 | キープ | 詳細 |
|---|---|---|---|---|---|---|---|
一戸建て 京阪電気鉄道京阪線 橋本駅(京都) 徒歩5分 築59年(3LDK) | |||||||
![]() | 7.2万円 5,000円 | なし なし | 3LDK 77.19m2 | 築59年 | 京阪電気鉄道京阪線 橋本駅(京都) 徒歩5分 京都府八幡市橋本栗ケ谷 | 詳細を見る | |
マンション ジェイズヴィラ(1K/2階) | |||||||
![]() | 4万円 5,000円 | なし なし | 1K 24.3m2 | 築36年 | 阪急電鉄京都線 西山天王山駅 徒歩5分 阪急電鉄京都線 長岡天神駅 徒歩25分 東海道本線 長岡京駅 徒歩27分 京都府乙訓郡大山崎町字円明寺長慶 | 詳細を見る | |
アパート 京阪電気鉄道京阪線 鳥羽街道駅 徒歩3分 築21年(1K/2階) | |||||||
![]() | 5.8万円 3,000円 | なし 5.8万円 | 1K 27.08m2 | 築21年 | 京阪電気鉄道京阪線 鳥羽街道駅 徒歩3分 京阪電気鉄道京阪線 伏見稲荷駅 徒歩6分 京都府京都市伏見区深草相深町 | 詳細を見る | |
マンション リジェール柳田(1K/3階) | |||||||
![]() | 5万円 3,000円 | 5万円 なし | 1K 23.94m2 | 築31年 | 京阪宇治線 木幡駅(京阪) 徒歩7分 JR奈良線 木幡駅(JR) 徒歩11分 地下鉄東西線 六地蔵駅(京都市営) 徒歩19分 京都府宇治市木幡西浦 | 詳細を見る | |
マンション 京阪電気鉄道京阪線 墨染駅 徒歩2分 築38年(1LDK/3階) | |||||||
![]() | 4.7万円 3,000円 | 10万円 5万円 | 1LDK 32.44m2 | 築38年 | 京阪電気鉄道京阪線 墨染駅 徒歩2分 奈良線 JR藤森駅 徒歩9分 京都府京都市伏見区深草中ノ島町 | 詳細を見る | |
アパート 京阪電気鉄道京阪線 龍谷大前深草駅 徒歩5分 築1年(ワンルーム/1階) | |||||||
![]() | 7万円 5,000円 | 7万円 7万円 | ワンルーム 27.24m2 | 築1年 | 京阪電気鉄道京阪線 龍谷大前深草駅 徒歩5分 奈良線 稲荷駅 徒歩5分 京都府京都市伏見区深草大門町 | 詳細を見る | |
アパート クローバーハイツ(3DK/2階) | |||||||
![]() | 6.8万円 2,000円 | なし 6.8万円 | 3DK 59.3m2 | 築36年 | 阪急電鉄京都線 西山天王山駅 徒歩18分 阪急電鉄京都線 長岡天神駅 徒歩27分 東海道本線 長岡京駅 徒歩37分 京都府長岡京市奥海印寺下条 | 詳細を見る | |
一戸建て 京都市東西線 小野駅(京都) 徒歩11分 築55年(4K) | |||||||
![]() | 4.8万円 なし | なし 5万円 | 4K 39.5m2 | 築55年 | 京都市東西線 小野駅(京都) 徒歩11分 京都市東西線 醍醐駅(京都) 徒歩15分 京都府京都市伏見区醍醐切レ戸町 | 詳細を見る | |









