賃貸マンション
シーズガーデン登戸の賃貸物件情報(3LDK/4階)
| 家賃 | 管理費等 | 敷金 | 礼金 | 間取り | 専有面積 |
|---|---|---|---|---|---|
| 15.2万円 | なし | 15.2万円 | 15.2万円 | 3LDK | 70.03m2 |
入居決定でお祝い金最大100,000円
Point
入居の当日からインターネットが使えます。二口コンロが付いているマンションです。CATV対応物件です。
提供:ハウスコム東神奈川株式会社 向ヶ丘遊園店

詳細情報 シーズガーデン登戸
物件紹介
シーズガーデン登戸は南武線中野島駅から徒歩15分にあるマンションです。
このお部屋は2階以上に位置しているので、通行人や周囲の住人からの視線が気になりにくく、防犯面でも安心。建物のエントランスはオートロックがついており、インターホンにはTVモニタもついているため、相手の顔を確認してから来客対応することができます。
人気の南向き・フローリングのお部屋。室内にはウォークインクローゼットがありますので、たくさんの荷物も効率的に収納ができます。キッチンはシステムキッチン仕様になっていますので、お料理好きの方にもぴったり。バス・トイレは別なので、のんびりお風呂タイムも楽しめるでしょう。また、雨の日でも浴室乾燥機を使えば、お洗濯も問題ありません。
通信設備面では、インターネット接続が可能です。また、BSアンテナ・CSアンテナがありCATVにも対応しているので、おうち時間も充実するでしょう(別途工事、契約料が必要な場合あり)。
床暖房があり、冬も足元から暖かく快適に過ごすことができます。建物にはエレベーターがついているので、重い荷物があっても安心。共用部には宅配ボックスが設定されているので、不在の時にも荷物を受け取ることができます。
このお部屋は2階以上に位置しているので、通行人や周囲の住人からの視線が気になりにくく、防犯面でも安心。建物のエントランスはオートロックがついており、インターホンにはTVモニタもついているため、相手の顔を確認してから来客対応することができます。
人気の南向き・フローリングのお部屋。室内にはウォークインクローゼットがありますので、たくさんの荷物も効率的に収納ができます。キッチンはシステムキッチン仕様になっていますので、お料理好きの方にもぴったり。バス・トイレは別なので、のんびりお風呂タイムも楽しめるでしょう。また、雨の日でも浴室乾燥機を使えば、お洗濯も問題ありません。
通信設備面では、インターネット接続が可能です。また、BSアンテナ・CSアンテナがありCATVにも対応しているので、おうち時間も充実するでしょう(別途工事、契約料が必要な場合あり)。
床暖房があり、冬も足元から暖かく快適に過ごすことができます。建物にはエレベーターがついているので、重い荷物があっても安心。共用部には宅配ボックスが設定されているので、不在の時にも荷物を受け取ることができます。
お金・契約の情報
※「-」と表示されているものは、実際は料金が発生するものもございます。詳細はお問い合わせください。
| 家賃 | 15.2万円 | 管理費・共益費 | なし |
|---|---|---|---|
| 敷金 | 15.2万円 | 礼金 | 15.2万円 |
| 入居決定でお祝い金最大100,000円 | |||
| 保証金 | - | 償却・敷引 | - |
| 住宅保険料 | 1円 | 更新料 | - |
| 契約形態 | - | 契約期間 | 2年 |
| 入居・引渡期間 | 相談 | 現況 | - |
| 入居可能条件 | 2人入居可 | ||
| 契約備考 | 月額(住宅保険 850円 安心サポート 880円) 鍵交換費用:22000 その他設備/条件:室内洗濯機置き場、独立洗面台、クローゼット、シューズボックス、オートバス | ||
部屋の情報
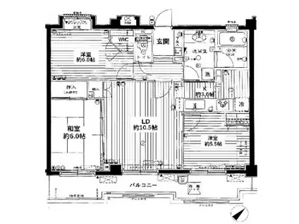
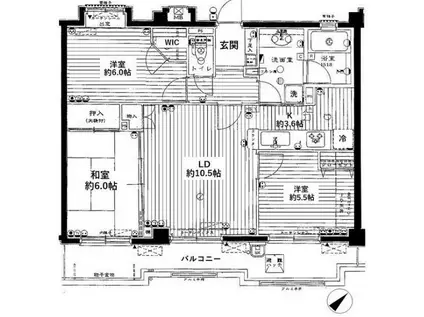
| 間取り | 3LDK | 専有面積 | 70.03m2 |
|---|---|---|---|
| 間取り詳細 | 洋室(5.5帖)、洋室(6帖)、LDK(14.1帖)、和室(6帖) | ||
| 所在階 / 向き | 4階 / 南東 | バルコニー面積 | - |
| 水道 / ガス | 水道【公営】、ガス【都市】 | ||
| 設備 | バス・トイレ別、オートロック、テレビドアホン、宅配ボックス、浴室乾燥機、追い焚き、インターネット対応、システムキッチン、エアコン、エレベーター、バルコニー、フローリング、洗髪洗面化粧台、床暖房、2口コンロ、CATV、シャワー、給湯、出窓、タイル張り | ||
| 当社物件ID | 160107571 | ||
建物の情報
| 建物名 | シーズガーデン登戸 | ||
|---|---|---|---|
| 所在地 | 神奈川県川崎市多摩区中野島4丁目 | ||
| 交通 | 南武線 中野島駅 徒歩15分 小田急電鉄小田原線 登戸駅 徒歩16分 | ||
| 階数 | 4階建 | 総戸数 | - |
| 築年月 | 2003年02月 / 築23年 | エレベーター | あり |
| 駐車場 | 空無 | バイク置き場 | - |
| 駐輪場 | あり | 管理人/管理会社 | - |
| 周辺環境 | その他 ドラッグストア その他 公園 その他 銀行 その他 * | ||
| 建物種別 | マンション | 建物構造 | RC(鉄筋コンクリート) |
この部屋の取扱い不動産会社
| 会社名 | ハウスコム東神奈川株式会社 武蔵小杉店 | ||
|---|---|---|---|
| 所在地 | 神奈川県川崎市中原区922レイロービル2階 | 交通 | - |
| 営業時間 | 10:00~18:00 | 定休日 | - |
| 免許番号 | 神奈川県知事(1)第31769号 | 取引態様 | 仲介 |
| 不動産会社管理番号 | HC2-750224-403-0053 | 当社管理番号 | 468 |
| 所属団体 | 、 | ||
| 取扱い物件情報 | 物件詳細へ | ||
※各種情報と現状に差異がある場合は、現状優先となります。問い合わせをすることで、より詳しい条件、情報を確認する事ができます。
提供:ハウスコム東神奈川株式会社 武蔵小杉店
この物件が気になったら掲載期限まであと4日
シーズガーデン登戸に条件(家賃・エリア)が近い物件一覧
| 写真 | 家賃 管理費等 | 敷金 礼金 | 間取り 専有面積 | 築年数 | 最寄り駅 所在地 | キープ | 詳細 |
|---|---|---|---|---|---|---|---|
アパート D PAINA 中野島II(1LDK/2階) | |||||||
![]() | 12.4万円 5,500円 | なし 37.2万円 | 1LDK 40.06m2 | 新築 | JR南武線 中野島駅 徒歩9分 JR南武線 登戸駅 徒歩25分 小田急線 向ケ丘遊園駅 徒歩27分 神奈川県川崎市多摩区中野島 | 詳細を見る | |
マンション アーヴァイン山太(3LDK/5階) | |||||||
![]() | 15.7万円 6,500円 | なし なし | 3LDK 69.38m2 | 築30年 | 相鉄本線 二俣川駅 徒歩9分 相鉄いずみ野線 南万騎が原駅 徒歩15分 相鉄本線 希望ケ丘駅 徒歩19分 神奈川県横浜市旭区さちが丘 | 詳細を見る | |
アパート トリアノン(1LDK/2階) | |||||||
![]() | 10.2万円 3,000円 | 10.2万円 10.2万円 | 1LDK 46.65m2 | 築1年 | 相鉄本線 瀬谷駅 徒歩5分 相鉄本線 大和駅(神奈川) 徒歩26分 相鉄本線 三ツ境駅 徒歩30分 神奈川県横浜市瀬谷区瀬谷 | 詳細を見る | |
マンション テラス横浜鶴見(1DK/11階) | |||||||
![]() | 12.6万円 1.1万円 | 12.6万円 なし | 1DK 25.79m2 | 築1年 | 京急本線 京急鶴見駅 徒歩3分 JR京浜東北線 鶴見駅 徒歩5分 神奈川県横浜市鶴見区鶴見中央 | 詳細を見る | |
マンション リバーシティ中山B棟(2DK/1階) | |||||||
![]() | 10.8万円 2,000円 | なし なし | 2DK 45.9m2 | 築29年 | JR東海道本線 戸塚駅 徒歩5分 ブルーライン 踊場駅 徒歩25分 ブルーライン 舞岡駅 徒歩26分 神奈川県横浜市戸塚区上倉田町 | 詳細を見る | |
マンション 第三丸正ビル(2DK/3階) | |||||||
![]() | 9.2万円 なし | 9.2万円 なし | 2DK 45.6m2 | 築35年 | 横浜線 中山駅(神奈川) 徒歩4分 神奈川県横浜市緑区中山1丁目 | 詳細を見る | |
マンション サンシティ妙蓮寺B(1LDK/1階) | |||||||
![]() | 11.5万円 4,000円 | 11.5万円 23万円 | 1LDK 40.69m2 | 築12年 | 東急東横線 妙蓮寺駅 徒歩11分 JR横浜線 菊名駅 徒歩13分 JR横浜線 大口駅 徒歩24分 神奈川県横浜市港北区菊名 | 詳細を見る | |
マンション ドッゴミーム(1LDK/4階) | |||||||
![]() | 13.8万円 2万円 | なし 13.8万円 | 1LDK 55.25m2 | 築1年 | 神奈川県横浜市鶴見区梶山 | 詳細を見る | |









