賃貸マンション
ミリアビタNO22の賃貸物件情報(ワンルーム/2階)
| 家賃 | 管理費等 | 敷金 | 礼金 | 間取り | 専有面積 |
|---|---|---|---|---|---|
| 8.5万円 | 1.5万円 | なし | なし | ワンルーム | 28.15m2 |
入居決定でお祝い金最大100,000円
- 保証金
- -
- 償却・敷引
- -
- 築年数
- 築13年
- 所在階
- 2階
- 向き
- 北東
Point
「いい部屋ネット亀戸店」♪来店不要でのお部屋探しも可能です!ご自宅にいながら、スマホ・タブレットを使っての、「オンライン内見」、「IT重説」でのご契約手続きまで、非対面での対応が可能です!
提供:いい部屋ネット大東建託リーシング(株)亀戸店(SUUMO経由)

詳細情報 ミリアビタNO22
物件紹介
ミリアビタNO22は京成本線京成小岩駅から徒歩6分にあり、駅近で通勤通学に便利なマンションです。
このお部屋は2階以上に位置しているので通行人や周囲の住人からの視線が気になりにくく、建物のエントランスはオートロックがついているので防犯性が高くなっています。
フローリングのお部屋なのでお掃除もラクラク。バス・トイレ別の仕様で、のんびりお風呂タイムも楽しめます。また、浴室乾燥機を使えば、雨の日でもお洗濯は問題ありません。
通信設備面では、インターネット接続が可能です。また、BSアンテナもありますので、おうち時間も充実するでしょう(別途工事、契約料が必要な場合あり)。
建物にはエレベーターがついているので、重い荷物があっても安心。
このお部屋は2階以上に位置しているので通行人や周囲の住人からの視線が気になりにくく、建物のエントランスはオートロックがついているので防犯性が高くなっています。
フローリングのお部屋なのでお掃除もラクラク。バス・トイレ別の仕様で、のんびりお風呂タイムも楽しめます。また、浴室乾燥機を使えば、雨の日でもお洗濯は問題ありません。
通信設備面では、インターネット接続が可能です。また、BSアンテナもありますので、おうち時間も充実するでしょう(別途工事、契約料が必要な場合あり)。
建物にはエレベーターがついているので、重い荷物があっても安心。
お金・契約の情報
※「-」と表示されているものは、実際は料金が発生するものもございます。詳細はお問い合わせください。
| 家賃 | 8.5万円 | 管理費・共益費 | 1.5万円 |
|---|---|---|---|
| 敷金 | なし | 礼金 | なし |
| 入居決定でお祝い金最大100,000円 | |||
| 保証金 | - | 償却・敷引 | - |
| 住宅保険料 | - | 更新料 | - |
| 保証会社利用 | 必須 | 保証会社名 | - |
| 保証会社費用 | - | 保証会社備考 | 保証会社利用必 詳細1:優先保証会社:エムぞう君 保証会社備考:初回保証料55%~ ※最低保証料55,000円 年間:11,000円 ※年間保証料は滞納状況により変動有 |
| 契約形態 | - | 契約期間 | - |
| 入居・引渡期間 | - | 現況 | - |
| 契約備考 | 置き配対応・敷金0!礼金0!保証金0!RENECAT導入済物件★消臭抗菌効果が半永久持続★家具・家電付賃貸へ変更可★すぐお住まいになれます \(^0^)/エムぞう君審査問題ありません 合計2.2万円(内訳:鍵交換代2.2万円) ワンルーム 二人入居可/子供可 損保【要】 バストイレ別、バルコニー、フローリング、シャワー付洗面台、浴室乾燥機、オートロック、室内洗濯置、温水洗浄便座、エレベーター、駐輪場、光ファイバー、バイク置場、24時間緊急通報システム、都市ガス、BS、IT重説対応物件 入居日:'26年1月下旬 | ||
部屋の情報
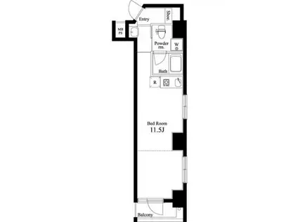
| 間取り | ワンルーム | 専有面積 | 28.15m2 |
|---|---|---|---|
| 所在階 / 向き | 2階 / 北東 | バルコニー面積 | - |
| 水道 / ガス | - | ||
| 設備 | バス・トイレ別、2階以上、オートロック、浴室乾燥機、インターネット対応、エレベーター、温水洗浄便座、バルコニー、フローリング、BSアンテナ、洗濯機:室内 | ||
| 当社物件ID | 159874482 | ||
建物の情報
| 建物名 | ミリアビタNO22 | ||
|---|---|---|---|
| 所在地 | 東京都江戸川区西小岩 | ||
| 交通 | 京成本線 京成小岩駅 徒歩6分 JR総武線 小岩駅 徒歩13分 北総線 新柴又駅 徒歩18分 | ||
| 階数 | 8階建 | 総戸数 | - |
| 築年月 | 2013年03月 / 築13年 | エレベーター | あり |
| 駐車場 | なし | バイク置き場 | あり |
| 駐輪場 | あり | 管理人/管理会社 | - |
| 周辺環境 | その他 国府台駅(その他)まで2357m その他 江戸川(その他)まで1222m その他 小岩駅(その他)まで854m その他 新小岩駅(その他)まで3055m その他 矢切駅(その他)まで4775m | ||
| 建物種別 | マンション | 建物構造 | RC(鉄筋コンクリート) |
この部屋の取扱い不動産会社
| 会社名 | いい部屋ネット大東建託リーシング(株)亀戸店(SUUMO経由) | ||
|---|---|---|---|
| 所在地 | 東京都江東区亀戸6-57-7 亀戸北斗スターマンション1階 | 交通 | - |
| 営業時間 | 10:00~12:30 13:30~18:00 | 定休日 | 火水 |
| 免許番号 | 国土交通大臣9120 | 取引態様 | 仲介 |
| 不動産会社管理番号 | 100472972841 | 当社管理番号 | 89 |
| 所属団体 | (公財)日本賃貸住宅管理協会会員 | ||
| 公正取引協議会 | (公社)首都圏不動産公正取引協議会加盟 | ||
| 取扱い物件情報 | 物件詳細へ | ||
※各種情報と現状に差異がある場合は、現状優先となります。問い合わせをすることで、より詳しい条件、情報を確認する事ができます。
提供:いい部屋ネット大東建託リーシング(株)亀戸店(SUUMO経由)
この物件が気になったら掲載期限まであと10日
ミリアビタNO22に条件(家賃・エリア)が近い物件一覧
| 写真 | 家賃 管理費等 | 敷金 礼金 | 間取り 専有面積 | 築年数 | 最寄り駅 所在地 | キープ | 詳細 |
|---|---|---|---|---|---|---|---|
マンション セジョリノース東京(1K/5階) | |||||||
![]() | 8万円 1万円 | 8万円 8万円 | 1K 22.89m2 | 築18年 | 東京地下鉄半蔵門線 押上駅 徒歩7分 東京都浅草線 本所吾妻橋駅 徒歩10分 総武・中央緩行線 錦糸町駅 徒歩13分 東京都墨田区横川2丁目 | 詳細を見る | |
マンション メゾン・ド・クロシェット(1K/2階) | |||||||
![]() | 10万円 8,000円 | 10万円 10万円 | 1K 28.1m2 | 築9年 | 東京都新宿線 菊川駅(東京) 徒歩6分 東京都大江戸線 森下駅(東京) 徒歩10分 東京地下鉄半蔵門線 錦糸町駅 徒歩17分 東京都墨田区立川3丁目 | 詳細を見る | |
マンション オーキッドレジデンス森下(1K/3階) | |||||||
![]() | 12.7万円 1万円 | 12.7万円 なし | 1K 25.78m2 | 築6年 | 都営新宿線 森下駅(東京) 徒歩6分 都営大江戸線 両国駅 徒歩6分 JR総武線 両国駅 徒歩10分 東京都墨田区緑 | 詳細を見る | |
マンション 錦糸町コクーン(1K/2階) | |||||||
![]() | 10.5万円 5,800円 | なし 21万円 | 1K 27.42m2 | 築6年 | 東京都新宿線 菊川駅(東京) 徒歩8分 総武・中央緩行線 錦糸町駅 徒歩13分 東京都大江戸線 両国駅 徒歩15分 東京都墨田区緑4丁目 | 詳細を見る | |
マンション スカイコート両国壱番館(ワンルーム/5階) | |||||||
![]() | 9.11万円 5,900円 | 9.11万円 9.11万円 | ワンルーム 23.4m2 | 築24年 | 総武・中央緩行線 両国駅 徒歩3分 東京都浅草線 東日本橋駅 徒歩11分 東京都新宿線 浜町駅 徒歩16分 東京都墨田区両国2丁目 | 詳細を見る | |
マンション レジデンス横網(1K/3階) | |||||||
![]() | 10万円 6,500円 | 10万円 10万円 | 1K 26.15m2 | 築7年 | 東京都大江戸線 両国駅 徒歩5分 東京都大江戸線 蔵前駅 徒歩8分 総武・中央緩行線 両国駅 徒歩10分 東京都墨田区横網2丁目 | 詳細を見る | |
マンション ストーク両国緑(ワンルーム/2階) | |||||||
![]() | 6.9万円 9,000円 | 6.9万円 6.9万円 | ワンルーム 22.05m2 | 築37年 | 都営大江戸線 両国駅 徒歩3分 JR総武線 両国駅 徒歩9分 都営新宿線 森下駅(東京) 徒歩10分 東京都墨田区緑 | 詳細を見る | |
マンション ライオンズマンション門前仲町第5(1K/5階) | |||||||
![]() | 8万円 4,000円 | 8万円 8万円 | 1K 20.31m2 | 築36年 | 東京都大江戸線 門前仲町駅 徒歩5分 東京地下鉄東西線 門前仲町駅 徒歩5分 東京地下鉄半蔵門線 清澄白河駅 徒歩14分 東京都江東区永代2丁目 | 詳細を見る | |









