賃貸マンション
SLX葵の賃貸物件情報(4LDK/10階)
| 家賃 | 管理費等 | 敷金 | 礼金 | 間取り | 専有面積 |
|---|---|---|---|---|---|
| 48.18万円 | 1.32万円 | なし | なし | 4LDK | 140.99m2 |
入居決定でお祝い金最大100,000円
- 保証金
- 289.08万円
- 償却・敷引
- 144.54万円
- 築年数
- 築36年
- 所在階
- 10階
- 向き
- 南
Point
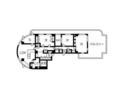
最上階角部屋。ウォークインクローゼット付き。
提供:エイブルネットワークセントラルパーク店(株)アールクレスト(SUUMO経由)

詳細情報 SLX葵
物件紹介
SLX葵は地下鉄桜通線車道駅から徒歩1分にあり、駅近で通勤通学に便利なマンションです。
このお部屋は2階以上に位置しているので、通行人や周囲の住人からの視線が気になりにくく、防犯面でも安心です。
人気の南向き・フローリングのお部屋。角部屋でもあるため、周囲の居住者の生活音も気になりにくい場所です。室内にはウォークインクローゼットがありますので、たくさんの荷物も効率的に収納ができます。キッチンはシステムキッチン仕様になっていますので、お料理好きの方にもぴったり。また、バス・トイレは別で、のんびりお風呂タイムも楽しめるでしょう。
通信設備面では、インターネット接続が可能です。また、BSアンテナもありますので、おうち時間も充実するでしょう(別途工事、契約料が必要な場合あり)。
建物にはエレベーターがついているので、重い荷物があっても安心。
このお部屋は2階以上に位置しているので、通行人や周囲の住人からの視線が気になりにくく、防犯面でも安心です。
人気の南向き・フローリングのお部屋。角部屋でもあるため、周囲の居住者の生活音も気になりにくい場所です。室内にはウォークインクローゼットがありますので、たくさんの荷物も効率的に収納ができます。キッチンはシステムキッチン仕様になっていますので、お料理好きの方にもぴったり。また、バス・トイレは別で、のんびりお風呂タイムも楽しめるでしょう。
通信設備面では、インターネット接続が可能です。また、BSアンテナもありますので、おうち時間も充実するでしょう(別途工事、契約料が必要な場合あり)。
建物にはエレベーターがついているので、重い荷物があっても安心。
お金・契約の情報
※「-」と表示されているものは、実際は料金が発生するものもございます。詳細はお問い合わせください。
| 家賃 | 48.18万円 | 管理費・共益費 | 1.32万円 |
|---|---|---|---|
| 敷金 | なし | 礼金 | なし |
| 入居決定でお祝い金最大100,000円 | |||
| 保証金 | 289.08万円 | 償却・敷引 | 144.54万円 |
| 住宅保険料 | - | 更新料 | - |
| 契約形態 | 定期借家 | 契約期間 | 5年 |
| 入居・引渡期間 | 即時 | 現況 | - |
| 入居可能条件 | 事務所可 | ||
| 契約備考 | 合計1.65万円(内訳:鍵交換16500円) 町会費150円 4LDK 事務所利用相談 定期借家5年 損保【要】 バストイレ別、バルコニー、エアコン、クロゼット、フローリング、室内洗濯置、シューズボックス、システムキッチン、南向き、追焚機能浴室、角住戸、脱衣所、エレベーター、洗面所独立、洗面化粧台、駐輪場、押入、光ファイバー、即入居可、礼金不要、最上階、対面式キッチン、IHクッキングヒーター、全居室洋室、ウォークインクロゼット、保証人不要、仲介手数料不要、オール電化、全居室フローリング、2面バルコニー、事務所相談、ルーフバルコニー、コインランドリー、1フロア1住戸、L字型キッチン、トイレ2ヶ所、南面リビング、四方角部屋、駅徒歩5分以内、高層階、上階無し、敷地内ごみ置き場、専有面積30坪以上、LDK25畳以上、全居室6畳以上、南面バルコニー、BS、初期費用カード決済可 | ||
部屋の情報
| 間取り | 4LDK | 専有面積 | 140.99m2 |
|---|---|---|---|
| 所在階 / 向き | 10階 / 南 | バルコニー面積 | - |
| 水道 / ガス | - | ||
| 設備 | バス・トイレ別、2階以上、ウォークインクローゼット、追い焚き、インターネット対応、システムキッチン、エアコン、エレベーター、南向き、角部屋、バルコニー、フローリング、洗髪洗面化粧台、オール電化、コンロ:IH、BSアンテナ、洗濯機:室内 | ||
| 当社物件ID | 157227439 | ||
建物の情報
| 建物名 | SLX葵 | ||
|---|---|---|---|
| 所在地 | 愛知県名古屋市東区葵 | ||
| 交通 | 地下鉄桜通線 車道駅 徒歩1分 地下鉄東山線 千種駅 徒歩5分 地下鉄東山線 今池駅(愛知) 徒歩12分 | ||
| 階数 | 10階建 | 総戸数 | - |
| 築年月 | 1990年08月 / 築36年 | エレベーター | あり |
| 駐車場 | なし | バイク置き場 | - |
| 駐輪場 | あり | 管理人/管理会社 | - |
| 周辺環境 | その他 すき家車道駅前店(飲食店)まで197m その他 ドラッグスギヤマ筒井店(ドラッグストア)まで474m その他 バロー車道店(スーパー)まで579m その他 ローソンストア100車道店(コンビニ)まで244m その他 名古屋車道郵便局(郵便局)まで402m その他 甘味喫茶おかげ庵葵店(飲食店)まで297m | ||
| 建物種別 | マンション | 建物構造 | SRC(鉄骨鉄筋コンクリート) |
この部屋の取扱い不動産会社
| 会社名 | エイブルネットワークセントラルパーク店(株)アールクレスト(SUUMO経由) | ||
|---|---|---|---|
| 所在地 | 愛知県名古屋市東区東桜1-10-36オーシャンビル2階 | 交通 | - |
| 営業時間 | 10:00~18:30 | 定休日 | 水曜日 |
| 免許番号 | 愛知県知事25225 | 取引態様 | 仲介 |
| 不動産会社管理番号 | 100354011354 | 当社管理番号 | 89 |
| 所属団体 | (公社)全日本不動産協会愛知県本部会員 | ||
| 公正取引協議会 | 東海不動産公正取引協議会加盟 | ||
| 取扱い物件情報 | 物件詳細へ | ||
※各種情報と現状に差異がある場合は、現状優先となります。問い合わせをすることで、より詳しい条件、情報を確認する事ができます。
提供:エイブルネットワークセントラルパーク店(株)アールクレスト(SUUMO経由)
この物件が気になったら掲載期限まであと11日
SLX葵に条件(家賃・エリア)が近い物件一覧
| 写真 | 家賃 管理費等 | 敷金 礼金 | 間取り 専有面積 | 築年数 | 最寄り駅 所在地 | キープ | 詳細 |
|---|---|---|---|---|---|---|---|
マンション ロイヤルパークス千種(3LDK/9階) | |||||||
![]() | 40.1万円 1万円 | 40.1万円 なし | 3LDK 135.5m2 | 築19年 | JR中央本線 千種駅 徒歩13分 地下鉄東山線 千種駅 徒歩13分 JR中央本線 鶴舞駅 徒歩13分 愛知県名古屋市千種区千種 | 詳細を見る | |
マンション RESIDENCE KIKUZAKA(3LDK/3階) | |||||||
![]() | 35.5万円 1.2万円 | 35.5万円 35.5万円 | 3LDK 124.89m2 | 築6年 | 地下鉄東山線 覚王山駅 徒歩7分 地下鉄東山線 池下駅 徒歩8分 地下鉄東山線 今池駅(愛知) 徒歩17分 愛知県名古屋市千種区菊坂町 | 詳細を見る | |
マンション ウイズエムビル(3LDK/6階) | |||||||
![]() | 66万円 なし | なし なし | 3LDK 246.82m2 | 築5年 | 地下鉄名城線 久屋大通駅 徒歩6分 地下鉄桜通線 高岳駅 徒歩9分 地下鉄東山線 栄駅(名古屋) 徒歩12分 愛知県名古屋市東区泉 | 詳細を見る | |
マンション 名鉄瀬戸線 尼ケ坂駅 徒歩10分 築35年(3LDK/2階) | |||||||
![]() | 32万円 なし | 96万円 なし | 3LDK 137.09m2 | 築35年 | 名鉄瀬戸線 尼ケ坂駅 徒歩10分 地下鉄桜通線 高岳駅 徒歩10分 名鉄瀬戸線 清水駅(愛知) 徒歩13分 愛知県名古屋市東区主税町 | 詳細を見る | |
マンション サンメゾン千種公園東(3LDK/5階) | |||||||
![]() | 29万円 1.2万円 | 29万円 29万円 | 3LDK 90.84m2 | 築1年 | 地下鉄東山線 池下駅 徒歩15分 地下鉄桜通線 今池駅(愛知) 徒歩18分 地下鉄東山線 今池駅(愛知) 徒歩18分 愛知県名古屋市千種区若水 | 詳細を見る | |
マンション グランドメゾン池下ザ・タワー(2LDK/38階) | |||||||
![]() | 46万円 なし | 46万円 69万円 | 2LDK 122.9m2 | 築13年 | 地下鉄東山線 池下駅 徒歩1分 地下鉄東山線 覚王山駅 徒歩9分 地下鉄東山線 今池駅(愛知) 徒歩11分 愛知県名古屋市千種区池下町 | 詳細を見る | |
マンション エスティメゾン葵(2LDK/13階) | |||||||
![]() | 34.9万円 3万円 | 34.9万円 37.9万円 | 2LDK 111.85m2 | 築19年 | 地下鉄東山線 新栄町駅(愛知) 徒歩7分 地下鉄桜通線 車道駅 徒歩10分 JR中央本線 千種駅 徒歩10分 愛知県名古屋市東区葵 | 詳細を見る | |
マンション 積水ハウス 泉3丁目計画(2LDK/11階) | |||||||
![]() | 29万円 9,500円 | なし 29万円 | 2LDK 83.42m2 | 新築 | 地下鉄桜通線 高岳駅 徒歩4分 地下鉄東山線 新栄町駅(愛知) 徒歩8分 地下鉄桜通線 車道駅 徒歩15分 愛知県名古屋市東区泉 | 詳細を見る | |









