賃貸マンション
パサージュ日山の賃貸物件情報(3LDK/1階)
| 家賃 | 管理費等 | 敷金 | 礼金 | 間取り | 専有面積 |
|---|---|---|---|---|---|
| 5.9万円 | 7,000円 | なし | なし | 3LDK | 58.8m2 |
入居決定でお祝い金最大100,000円
- 保証金
- -
- 償却・敷引
- -
- 築年数
- 築37年
- 所在階
- 1階
- 向き
- 東
Point
時間外・急なご予約もOK!他社不動産の取り扱い物件もまとめてご案内可能です。現地集合・オンライン見学もお気軽にお問い合わせください。
提供:(株)Library Homes(SUUMO経由)

詳細情報 パサージュ日山
物件紹介
パサージュ日山はJR姫新線本竜野駅から徒歩25分にあるマンションです。
このお部屋のインターホンにはTVモニタがついているため、相手の顔を確認してから来客対応することができます。
人気の角部屋で周囲の居住者の生活音も気になりにくく、また、フローリングのお部屋なのでお掃除もラクラク。バス・トイレ別の仕様で、のんびりお風呂タイムも楽しめます。
ペット飼育の相談ができますので、あなたの大切な家族の一員も快適に暮らせるか、ぜひ確認してみてください。
このお部屋のインターホンにはTVモニタがついているため、相手の顔を確認してから来客対応することができます。
人気の角部屋で周囲の居住者の生活音も気になりにくく、また、フローリングのお部屋なのでお掃除もラクラク。バス・トイレ別の仕様で、のんびりお風呂タイムも楽しめます。
ペット飼育の相談ができますので、あなたの大切な家族の一員も快適に暮らせるか、ぜひ確認してみてください。
お金・契約の情報
※「-」と表示されているものは、実際は料金が発生するものもございます。詳細はお問い合わせください。
| 家賃 | 5.9万円 | 管理費・共益費 | 7,000円 |
|---|---|---|---|
| 敷金 | なし | 礼金 | なし |
| 入居決定でお祝い金最大100,000円 | |||
| 保証金 | - | 償却・敷引 | - |
| 住宅保険料 | - | 更新料 | - |
| 契約形態 | - | 契約期間 | - |
| 入居・引渡期間 | 即時 | 現況 | - |
| 入居可能条件 | ペット相談 | ||
| 契約備考 | 巡回管理/全物件クレジット決済可能です!引越し業者割引サービスあります!オンライン内覧可能です!お客様の時間を有効活用できます! 合計1.1万円(内訳:鍵交換代1.1万円) 町会費 月額800円 3LDK 二人入居可/ペット相談 普通借家2年 損保【要】 バストイレ別、バルコニー、ガスコンロ対応、フローリング、室内洗濯置、陽当り良好、角住戸、洗面所独立、駐輪場、即入居可、礼金不要、閑静な住宅地、ペット相談、保証人不要、バイク置場、和室、プロパンガス、敷金・礼金不要 | ||
部屋の情報
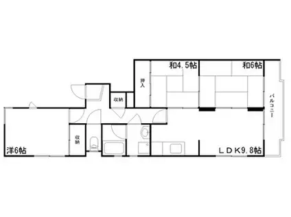
| 間取り | 3LDK | 専有面積 | 58.8m2 |
|---|---|---|---|
| 所在階 / 向き | 1階 / 東 | バルコニー面積 | - |
| 水道 / ガス | - | ||
| 設備 | バス・トイレ別、角部屋、バルコニー、フローリング、洗髪洗面化粧台、コンロ:ガス、洗濯機:室内 | ||
| 当社物件ID | 159010292 | ||
建物の情報
| 建物名 | パサージュ日山 | ||
|---|---|---|---|
| 所在地 | 兵庫県たつの市龍野町日山 | ||
| 交通 | JR姫新線 本竜野駅 徒歩32分 JR姫新線 東觜崎駅 徒歩60分 JR山陽本線 竜野駅 徒歩75分 | ||
| 階数 | 4階建 | 総戸数 | 12戸 |
| 築年月 | 1989年04月 / 築37年 | エレベーター | - |
| 駐車場 | 空有 4400円 | バイク置き場 | あり |
| 駐輪場 | あり | 管理人/管理会社 | - |
| 周辺環境 | その他 マックスバリュ 龍野西店(スーパー)まで230m | ||
| 建物種別 | マンション | 建物構造 | RC(鉄筋コンクリート) |
この部屋の取扱い不動産会社
| 会社名 | (株)Gran Homes(SUUMO経由) | ||
|---|---|---|---|
| 所在地 | 兵庫県姫路市西駅前町 35-1 | 交通 | - |
| 営業時間 | 09:00~19:00 | 定休日 | 年末年始 |
| 免許番号 | 兵庫県知事451373 | 取引態様 | 仲介 |
| 不動産会社管理番号 | 100443600425 | 当社管理番号 | 89 |
| 所属団体 | (公社)全日本不動産協会兵庫県本部会員 | ||
| 公正取引協議会 | (公社)近畿地区不動産公正取引協議会加盟 | ||
| 取扱い物件情報 | 物件詳細へ | ||
※各種情報と現状に差異がある場合は、現状優先となります。問い合わせをすることで、より詳しい条件、情報を確認する事ができます。
提供:(株)Gran Homes(SUUMO経由)
この物件が気になったら掲載期限まであと11日
パサージュ日山に条件(家賃・エリア)が近い物件一覧
| 写真 | 家賃 管理費等 | 敷金 礼金 | 間取り 専有面積 | 築年数 | 最寄り駅 所在地 | キープ | 詳細 |
|---|---|---|---|---|---|---|---|
アパート メゾングレーヌ龍野町(1K/1階) | |||||||
![]() | 5.55万円 3,500円 | なし 5.55万円 | 1K 29.72m2 | 築3年 | 山陽電鉄本線 山陽姫路駅 徒歩19分 JR播但線 姫路駅 徒歩22分 山陽電鉄本線 手柄駅 徒歩29分 兵庫県姫路市龍野町 | 詳細を見る | |
一戸建て 姫新線 播磨高岡駅 徒歩27分 築60年(2K) | |||||||
![]() | 3.8万円 なし | なし 3.8万円 | 2K 36.36m2 | 築60年 | 姫新線 播磨高岡駅 徒歩27分 山陽電気鉄道本線 手柄駅 徒歩29分 兵庫県姫路市西庄 | 詳細を見る | |
アパート グレイスフルヴィラ(2DK/1階) | |||||||
![]() | 5.2万円 なし | なし 5.2万円 | 2DK 42.93m2 | 築21年 | JR山陽本線 竜野駅 徒歩38分 JR山陽本線 相生駅(兵庫) 徒歩40分 JR赤穂線 西相生駅 徒歩78分 兵庫県たつの市揖西町土師 | 詳細を見る | |
マンション レジデンスH忍町(1LDK/9階) | |||||||
![]() | 8.8万円 6,900円 | なし なし | 1LDK 32.43m2 | 築3年 | 山陽電鉄本線 山陽姫路駅 徒歩4分 JR播但線 姫路駅 徒歩7分 山陽電鉄本線 手柄駅 徒歩15分 兵庫県姫路市忍町 | 詳細を見る | |
アパート メゾンコンフォール(3DK/2階) | |||||||
![]() | 5.3万円 3,000円 | 5.3万円 なし | 3DK 58.32m2 | 築27年 | 山陽本線 網干駅 徒歩11分 兵庫県揖保郡太子町糸井 | 詳細を見る | |
アパート パークメゾン田寺2(ワンルーム/1階) | |||||||
![]() | 4.5万円 1,100円 | なし なし | ワンルーム 33.15m2 | 築22年 | 兵庫県姫路市田寺1丁目 | 詳細を見る | |
一戸建て 山陽電気鉄道網干線 山陽網干駅 徒歩7分 築47年(4DK) | |||||||
![]() | 6万円 なし | 6万円 6万円 | 4DK 91.26m2 | 築47年 | 山陽電気鉄道網干線 山陽網干駅 徒歩7分 山陽電気鉄道網干線 平松駅 徒歩23分 山陽本線 網干駅 徒歩45分 兵庫県姫路市網干区余子浜 | 詳細を見る | |
アパート アルメールM(2LDK/2階) | |||||||
![]() | 5.5万円 2,900円 | なし 5.5万円 | 2LDK 67.56m2 | 築15年 | 兵庫県揖保郡太子町鵤 | 詳細を見る | |







