賃貸マンション
プラザタワー勝どきの賃貸物件情報(1LDK/14階)
| 家賃 | 管理費等 | 敷金 | 礼金 | 間取り | 専有面積 |
|---|---|---|---|---|---|
| 17.7万円 | 1.6万円 | 17.7万円 | なし | 1LDK | 41.85m2 |
入居決定でお祝い金最大100,000円
- 保証金
- -
- 償却・敷引
- -
- 築年数
- 築22年
- 所在階
- 14階
- 向き
- 南東
Point
まずはお問い合わせ!
不動産会社は街のプロ、あなたに合った物件がきっと見つかります。
提供:(株)BRISS(SUUMO経由)

詳細情報 プラザタワー勝どき
物件紹介
プラザタワー勝どきは都営大江戸線勝どき駅から徒歩2分にあり、駅近で通勤通学に便利なマンションです。
このお部屋は2階以上に位置しているので、通行人や周囲の住人からの視線が気になりにくく、防犯面でも安心。建物のエントランスはオートロックがついており、インターホンにはTVモニタもついているため、相手の顔を確認してから来客対応することができます。
人気の南向きのお部屋。また、フローリングなのでお掃除もラクラク。キッチンはシステムキッチン仕様になっていますので、お料理好きの方にもぴったり。バス・トイレは別なので、のんびりお風呂タイムも楽しめるでしょう。また、雨の日でも浴室乾燥機を使えば、お洗濯も問題ありません。
通信設備面では、インターネット接続が可能です。また、BSアンテナ・CSアンテナがありCATVにも対応しているので、おうち時間も充実するでしょう(別途工事、契約料が必要な場合あり)。
床暖房があり、冬も足元から暖かく快適に過ごすことができます。建物にはエレベーターがついているので、重い荷物があっても安心。共用部には宅配ボックスが設定されているので、不在の時にも荷物を受け取ることができます。
このお部屋は2階以上に位置しているので、通行人や周囲の住人からの視線が気になりにくく、防犯面でも安心。建物のエントランスはオートロックがついており、インターホンにはTVモニタもついているため、相手の顔を確認してから来客対応することができます。
人気の南向きのお部屋。また、フローリングなのでお掃除もラクラク。キッチンはシステムキッチン仕様になっていますので、お料理好きの方にもぴったり。バス・トイレは別なので、のんびりお風呂タイムも楽しめるでしょう。また、雨の日でも浴室乾燥機を使えば、お洗濯も問題ありません。
通信設備面では、インターネット接続が可能です。また、BSアンテナ・CSアンテナがありCATVにも対応しているので、おうち時間も充実するでしょう(別途工事、契約料が必要な場合あり)。
床暖房があり、冬も足元から暖かく快適に過ごすことができます。建物にはエレベーターがついているので、重い荷物があっても安心。共用部には宅配ボックスが設定されているので、不在の時にも荷物を受け取ることができます。
お金・契約の情報
※「-」と表示されているものは、実際は料金が発生するものもございます。詳細はお問い合わせください。
| 家賃 | 17.7万円 | 管理費・共益費 | 1.6万円 |
|---|---|---|---|
| 敷金 | 17.7万円 | 礼金 | なし |
| 入居決定でお祝い金最大100,000円 | |||
| 保証金 | - | 償却・敷引 | - |
| 住宅保険料 | - | 更新料 | - |
| 保証会社利用 | 必須 | 保証会社名 | - |
| 保証会社費用 | - | 保証会社備考 | 保証会社利用必 総賃料の50%~ |
| 契約形態 | 定期借家 | 契約期間 | 2年 |
| 入居・引渡期間 | 相談 | 現況 | - |
| 契約備考 | 常駐管理/若手からベテランのスタッフが揃っておりますので幅広い観点から物件をご提案させて頂きます。BRISSはチームで物件を提案からご案内させて頂きますので効率良く短時間でお部屋探しが可能でございます。入居後から退去後まで出来る限りのサポートをさせて頂きます。また、夜間の対応もしておりますので休日の貴重なお時間を使わずにお部屋探しができます。 合計2.2万円(内訳:鍵交換代 22000円税込) 掃除費 51975円/退去時 エアコン掃除費 16500円/退去時 セーフティ補償料 570円/月額 1LDK 二人入居可 定期借家2年 損保【1.54万円2年】 バストイレ別、バルコニー、エアコン、ガスコンロ対応、フローリング、TVインターホン、浴室乾燥機、オートロック、室内洗濯置、陽当り良好、シューズボックス、システムキッチン、追焚機能浴室、温水洗浄便座、脱衣所、エレベーター、洗面所独立、駐輪場、宅配ボックス、CATV、光ファイバー、外壁タイル張り、閑静な住宅地、BS・CS、3口以上コンロ、防犯カメラ、照明付、24時間有人管理、オートバス、グリル付、保証人不要、CATVインターネット、二人入居相談、バイク置場、24時間緊急通報システム、全居室フローリング、2沿線利用可、ディンプルキー、CS、浄水器、床暖房、眺望良好、トランクルーム、ディスポーザー、24時間換気システム、L字型キッチン、フロントサービス、平坦地、3駅以上利用可、駅徒歩5分以内、タワー型マンション、高層階、敷地内ごみ置き場、東南向き、都市ガス、洗面所に窓、洗面所にドア、玄関収納、BS、高速ネット対応 | ||
部屋の情報
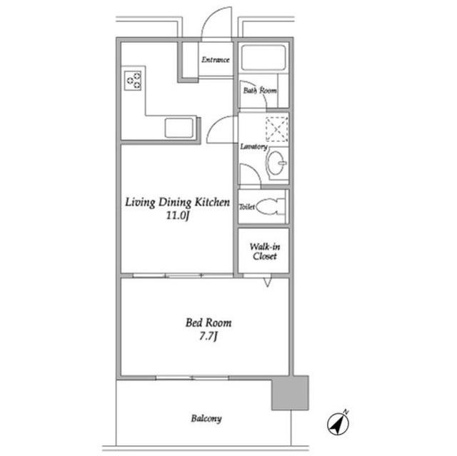
| 間取り | 1LDK | 専有面積 | 41.85m2 |
|---|---|---|---|
| 所在階 / 向き | 14階 / 南東 | バルコニー面積 | - |
| 水道 / ガス | - | ||
| 設備 | バス・トイレ別、2階以上、オートロック、テレビドアホン、宅配ボックス、浴室乾燥機、追い焚き、インターネット対応、システムキッチン、エアコン、エレベーター、温水洗浄便座、南向き、バルコニー、フローリング、トランクルーム、洗髪洗面化粧台、タワーマンション、床暖房、2口コンロ、コンロ:ガス、CATV、CSアンテナ、BSアンテナ、洗濯機:室内 | ||
| 当社物件ID | 4896758 | ||
建物の情報
| 建物名 | プラザタワー勝どき | ||
|---|---|---|---|
| 所在地 | 東京都中央区勝どき | ||
| 交通 | 都営大江戸線 勝どき駅 徒歩2分 東京メトロ日比谷線 築地駅 徒歩11分 都営大江戸線 月島駅 徒歩19分 | ||
| 階数 | 43階建 | 総戸数 | - |
| 築年月 | 2004年02月 / 築22年 | エレベーター | あり |
| 駐車場 | なし | バイク置き場 | あり |
| 駐輪場 | あり | 管理人/管理会社 | - |
| 周辺環境 | その他 晴海トリトン(ショッピングセンター)まで712m その他 デリド勝どき駅前店(スーパー)まで138m その他 ファミリーマート勝どき三丁目店(コンビニ)まで99m その他 どらっぐぱぱす勝どきビュータワー店(ドラッグストア)まで143m その他 ベスト電器BFS月島店(ホームセンター)まで510m その他 ドン・キホーテ銀座本館(ホームセンター)まで1483m | ||
| 建物種別 | マンション | 建物構造 | RC(鉄筋コンクリート) |
この部屋の取扱い不動産会社
| 会社名 | (株)BRISS(SUUMO経由) | ||
|---|---|---|---|
| 所在地 | 東京都中央区築地2-10-10 GY築地ビル4階 | 交通 | - |
| 営業時間 | 10:00~18:00 | 定休日 | なし |
| 免許番号 | 東京都知事103074 | 取引態様 | 仲介 |
| 不動産会社管理番号 | 100479273010 | 当社管理番号 | 89 |
| 所属団体 | (公社)全日本不動産協会東京都本部会員 | ||
| 公正取引協議会 | (公社)首都圏不動産公正取引協議会加盟 | ||
| 取扱い物件情報 | 物件詳細へ | ||
※各種情報と現状に差異がある場合は、現状優先となります。問い合わせをすることで、より詳しい条件、情報を確認する事ができます。
提供:(株)BRISS(SUUMO経由)
この物件が気になったら掲載期限まであと10日
プラザタワー勝どきに条件(家賃・エリア)が近い物件一覧
| 写真 | 家賃 管理費等 | 敷金 礼金 | 間取り 専有面積 | 築年数 | 最寄り駅 所在地 | キープ | 詳細 |
|---|---|---|---|---|---|---|---|
マンション ベルファース錦糸町サウス(1DK/6階) | |||||||
![]() | 14.2万円 1万円 | 14.2万円 なし | 1DK 25.12m2 | 築3年 | 総武本線 錦糸町駅 徒歩8分 東京地下鉄半蔵門線 錦糸町駅 徒歩8分 東京都墨田区江東橋1丁目 | 詳細を見る | |
マンション 浅草橋レジデンス(1K/8階) | |||||||
![]() | 14.1万円 1万円 | なし なし | 1K 29.67m2 | 築19年 | 総武・中央緩行線 浅草橋駅 徒歩4分 東京都浅草線 浅草橋駅 徒歩7分 山手線 秋葉原駅 徒歩8分 東京都台東区浅草橋4丁目 | 詳細を見る | |
マンション グレンパーク秋葉原イースト(ワンルーム/10階) | |||||||
![]() | 11.3万円 1.2万円 | 11.3万円 11.3万円 | ワンルーム 26.21m2 | 築22年 | 東京都新宿線 岩本町駅 徒歩3分 山手線 秋葉原駅 徒歩8分 山手線 神田駅(東京) 徒歩10分 東京都千代田区岩本町3丁目 | 詳細を見る | |
マンション コンフォリア東上野(1DK/7階) | |||||||
![]() | 12.8万円 1.2万円 | 12.8万円 なし | 1DK 27.04m2 | 築2年 | 東京地下鉄銀座線 稲荷町駅(東京) 徒歩3分 山手線 上野駅 徒歩9分 東京都台東区東上野6丁目 | 詳細を見る | |
マンション クラリティア浅草(1DK/5階) | |||||||
![]() | 14万円 1.5万円 | 14万円 なし | 1DK 25.46m2 | 築1年 | 東武伊勢崎・大師線 浅草駅(東武・都営・メトロ) 徒歩9分 東京都浅草線 浅草駅(東武・都営・メトロ) 徒歩10分 つくばエクスプレス 浅草駅(つくばEXP) 徒歩13分 東京都台東区浅草6丁目 | 詳細を見る | |
一戸建て 東京都新宿線 大島駅(東京) 徒歩7分 築77年(1DK) | |||||||
![]() | 15.8万円 1万円 | 15.8万円 15.8万円 | 1DK 27.91m2 | 築77年 | 東京都新宿線 大島駅(東京) 徒歩7分 東京都新宿線 西大島駅 徒歩7分 総武・中央緩行線 亀戸駅 徒歩11分 東京都江東区大島3丁目 | 詳細を見る | |
マンション S-RESIDENCE両国SEREA(1SLDK/5階) | |||||||
![]() | 23万円 1.5万円 | 23万円 23万円 | 1SLDK 50.76m2 | 築3年 | 総武・中央緩行線 両国駅 徒歩7分 東京都大江戸線 森下駅(東京) 徒歩10分 東京都浅草線 東日本橋駅 徒歩12分 東京都墨田区両国1丁目 | 詳細を見る | |
マンション GRAN PASEO 田原町(1LDK/5階) | |||||||
![]() | 22万円 2万円 | なし なし | 1LDK 50.75m2 | 築5年 | 東京地下鉄銀座線 田原町駅(東京) 徒歩3分 東京都浅草線 浅草駅(東武・都営・メトロ) 徒歩6分 東京都台東区寿4丁目 | 詳細を見る | |









