賃貸マンション
WHITE TOWER HAMAMATSUCHO ホワイトタワー浜松町の賃貸物件情報(2SLDK/23階)
| 家賃 | 管理費等 | 敷金 | 礼金 | 間取り | 専有面積 |
|---|---|---|---|---|---|
| 48.5万円 | 2万円 | 48.5万円 | 48.5万円 | 2SLDK | 68.22m2 |
入居決定でお祝い金最大100,000円
- 保証金
- -
- 償却・敷引
- -
- 築年数
- 築18年
- 所在階
- 23階
- 向き
- 南
Point
★システムキッチン・3口ガスコンロ★追焚★浴室乾燥機★独立洗面台★温水洗浄便座★TVモニタ付インターホン★オートロック★フロントサービス★そらうみリアルエステートへお気軽にお問い合わせ下さい!★
提供:(株)ユウキ・ホーム麻布十番サテライト店(SUUMO経由)

詳細情報 WHITE TOWER HAMAMATSUCHO ホワイトタワー浜松町
物件紹介
WHITE TOWER HAMAMATSUCHO ホワイトタワー浜松町はJR山手線浜松町駅から徒歩3分にあり、駅近で通勤通学に便利なマンションです。
このお部屋は2階以上に位置しているので、通行人や周囲の住人からの視線が気になりにくく、防犯面でも安心。建物のエントランスはオートロックがついており、インターホンにはTVモニタもついているため、相手の顔を確認してから来客対応することができます。
こちらは楽器相談が可能な物件。楽器演奏をお考えの方はぜひ相談してみてください。人気の南向き・フローリングのお部屋。室内にはウォークインクローゼットがありますので、たくさんの荷物も効率的に収納ができます。キッチンはシステムキッチン仕様になっていますので、お料理好きの方にもぴったり。バス・トイレは別なので、のんびりお風呂タイムも楽しめるでしょう。また、雨の日でも浴室乾燥機を使えば、お洗濯も問題ありません。
床暖房があり、冬も足元から暖かく快適に過ごすことができます。建物にはエレベーターがついているので、重い荷物があっても安心。共用部には宅配ボックスが設定されているので、不在の時にも荷物を受け取ることができます。
このお部屋は2階以上に位置しているので、通行人や周囲の住人からの視線が気になりにくく、防犯面でも安心。建物のエントランスはオートロックがついており、インターホンにはTVモニタもついているため、相手の顔を確認してから来客対応することができます。
こちらは楽器相談が可能な物件。楽器演奏をお考えの方はぜひ相談してみてください。人気の南向き・フローリングのお部屋。室内にはウォークインクローゼットがありますので、たくさんの荷物も効率的に収納ができます。キッチンはシステムキッチン仕様になっていますので、お料理好きの方にもぴったり。バス・トイレは別なので、のんびりお風呂タイムも楽しめるでしょう。また、雨の日でも浴室乾燥機を使えば、お洗濯も問題ありません。
床暖房があり、冬も足元から暖かく快適に過ごすことができます。建物にはエレベーターがついているので、重い荷物があっても安心。共用部には宅配ボックスが設定されているので、不在の時にも荷物を受け取ることができます。
お金・契約の情報
※「-」と表示されているものは、実際は料金が発生するものもございます。詳細はお問い合わせください。
| 家賃 | 48.5万円 | 管理費・共益費 | 2万円 |
|---|---|---|---|
| 敷金 | 48.5万円 | 礼金 | 48.5万円 |
| 入居決定でお祝い金最大100,000円 | |||
| 保証金 | - | 償却・敷引 | - |
| 住宅保険料 | - | 更新料 | - |
| 保証会社利用 | 必須 | 保証会社名 | - |
| 保証会社費用 | - | 保証会社備考 | 保証会社利用必 初回保証委託料:月額賃料等の50% 詳細はお問い合わせください |
| 契約形態 | - | 契約期間 | - |
| 入居・引渡期間 | 相談 | 現況 | - |
| 入居可能条件 | 楽器相談 | ||
| 契約備考 | 通勤管理/ピアノ相談可※詳細はお問い合わせください 1年未満解約時賃料1か月分の違約金有 合計2.2万円(内訳:鍵交換費用) 2SLDK 単身者可/楽器相談 損保【要】 バストイレ別、バルコニー、エアコン、ガスコンロ対応、クロゼット、フローリング、TVインターホン、浴室乾燥機、オートロック、室内洗濯置、シューズボックス、システムキッチン、南向き、追焚機能浴室、温水洗浄便座、エレベーター、洗面所独立、洗面化粧台、宅配ボックス、3口以上コンロ、防犯カメラ、オートバス、グリル付、ウォークインクロゼット、保証人不要、全居室フローリング、床暖房、全室南向き、楽器相談、フロントサービス、納戸、南面リビング、エレベーター2基、南面3室、3駅以上利用可、3沿線以上利用可、駅徒歩5分以内、タワー型マンション、敷地内ごみ置き場、日勤管理、都市ガス、南面バルコニー、天井高シューズクロゼット、保証会社利用可 | ||
部屋の情報
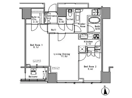
| 間取り | 2SLDK | 専有面積 | 68.22m2 |
|---|---|---|---|
| 所在階 / 向き | 23階 / 南 | バルコニー面積 | - |
| 水道 / ガス | - | ||
| 設備 | バス・トイレ別、2階以上、オートロック、テレビドアホン、宅配ボックス、浴室乾燥機、ウォークインクローゼット、追い焚き、システムキッチン、エアコン、エレベーター、温水洗浄便座、南向き、バルコニー、フローリング、洗髪洗面化粧台、タワーマンション、床暖房、2口コンロ、コンロ:ガス、洗濯機:室内 | ||
| 当社物件ID | 25236115 | ||
建物の情報
| 建物名 | WHITE TOWER HAMAMATSUCHO ホワイトタワー浜松町 | ||
|---|---|---|---|
| 所在地 | 東京都港区浜松町 | ||
| 交通 | JR山手線 浜松町駅 徒歩3分 都営大江戸線 大門駅(東京) 徒歩3分 都営三田線 御成門駅 徒歩8分 | ||
| 階数 | 地下1地上24階建 | 総戸数 | - |
| 築年月 | 2008年02月 / 築18年 | エレベーター | あり |
| 駐車場 | なし | バイク置き場 | - |
| 駐輪場 | - | 管理人/管理会社 | - |
| 周辺環境 | その他 世界貿易センタービル(ショッピングセンター)まで385m その他 マルエツプチ汐留シオサイト店(スーパー)まで565m その他 ローソン浜松町一丁目店(コンビニ)まで4m その他 トモズ浜松町店(ドラッグストア)まで259m その他 エフワン浜松町店(ショッピングセンター)まで241m その他 タリーズコーヒー浜松町駅北口店(飲食店)まで269m | ||
| 建物種別 | マンション | 建物構造 | RC(鉄筋コンクリート) |
この部屋の取扱い不動産会社
| 会社名 | そらうみリアルエステート(株)賃貸事業本部(SUUMO経由) | ||
|---|---|---|---|
| 所在地 | 東京都港区麻布十番1-11-16 SHビル1階 | 交通 | - |
| 営業時間 | 午前9時30分~午後9時30分 | 定休日 | 無休 |
| 免許番号 | 東京都知事94395 | 取引態様 | 仲介 |
| 不動産会社管理番号 | 100471576239 | 当社管理番号 | 89 |
| 所属団体 | (公社)東京都宅地建物取引業協会会員 | ||
| 公正取引協議会 | (公社)首都圏不動産公正取引協議会加盟 | ||
| 取扱い物件情報 | 物件詳細へ | ||
※各種情報と現状に差異がある場合は、現状優先となります。問い合わせをすることで、より詳しい条件、情報を確認する事ができます。
提供:そらうみリアルエステート(株)賃貸事業本部(SUUMO経由)
この物件が気になったら掲載期限まであと8日
WHITE TOWER HAMAMATSUCHO ホワイトタワー浜松町に条件(家賃・エリア)が近い物件一覧
| 写真 | 家賃 管理費等 | 敷金 礼金 | 間取り 専有面積 | 築年数 | 最寄り駅 所在地 | キープ | 詳細 |
|---|---|---|---|---|---|---|---|
マンション BRILLAIST西麻布霞町(1LDK/3階) | |||||||
![]() | 30万円 1.5万円 | 30万円 30万円 | 1LDK 54.78m2 | 築18年 | 東京メトロ日比谷線 広尾駅 徒歩10分 東京メトロ日比谷線 六本木駅 徒歩13分 東京メトロ千代田線 乃木坂駅 徒歩16分 東京都港区西麻布 | 詳細を見る | |
マンション THE TOKYO TOWERS(3LDK/36階) | |||||||
![]() | 44万円 1万円 | 44万円 44万円 | 3LDK 91.58m2 | 築19年 | 都営大江戸線 勝どき駅 徒歩5分 東京メトロ有楽町線 月島駅 徒歩19分 東京メトロ日比谷線 築地駅 徒歩22分 東京都中央区勝どき | 詳細を見る | |
マンション パークコート千代田富士見ザ タワー(1LDK/5階) | |||||||
![]() | 29.7万円 1.2万円 | 29.7万円 14.85万円 | 1LDK 42.51m2 | 築12年 | JR中央線 飯田橋駅 徒歩6分 都営大江戸線 牛込神楽坂駅 徒歩15分 東京メトロ東西線 九段下駅 徒歩16分 東京都千代田区富士見 | 詳細を見る | |
マンション パークリュクス神田(3LDK/10階) | |||||||
![]() | 38.2万円 2万円 | なし 38.2万円 | 3LDK 61.89m2 | 築5年 | JR山手線 神田駅(東京) 徒歩3分 JR中央線 神田駅(東京) 徒歩3分 JR京浜東北線 神田駅(東京) 徒歩3分 東京都千代田区神田多町 | 詳細を見る | |
マンション ザ・東京タワーズシータワー(2LDK/44階) | |||||||
![]() | 38.9万円 2.5万円 | 38.9万円 38.9万円 | 2LDK 80.23m2 | 築20年 | 都営大江戸線 勝どき駅 徒歩8分 東京メトロ有楽町線 月島駅 徒歩22分 東京メトロ日比谷線 築地駅 徒歩26分 東京都中央区勝どき | 詳細を見る | |
マンション THE TOKYO TOWERS MIDTOWER(2LDK/28階) | |||||||
![]() | 31.9万円 2万円 | 63.8万円 31.9万円 | 2LDK 70.38m2 | 築19年 | 都営大江戸線 勝どき駅 徒歩6分 東京都中央区勝どき | 詳細を見る | |
マンション 六本木ビュータワー(2LDK/10階) | |||||||
![]() | 35万円 なし | 70万円 なし | 2LDK 57.98m2 | 築33年 | 東京メトロ日比谷線 神谷町駅 徒歩5分 東京メトロ南北線 六本木一丁目駅 徒歩6分 東京メトロ銀座線 溜池山王駅 徒歩13分 東京都港区六本木 | 詳細を見る | |







