賃貸マンション
京都市烏丸線 北大路駅 徒歩7分 4階建 築12年の賃貸物件情報(1K/3階)
| 家賃 | 管理費等 | 敷金 | 礼金 | 間取り | 専有面積 |
|---|---|---|---|---|---|
| 5.9万円 | 3,000円 | 6万円 | 13万円 | 1K | 24.22m2 |
入居決定でお祝い金最大100,000円
Point
北大路駅徒歩圏内1K 北大路徒歩圏内。色々そろった1Kです。
提供:株式会社 京都ライフ 北山店(賃貸スモッカ経由)

詳細情報 京都市烏丸線 北大路駅 徒歩7分 4階建 築12年
物件紹介
京都市烏丸線北大路駅から徒歩7分にあり、駅近で通勤通学に便利なマンションです。
このお部屋は2階以上に位置しているので通行人や周囲の住人からの視線が気になりにくく、建物のエントランスはオートロックがついているので防犯性が高くなっています。
人気の角部屋で周囲の居住者の生活音も気になりにくく、また、フローリングのお部屋なのでお掃除もラクラク。キッチンはシステムキッチン仕様になっていますので、お料理好きの方にもぴったり。また、バス・トイレは別で、のんびりお風呂タイムも楽しめるでしょう。
通信設備面ではBSアンテナがありますので、おうち時間も充実するでしょう(別途工事、契約料が必要な場合あり)。
このお部屋は2階以上に位置しているので通行人や周囲の住人からの視線が気になりにくく、建物のエントランスはオートロックがついているので防犯性が高くなっています。
人気の角部屋で周囲の居住者の生活音も気になりにくく、また、フローリングのお部屋なのでお掃除もラクラク。キッチンはシステムキッチン仕様になっていますので、お料理好きの方にもぴったり。また、バス・トイレは別で、のんびりお風呂タイムも楽しめるでしょう。
通信設備面ではBSアンテナがありますので、おうち時間も充実するでしょう(別途工事、契約料が必要な場合あり)。
お金・契約の情報
※「-」と表示されているものは、実際は料金が発生するものもございます。詳細はお問い合わせください。
| 家賃 | 5.9万円 | 管理費・共益費 | 3,000円 |
|---|---|---|---|
| 敷金 | 6万円 | 礼金 | 13万円 |
| 入居決定でお祝い金最大100,000円 | |||
| 保証金 | - | 償却・敷引 | - |
| 住宅保険料 | 住宅保険料あり | 更新料 | - |
| 契約形態 | - | 契約期間 | 2年 |
| 入居・引渡期間 | 2026年03月下旬 | 現況 | 賃貸中 |
| 契約備考 | 地下鉄北大路駅徒歩圏内、北大路通り沿いの便利なエリアのマンションです。独立洗面台付きの水周りは、機能的で広々しています。オール電化なので、ガス代は不要。火災の心配もかなり少なくなるので、初めての一人暮らしにはもってこいです。TVモニターフォン付きオートロックなので、セキュリティ重視の方にもオススメ。 水道代:2,000円 駐輪ステッカー代:330円 入居者サポート:330円 更新料:1ヶ月 保証会社:利用必須 初回:月額賃料等の50%、月額:支払い手数料330円、更新時:1万円/1年 その他設備/条件:独立洗面台、TVドアホン | ||
部屋の情報
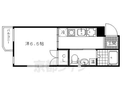
| 間取り | 1K | 専有面積 | 24.22m2 |
|---|---|---|---|
| 間取り詳細 | 洋室(6.5帖)、K(2帖) | ||
| 所在階 / 向き | 3階 / 北西 | バルコニー面積 | - |
| 水道 / ガス | - | ||
| 設備 | バス・トイレ別、2階以上、オートロック、システムキッチン、エアコン、温水洗浄便座、角部屋、バルコニー、フローリング、オール電化、コンロ:IH、BSアンテナ、洗濯機:室内 | ||
| 当社物件ID | 160222907 | ||
建物の情報
| 建物名 | 京都市烏丸線 北大路駅 徒歩7分 4階建 築12年 | ||
|---|---|---|---|
| 所在地 | 京都府京都市北区小山西大野町 | ||
| 交通 | 京都市烏丸線 北大路駅 徒歩7分 京都市烏丸線 今出川駅 徒歩19分 | ||
| 階数 | 4階建 | 総戸数 | - |
| 築年月 | 2014年07月 / 築12年 | エレベーター | - |
| 駐車場 | - | バイク置き場 | - |
| 駐輪場 | あり | 管理人/管理会社 | - |
| 建物種別 | マンション | 建物構造 | RC(鉄筋コンクリート) |
この部屋の取扱い不動産会社
| 会社名 | 株式会社 京都ライフ 北山店(賃貸スモッカ経由) | ||
|---|---|---|---|
| 所在地 | 京都市北区上賀茂岩ヶ垣内町98-2 | 交通 | - |
| 営業時間 | - | 定休日 | - |
| 免許番号 | 京都府知事(11)第6353号 | 取引態様 | 仲介 |
| 不動産会社管理番号 | kyotolife_49483-303-13 | 当社管理番号 | 463 |
| 所属団体 | 京都府宅地建物取引業協会\n公益社団法人近畿地区不動産公正取引協議会 | ||
| 公正取引協議会 | 全国宅地建物取引業保証協会 | ||
| 取扱い物件情報 | 物件詳細へ | ||
※各種情報と現状に差異がある場合は、現状優先となります。問い合わせをすることで、より詳しい条件、情報を確認する事ができます。
提供:株式会社 京都ライフ 北山店(賃貸スモッカ経由)
この物件が気になったら掲載期限まであと5日
京都市烏丸線 北大路駅 徒歩7分 4階建 築12年に条件(家賃・エリア)が近い物件一覧
| 写真 | 家賃 管理費等 | 敷金 礼金 | 間取り 専有面積 | 築年数 | 最寄り駅 所在地 | キープ | 詳細 |
|---|---|---|---|---|---|---|---|
マンション コスモリード京都今出川(1K/2階) | |||||||
![]() | 5.7万円 5,000円 | なし 5.7万円 | 1K 25.2m2 | 築42年 | 京福電鉄北野線 北野白梅町駅 徒歩15分 地下鉄烏丸線 今出川駅 徒歩20分 地下鉄烏丸線 鞍馬口駅 徒歩28分 京都府京都市上京区東上善寺町 | 詳細を見る | |
アパート 京都市烏丸線 北大路駅 徒歩27分 築40年(1LDK/2階) | |||||||
![]() | 5.9万円 3,000円 | なし なし | 1LDK 38.58m2 | 築40年 | 京都市烏丸線 北大路駅 徒歩27分 京都市烏丸線 北山駅(京都) 徒歩33分 京都府京都市北区西賀茂神光院町 | 詳細を見る | |
マンション 京都市烏丸線 北大路駅 徒歩18分 築35年(1LDK/3階) | |||||||
![]() | 5.7万円 5,000円 | 5.7万円 5.7万円 | 1LDK 36m2 | 築35年 | 京都市烏丸線 北大路駅 徒歩18分 京都市烏丸線 北山駅(京都) 徒歩26分 京都府京都市北区紫竹牛若町 | 詳細を見る | |
アパート ヒューマンヒルズ3(1K/2階) | |||||||
![]() | 4.8万円 5,000円 | なし なし | 1K 25.42m2 | 築18年 | 山陰本線 園部駅 徒歩20分 京都府南丹市園部町小山西町 | 詳細を見る | |
マンション 京都市烏丸線 北山駅(京都) 徒歩16分 築36年(1K/2階) | |||||||
![]() | 5万円 なし | 5万円 5万円 | 1K 24.5m2 | 築36年 | 京都市烏丸線 北山駅(京都) 徒歩16分 京都市烏丸線 北大路駅 徒歩17分 京都府京都市左京区下鴨本町 | 詳細を見る | |
マンション 阪急電鉄京都線 洛西口駅 徒歩9分 築43年(2DK/1階) | |||||||
![]() | 5.6万円 2,000円 | なし なし | 2DK 44.67m2 | 築43年 | 阪急電鉄京都線 洛西口駅 徒歩9分 東海道本線 桂川駅(京都) 徒歩18分 京都府向日市物集女町御所海道 | 詳細を見る | |
マンション 京福北野線 北野白梅町駅 徒歩18分 築41年(1K/3階) | |||||||
![]() | 4万円 3,000円 | 4万円 なし | 1K 22.9m2 | 築41年 | 京福北野線 北野白梅町駅 徒歩18分 京都市烏丸線 北大路駅 徒歩27分 京都府京都市北区衣笠御所ノ内町 | 詳細を見る | |
アパート 京都市烏丸線 北山駅(京都) 徒歩40分 築35年(1SLDK/1階) | |||||||
![]() | 7.9万円 4,500円 | 2万円 6万円 | 1SLDK 50m2 | 築35年 | 京都市烏丸線 北山駅(京都) 徒歩40分 京都市烏丸線 北大路駅 徒歩41分 京都府京都市北区西賀茂井ノ口町 | 詳細を見る | |









