賃貸マンション
ザ・熊本ガーデンズの賃貸物件情報(3LDK/9階)
| 家賃 | 管理費等 | 敷金 | 礼金 | 間取り | 専有面積 |
|---|---|---|---|---|---|
| 22万円 | なし | 22万円 | 22万円 | 3LDK | 74.58m2 |
入居決定でお祝い金最大100,000円
- 保証金
- -
- 償却・敷引
- 22万円
- 築年数
- 築7年
- 所在階
- 9階
- 向き
- 北
Point
桜町バスターミナル直結、市電の辛島町駅から徒歩2分の好立地。各フロアに24時間利用可能なゴミ置場を設置、冷暖房の効率を高めるLow-E複層ガラスを採用するなど、充実した設備のマンションです。
提供:(株)コスギ不動産リーシング熊本駅支店(SUUMO経由)

詳細情報 ザ・熊本ガーデンズ
物件紹介
ザ・熊本ガーデンズは熊本市電上熊本線西辛島町駅から徒歩3分にあり、駅近で通勤通学に便利なマンションです。
このお部屋は2階以上に位置しているので、通行人や周囲の住人からの視線が気になりにくく、防犯面でも安心。建物のエントランスはオートロックがついており、インターホンにはTVモニタもついているため、相手の顔を確認してから来客対応することができます。
フローリングのお部屋なのでお掃除もラクラク。キッチンはシステムキッチン仕様になっていますので、お料理好きの方にもぴったり。バス・トイレは別なので、のんびりお風呂タイムも楽しめるでしょう。また、雨の日でも浴室乾燥機を使えば、お洗濯も問題ありません。
通信設備面では、インターネットが無料で使えるので、月々の出費を抑えられるのも魅力です(別途工事等が必要な場合あり)。
建物にはエレベーターがついているので、重い荷物があっても安心。共用部には宅配ボックスが設定されているので、不在の時にも荷物を受け取ることができます。
このお部屋は2階以上に位置しているので、通行人や周囲の住人からの視線が気になりにくく、防犯面でも安心。建物のエントランスはオートロックがついており、インターホンにはTVモニタもついているため、相手の顔を確認してから来客対応することができます。
フローリングのお部屋なのでお掃除もラクラク。キッチンはシステムキッチン仕様になっていますので、お料理好きの方にもぴったり。バス・トイレは別なので、のんびりお風呂タイムも楽しめるでしょう。また、雨の日でも浴室乾燥機を使えば、お洗濯も問題ありません。
通信設備面では、インターネットが無料で使えるので、月々の出費を抑えられるのも魅力です(別途工事等が必要な場合あり)。
建物にはエレベーターがついているので、重い荷物があっても安心。共用部には宅配ボックスが設定されているので、不在の時にも荷物を受け取ることができます。
お金・契約の情報
※「-」と表示されているものは、実際は料金が発生するものもございます。詳細はお問い合わせください。
| 家賃 | 22万円 | 管理費・共益費 | なし |
|---|---|---|---|
| 敷金 | 22万円 | 礼金 | 22万円 |
| 入居決定でお祝い金最大100,000円 | |||
| 保証金 | - | 償却・敷引 | 22万円 |
| 住宅保険料 | - | 更新料 | - |
| 保証会社利用 | 必須 | 保証会社名 | - |
| 保証会社費用 | - | 保証会社備考 | 保証会社利用必 アルファー 保証料:賃料総額×50% |
| 契約形態 | 定期借家 | 契約期間 | 5年 |
| 入居・引渡期間 | 即時 | 現況 | - |
| 契約備考 | 常駐管理/3段階チェックシステムと防犯カメラでセキュリティー安心。家族でも余裕の3LDK。共用設備として、来客用のゲストルームやオーナーズラウンジも利用可能です。是非一度ご内覧ください。 鍵交換費 3LDK 定期借家5年 損保【2万円2年】 バストイレ別、バルコニー、エアコン、クロゼット、フローリング、シャワー付洗面台、TVインターホン、浴室乾燥機、オートロック、室内洗濯置、シューズボックス、システムキッチン、追焚機能浴室、温水洗浄便座、エレベーター、洗面所独立、洗面化粧台、宅配ボックス、即入居可、礼金不要、3口以上コンロ、対面式キッチン、防犯カメラ、分譲賃貸、オートバス、全居室洋室、敷金1ヶ月、全居室フローリング、ガスレンジ付、駅まで平坦、ネット使用料不要、食器洗乾燥機、眺望良好、ダブルロックキー、ディスポーザー、24時間換気システム、外壁コンクリート、複層ガラス、クロゼット2ヶ所、平坦地、エレベーター2基、クロゼット3ヶ所、耐震構造、バス2路線、バス停徒歩3分以内、タワー型マンション、集会所、ゲストルーム、24時間ゴミ出し可、敷地内ごみ置き場、平面駐車場、日勤管理、LDK18畳以上、都市ガス、ワイドバルコニー、通風良好 | ||
部屋の情報
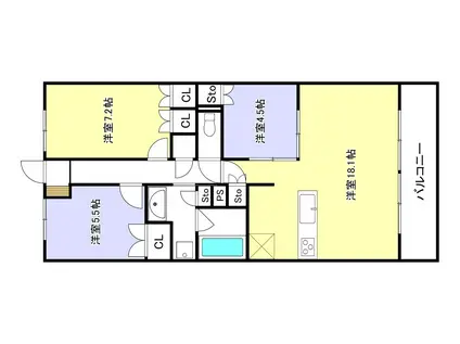
| 間取り | 3LDK | 専有面積 | 74.58m2 |
|---|---|---|---|
| 所在階 / 向き | 9階 / 北 | バルコニー面積 | - |
| 水道 / ガス | - | ||
| 設備 | バス・トイレ別、2階以上、オートロック、テレビドアホン、宅配ボックス、浴室乾燥機、追い焚き、インターネット対応、システムキッチン、エアコン、エレベーター、温水洗浄便座、バルコニー、フローリング、洗髪洗面化粧台、タワーマンション、2口コンロ、コンロ:ガス、インターネット使用料無料、洗濯機:室内 | ||
| 当社物件ID | 158496403 | ||
建物の情報
| 建物名 | ザ・熊本ガーデンズ | ||
|---|---|---|---|
| 所在地 | 熊本県熊本市中央区桜町 | ||
| 交通 | 熊本市電上熊本線 西辛島町駅 徒歩3分 熊本市電健軍線 辛島町駅 徒歩3分 熊本市電健軍線 花畑町駅 徒歩5分 | ||
| 階数 | 15階建 | 総戸数 | - |
| 築年月 | 2019年09月 / 築7年 | エレベーター | あり |
| 駐車場 | 空有 19800円 | バイク置き場 | - |
| 駐輪場 | - | 管理人/管理会社 | - |
| 周辺環境 | その他 SAKURA MACHI Kumamoto(ショッピングセンター)まで170m その他 業務スーパー辛島公園店(スーパー)まで140m その他 ローソン熊本辛島町店(コンビニ)まで130m その他 マクドナルドSAKURAMACHI熊本店(飲食店)まで130m その他 熊本市立慶徳小学校(小学校)まで450m その他 熊本中央郵便局(郵便局)まで520m | ||
| 建物種別 | マンション | 建物構造 | 鉄骨造 |
この部屋の取扱い不動産会社
| 会社名 | (株)タケダコーポレーション(SUUMO経由) | ||
|---|---|---|---|
| 所在地 | 熊本県熊本市中央区白山1-4-1 | 交通 | - |
| 営業時間 | 9:00~18:00 | 定休日 | 日・祝 |
| 免許番号 | 熊本県知事4172 | 取引態様 | 仲介 |
| 不動産会社管理番号 | 100423923959 | 当社管理番号 | 89 |
| 所属団体 | (公社)熊本県宅地建物取引業協会会員 | ||
| 公正取引協議会 | (一社)九州不動産公正取引協議会加盟 | ||
| 取扱い物件情報 | 物件詳細へ | ||
※各種情報と現状に差異がある場合は、現状優先となります。問い合わせをすることで、より詳しい条件、情報を確認する事ができます。
提供:(株)タケダコーポレーション(SUUMO経由)
この物件が気になったら掲載期限まであと2日
ザ・熊本ガーデンズに条件(家賃・エリア)が近い物件一覧
| 写真 | 家賃 管理費等 | 敷金 礼金 | 間取り 専有面積 | 築年数 | 最寄り駅 所在地 | キープ | 詳細 |
|---|---|---|---|---|---|---|---|
マンション I.PROUD神水(3LDK/8階) | |||||||
![]() | 14.3万円 5,000円 | なし 28.6万円 | 3LDK 80.32m2 | 新築 | 熊本市健軍線 八丁馬場駅 徒歩2分 熊本県熊本市中央区神水1丁目 | 詳細を見る | |
マンション ムライチ・大江プレミアム(3LDK/3階) | |||||||
![]() | 23万円 5,000円 | なし 46万円 | 3LDK 132.79m2 | 築1年 | 豊肥本線 新水前寺駅 徒歩8分 熊本県熊本市中央区大江5丁目 | 詳細を見る | |
マンション オーヴィジョン九品寺(1LDK/13階) | |||||||
![]() | 12.5万円 1万円 | なし なし | 1LDK 62.46m2 | 築7年 | 熊本市電健軍線 交通局前駅(熊本) 徒歩7分 熊本県熊本市中央区九品寺 | 詳細を見る | |
マンション シャーメゾン壺川(2LDK/2階) | |||||||
![]() | 13.2万円 8,500円 | なし なし | 2LDK 64.15m2 | 築1年 | 熊本県熊本市中央区壺川 | 詳細を見る | |
マンション シャーメゾン 新屋敷 PREMIUM(2LDK/3階) | |||||||
![]() | 15.4万円 1万円 | なし 30.8万円 | 2LDK 66.27m2 | 築1年 | 熊本市健軍線 九品寺交差点駅 徒歩12分 熊本県熊本市中央区新屋敷3丁目 | 詳細を見る | |
マンション アルバガーデングランデージ白川公園(3LDK/11階) | |||||||
![]() | 14.4万円 なし | 28.8万円 14.4万円 | 3LDK 73.65m2 | 築14年 | 熊本電気鉄道 藤崎宮前駅 徒歩6分 熊本県熊本市中央区南千反畑町 | 詳細を見る | |
マンション T.PROUD水前寺公園(3LDK/9階) | |||||||
![]() | 14.1万円 5,000円 | なし 28.2万円 | 3LDK 99.2m2 | 築9年 | 熊本市電健軍線 市立体育館前駅 徒歩13分 熊本市電健軍線 水前寺公園駅 徒歩15分 熊本県熊本市中央区水前寺公園 | 詳細を見る | |
マンション エイルマンション藤崎宮前ロゼア 606号(2LDK/6階) | |||||||
![]() | 14万円 1万円 | 28万円 28万円 | 2LDK 63.44m2 | 築2年 | 熊本電気鉄道 藤崎宮前駅 徒歩3分 熊本市電健軍線 水道町駅 徒歩10分 熊本県熊本市中央区南千反畑町 | 詳細を見る | |
熊本市中央区の町名から探す
熊本市中央区の部屋を間取りから探す
熊本市中央区の駅から探す
熊本市中央区と隣接している市区町村から探す
- 熊本市中央区(5,841)









