賃貸マンション
コンシェリア品川南 THE GRAND RESIDENCEの賃貸物件情報(1K/1階)
| 家賃 | 管理費等 | 敷金 | 礼金 | 間取り | 専有面積 |
|---|---|---|---|---|---|
| 8.95万円 | 8,500円 | なし | なし | 1K | 21.75m2 |
入居決定でお祝い金最大100,000円
- 保証金
- -
- 償却・敷引
- -
- 築年数
- 築8年
- 所在階
- 1階
- 向き
- 北
Point
★レイアウトのしやすい快適居室空間★商業・公共施設が充実した住みやすい環境★浄水器や独立洗面台など充実の設備★高級感のあるエントランスホール★立会川駅徒歩6分の利便と閑静に囲まれた都心生活★
提供:(株)クレアスレント五反田店(SUUMO経由)

詳細情報 コンシェリア品川南 THE GRAND RESIDENCE
物件紹介
コンシェリア品川南 THE GRAND RESIDENCEは京急本線立会川駅から徒歩6分にあり、駅近で通勤通学に便利なマンションです。
建物のエントランスはオートロックがついており、インターホンにはTVモニタもついているため、相手の顔を確認してから来客対応することができます。
おしゃれなデザイナーズ物件!フローリングのお部屋なのでお掃除もラクラク。キッチンはシステムキッチン仕様になっていますので、お料理好きの方にもぴったり。バス・トイレは別なので、のんびりお風呂タイムも楽しめるでしょう。また、雨の日でも浴室乾燥機を使えば、お洗濯も問題ありません。
通信設備面では、インターネットが無料で使えるので、月々の出費を抑えられるのも魅力です。また、BSアンテナ・CSアンテナもありますので、おうち時間も充実するでしょう(別途工事、BS・CSの契約料等が必要な場合あり)。
建物にはエレベーターがついているので、重い荷物があっても安心。共用部には宅配ボックスが設定されているので、不在の時にも荷物を受け取ることができます。
建物のエントランスはオートロックがついており、インターホンにはTVモニタもついているため、相手の顔を確認してから来客対応することができます。
おしゃれなデザイナーズ物件!フローリングのお部屋なのでお掃除もラクラク。キッチンはシステムキッチン仕様になっていますので、お料理好きの方にもぴったり。バス・トイレは別なので、のんびりお風呂タイムも楽しめるでしょう。また、雨の日でも浴室乾燥機を使えば、お洗濯も問題ありません。
通信設備面では、インターネットが無料で使えるので、月々の出費を抑えられるのも魅力です。また、BSアンテナ・CSアンテナもありますので、おうち時間も充実するでしょう(別途工事、BS・CSの契約料等が必要な場合あり)。
建物にはエレベーターがついているので、重い荷物があっても安心。共用部には宅配ボックスが設定されているので、不在の時にも荷物を受け取ることができます。
お金・契約の情報
※「-」と表示されているものは、実際は料金が発生するものもございます。詳細はお問い合わせください。
| 家賃 | 8.95万円 | 管理費・共益費 | 8,500円 |
|---|---|---|---|
| 敷金 | なし | 礼金 | なし |
| 入居決定でお祝い金最大100,000円 | |||
| 保証金 | - | 償却・敷引 | - |
| 住宅保険料 | - | 更新料 | - |
| 保証会社利用 | 必須 | 保証会社名 | - |
| 保証会社費用 | - | 保証会社備考 | 保証会社利用必 初回保証委託料総賃料70%年間保証委託料1万円 |
| 契約形態 | - | 契約期間 | - |
| 入居・引渡期間 | - | 現況 | - |
| 契約備考 | オンライン内見・現地お待合わせも可能。退去時クリーニング費49500円。安心入居パック39600円。2名入居時賃料5000円増額(1年未満解約違約金1か月)ファストドクターの入居者サポート付、仕様・図面・写真等に相違があった場合は現況優先 合計5.43万円(内訳:口座振替サービス料0.528万円室内抗菌代1.65万円鍵交換代3.245万円) 更新料 新賃料1.50ヶ月分 1K 二人入居可 普通借家2年 損保【要】 バストイレ別、バルコニー、エアコン、ガスコンロ対応、クロゼット、フローリング、TVインターホン、浴室乾燥機、オートロック、室内洗濯置、シューズボックス、システムキッチン、温水洗浄便座、脱衣所、エレベーター、洗面所独立、洗面化粧台、2口コンロ、駐輪場、宅配ボックス、礼金不要、敷金不要、防犯カメラ、照明付、分譲賃貸、保証人不要、二人入居相談、バイク置場、24時間緊急通報システム、デザイナーズ、CS、ネット専用回線、ネット使用料不要、浄水器、ダブルロックキー、24時間換気システム、人感照明センサー、防音サッシ、3駅以上利用可、二重床構造、二重天井構造、24時間ゴミ出し可、敷地内ごみ置き場、当社管理物件、耐震ラッチ吊戸棚、都市ガス、室内物干機、ダウンライト、BS、マルチメディアコンセント、敷金・礼金不要、IT重説対応物件、初期費用カード決済可 入居日:'26年4月上旬 | ||
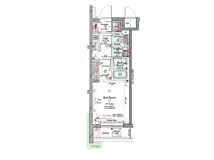
部屋の情報
| 間取り | 1K | 専有面積 | 21.75m2 |
|---|---|---|---|
| 所在階 / 向き | 1階 / 北 | バルコニー面積 | 2m2 |
| 水道 / ガス | - | ||
| 設備 | バス・トイレ別、オートロック、テレビドアホン、宅配ボックス、浴室乾燥機、インターネット対応、システムキッチン、エアコン、エレベーター、温水洗浄便座、バルコニー、フローリング、洗髪洗面化粧台、2口コンロ、コンロ:ガス、デザイナーズ、CSアンテナ、BSアンテナ、インターネット使用料無料、洗濯機:室内 | ||
| 当社物件ID | 30018973 | ||
建物の情報
| 建物名 | コンシェリア品川南 THE GRAND RESIDENCE | ||
|---|---|---|---|
| 所在地 | 東京都品川区南大井 | ||
| 交通 | 京急本線 立会川駅 徒歩6分 JR京浜東北線 大森駅(東京) 徒歩14分 JR京浜東北線 大井町駅 徒歩19分 | ||
| 階数 | 5階建 | 総戸数 | 116戸 |
| 築年月 | 2019年01月 / 築8年 | エレベーター | あり |
| 駐車場 | なし | バイク置き場 | あり |
| 駐輪場 | あり | 管理人/管理会社 | - |
| 周辺環境 | その他 ローソン 品川南大井四丁目店(コンビニ)まで155m その他 まいばすけっと 立会川駅西店(スーパー)まで387m その他 スギ薬局 南大井店(ドラッグストア)まで440m その他 まいばすけっと 南大井3丁目店(スーパー)まで663m その他 ウィラ大井(ショッピングセンター)まで1122m その他 ファミリーマート いすゞ本社前店(コンビニ)まで1045m | ||
| 建物種別 | マンション | 建物構造 | RC(鉄筋コンクリート) |
この部屋の取扱い不動産会社
| 会社名 | (株)クレアスレント五反田店(SUUMO経由) | ||
|---|---|---|---|
| 所在地 | 東京都品川区西五反田1-32-11オークラビル8階 | 交通 | - |
| 営業時間 | 10:00~19:00 | 定休日 | 水曜日 |
| 免許番号 | 国土交通大臣10473 | 取引態様 | 仲介 |
| 不動産会社管理番号 | 100485377383 | 当社管理番号 | 89 |
| 所属団体 | (公社)東京都宅地建物取引業協会会員 | ||
| 公正取引協議会 | (公社)首都圏不動産公正取引協議会加盟 | ||
| 取扱い物件情報 | 物件詳細へ | ||
※各種情報と現状に差異がある場合は、現状優先となります。問い合わせをすることで、より詳しい条件、情報を確認する事ができます。
提供:(株)クレアスレント五反田店(SUUMO経由)
この物件が気になったら掲載期限まであと11日
コンシェリア品川南 THE GRAND RESIDENCEに条件(家賃・エリア)が近い物件一覧
| 写真 | 家賃 管理費等 | 敷金 礼金 | 間取り 専有面積 | 築年数 | 最寄り駅 所在地 | キープ | 詳細 |
|---|---|---|---|---|---|---|---|
アパート ロジェ西蒲田(1DK/4階) | |||||||
![]() | 8.7万円 なし | 8.7万円 8.7万円 | 1DK 25.89m2 | 築37年 | JR京浜東北線 蒲田駅 徒歩12分 東急池上線 蓮沼駅 徒歩15分 京急本線 梅屋敷駅(東京) 徒歩16分 東京都大田区西蒲田 | 詳細を見る | |
マンション ヤマザキビル(1LDK/3階) | |||||||
![]() | 8.4万円 2,000円 | 8.4万円 なし | 1LDK 27m2 | 築36年 | 京浜急行電鉄空港線 糀谷駅 徒歩13分 京浜急行電鉄空港線 大鳥居駅 徒歩14分 東京都大田区西糀谷2丁目 | 詳細を見る | |
マンション プレサンス木場公園(1DK/5階) | |||||||
![]() | 13.9万円 1.1万円 | なし 13.9万円 | 1DK 25.95m2 | 築3年 | 東京メトロ東西線 木場駅 徒歩9分 都営大江戸線 門前仲町駅 徒歩19分 JR京葉線 潮見駅 徒歩25分 東京都江東区東陽 | 詳細を見る | |
アパート タカマルハイム(1LDK/1階) | |||||||
![]() | 11.1万円 3,000円 | 11.1万円 22.2万円 | 1LDK 34m2 | 築11年 | 東急多摩川線 武蔵新田駅 徒歩8分 東急多摩川線 下丸子駅 徒歩9分 東京都大田区下丸子2丁目 | 詳細を見る | |
マンション THE AIGRETTE MINAMI‐KAMATA(1K/2階) | |||||||
![]() | 11.8万円 1万円 | 11.8万円 11.8万円 | 1K 27.35m2 | 築3年 | 京急本線 京急蒲田駅 徒歩4分 京急本線 梅屋敷駅(東京) 徒歩11分 京急空港線 糀谷駅 徒歩11分 東京都大田区南蒲田 | 詳細を見る | |
マンション ライブコート大鳥居(ワンルーム/5階) | |||||||
![]() | 13.5万円 1万円 | 13.5万円 13.5万円 | ワンルーム 37.1m2 | 築18年 | 京急空港線 大鳥居駅 徒歩3分 京急空港線 穴守稲荷駅 徒歩11分 京急空港線 糀谷駅 徒歩13分 東京都大田区萩中 | 詳細を見る | |
マンション XEBEC池上Ⅱ(1K/2階) | |||||||
![]() | 9.3万円 8,000円 | なし 9.3万円 | 1K 25.65m2 | 築11年 | 東急池上線 池上駅 徒歩8分 東急多摩川線 武蔵新田駅 徒歩14分 京浜東北・根岸線 蒲田駅 徒歩26分 東京都大田区池上3丁目 | 詳細を見る | |
マンション SEED JUST B-BASE Ⅱ(1LDK/4階) | |||||||
![]() | 9.9万円 1.5万円 | 9.9万円 9.9万円 | 1LDK 25.41m2 | 新築 | 東京モノレール羽田 昭和島駅 徒歩11分 京浜急行電鉄本線 梅屋敷駅(東京) 徒歩19分 東京都大田区大森南4丁目 | 詳細を見る | |









