賃貸一戸建て
名鉄豊田線 三好ケ丘駅 バス乗車時間:20分 桜5丁目バス停で下車 徒歩4分 2階建 築10年の賃貸物件情報(4LDK)
| 家賃 | 管理費等 | 敷金 | 礼金 | 間取り | 専有面積 |
|---|---|---|---|---|---|
| 12万円 | なし | 24万円 | 12万円 | 4LDK | 132.93m2 |
入居決定でお祝い金最大100,000円
Point
まずはお問い合わせ!
不動産会社は街のプロ、あなたに合った物件がきっと見つかります。
提供:ハウスコム東海株式会社 大樹寺店

詳細情報 名鉄豊田線 三好ケ丘駅 バス乗車時間:20分 桜5丁目バス停で下車 徒歩4分 2階建 築10年
物件紹介
このお部屋のインターホンにはTVモニタがついているため、相手の顔を確認してから来客対応することができます。
フローリングのお部屋なのでお掃除もラクラク。室内には人気のウォークインクローゼットがありますので、たくさんの荷物も効率的に収納ができます。キッチンはシステムキッチン仕様になっていますので、お料理好きの方にもぴったり。また、バス・トイレは別で、のんびりお風呂タイムも楽しめるでしょう。
通信設備面ではCATVに対応しているので、おうち時間も充実するでしょう(別途工事、契約料が必要な場合あり)。
フローリングのお部屋なのでお掃除もラクラク。室内には人気のウォークインクローゼットがありますので、たくさんの荷物も効率的に収納ができます。キッチンはシステムキッチン仕様になっていますので、お料理好きの方にもぴったり。また、バス・トイレは別で、のんびりお風呂タイムも楽しめるでしょう。
通信設備面ではCATVに対応しているので、おうち時間も充実するでしょう(別途工事、契約料が必要な場合あり)。
お金・契約の情報
※「-」と表示されているものは、実際は料金が発生するものもございます。詳細はお問い合わせください。
| 家賃 | 12万円 | 管理費・共益費 | なし |
|---|---|---|---|
| 敷金 | 24万円 | 礼金 | 12万円 |
| 入居決定でお祝い金最大100,000円 | |||
| 保証金 | - | 償却・敷引 | - |
| 住宅保険料 | 1円 | 更新料 | - |
| その他費用 | 駐車場登録料 1台(利用時のみ):1.1万円、19800円: | ||
| 保証会社利用 | 必須 | 保証会社名 | - |
| 保証会社費用 | - | 保証会社備考 | 保証会社 要:初回 賃料総額100%+月額 賃料総額2%(最低1,000円) |
| 契約形態 | - | 契約期間 | 2年 |
| 入居・引渡期間 | 2026年05月上旬 | 現況 | - |
| 入居可能条件 | 事務所不可 | ||
| 契約備考 | 月額(リロサポプラス加入必須 2500円) その他設備/条件:室内洗濯機置き場、独立洗面台、食器洗い乾燥機、ルームシェア不可、オートバス | ||
部屋の情報
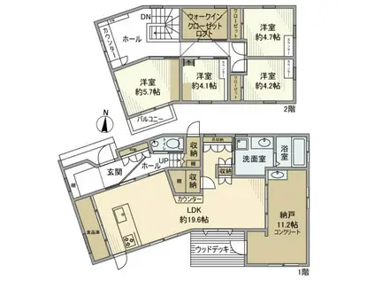
| 間取り | 4LDK | 専有面積 | 132.93m2 |
|---|---|---|---|
| 間取り詳細 | LDK(19.6帖)、洋室(4.1帖)、洋室(4.2帖)、洋室(4.7帖)、洋室(5.7帖) | ||
| 所在階 / 向き | 1階 / 南東 | バルコニー面積 | - |
| 水道 / ガス | 水道【公営】、ガス【都市】 | ||
| 設備 | バス・トイレ別、テレビドアホン、ウォークインクローゼット、追い焚き、システムキッチン、カウンターキッチン、エアコン、温水洗浄便座、バルコニー、フローリング、3口コンロ、コンロ:ガス、CATV、シャワー、給湯 | ||
| 当社物件ID | 160155293 | ||
建物の情報
| 建物名 | 名鉄豊田線 三好ケ丘駅 バス乗車時間:20分 桜5丁目バス停で下車 徒歩4分 2階建 築10年 | ||
|---|---|---|---|
| 所在地 | 愛知県豊田市大池町汐取 | ||
| 交通 | 名鉄豊田線 三好ケ丘駅 バス乗車時間:20分 桜5丁目バス停で下車 徒歩4分 | ||
| 階数 | 2階建 | 総戸数 | - |
| 築年月 | 2016年03月 / 築10年 | エレベーター | - |
| 駐車場 | 空有 [全長]0/[全幅]0/[全高]0/[総重量]0 | バイク置き場 | - |
| 駐輪場 | - | 管理人/管理会社 | - |
| 周辺環境 | その他 ドラッグストア その他 公園 その他 銀行 その他 * | ||
| 建物種別 | 一戸建て | 建物構造 | 木造 |
この部屋の取扱い不動産会社
| 会社名 | ハウスコム東海株式会社 三河豊田店 | ||
|---|---|---|---|
| 所在地 | 愛知県豊田市162齋藤ビル1階 | 交通 | - |
| 営業時間 | 10:00~18:00 | 定休日 | - |
| 免許番号 | 国土交通大臣(1)第10227号 | 取引態様 | 仲介 |
| 不動産会社管理番号 | HC5-5310227-1-0145 | 当社管理番号 | 468 |
| 所属団体 | 、 | ||
| 取扱い物件情報 | 物件詳細へ | ||
※各種情報と現状に差異がある場合は、現状優先となります。問い合わせをすることで、より詳しい条件、情報を確認する事ができます。
提供:ハウスコム東海株式会社 三河豊田店
この物件が気になったら掲載期限まであと5日
名鉄豊田線 三好ケ丘駅 バス乗車時間:20分 桜5丁目バス停で下車 徒歩4分 2階建 築10年に条件(家賃・エリア)が近い物件一覧
| 写真 | 家賃 管理費等 | 敷金 礼金 | 間取り 専有面積 | 築年数 | 最寄り駅 所在地 | キープ | 詳細 |
|---|---|---|---|---|---|---|---|
アパート LAND COURT 重原駅B(3LDK/2階) | |||||||
![]() | 15.5万円 なし | なし なし | 3LDK 74.12m2 | 築1年 | 名鉄三河線 重原駅 徒歩5分 JR東海道本線 野田新町駅 徒歩20分 JR東海道本線 刈谷駅 徒歩21分 愛知県刈谷市重原本町 | 詳細を見る | |
マンション サンハイツいぼら(3LDK/4階) | |||||||
![]() | 7.4万円 5,000円 | 14.8万円 なし | 3LDK 69.61m2 | 築37年 | リニモ はなみずき通駅 徒歩16分 地下鉄東山線 藤が丘駅(愛知) 徒歩17分 リニモ 藤が丘駅(愛知) 徒歩17分 愛知県長久手市熊田 | 詳細を見る | |
マンション AP-V(1LDK/1階) | |||||||
![]() | 8万円 5,000円 | なし 8万円 | 1LDK 67.73m2 | 築14年 | 東海道本線 東刈谷駅 徒歩14分 東海道本線 三河安城駅 徒歩15分 愛知県安城市美園町2丁目 | 詳細を見る | |
マンション パルティール(2LDK/1階) | |||||||
![]() | 7.4万円 4,000円 | なし なし | 2LDK 51.83m2 | 築20年 | 名鉄名古屋本線 知立駅 徒歩10分 愛知県知立市中山町東狭間 | 詳細を見る | |
アパート AFC RESIDENCE岡崎竜美東(2LDK/2階) | |||||||
![]() | 9.4万円 3,000円 | なし 9.4万円 | 2LDK 52.24m2 | 新築 | 名鉄名古屋本線 男川駅 徒歩10分 名鉄名古屋本線 東岡崎駅 徒歩23分 愛知環状鉄道 六名駅 徒歩38分 愛知県岡崎市竜美東 | 詳細を見る | |
マンション KAGAYAKI SQUARE(1LDK/7階) | |||||||
![]() | 8.3万円 7,000円 | 8.3万円 8.3万円 | 1LDK 36.2m2 | 築11年 | 東海道・山陽新幹線 三河安城駅 徒歩3分 東海道本線 三河安城駅 徒歩6分 愛知県安城市三河安城本町2丁目 | 詳細を見る | |
アパート ラディハウス御幸(2LDK/1階) | |||||||
![]() | 7.2万円 3,000円 | なし 7.2万円 | 2LDK 59.63m2 | 築16年 | 名鉄三河線 刈谷市駅 徒歩8分 名鉄三河線 小垣江駅 徒歩27分 JR東海道本線 刈谷駅 徒歩27分 愛知県刈谷市御幸町 | 詳細を見る | |
アパート セジュール上地(1LDK/2階) | |||||||
![]() | 7.7万円 5,500円 | なし 7.7万円 | 1LDK 46.12m2 | 築8年 | 東海道本線 相見駅 徒歩32分 愛知環状鉄道 岡崎駅 徒歩34分 愛知県岡崎市上地1丁目 | 詳細を見る | |








