賃貸マンション
ソサエティ阿佐ヶ谷の賃貸物件情報(ワンルーム/1階)
| 家賃 | 管理費等 | 敷金 | 礼金 | 間取り | 専有面積 |
|---|---|---|---|---|---|
| 10.6万円 | 8,000円 | 10.6万円 | 10.6万円 | ワンルーム | 28.08m2 |
入居決定でお祝い金最大100,000円
Point
非対面での荷物受け取りができる宅配ボックス付きのマンションです。エアコンが設置されている物件です。
提供:ハウスコム西東京株式会社 吉祥寺店

詳細情報 ソサエティ阿佐ヶ谷
物件紹介
ソサエティ阿佐ヶ谷は中央本線阿佐ケ谷駅から徒歩14分にあるマンションです。
建物のエントランスはオートロックがついており、インターホンにはTVモニタもついているため、相手の顔を確認してから来客対応することができます。
人気の角部屋で周囲の居住者の生活音も気になりにくく、また、フローリングのお部屋なのでお掃除もラクラク。キッチンはシステムキッチン仕様になっていますので、お料理好きの方にもぴったり。バス・トイレは別なので、のんびりお風呂タイムも楽しめるでしょう。また、雨の日でも浴室乾燥機を使えば、お洗濯も問題ありません。
通信設備面では、インターネット接続が可能です(別途工事、契約料が必要な場合あり)。
共用部には宅配ボックスが設定されているので、不在の時にも荷物を受け取ることができます。
コンビニまで徒歩4分の場所にあり、日用品や食料品のお買い物にも便利です。
建物のエントランスはオートロックがついており、インターホンにはTVモニタもついているため、相手の顔を確認してから来客対応することができます。
人気の角部屋で周囲の居住者の生活音も気になりにくく、また、フローリングのお部屋なのでお掃除もラクラク。キッチンはシステムキッチン仕様になっていますので、お料理好きの方にもぴったり。バス・トイレは別なので、のんびりお風呂タイムも楽しめるでしょう。また、雨の日でも浴室乾燥機を使えば、お洗濯も問題ありません。
通信設備面では、インターネット接続が可能です(別途工事、契約料が必要な場合あり)。
共用部には宅配ボックスが設定されているので、不在の時にも荷物を受け取ることができます。
コンビニまで徒歩4分の場所にあり、日用品や食料品のお買い物にも便利です。
お金・契約の情報
※「-」と表示されているものは、実際は料金が発生するものもございます。詳細はお問い合わせください。
| 家賃 | 10.6万円 | 管理費・共益費 | 8,000円 |
|---|---|---|---|
| 敷金 | 10.6万円 | 礼金 | 10.6万円 |
| 入居決定でお祝い金最大100,000円 | |||
| 保証金 | - | 償却・敷引 | - |
| 住宅保険料 | 1円 | 更新料 | - |
| 保証会社利用 | 必須 | 保証会社名 | - |
| 保証会社費用 | - | 保証会社備考 | 総賃料の50% 更新1万円 |
| 契約形態 | - | 契約期間 | 2年 |
| 入居・引渡期間 | 相談 | 現況 | - |
| 契約備考 | その他設備/条件:室内洗濯機置き場、防犯カメラ、クローゼット | ||
部屋の情報
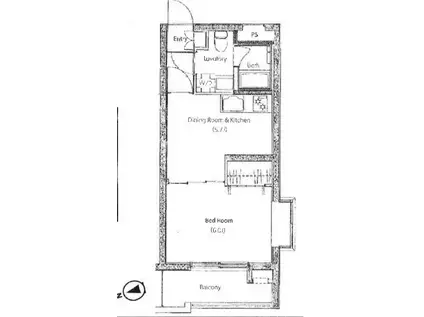
| 間取り | ワンルーム | 専有面積 | 28.08m2 |
|---|---|---|---|
| 間取り詳細 | 洋室(6帖)、DK(5.7帖) | ||
| 所在階 / 向き | 1階 / 西 | バルコニー面積 | - |
| 水道 / ガス | ガス【都市】 | ||
| 設備 | バス・トイレ別、オートロック、テレビドアホン、宅配ボックス、浴室乾燥機、追い焚き、インターネット対応、システムキッチン、エアコン、温水洗浄便座、角部屋、バルコニー、フローリング、シャワー、給湯 | ||
| 当社物件ID | 21642955 | ||
建物の情報
| 建物名 | ソサエティ阿佐ヶ谷 | ||
|---|---|---|---|
| 所在地 | 東京都杉並区本天沼1丁目 | ||
| 交通 | 中央本線 阿佐ケ谷駅 徒歩14分 西武鉄道新宿線 鷺ノ宮駅 徒歩15分 | ||
| 階数 | 4階建 | 総戸数 | - |
| 築年月 | 1984年02月 / 築42年 | エレベーター | - |
| 駐車場 | - | バイク置き場 | - |
| 駐輪場 | あり | 管理人/管理会社 | - |
| 周辺環境 | コンビニ 徒歩4分(258m) 販売店 徒歩5分(382m) その他 ドラッグストア その他 公園 その他 銀行 その他 * | ||
| 建物種別 | マンション | 建物構造 | RC(鉄筋コンクリート) |
この部屋の取扱い不動産会社
| 会社名 | ハウスコム東東京株式会社 高円寺店 | ||
|---|---|---|---|
| 所在地 | 東京都杉並区4-5ロータリービル2階 | 交通 | - |
| 営業時間 | 10:00~18:00 | 定休日 | 水曜定休 |
| 免許番号 | 東京都知事(1)第108283号 | 取引態様 | 仲介 |
| 不動産会社管理番号 | HC2-820504-115-0234 | 当社管理番号 | 468 |
| 所属団体 | 、 | ||
| 取扱い物件情報 | 物件詳細へ | ||
※各種情報と現状に差異がある場合は、現状優先となります。問い合わせをすることで、より詳しい条件、情報を確認する事ができます。
提供:ハウスコム東東京株式会社 高円寺店
この物件が気になったら掲載期限まであと4日
ソサエティ阿佐ヶ谷に条件(家賃・エリア)が近い物件一覧
| 写真 | 家賃 管理費等 | 敷金 礼金 | 間取り 専有面積 | 築年数 | 最寄り駅 所在地 | キープ | 詳細 |
|---|---|---|---|---|---|---|---|
アパート ASSETI(1K/2階) | |||||||
![]() | 7.2万円 4,000円 | なし なし | 1K 22.67m2 | 築9年 | 東京メトロ丸ノ内線 荻窪駅 徒歩15分 西武新宿線 下井草駅 徒歩18分 JR中央線 阿佐ケ谷駅 徒歩22分 東京都杉並区本天沼 | 詳細を見る | |
マンション GENOVIA中野野方GREEN VELL(1K/6階) | |||||||
![]() | 9.5万円 1万円 | なし 9.5万円 | 1K 25.75m2 | 築13年 | 西武新宿線 野方駅 徒歩8分 西武新宿線 都立家政駅 徒歩14分 西武新宿線 沼袋駅 徒歩17分 東京都中野区丸山 | 詳細を見る | |
マンション CITY WALK新江古田DUE(ワンルーム/1階) | |||||||
![]() | 13.3万円 5,000円 | なし なし | ワンルーム 34.04m2 | 築1年 | 東京都大江戸線 新江古田駅 徒歩5分 東京都中野区江原町2丁目 | 詳細を見る | |
マンション ルミエール旭町(1K/1階) | |||||||
![]() | 7.8万円 4,000円 | 7.8万円 7.8万円 | 1K 25.48m2 | 築13年 | 東京メトロ有楽町線 地下鉄成増駅 徒歩10分 東武東上線 成増駅 徒歩12分 東武東上線 下赤塚駅 徒歩16分 東京都練馬区旭町 | 詳細を見る | |
マンション コンフォリア駒場(1K/1階) | |||||||
![]() | 12.1万円 6,000円 | 12.1万円 なし | 1K 26.31m2 | 築17年 | 東急田園都市線 池尻大橋駅 徒歩10分 京王井の頭線 駒場東大前駅 徒歩15分 京王井の頭線 池ノ上駅 徒歩17分 東京都世田谷区池尻 | 詳細を見る | |
アパート ユーハイツ(2DK/1階) | |||||||
![]() | 7.9万円 なし | 7.9万円 なし | 2DK 39.6m2 | 築40年 | 東京都三鷹市新川6丁目 | 詳細を見る | |
アパート コーポ山崎(ワンルーム/1階) | |||||||
![]() | 6.7万円 なし | 6.7万円 なし | ワンルーム 16m2 | 築43年 | 京王線 代田橋駅 徒歩2分 京王線 笹塚駅 徒歩10分 京王井の頭線 新代田駅 徒歩11分 東京都世田谷区大原 | 詳細を見る | |
アパート 豊栄ハイム(1DK/2階) | |||||||
![]() | 6.9万円 なし | 6.9万円 6.9万円 | 1DK 23m2 | 築43年 | 西武新宿線 鷺ノ宮駅 徒歩10分 西武新宿線 下井草駅 徒歩11分 西武新宿線 都立家政駅 徒歩19分 東京都中野区白鷺 | 詳細を見る | |









