賃貸マンション
ラシュール・イン大橋IIの賃貸物件情報(2LDK/2階)
| 家賃 | 管理費等 | 敷金 | 礼金 | 間取り | 専有面積 |
|---|---|---|---|---|---|
| 11.3万円 | 5,000円 | なし | 22.6万円 | 2LDK | 46.48m2 |
入居決定でお祝い金最大100,000円
- 保証金
- -
- 償却・敷引
- -
- 築年数
- 新築
- 所在階
- 2階
- 向き
- -
Point
駐車場有り・都市ガス・ウォークインクローゼット2カ所!!お早めにお問い合わせください!!
提供:いい部屋ネット天神店(株)トーマスリビング(SUUMO経由)

詳細情報 ラシュール・イン大橋II
物件紹介
ラシュール・イン大橋IIは西鉄天神大牟田線大橋駅から徒歩12分にあるマンションです。
このお部屋は2階以上に位置しているので、通行人や周囲の住人からの視線が気になりにくく、防犯面でも安心。建物のエントランスはオートロックがついており、インターホンにはTVモニタもついているため、相手の顔を確認してから来客対応することができます。
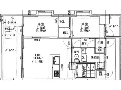
おしゃれなデザイナーズ物件!人気の角部屋で周囲の居住者の生活音も気になりにくく、また、フローリングのお部屋なのでお掃除もラクラク。室内にはウォークインクローゼットがありますので、たくさんの荷物も効率的に収納ができます。キッチンはシステムキッチン仕様になっていますので、お料理好きの方にもぴったり。バス・トイレは別なので、のんびりお風呂タイムも楽しめるでしょう。また、雨の日でも浴室乾燥機を使えば、お洗濯も問題ありません。
通信設備面では、インターネットが無料で使えるので、月々の出費を抑えられるのも魅力です。また、BSアンテナ・CSアンテナがありCATVにも対応しているので、おうち時間も充実するでしょう(別途工事、BS・CS・CATVの契約料等が必要な場合あり)。
建物にはエレベーターがついているので、重い荷物があっても安心。共用部には宅配ボックスが設定されているので、不在の時にも荷物を受け取ることができます。
このお部屋は2階以上に位置しているので、通行人や周囲の住人からの視線が気になりにくく、防犯面でも安心。建物のエントランスはオートロックがついており、インターホンにはTVモニタもついているため、相手の顔を確認してから来客対応することができます。
おしゃれなデザイナーズ物件!人気の角部屋で周囲の居住者の生活音も気になりにくく、また、フローリングのお部屋なのでお掃除もラクラク。室内にはウォークインクローゼットがありますので、たくさんの荷物も効率的に収納ができます。キッチンはシステムキッチン仕様になっていますので、お料理好きの方にもぴったり。バス・トイレは別なので、のんびりお風呂タイムも楽しめるでしょう。また、雨の日でも浴室乾燥機を使えば、お洗濯も問題ありません。
通信設備面では、インターネットが無料で使えるので、月々の出費を抑えられるのも魅力です。また、BSアンテナ・CSアンテナがありCATVにも対応しているので、おうち時間も充実するでしょう(別途工事、BS・CS・CATVの契約料等が必要な場合あり)。
建物にはエレベーターがついているので、重い荷物があっても安心。共用部には宅配ボックスが設定されているので、不在の時にも荷物を受け取ることができます。
お金・契約の情報
※「-」と表示されているものは、実際は料金が発生するものもございます。詳細はお問い合わせください。
| 家賃 | 11.3万円 | 管理費・共益費 | 5,000円 |
|---|---|---|---|
| 敷金 | なし | 礼金 | 22.6万円 |
| 入居決定でお祝い金最大100,000円 | |||
| 保証金 | - | 償却・敷引 | - |
| 住宅保険料 | - | 更新料 | - |
| 保証会社利用 | 必須 | 保証会社名 | リクルートフォレントインシュア |
| 保証会社費用 | - | 保証会社備考 | オリコフォレントインシュア利用必 初回50%・1.2%/毎月 |
| 契約形態 | - | 契約期間 | - |
| 入居・引渡期間 | - | 現況 | - |
| 契約備考 | 2LDK 二人入居可 普通借家2年 バストイレ別、フローリング、TVインターホン、浴室乾燥機、オートロック、室内洗濯置、シューズボックス、システムキッチン、追焚機能浴室、角住戸、温水洗浄便座、脱衣所、エレベーター、洗面所独立、洗面化粧台、2口コンロ、駐輪場、宅配ボックス、敷金不要、対面式キッチン、防犯カメラ、ウォークインクロゼット、保証人不要、バイク置場、2沿線利用可、駅まで平坦、ネット使用料不要、築2年以内、平坦地、未入居、3駅以上利用可、敷地内ごみ置き場、キッチン未使用、都市ガス、洗面所にドア、三面鏡付洗面化粧台、ウォークインクロゼット2、礼金2ヶ月、初期費用カード決済可、通風良好 入居日:'26年2月上旬 | ||
部屋の情報
| 間取り | 2LDK | 専有面積 | 46.48m2 |
|---|---|---|---|
| 所在階 / 向き | 2階 / - | バルコニー面積 | - |
| 水道 / ガス | - | ||
| 設備 | バス・トイレ別、2階以上、オートロック、テレビドアホン、宅配ボックス、浴室乾燥機、ウォークインクローゼット、追い焚き、インターネット対応、システムキッチン、エレベーター、温水洗浄便座、角部屋、フローリング、洗髪洗面化粧台、2口コンロ、インターネット使用料無料、洗濯機:室内 | ||
| 当社物件ID | 159982845 | ||
建物の情報
| 建物名 | ラシュール・イン大橋II | ||
|---|---|---|---|
| 所在地 | 福岡県福岡市南区大橋 | ||
| 交通 | 西鉄天神大牟田線 大橋駅(福岡) 徒歩12分 西鉄天神大牟田線 井尻駅 徒歩23分 JR鹿児島本線 竹下駅 徒歩27分 | ||
| 階数 | 11階建 | 総戸数 | - |
| 築年月 | 2026年02月 / 新築 | エレベーター | あり |
| 駐車場 | 空有 12000円 | バイク置き場 | あり |
| 駐輪場 | あり | 管理人/管理会社 | - |
| 周辺環境 | その他 ハイマート三宅店(スーパー)まで568m その他 たけや内科胃腸科医院(病院)まで701m その他 セブンイレブン 福岡みやけ通り店(コンビニ)まで48m その他 新生堂薬局 南店(ドラッグストア)まで42m その他 福岡三宅郵便局(郵便局)まで267m | ||
| 建物種別 | マンション | 建物構造 | RC(鉄筋コンクリート) |
この部屋の取扱い不動産会社
| 会社名 | (株)メイク・コーポレーション天神店(SUUMO経由) | ||
|---|---|---|---|
| 所在地 | 福岡県福岡市中央区天神3-4-13 | 交通 | - |
| 営業時間 | 10:00~19:00 | 定休日 | 無休 |
| 免許番号 | 福岡県知事14769 | 取引態様 | 仲介 |
| 不動産会社管理番号 | 100475976397 | 当社管理番号 | 89 |
| 所属団体 | (公社)福岡県宅地建物取引業協会会員 | ||
| 公正取引協議会 | (一社)九州不動産公正取引協議会加盟 | ||
| 取扱い物件情報 | 物件詳細へ | ||
※各種情報と現状に差異がある場合は、現状優先となります。問い合わせをすることで、より詳しい条件、情報を確認する事ができます。
提供:(株)メイク・コーポレーション天神店(SUUMO経由)
この物件が気になったら掲載期限まであと11日
ラシュール・イン大橋IIに条件(家賃・エリア)が近い物件一覧
| 写真 | 家賃 管理費等 | 敷金 礼金 | 間取り 専有面積 | 築年数 | 最寄り駅 所在地 | キープ | 詳細 |
|---|---|---|---|---|---|---|---|
アパート IMAXレジデンス博多南(1LDK/1階) | |||||||
![]() | 8.1万円 3,000円 | なし 8.1万円 | 1LDK 41.69m2 | 新築 | 鹿児島本線 竹下駅 徒歩10分 西鉄天神大牟田線 大橋駅(福岡) 徒歩27分 西鉄天神大牟田線 井尻駅 徒歩36分 福岡県福岡市博多区那珂1丁目 | 詳細を見る | |
アパート トリシア野多目Ⅱ(2LDK/3階) | |||||||
![]() | 10.5万円 6,000円 | なし 20万円 | 2LDK 50.19m2 | 新築 | 博多南線 博多南駅 徒歩41分 福岡県福岡市南区野多目2丁目 | 詳細を見る | |
マンション サン ウィステリア(2LDK/2階) | |||||||
![]() | 12.8万円 8,000円 | なし 38.4万円 | 2LDK 64.53m2 | 築1年 | 西鉄天神大牟田線 井尻駅 徒歩23分 鹿児島本線 竹下駅 徒歩32分 福岡県福岡市博多区 | 詳細を見る | |
アパート WISTERIA Ⅷ(ワンルーム/2階) | |||||||
![]() | 7.1万円 2,800円 | なし 7.1万円 | ワンルーム 40.94m2 | 新築 | 博多南線 博多南駅 徒歩16分 鹿児島本線 笹原駅 徒歩54分 福岡県福岡市南区弥永2丁目 | 詳細を見る | |
アパート リーベンスグランデ(1LDK/1階) | |||||||
![]() | 7.95万円 3,000円 | なし 7.95万円 | 1LDK 40.46m2 | 新築 | 西鉄天神大牟田線 下大利駅 徒歩5分 鹿児島本線 水城駅 徒歩9分 鹿児島本線 大野城駅 徒歩12分 福岡県大野城市下大利1丁目 | 詳細を見る | |
マンション LIFEFIELD曰佐(1SLDK/4階) | |||||||
![]() | 8.3万円 4,000円 | なし なし | 1SLDK 40.2m2 | 築1年 | 西鉄天神大牟田線 井尻駅 徒歩20分 鹿児島本線 笹原駅 徒歩25分 西鉄天神大牟田線 大橋駅(福岡) 徒歩33分 福岡県福岡市南区曰佐1丁目 | 詳細を見る | |
アパート エコロジースクエア須玖南(2LDK/1階) | |||||||
![]() | 7万円 3,800円 | なし 10.5万円 | 2LDK 59.81m2 | 築17年 | 西鉄天神大牟田線 井尻駅 徒歩19分 鹿児島本線 笹原駅 徒歩23分 鹿児島本線 南福岡駅 徒歩24分 福岡県春日市須玖南3丁目 | 詳細を見る | |
アパート グレイス ケイ(1LDK/1階) | |||||||
![]() | 7.35万円 3,500円 | なし 7.35万円 | 1LDK 45.46m2 | 新築 | 西鉄天神大牟田線 雑餉隈駅 徒歩16分 西鉄天神大牟田線 桜並木駅 徒歩17分 鹿児島本線 笹原駅 徒歩32分 福岡県大野城市仲畑4丁目 | 詳細を見る | |








