賃貸アパート
アーバンプレイス阿佐ヶ谷北の賃貸物件情報(ワンルーム/1階)
| 家賃 | 管理費等 | 敷金 | 礼金 | 間取り | 専有面積 |
|---|---|---|---|---|---|
| 5.5万円 | 3,000円 | なし | なし | ワンルーム | 9.84m2 |
入居決定でお祝い金最大100,000円
- 保証金
- -
- 償却・敷引
- -
- 築年数
- 築12年
- 所在階
- 1階
- 向き
- 南
Point
現地待ち合わせ・オンライン内見・オンライン申し込み対応可能!リモート内見も可能です!類似物件もご内見出来ます!インターネット上の物件はほぼ全てご案内可能ですのでそちらも併せてお申し付け下さい♪
提供:アエラス荻窪店 (株)アエラス.FR(SUUMO経由)

詳細情報 アーバンプレイス阿佐ヶ谷北
物件紹介
アーバンプレイス阿佐ヶ谷北はJR総武線阿佐ケ谷駅から徒歩8分にあり、駅近で通勤通学に便利なアパートです。
建物のエントランスはオートロックがついており、インターホンにはTVモニタもついているため、相手の顔を確認してから来客対応することができます。
おしゃれなデザイナーズ物件!人気の南向き・フローリングのお部屋。角部屋でもあるため、周囲の居住者の生活音も気になりにくい場所です。キッチンはシステムキッチン仕様になっていますので、お料理好きの方にもぴったり。また、浴室乾燥機付きで、雨の日でもお洗濯は問題ありません。
通信設備面では、インターネットが無料で使えるので、月々の出費を抑えられるのも魅力です。また、BSアンテナ・CSアンテナがありCATVにも対応しているので、おうち時間も充実するでしょう(別途工事、BS・CS・CATVの契約料等が必要な場合あり)。
建物のエントランスはオートロックがついており、インターホンにはTVモニタもついているため、相手の顔を確認してから来客対応することができます。
おしゃれなデザイナーズ物件!人気の南向き・フローリングのお部屋。角部屋でもあるため、周囲の居住者の生活音も気になりにくい場所です。キッチンはシステムキッチン仕様になっていますので、お料理好きの方にもぴったり。また、浴室乾燥機付きで、雨の日でもお洗濯は問題ありません。
通信設備面では、インターネットが無料で使えるので、月々の出費を抑えられるのも魅力です。また、BSアンテナ・CSアンテナがありCATVにも対応しているので、おうち時間も充実するでしょう(別途工事、BS・CS・CATVの契約料等が必要な場合あり)。
お金・契約の情報
※「-」と表示されているものは、実際は料金が発生するものもございます。詳細はお問い合わせください。
| 家賃 | 5.5万円 | 管理費・共益費 | 3,000円 |
|---|---|---|---|
| 敷金 | なし | 礼金 | なし |
| 入居決定でお祝い金最大100,000円 | |||
| 保証金 | - | 償却・敷引 | - |
| 住宅保険料 | - | 更新料 | - |
| 保証会社利用 | 必須 | 保証会社名 | - |
| 保証会社費用 | - | 保証会社備考 | 保証会社利用必 RentQuick() |
| 契約形態 | - | 契約期間 | - |
| 入居・引渡期間 | - | 現況 | - |
| 契約備考 | 総武・中央緩行線高円寺駅徒歩25分/クレジット決済出来ます!!お電話でのお問合わせが早くて便利♪掲載物件以外も気軽に☆当日内見も可能です!都内の物件でしたら当店にお任せください♪ ワンルーム 単身者可 普通借家2年 損保【1.9万円2年】 エアコン、ガスコンロ対応、フローリング、TVインターホン、オートロック、室内洗濯置、システムキッチン、南向き、温水洗浄便座、CATV、閑静な住宅地、単身者相談、仲介手数料不要、全居室フローリング、2沿線利用可、ネット専用回線、保証金不要、3駅以上利用可、駅徒歩10分以内、敷地内ごみ置き場、都市ガス、高速ネット対応、敷金・礼金不要、初期費用カード決済可 入居日:'26年1月下旬 | ||
部屋の情報
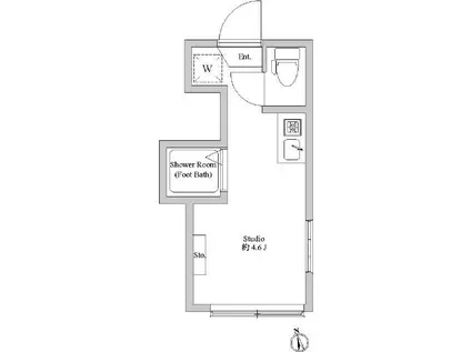
| 間取り | ワンルーム | 専有面積 | 9.84m2 |
|---|---|---|---|
| 所在階 / 向き | 1階 / 南 | バルコニー面積 | - |
| 水道 / ガス | - | ||
| 設備 | オートロック、テレビドアホン、インターネット対応、システムキッチン、エアコン、温水洗浄便座、南向き、フローリング、コンロ:ガス、CATV、洗濯機:室内 | ||
| 当社物件ID | 19152878 | ||
建物の情報
| 建物名 | アーバンプレイス阿佐ヶ谷北 | ||
|---|---|---|---|
| 所在地 | 東京都杉並区阿佐谷北 | ||
| 交通 | JR総武線 阿佐ケ谷駅 徒歩8分 JR総武線 荻窪駅 徒歩14分 東京メトロ丸ノ内線 南阿佐ケ谷駅 徒歩14分 | ||
| 階数 | 2階建 | 総戸数 | - |
| 築年月 | 2014年02月 / 築12年 | エレベーター | - |
| 駐車場 | なし | バイク置き場 | - |
| 駐輪場 | - | 管理人/管理会社 | - |
| 周辺環境 | その他 ユニクロビーンズ阿佐ヶ谷店(ショッピングセンター)まで531m その他 カルディコーヒーファームビーンズ阿佐ヶ谷店(スーパー)まで453m その他 ヨークフーズ阿佐谷店(スーパー)まで563m その他 ローソン阿佐ヶ谷南3丁目店(コンビニ)まで386m その他 セブンイレブン阿佐谷北仲通り店(コンビニ)まで99m その他 阿佐ヶ谷駅(JR 中央本線)(その他)まで488m | ||
| 建物種別 | アパート | 建物構造 | 木造 |
この部屋の取扱い不動産会社
| 会社名 | ほがらか不動産 (株)朗らか社(SUUMO経由) | ||
|---|---|---|---|
| 所在地 | 東京都中野区中野5-66-4 井口ビル5階 | 交通 | - |
| 営業時間 | am10:00-pm19:00 | 定休日 | なし |
| 免許番号 | 東京都知事95407 | 取引態様 | 仲介 |
| 不動産会社管理番号 | 100480477027 | 当社管理番号 | 89 |
| 所属団体 | (公社)東京都宅地建物取引業協会会員 | ||
| 公正取引協議会 | (公社)首都圏不動産公正取引協議会加盟 | ||
| 取扱い物件情報 | 物件詳細へ | ||
※各種情報と現状に差異がある場合は、現状優先となります。問い合わせをすることで、より詳しい条件、情報を確認する事ができます。
提供:ほがらか不動産 (株)朗らか社(SUUMO経由)
この物件が気になったら掲載期限まであと10日
アーバンプレイス阿佐ヶ谷北に条件(家賃・エリア)が近い物件一覧
| 写真 | 家賃 管理費等 | 敷金 礼金 | 間取り 専有面積 | 築年数 | 最寄り駅 所在地 | キープ | 詳細 |
|---|---|---|---|---|---|---|---|
マンション ウイング21吉祥寺(1K/3階) | |||||||
![]() | 7万円 なし | 7万円 なし | 1K 18.2m2 | 築35年 | 中央本線 吉祥寺駅 徒歩6分 京王電鉄井の頭線 吉祥寺駅 徒歩6分 東京都武蔵野市吉祥寺本町1丁目 | 詳細を見る | |
マンション プライマルD三鷹(ワンルーム/4階) | |||||||
![]() | 7.7万円 2.3万円 | 7万円 18万円 | ワンルーム 17.08m2 | 築3年 | JR中央線 三鷹駅 徒歩14分 東京都武蔵野市西久保 | 詳細を見る | |
マンション THEパームス東武練馬(1K/11階) | |||||||
![]() | 7.2万円 2万円 | なし 7.2万円 | 1K 21.27m2 | 築18年 | 東武東上線 東武練馬駅 徒歩8分 東京メトロ有楽町線 地下鉄赤塚駅 徒歩10分 東京メトロ有楽町線 平和台駅(東京) 徒歩21分 東京都練馬区北町 | 詳細を見る | |
マンション 松本ビル(ワンルーム/3階) | |||||||
![]() | 3.7万円 2,000円 | 3.7万円 なし | ワンルーム 12.96m2 | 築40年 | JR中央線 武蔵境駅 徒歩17分 西武多摩川線 新小金井駅 徒歩25分 JR中央線 東小金井駅 徒歩29分 東京都三鷹市深大寺 | 詳細を見る | |
マンション グリーンハイツ(1K/2階) | |||||||
![]() | 7.3万円 2,000円 | 7.3万円 なし | 1K 29.33m2 | 築48年 | 京王線 仙川駅 徒歩15分 東京都三鷹市新川 | 詳細を見る | |
アパート スズランハイツ(ワンルーム/2階) | |||||||
![]() | 5.7万円 1,000円 | 5.7万円 5.7万円 | ワンルーム 19m2 | 築39年 | 小田急線 下北沢駅 徒歩10分 京王井の頭線 下北沢駅 徒歩10分 東京都世田谷区大原 | 詳細を見る | |
アパート メゾン・ド・セリーヌ(1K/1階) | |||||||
![]() | 7.1万円 5,000円 | なし なし | 1K 17.14m2 | 新築 | 西武池袋・豊島線 大泉学園駅 徒歩8分 東京都練馬区東大泉3丁目 | 詳細を見る | |







