賃貸アパート
リビスタ大湊の賃貸物件情報(1K/2階)
| 家賃 | 管理費等 | 敷金 | 礼金 | 間取り | 専有面積 |
|---|---|---|---|---|---|
| 3.5万円 | 4,000円 | 7万円 | なし | 1K | 21.25m2 |
入居決定でお祝い金最大100,000円
Point
まずはお問い合わせ!
不動産会社は街のプロ、あなたに合った物件がきっと見つかります。
提供:ピタットハウスむつ店(株)むつ不動産取引センター(SUUMO経由)

詳細情報 リビスタ大湊
物件紹介
リビスタ大湊はJR大湊線大湊駅から徒歩10分にあり、駅近で通勤通学に便利なアパートです。
このお部屋は2階以上に位置しているので、通行人や周囲の住人からの視線が気になりにくく、防犯面でも安心です。
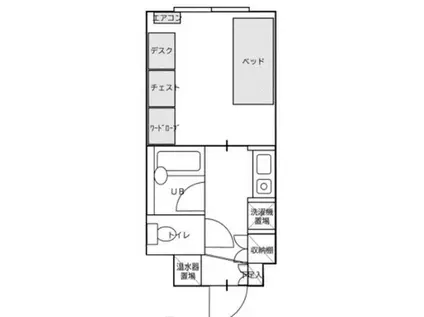
キッチンはシステムキッチン仕様になっていますので、お料理好きの方にもぴったり。また、バス・トイレは別で、のんびりお風呂タイムも楽しめるでしょう。
このお部屋は2階以上に位置しているので、通行人や周囲の住人からの視線が気になりにくく、防犯面でも安心です。
キッチンはシステムキッチン仕様になっていますので、お料理好きの方にもぴったり。また、バス・トイレは別で、のんびりお風呂タイムも楽しめるでしょう。
お金・契約の情報
※「-」と表示されているものは、実際は料金が発生するものもございます。詳細はお問い合わせください。
| 家賃 | 3.5万円 | 管理費・共益費 | 4,000円 |
|---|---|---|---|
| 敷金 | 7万円 | 礼金 | なし |
| 入居決定でお祝い金最大100,000円 | |||
| 保証金 | - | 償却・敷引 | - |
| 住宅保険料 | - | 更新料 | - |
| 保証会社利用 | 必須 | 保証会社名 | - |
| 保証会社費用 | - | 保証会社備考 | 保証会社利用必 エポスカード 初回:60% 月次:2% |
| 契約形態 | - | 契約期間 | - |
| 入居・引渡期間 | 相談 | 現況 | - |
| 契約備考 | 1K バストイレ別、エアコン、クロゼット、シューズボックス、システムキッチン、温水洗浄便座、駐輪場、礼金不要、最上階、IHクッキングヒーター、駐車場1台無料、全居室洋室、保証人不要、家電付、家具付、駅徒歩10分以内、保証会社利用可、IT重説対応物件 | ||
部屋の情報
| 間取り | 1K | 専有面積 | 21.25m2 |
|---|---|---|---|
| 所在階 / 向き | 2階 / - | バルコニー面積 | - |
| 水道 / ガス | - | ||
| 設備 | バス・トイレ別、2階以上、システムキッチン、エアコン、温水洗浄便座、コンロ:IH | ||
| 当社物件ID | 160302549 | ||
建物の情報
| 建物名 | リビスタ大湊 | ||
|---|---|---|---|
| 所在地 | 青森県むつ市大平町 | ||
| 交通 | JR大湊線 大湊駅 徒歩10分 JR大湊線 下北駅 徒歩34分 JR大湊線 赤川駅 徒歩62分 | ||
| 階数 | 2階建 | 総戸数 | 20戸 |
| 築年月 | 2007年09月 / 築19年 | エレベーター | - |
| 駐車場 | 空有 平置駐 | バイク置き場 | - |
| 駐輪場 | あり | 管理人/管理会社 | - |
| 周辺環境 | その他 むつ市立大平小学校(小学校)まで868m その他 むつ市立大平中学校(中学校)まで809m その他 大平保育園(幼稚園・保育園)まで474m その他 青森県立むつ工業高校(高校・高専)まで1243m その他 大湊駅前郵便局(郵便局)まで725m その他 むつ市役所(役所)まで2680m | ||
| 建物種別 | アパート | 建物構造 | RC(鉄筋コンクリート) |
この部屋の取扱い不動産会社
| 会社名 | ピタットハウスむつ店(株)むつ不動産取引センター(SUUMO経由) | ||
|---|---|---|---|
| 所在地 | 青森県むつ市新町 16-5 | 交通 | - |
| 営業時間 | 9:00~17:30(土曜 ~16:00) | 定休日 | 日曜、祝日、第1・3土曜 |
| 免許番号 | 青森県知事2108 | 取引態様 | 仲介 |
| 不動産会社管理番号 | 100485529807 | 当社管理番号 | 89 |
| 所属団体 | (公社)青森県宅地建物取引業協会会員 | ||
| 公正取引協議会 | 東北地区不動産公正取引協議会加盟 | ||
| 取扱い物件情報 | 物件詳細へ | ||
※各種情報と現状に差異がある場合は、現状優先となります。問い合わせをすることで、より詳しい条件、情報を確認する事ができます。
提供:ピタットハウスむつ店(株)むつ不動産取引センター(SUUMO経由)
この物件が気になったら掲載期限まであと10日
リビスタ大湊に条件(家賃・エリア)が近い物件一覧
| 写真 | 家賃 管理費等 | 敷金 礼金 | 間取り 専有面積 | 築年数 | 最寄り駅 所在地 | キープ | 詳細 |
|---|---|---|---|---|---|---|---|
アパート コーポタカヤマ(ワンルーム/1階) | |||||||
![]() | 3.2万円 3,000円 | 3.2万円 3.2万円 | ワンルーム 24.84m2 | 築38年 | JR大湊線 下北駅 徒歩8分 JR大湊線 赤川駅 徒歩31分 JR大湊線 大湊駅 徒歩41分 青森県むつ市下北町 | 詳細を見る | |
アパート コーポ高橋(1K/1階) | |||||||
![]() | 3.3万円 なし | 3.3万円 なし | 1K 19.87m2 | 築67年 | JR大湊線 大湊駅 徒歩34分 JR大湊線 下北駅 徒歩70分 JR大湊線 赤川駅 徒歩98分 青森県むつ市川守町 | 詳細を見る | |
アパート ヒルズヨシダ1号館(1K/2階) | |||||||
![]() | 5万円 なし | 5万円 5万円 | 1K 33.12m2 | 築34年 | JR大湊線 下北駅 徒歩26分 JR大湊線 赤川駅 徒歩44分 JR大湊線 大湊駅 徒歩55分 青森県むつ市新町 | 詳細を見る | |
アパート フォルムBS(2K/2階) | |||||||
![]() | 4万円 なし | 4万円 なし | 2K 34.78m2 | 築29年 | JR大湊線 下北駅 徒歩49分 JR大湊線 赤川駅 徒歩60分 JR大湊線 大湊駅 徒歩72分 青森県むつ市柳町 | 詳細を見る | |
アパート グリーンハイツ(2K/2階) | |||||||
![]() | 3.5万円 3,000円 | 3.5万円 3.5万円 | 2K 34.78m2 | 築38年 | JR大湊線 下北駅 徒歩33分 JR大湊線 赤川駅 徒歩51分 JR大湊線 大湊駅 徒歩57分 青森県むつ市小川町 | 詳細を見る | |
アパート シャレット(1K/1階) | |||||||
![]() | 4.3万円 なし | 4.3万円 なし | 1K 33.94m2 | 築28年 | JR大湊線 下北駅 徒歩53分 青森県むつ市大字田名部下川 | 詳細を見る | |
アパート 大舘アパート(ワンルーム/2階) | |||||||
![]() | 2.5万円 なし | なし なし | ワンルーム 23.18m2 | 築39年 | JR大湊線 大湊駅 徒歩41分 JR大湊線 下北駅 徒歩77分 JR大湊線 赤川駅 徒歩105分 青森県むつ市宇田町 | 詳細を見る | |
むつ市の町名から探す
むつ市の部屋を間取りから探す
むつ市の駅から探す
むつ市と隣接している市区町村から探す
- むつ市(15)








