賃貸マンション
ビレッジハウス上野服部第二1号棟の賃貸物件情報(3DK/5階)
| 家賃 | 管理費等 | 敷金 | 礼金 | 間取り | 専有面積 |
|---|---|---|---|---|---|
| 4.14万円 | なし | なし | なし | 3DK | 53.08m2 |
入居決定でお祝い金最大100,000円
- 保証金
- -
- 償却・敷引
- -
- 築年数
- 築41年
- 所在階
- 5階
- 向き
- 南西
Point
まずはお問い合わせ!
不動産会社は街のプロ、あなたに合った物件がきっと見つかります。
提供:ビレッジハウス住まい相談センター

詳細情報 ビレッジハウス上野服部第二1号棟
物件紹介
ビレッジハウス上野服部第二1号棟は伊賀鉄道茅町駅から徒歩23分にあるマンションです。
このお部屋は2階以上に位置しているので、通行人や周囲の住人からの視線が気になりにくく、防犯面でも安心です。
人気の角部屋。周囲の居住者の生活音も気になりにくい場所です。バス・トイレ別の仕様で、のんびりお風呂タイムも楽しめます。
ペット飼育の相談ができますので、あなたの大切な家族の一員も快適に暮らせるか、ぜひ確認してみてください。
このお部屋は2階以上に位置しているので、通行人や周囲の住人からの視線が気になりにくく、防犯面でも安心です。
人気の角部屋。周囲の居住者の生活音も気になりにくい場所です。バス・トイレ別の仕様で、のんびりお風呂タイムも楽しめます。
ペット飼育の相談ができますので、あなたの大切な家族の一員も快適に暮らせるか、ぜひ確認してみてください。
お金・契約の情報
※「-」と表示されているものは、実際は料金が発生するものもございます。詳細はお問い合わせください。
| 家賃 | 4.14万円 | 管理費・共益費 | なし |
|---|---|---|---|
| 敷金 | なし | 礼金 | なし |
| フリーレント | 1ヶ月 | ||
| 入居決定でお祝い金最大100,000円 | |||
| 保証金 | - | 償却・敷引 | - |
| 住宅保険料 | 1万円(2年) | 更新料 | - |
| 保証会社利用 | - | 保証会社名 | - |
| 保証会社費用 | - | 保証会社備考 | - |
| 契約形態 | - | 契約期間 | - |
| 入居・引渡期間 | - | 現況 | 空室 |
| 入居可能条件 | 2人入居可、高齢者相談、学生可、ペット相談 | ||
| 契約備考 | 契約種類:普通契約、24時間緊急対応 | ||
部屋の情報
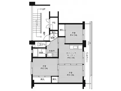
| 間取り | 3DK | 専有面積 | 53.08m2 |
|---|---|---|---|
| 所在階 / 向き | 5階 / 南西 | バルコニー面積 | - |
| 水道 / ガス | - | ||
| 設備 | バス・トイレ別、追い焚き、エアコン、角部屋、バルコニー、2口コンロ、給湯、洗濯機:室内 | ||
| 当社物件ID | 25473318 | ||
建物の情報
| 建物名 | ビレッジハウス上野服部第二1号棟 | ||
|---|---|---|---|
| 所在地 | 三重県伊賀市服部町2丁目21 | ||
| 交通 | 伊賀鉄道 茅町駅 徒歩23分 関西本線 佐那具駅 バス乗車時間:2分 北平野バス停で下車 徒歩6分 伊賀鉄道 広小路駅(三重) バス乗車時間:2分 北平野バス停で下車 徒歩19分 | ||
| 階数 | 5階建 | 総戸数 | - |
| 築年月 | 1985年12月 / 築41年 | エレベーター | - |
| 駐車場 | 空有 2,750円/月 円 | バイク置き場 | - |
| 駐輪場 | - | 管理人/管理会社 | 日勤 |
| 建物種別 | マンション | 建物構造 | RC(鉄筋コンクリート) |
この部屋の取扱い不動産会社
| 会社名 | ビレッジハウス住まい相談センター | ||
|---|---|---|---|
| 所在地 | 愛知県名古屋市中区大須4-10-32 上前津KDビル5階 | 交通 | 名城線「上前津駅」徒歩3分 |
| 営業時間 | 平日:9:00-18:30/土日祝:9:00-18:00 | 定休日 | 年中無休(年末年始を除く) |
| 免許番号 | 東京都知事(2)第100758号 | 取引態様 | 貸主 |
| 不動産会社管理番号 | 00013612611 | 当社管理番号 | 459 |
| 所属団体 | 公益社団法人東京都宅地建物取引業協会会員 日本賃貸住宅管理協会会員 | ||
| 取扱い物件情報 | 物件詳細へ | ||
※各種情報と現状に差異がある場合は、現状優先となります。問い合わせをすることで、より詳しい条件、情報を確認する事ができます。
提供:ビレッジハウス住まい相談センター
この物件が気になったら掲載期限まであと13日
ビレッジハウス上野服部第二1号棟に条件(家賃・エリア)が近い物件一覧
| 写真 | 家賃 管理費等 | 敷金 礼金 | 間取り 専有面積 | 築年数 | 最寄り駅 所在地 | キープ | 詳細 |
|---|---|---|---|---|---|---|---|
マンション ラフィネ江戸橋(1K/2階) | |||||||
![]() | 2.8万円 3,000円 | なし 3万円 | 1K 19.95m2 | 築32年 | 近鉄名古屋線 江戸橋駅 徒歩10分 近鉄名古屋線 津駅 徒歩21分 近鉄名古屋線 高田本山駅 徒歩23分 三重県津市江戸橋 | 詳細を見る | |
アパート ピュアハイツII(1K/1階) | |||||||
![]() | 3.2万円 4,500円 | なし なし | 1K 30.69m2 | 築22年 | 近鉄名古屋線 高田本山駅 徒歩15分 伊勢鉄道 東一身田駅 徒歩22分 近鉄名古屋線 白塚駅 徒歩22分 三重県津市白塚町 | 詳細を見る | |
アパート SEIS豊潤B棟(ワンルーム/1階) | |||||||
![]() | 4万円 2,200円 | なし なし | ワンルーム 33.15m2 | 築20年 | 近鉄名古屋線 久居駅 徒歩21分 近鉄名古屋線 桃園駅 徒歩24分 JR紀勢本線 高茶屋駅 徒歩27分 三重県津市高茶屋小森町 | 詳細を見る | |
アパート ドゥダンボワ B棟(2DK/2階) | |||||||
![]() | 6.1万円 5,000円 | なし 5万円 | 2DK 48.79m2 | 築24年 | 伊賀鉄道伊賀線 広小路駅(三重) 徒歩14分 伊賀鉄道伊賀線 上野市駅 徒歩15分 三重県伊賀市平野城北町 | 詳細を見る | |
アパート ハイツマウントブルー(2DK/2階) | |||||||
![]() | 3.5万円 3,000円 | なし なし | 2DK 39.6m2 | 築37年 | JR紀勢本線 阿漕駅 徒歩11分 近鉄名古屋線 南が丘駅 徒歩18分 近鉄名古屋線 津新町駅 徒歩25分 三重県津市半田 | 詳細を見る | |
アパート HERITAGE A・I 2(1LDK/1階) | |||||||
![]() | 4.1万円 5,000円 | なし なし | 1LDK 45.37m2 | 築18年 | 近鉄名古屋線 白塚駅 徒歩13分 近鉄名古屋線 高田本山駅 徒歩23分 近鉄名古屋線 江戸橋駅 徒歩39分 三重県津市白塚町 | 詳細を見る | |
アパート アミー A(1K/1階) | |||||||
![]() | 3万円 なし | なし 3.3万円 | 1K 24.5m2 | 築35年 | 近鉄名古屋線 江戸橋駅 徒歩13分 近鉄名古屋線 高田本山駅 徒歩19分 近鉄名古屋線 津駅 徒歩24分 三重県津市栗真町屋町 | 詳細を見る | |
アパート ウィン・アイランド(2LDK/1階) | |||||||
![]() | 5.3万円 2,900円 | なし 5.3万円 | 2LDK 57.21m2 | 築12年 | JR紀勢本線 阿漕駅 徒歩23分 近鉄名古屋線 津新町駅 徒歩35分 近鉄名古屋線 南が丘駅 徒歩36分 三重県津市下弁財町津興 | 詳細を見る | |









