賃貸アパート
ライフステージ香芝桜道の賃貸物件情報(2LDK/1階)
| 家賃 | 管理費等 | 敷金 | 礼金 | 間取り | 専有面積 |
|---|---|---|---|---|---|
| 7.5万円 | 7,000円 | なし | 10万円 | 2LDK | 70.51m2 |
入居決定でお祝い金最大100,000円
- 保証金
- -
- 償却・敷引
- -
- 築年数
- 築21年
- 所在階
- 1階
- 向き
- 南
Point
駅徒歩圏内 ペット相談 出入りが楽ちんな1F
提供:合同会社naraie(SUUMO経由)

詳細情報 ライフステージ香芝桜道
物件紹介
ライフステージ香芝桜道は近鉄大阪線二上駅から徒歩7分にあり、駅近で通勤通学に便利なアパートです。
人気の南向きのお部屋。バス・トイレ別の仕様で、のんびりお風呂タイムも楽しめます。
通信設備面では、インターネットが無料で使えるので、月々の出費を抑えられるのも魅力です(別途工事等が必要な場合あり)。
ペット飼育の相談ができますので、あなたの大切な家族の一員も快適に暮らせるか、ぜひ確認してみてください。
人気の南向きのお部屋。バス・トイレ別の仕様で、のんびりお風呂タイムも楽しめます。
通信設備面では、インターネットが無料で使えるので、月々の出費を抑えられるのも魅力です(別途工事等が必要な場合あり)。
ペット飼育の相談ができますので、あなたの大切な家族の一員も快適に暮らせるか、ぜひ確認してみてください。
お金・契約の情報
※「-」と表示されているものは、実際は料金が発生するものもございます。詳細はお問い合わせください。
| 家賃 | 7.5万円 | 管理費・共益費 | 7,000円 |
|---|---|---|---|
| 敷金 | なし | 礼金 | 10万円 |
| 入居決定でお祝い金最大100,000円 | |||
| 保証金 | - | 償却・敷引 | - |
| 住宅保険料 | - | 更新料 | - |
| 保証会社利用 | 必須 | 保証会社名 | - |
| 保証会社費用 | - | 保証会社備考 | 保証会社利用必 エポスカード 60、月額:1 |
| 契約形態 | - | 契約期間 | - |
| 入居・引渡期間 | 即時 | 現況 | - |
| 入居可能条件 | ペット相談 | ||
| 契約備考 | インターネット無料 合計7.7万円(内訳:鍵交換代/2.2万円、室内清掃費/5.5万円) 2LDK 単身者可/二人入居可/ペット相談 普通借家1年 損保【2.4万円2年】 バストイレ別、クロゼット、シャワー付洗面台、陽当り良好、シューズボックス、南向き、温水洗浄便座、脱衣所、駐輪場、即入居可、敷金不要、ペット相談、全居室洋室、単身者相談、二人入居相談、専用庭、LDK15畳以上、ディンプルキー、メゾネット、ネット使用料不要、保証金不要、駅徒歩10分以内、敷地内ごみ置き場、全居室6畳以上、プロパンガス、IT重説対応物件 | ||
部屋の情報
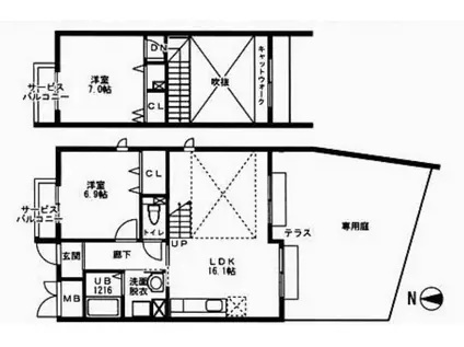
| 間取り | 2LDK | 専有面積 | 70.51m2 |
|---|---|---|---|
| 所在階 / 向き | 1階 / 南 | バルコニー面積 | - |
| 水道 / ガス | - | ||
| 設備 | バス・トイレ別、インターネット対応、温水洗浄便座、南向き、インターネット使用料無料、専用庭 | ||
| 当社物件ID | 159932155 | ||
建物の情報
| 建物名 | ライフステージ香芝桜道 | ||
|---|---|---|---|
| 所在地 | 奈良県香芝市逢坂 | ||
| 交通 | 近鉄大阪線 二上駅 徒歩7分 近鉄南大阪線 二上山駅 徒歩18分 近鉄大阪線 近鉄下田駅 徒歩20分 | ||
| 階数 | 3階建 | 総戸数 | - |
| 築年月 | 2005年03月 / 築21年 | エレベーター | - |
| 駐車場 | 空有 11000円 | バイク置き場 | - |
| 駐輪場 | あり | 管理人/管理会社 | - |
| 建物種別 | アパート | 建物構造 | RC(鉄筋コンクリート) |
この部屋の取扱い不動産会社
| 会社名 | 合同会社naraie(SUUMO経由) | ||
|---|---|---|---|
| 所在地 | 奈良県大和高田市幸町 2-33 | 交通 | - |
| 営業時間 | - | 定休日 | - |
| 免許番号 | 奈良県知事4623 | 取引態様 | 仲介 |
| 不動産会社管理番号 | 100474505463 | 当社管理番号 | 89 |
| 所属団体 | (公社)奈良県宅地建物取引業協会会員 | ||
| 公正取引協議会 | (公社)近畿地区不動産公正取引協議会加盟 | ||
| 取扱い物件情報 | 物件詳細へ | ||
※各種情報と現状に差異がある場合は、現状優先となります。問い合わせをすることで、より詳しい条件、情報を確認する事ができます。
提供:合同会社naraie(SUUMO経由)
この物件が気になったら掲載期限まであと10日
ライフステージ香芝桜道に条件(家賃・エリア)が近い物件一覧
| 写真 | 家賃 管理費等 | 敷金 礼金 | 間取り 専有面積 | 築年数 | 最寄り駅 所在地 | キープ | 詳細 |
|---|---|---|---|---|---|---|---|
アパート メゾン リアリ(1K/1階) | |||||||
![]() | 5.25万円 4,600円 | なし 5.25万円 | 1K 28.87m2 | 築2年 | 和歌山線 志都美駅 徒歩5分 和歌山線 畠田駅 徒歩29分 近鉄大阪線 近鉄下田駅 徒歩35分 奈良県香芝市今泉 | 詳細を見る | |
アパート ウィズ大中(1LDK/1階) | |||||||
![]() | 6万円 6,000円 | 2.4万円 6万円 | 1LDK 43.12m2 | 築2年 | 近鉄南大阪線 高田市駅 徒歩7分 和歌山線 高田駅(奈良) 徒歩14分 近鉄大阪線 大和高田駅 徒歩16分 奈良県大和高田市大中南町 | 詳細を見る | |
一戸建て 和歌山線 高田駅(奈良) 徒歩4分 築45年(5DK) | |||||||
![]() | 6万円 なし | なし なし | 5DK 82m2 | 築45年 | 和歌山線 高田駅(奈良) 徒歩4分 近鉄大阪線 大和高田駅 徒歩11分 近鉄南大阪線 高田市駅 徒歩16分 奈良県大和高田市本郷町 | 詳細を見る | |
アパート メゾン・ド・ロワール(2LDK/1階) | |||||||
![]() | 7.8万円 6,000円 | なし 15万円 | 2LDK 54.51m2 | 築7年 | 近鉄大阪線 近鉄下田駅 徒歩5分 JR和歌山線 香芝駅 徒歩8分 近鉄大阪線 五位堂駅 徒歩19分 奈良県香芝市狐井 | 詳細を見る | |
アパート クレメント大和高田(1LDK/1階) | |||||||
![]() | 5.5万円 2,000円 | 5.5万円 5.5万円 | 1LDK 40.82m2 | 築8年 | 近鉄大阪線 大和高田駅 徒歩13分 和歌山線 高田駅(奈良) 徒歩15分 近鉄大阪線 築山駅 徒歩22分 奈良県大和高田市大字池田 | 詳細を見る | |
アパート カーザ ソラーレ(1LDK/3階) | |||||||
![]() | 7.6万円 6,000円 | なし 7.6万円 | 1LDK 46.06m2 | 築3年 | JR和歌山線 香芝駅 徒歩3分 近鉄大阪線 近鉄下田駅 徒歩8分 近鉄大阪線 五位堂駅 徒歩15分 奈良県香芝市下田東 | 詳細を見る | |
マンション シャーメゾンアヴニール(1LDK/2階) | |||||||
![]() | 9.8万円 9,000円 | 2万円 8万円 | 1LDK 53.5m2 | 築2年 | 近鉄大阪線 五位堂駅 徒歩7分 JR和歌山線 JR五位堂駅 徒歩19分 近鉄大阪線 近鉄下田駅 徒歩19分 奈良県香芝市瓦口 | 詳細を見る | |








