賃貸マンション
MY STYLE VINTAGE 町屋駅前の賃貸物件情報(1DK/1階)
| 家賃 | 管理費等 | 敷金 | 礼金 | 間取り | 専有面積 |
|---|---|---|---|---|---|
| 9.9万円 | 5,000円 | なし | 9.9万円 | 1DK | 26.49m2 |
入居決定でお祝い金最大100,000円
- 保証金
- -
- 償却・敷引
- -
- 築年数
- 築2年
- 所在階
- 1階
- 向き
- 西
Point
オートロック・防犯カメラ完備で、セキュリティ面も安心。ネット無料なので、余計な出費は抑えられます。不在時でも宅配ボックスが備わっているので便利ですよ~!!セレコーポレーション物件!
提供:(株)リアン My Style SHOP上野店(SUUMO経由)

詳細情報 MY STYLE VINTAGE 町屋駅前
物件紹介
MY STYLE VINTAGE 町屋駅前は東京メトロ千代田線町屋駅から徒歩4分にあり、駅近で通勤通学に便利なマンションです。
建物のエントランスはオートロックがついており、インターホンにはTVモニタもついているため、相手の顔を確認してから来客対応することができます。
おしゃれなデザイナーズ物件!人気の角部屋で周囲の居住者の生活音も気になりにくく、また、フローリングのお部屋なのでお掃除もラクラク。キッチンはシステムキッチン仕様になっていますので、お料理好きの方にもぴったり。バス・トイレは別なので、のんびりお風呂タイムも楽しめるでしょう。また、雨の日でも浴室乾燥機を使えば、お洗濯も問題ありません。
通信設備面では、インターネットが無料で使えるので、月々の出費を抑えられるのも魅力です。また、BSアンテナもありますので、おうち時間も充実するでしょう(別途工事、BSの契約料等が必要な場合あり)。
共用部には宅配ボックスが設定されているので、不在の時にも荷物を受け取ることができます。
建物のエントランスはオートロックがついており、インターホンにはTVモニタもついているため、相手の顔を確認してから来客対応することができます。
おしゃれなデザイナーズ物件!人気の角部屋で周囲の居住者の生活音も気になりにくく、また、フローリングのお部屋なのでお掃除もラクラク。キッチンはシステムキッチン仕様になっていますので、お料理好きの方にもぴったり。バス・トイレは別なので、のんびりお風呂タイムも楽しめるでしょう。また、雨の日でも浴室乾燥機を使えば、お洗濯も問題ありません。
通信設備面では、インターネットが無料で使えるので、月々の出費を抑えられるのも魅力です。また、BSアンテナもありますので、おうち時間も充実するでしょう(別途工事、BSの契約料等が必要な場合あり)。
共用部には宅配ボックスが設定されているので、不在の時にも荷物を受け取ることができます。
お金・契約の情報
※「-」と表示されているものは、実際は料金が発生するものもございます。詳細はお問い合わせください。
| 家賃 | 9.9万円 | 管理費・共益費 | 5,000円 |
|---|---|---|---|
| 敷金 | なし | 礼金 | 9.9万円 |
| 入居決定でお祝い金最大100,000円 | |||
| 保証金 | - | 償却・敷引 | - |
| 住宅保険料 | - | 更新料 | - |
| 保証会社利用 | 必須 | 保証会社名 | - |
| 保証会社費用 | - | 保証会社備考 | 保証会社利用必 初回保証料:33,000円(税込) 月額保証料:月額賃料等総額の1.6% |
| 契約形態 | - | 契約期間 | - |
| 入居・引渡期間 | - | 現況 | - |
| 契約備考 | 初期費用は、クレジットカードでお支払い可能となります。1年未満の解約時、月額総賃料の1ヶ月分の短期解約違約金あり。 合計8.91万円(内訳:鍵交換費22000円/除菌・消臭16500円/クリーニング代(契約時)50600円) 火災保険1760円/月 1DK 単身者可/二人入居可/子供不可 普通借家2年 損保【要】 バストイレ別、エアコン、クロゼット、フローリング、シャワー付洗面台、TVインターホン、浴室乾燥機、オートロック、室内洗濯置、シューズボックス、システムキッチン、追焚機能浴室、角住戸、温水洗浄便座、脱衣所、洗面所独立、洗面化粧台、2口コンロ、駐輪場、宅配ボックス、外壁タイル張り、閑静な住宅地、敷金不要、対面式キッチン、防犯カメラ、IHクッキングヒーター、照明付、保証人不要、デザイナーズ、ネット専用回線、駅まで平坦、ネット使用料不要、テラス、床下収納、築2年以内、24時間換気システム、複層ガラス、平坦地、耐震構造、3駅以上利用可、3沿線以上利用可、駅徒歩5分以内、都市ガス、洗面所にドア、シャッター、BS、高速ネット対応、礼金1ヶ月、IT重説対応物件、初期費用カード決済可、通風良好 入居日:'26年3月下旬 | ||
部屋の情報
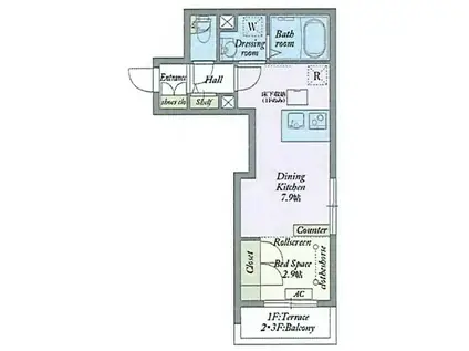
| 間取り | 1DK | 専有面積 | 26.49m2 |
|---|---|---|---|
| 所在階 / 向き | 1階 / 西 | バルコニー面積 | - |
| 水道 / ガス | - | ||
| 設備 | バス・トイレ別、オートロック、テレビドアホン、宅配ボックス、浴室乾燥機、追い焚き、インターネット対応、システムキッチン、エアコン、温水洗浄便座、角部屋、フローリング、床下収納、洗髪洗面化粧台、2口コンロ、コンロ:IH、デザイナーズ、BSアンテナ、インターネット使用料無料、洗濯機:室内 | ||
| 当社物件ID | 152516456 | ||
建物の情報
| 建物名 | MY STYLE VINTAGE 町屋駅前 | ||
|---|---|---|---|
| 所在地 | 東京都荒川区荒川 | ||
| 交通 | 東京メトロ千代田線 町屋駅 徒歩4分 都電荒川線 町屋駅前駅 徒歩6分 京成本線 新三河島駅 徒歩11分 | ||
| 階数 | 3階建 | 総戸数 | - |
| 築年月 | 2024年04月 / 築2年 | エレベーター | - |
| 駐車場 | なし | バイク置き場 | - |
| 駐輪場 | あり | 管理人/管理会社 | - |
| 周辺環境 | その他 ローソンストア100(コンビニ)まで89m その他 chocoZAP(その他)まで226m その他 ファミリーマート(コンビニ)まで216m その他 エニタイムフィットネス(その他)まで196m その他 新鮮市場(スーパー)まで280m その他 M-AXE TOWER(ショッピングセンター)まで270m | ||
| 建物種別 | マンション | 建物構造 | 鉄骨造 |
この部屋の取扱い不動産会社
| 会社名 | (株)リアン My Style SHOP上野店(SUUMO経由) | ||
|---|---|---|---|
| 所在地 | 東京都台東区東上野3-30-1 東上野ビル8階 | 交通 | - |
| 営業時間 | 10時~18時になります。 | 定休日 | 不定休 |
| 免許番号 | 東京都知事101386 | 取引態様 | 仲介 |
| 不動産会社管理番号 | 100492539041 | 当社管理番号 | 89 |
| 所属団体 | (公社)東京都宅地建物取引業協会会員 | ||
| 公正取引協議会 | (公社)首都圏不動産公正取引協議会加盟 | ||
| 取扱い物件情報 | 物件詳細へ | ||
※各種情報と現状に差異がある場合は、現状優先となります。問い合わせをすることで、より詳しい条件、情報を確認する事ができます。
提供:(株)リアン My Style SHOP上野店(SUUMO経由)
この物件が気になったら掲載期限まであと11日
MY STYLE VINTAGE 町屋駅前に条件(家賃・エリア)が近い物件一覧
| 写真 | 家賃 管理費等 | 敷金 礼金 | 間取り 専有面積 | 築年数 | 最寄り駅 所在地 | キープ | 詳細 |
|---|---|---|---|---|---|---|---|
マンション レピュア町屋レジデンスⅡ4階(1K/4階) | |||||||
![]() | 9.5万円 1.2万円 | 9.5万円 9.5万円 | 1K 21.25m2 | 築3年 | 東京地下鉄千代田線 町屋駅 徒歩7分 東京都荒川線 町屋駅前駅 徒歩7分 京成電鉄本線 町屋駅 徒歩8分 東京都荒川区町屋 一丁目 | 詳細を見る | |
マンション プレサンスブルーム浅草(1K/5階) | |||||||
![]() | 11.1万円 2万円 | なし なし | 1K 25.8m2 | 築4年 | 東武伊勢崎・大師線 浅草駅(東武・都営・メトロ) 徒歩8分 東京地下鉄銀座線 浅草駅(東武・都営・メトロ) 徒歩8分 東京都浅草線 浅草駅(東武・都営・メトロ) 徒歩8分 東京都台東区浅草6丁目 | 詳細を見る | |
マンション パークアクシス東上野(1K/11階) | |||||||
![]() | 13.1万円 1万円 | 13.1万円 13.1万円 | 1K 25.83m2 | 築12年 | 東京地下鉄銀座線 稲荷町駅(東京) 徒歩7分 山手線 上野駅 徒歩10分 つくばエクスプレス 浅草駅(つくばEXP) 徒歩11分 東京都台東区東上野6丁目 | 詳細を見る | |
マンション A LA MAISON LUANA アラメゾンルアナ(1LDK/4階) | |||||||
![]() | 14.8万円 4,000円 | 14.8万円 14.8万円 | 1LDK 33.91m2 | 築3年 | 山手線 鶯谷駅 徒歩3分 東京地下鉄日比谷線 入谷駅(東京) 徒歩7分 東京地下鉄銀座線 上野駅 徒歩14分 東京都台東区根岸3丁目 | 詳細を見る | |
マンション GRAN PASEO 両国(1K/10階) | |||||||
![]() | 12.8万円 1.5万円 | なし 12.8万円 | 1K 25.35m2 | 築5年 | JR総武線 両国駅 徒歩6分 都営大江戸線 両国駅 徒歩7分 都営新宿線 浜町駅 徒歩17分 東京都墨田区両国 | 詳細を見る | |
マンション GRANPASEO押上II(1DK/7階) | |||||||
![]() | 13.9万円 1万円 | なし なし | 1DK 25.23m2 | 築1年 | 東武伊勢崎線 押上駅 徒歩7分 東武伊勢崎線 とうきょうスカイツリー駅 徒歩9分 東武亀戸線 曳舟駅 徒歩12分 東京都墨田区向島 | 詳細を見る | |
マンション BRILLIA IST 浅草橋(1LDK/9階) | |||||||
![]() | 15.6万円 1.5万円 | なし なし | 1LDK 33.2m2 | 築5年 | 総武・中央緩行線 浅草橋駅 徒歩2分 東京都浅草線 浅草橋駅 徒歩4分 総武本線 馬喰町駅 徒歩7分 東京都台東区浅草橋1丁目 | 詳細を見る | |
マンション ラクラス浅草(1LDK/7階) | |||||||
![]() | 15.7万円 1.2万円 | 15.7万円 15.7万円 | 1LDK 35.01m2 | 築7年 | 東武伊勢崎・大師線 浅草駅(東武・都営・メトロ) 徒歩9分 東京地下鉄銀座線 浅草駅(東武・都営・メトロ) 徒歩11分 東京都浅草線 浅草駅(東武・都営・メトロ) 徒歩14分 東京都台東区浅草7丁目 | 詳細を見る | |









