賃貸マンション
京都市東西線 京都市役所前駅 徒歩5分 7階建 築30年の賃貸物件情報(2LDK/6階)
| 家賃 | 管理費等 | 敷金 | 礼金 | 間取り | 専有面積 |
|---|---|---|---|---|---|
| 13.8万円 | 1万円 | 13.8万円 | 13.8万円 | 2LDK | 60.07m2 |
入居決定でお祝い金最大100,000円
Point
御所南学区のとくゆうちん 礼金・更新料・仲介手数料が要りません
提供:株式会社 京都ライフ 烏丸五条店(賃貸スモッカ経由)

詳細情報 京都市東西線 京都市役所前駅 徒歩5分 7階建 築30年
物件紹介
京都市東西線京都市役所前駅から徒歩5分にあり、駅近で通勤通学に便利なマンションです。
このお部屋は2階以上に位置しているので、通行人や周囲の住人からの視線が気になりにくく、防犯面でも安心です。
人気の角部屋で周囲の居住者の生活音も気になりにくく、また、フローリングのお部屋なのでお掃除もラクラク。バス・トイレ別の仕様で、のんびりお風呂タイムも楽しめます。
通信設備面では、インターネット接続が可能です。また、BSアンテナもありますので、おうち時間も充実するでしょう(別途工事、契約料が必要な場合あり)。
建物にはエレベーターがついているので、重い荷物があっても安心。
このお部屋は2階以上に位置しているので、通行人や周囲の住人からの視線が気になりにくく、防犯面でも安心です。
人気の角部屋で周囲の居住者の生活音も気になりにくく、また、フローリングのお部屋なのでお掃除もラクラク。バス・トイレ別の仕様で、のんびりお風呂タイムも楽しめます。
通信設備面では、インターネット接続が可能です。また、BSアンテナもありますので、おうち時間も充実するでしょう(別途工事、契約料が必要な場合あり)。
建物にはエレベーターがついているので、重い荷物があっても安心。
お金・契約の情報
※「-」と表示されているものは、実際は料金が発生するものもございます。詳細はお問い合わせください。
| 家賃 | 13.8万円 | 管理費・共益費 | 1万円 |
|---|---|---|---|
| 敷金 | 13.8万円 | 礼金 | 13.8万円 |
| 入居決定でお祝い金最大100,000円 | |||
| 保証金 | - | 償却・敷引 | - |
| 住宅保険料 | 住宅保険料あり | 更新料 | - |
| 契約形態 | - | 契約期間 | 2年 |
| 入居・引渡期間 | 即時 | 現況 | 空室 |
| 契約備考 | 収入に応じて市から家賃補助のある「とくゆうちん」物件です。地下鉄京都市役所前駅まで徒歩5分の2LDKマンション。京阪、地下鉄のダブルアクセス。礼金、更新料ナシです。嬉しい3点セパレートなど充実の設備。コンビニ、スーパー、ドラッグストアなど近くにあって便利ですよ。 更新料:無し 保証会社:利用必須 初回:月額賃料等の25%、更新時:1万円/1年 その他設備/条件:独立洗面台、TVドアホン、即入居可 | ||
部屋の情報
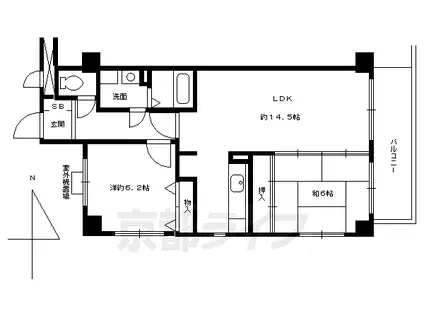
| 間取り | 2LDK | 専有面積 | 60.07m2 |
|---|---|---|---|
| 間取り詳細 | 洋室(6.2帖)、和室(6帖)、LDK(14.5帖) | ||
| 所在階 / 向き | 6階 / 東 | バルコニー面積 | - |
| 水道 / ガス | ガス【都市】 | ||
| 設備 | バス・トイレ別、2階以上、追い焚き、インターネット対応、エレベーター、角部屋、バルコニー、フローリング、BSアンテナ、洗濯機:室内 | ||
| 当社物件ID | 159656116 | ||
建物の情報
| 建物名 | 京都市東西線 京都市役所前駅 徒歩5分 7階建 築30年 | ||
|---|---|---|---|
| 所在地 | 京都府京都市中京区尾張町 | ||
| 交通 | 京都市東西線 京都市役所前駅 徒歩5分 京都市烏丸線 烏丸御池駅 徒歩9分 | ||
| 階数 | 7階建 | 総戸数 | - |
| 築年月 | 1996年11月 / 築30年 | エレベーター | あり |
| 駐車場 | - | バイク置き場 | - |
| 駐輪場 | あり | 管理人/管理会社 | - |
| 建物種別 | マンション | 建物構造 | RC(鉄筋コンクリート) |
この部屋の取扱い不動産会社
| 会社名 | 株式会社 京都ライフ 烏丸五条店(賃貸スモッカ経由) | ||
|---|---|---|---|
| 所在地 | 京都市下京区烏丸通五条下ル大坂町377 Gloire烏丸五条1階 | 交通 | - |
| 営業時間 | - | 定休日 | - |
| 免許番号 | 京都府知事(11)第6353号 | 取引態様 | 仲介 |
| 不動産会社管理番号 | kyotolife_09234-602-23 | 当社管理番号 | 463 |
| 所属団体 | 京都府宅地建物取引業協会\n公益社団法人近畿地区不動産公正取引協議会 | ||
| 公正取引協議会 | 全国宅地建物取引業保証協会 | ||
| 取扱い物件情報 | 物件詳細へ | ||
※各種情報と現状に差異がある場合は、現状優先となります。問い合わせをすることで、より詳しい条件、情報を確認する事ができます。
提供:株式会社 京都ライフ 烏丸五条店(賃貸スモッカ経由)
この物件が気になったら掲載期限まであと5日
京都市東西線 京都市役所前駅 徒歩5分 7階建 築30年に条件(家賃・エリア)が近い物件一覧
| 写真 | 家賃 管理費等 | 敷金 礼金 | 間取り 専有面積 | 築年数 | 最寄り駅 所在地 | キープ | 詳細 |
|---|---|---|---|---|---|---|---|
マンション 京都市東西線 京都市役所前駅 徒歩1分 築1年(1DK/6階) | |||||||
![]() | 13.3万円 1万円 | なし 13.3万円 | 1DK 36.3m2 | 築1年 | 京都市東西線 京都市役所前駅 徒歩1分 京都市烏丸線 烏丸御池駅 徒歩9分 京都府京都市中京区亀屋町 | 詳細を見る | |
アパート 阪急電鉄京都線 西院駅(阪急) 徒歩5分 新築(1LDK/3階) | |||||||
![]() | 12.2万円 8,000円 | なし 24.4万円 | 1LDK 40.24m2 | 新築 | 阪急電鉄京都線 西院駅(阪急) 徒歩5分 京福嵐山本線 西院駅(京福) 徒歩5分 京都府京都市中京区壬生森町 | 詳細を見る | |
マンション 京都市烏丸線 四条駅(京都市営) 徒歩4分 築12年(1LDK/9階) | |||||||
![]() | 13.2万円 1.3万円 | なし 20万円 | 1LDK 40.87m2 | 築12年 | 京都市烏丸線 四条駅(京都市営) 徒歩4分 阪急電鉄京都線 烏丸駅 徒歩4分 京都府京都市中京区一蓮社町 | 詳細を見る | |
マンション グリーンサム大久保(3LDK/1階) | |||||||
![]() | 13.8万円 7,000円 | なし 27.6万円 | 3LDK 70.8m2 | 築1年 | 奈良線 新田駅(京都) 徒歩5分 近鉄京都線 大久保駅(京都) 徒歩7分 近鉄京都線 久津川駅 徒歩13分 京都府宇治市大久保町久保 | 詳細を見る | |
マンション 阪急電鉄京都線 西院駅(阪急) 徒歩3分 新築(1LDK/3階) | |||||||
![]() | 10.95万円 1万円 | なし なし | 1LDK 34.8m2 | 新築 | 阪急電鉄京都線 西院駅(阪急) 徒歩3分 京都市東西線 西大路御池駅 徒歩14分 京都府京都市中京区壬生西土居ノ内町 | 詳細を見る | |
マンション 山陰本線 円町駅 徒歩2分 新築(1DK/5階) | |||||||
![]() | 8.4万円 9,290円 | なし 9.329万円 | 1DK 29.05m2 | 新築 | 山陰本線 円町駅 徒歩2分 京都市東西線 西大路御池駅 徒歩10分 京都府京都市中京区西ノ京南円町 | 詳細を見る | |
マンション サンロータス池治(2LDK/6階) | |||||||
![]() | 13.8万円 1万円 | 13.8万円 13.8万円 | 2LDK 60.07m2 | 築30年 | 地下鉄東西線 京都市役所前駅 徒歩5分 地下鉄烏丸線 烏丸御池駅 徒歩8分 地下鉄烏丸線 丸太町駅(京都市営) 徒歩11分 京都府京都市中京区尾張町 | 詳細を見る | |
マンション 山陰本線 円町駅 徒歩2分 新築(1DK/6階) | |||||||
![]() | 8.44万円 9,010円 | なし 9.341万円 | 1DK 28.16m2 | 新築 | 山陰本線 円町駅 徒歩2分 京都市東西線 西大路御池駅 徒歩10分 京都府京都市中京区西ノ京南円町 | 詳細を見る | |








