賃貸マンション
LAKIAAPARTMENT武庫之荘の賃貸物件情報(1K/3階)
| 家賃 | 管理費等 | 敷金 | 礼金 | 間取り | 専有面積 |
|---|---|---|---|---|---|
| 5.6万円 | 5,000円 | なし | 5.6万円 | 1K | 22m2 |
入居決定でお祝い金最大100,000円
- 保証金
- -
- 償却・敷引
- -
- 築年数
- 築39年
- 所在階
- 3階
- 向き
- 南
Point
阪急電鉄神戸線武庫之荘駅から徒歩13分の鉄筋コンクリート造マンション。建物のエントランスにはオートロック機能があり、収納としてクローゼットを備えております。
提供:ミニミニFC阪神甲子園店シティネット(株)(SUUMO経由)

詳細情報 LAKIAAPARTMENT武庫之荘
物件紹介
LAKIAAPARTMENT武庫之荘は阪急電鉄神戸線武庫之荘駅から徒歩13分にあるマンションです。
このお部屋は2階以上に位置しているので通行人や周囲の住人からの視線が気になりにくく、建物のエントランスはオートロックがついているので防犯性が高くなっています。
人気の南向きのお部屋。また、フローリングなのでお掃除もラクラク。キッチンはシステムキッチン仕様になっていますので、お料理好きの方にもぴったり。また、バス・トイレは別で、のんびりお風呂タイムも楽しめるでしょう。
通信設備面では、インターネット接続が可能です。また、BSアンテナ・CSアンテナがありCATVにも対応しているので、おうち時間も充実するでしょう(別途工事、契約料が必要な場合あり)。
このお部屋は2階以上に位置しているので通行人や周囲の住人からの視線が気になりにくく、建物のエントランスはオートロックがついているので防犯性が高くなっています。
人気の南向きのお部屋。また、フローリングなのでお掃除もラクラク。キッチンはシステムキッチン仕様になっていますので、お料理好きの方にもぴったり。また、バス・トイレは別で、のんびりお風呂タイムも楽しめるでしょう。
通信設備面では、インターネット接続が可能です。また、BSアンテナ・CSアンテナがありCATVにも対応しているので、おうち時間も充実するでしょう(別途工事、契約料が必要な場合あり)。
お金・契約の情報
※「-」と表示されているものは、実際は料金が発生するものもございます。詳細はお問い合わせください。
| 家賃 | 5.6万円 | 管理費・共益費 | 5,000円 |
|---|---|---|---|
| 敷金 | なし | 礼金 | 5.6万円 |
| 入居決定でお祝い金最大100,000円 | |||
| 保証金 | - | 償却・敷引 | - |
| 住宅保険料 | 住宅保険料あり | 更新料 | - |
| 契約形態 | - | 契約期間 | 1年 |
| 入居・引渡期間 | 即時 | 現況 | 空室 |
| 契約備考 | オートロック完備の鉄筋コンクリート造マンション。 初回:賃貸保証料:30,500円 更新料:無し その他設備/条件:即入居可 | ||
部屋の情報
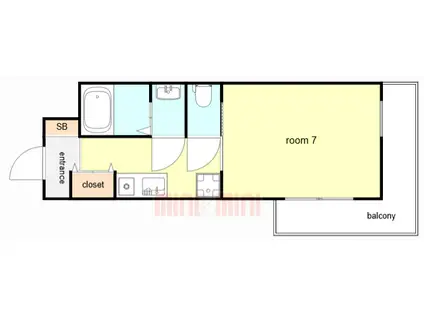
| 間取り | 1K | 専有面積 | 22m2 |
|---|---|---|---|
| 間取り詳細 | K(2帖)、洋室(7帖) | ||
| 所在階 / 向き | 3階 / 南 | バルコニー面積 | - |
| 水道 / ガス | ガス【都市】 | ||
| 設備 | バス・トイレ別、2階以上、オートロック、システムキッチン、エアコン、南向き、バルコニー、洗濯機:室内 | ||
| 当社物件ID | 160109784 | ||
建物の情報
| 建物名 | LAKIAAPARTMENT武庫之荘 | ||
|---|---|---|---|
| 所在地 | 兵庫県尼崎市武庫町1丁目 | ||
| 交通 | 阪急電鉄神戸線 武庫之荘駅 徒歩13分 阪神電鉄本線 尼崎駅(阪神) バス乗車時間:20分 武庫之荘駅西口バス停で下車 徒歩5分 東海道本線 尼崎駅(JR) バス乗車時間:30分 武庫之荘1丁目バス停で下車 徒歩10分 | ||
| 階数 | 4階建 | 総戸数 | - |
| 築年月 | 1987年11月 / 築39年 | エレベーター | - |
| 駐車場 | - | バイク置き場 | - |
| 駐輪場 | あり | 管理人/管理会社 | - |
| 建物種別 | マンション | 建物構造 | RC(鉄筋コンクリート) |
この部屋の取扱い不動産会社
| 会社名 | 株式会社エリッツ 賃貸のエリッツJR尼崎店(賃貸スモッカ経由) | ||
|---|---|---|---|
| 所在地 | 兵庫県尼崎市浜2丁目1-25 サニーハイツ 1階 | 交通 | - |
| 営業時間 | - | 定休日 | - |
| 免許番号 | 国土交通大臣免許(7)第5206号 | 取引態様 | 仲介 |
| 不動産会社管理番号 | elitz_178042-0310 | 当社管理番号 | 463 |
| 所属団体 | (一社)兵庫県宅地建物取引業協会\n公益社団法人近畿地区不動産公正取引協議会 | ||
| 公正取引協議会 | (公社)全国宅地建物取引業保証協会 | ||
| 取扱い物件情報 | 物件詳細へ | ||
※各種情報と現状に差異がある場合は、現状優先となります。問い合わせをすることで、より詳しい条件、情報を確認する事ができます。
提供:株式会社エリッツ 賃貸のエリッツJR尼崎店(賃貸スモッカ経由)
この物件が気になったら掲載期限まであと6日
LAKIAAPARTMENT武庫之荘に条件(家賃・エリア)が近い物件一覧
| 写真 | 家賃 管理費等 | 敷金 礼金 | 間取り 専有面積 | 築年数 | 最寄り駅 所在地 | キープ | 詳細 |
|---|---|---|---|---|---|---|---|
アパート フジパレス尼崎ガーデン番館(1K/2階) | |||||||
![]() | 6.1万円 5,600円 | なし 6万円 | 1K 27.01m2 | 築5年 | 阪急電鉄神戸線 園田駅 徒歩7分 福知山線 塚口駅(JR) 徒歩34分 東海道本線 尼崎駅(JR) 徒歩44分 兵庫県尼崎市東園田町6丁目 | 詳細を見る | |
アパート レオパレスMARUYA(1K/2階) | |||||||
![]() | 7万円 5,000円 | なし 7万円 | 1K 19.87m2 | 築21年 | 東海道本線 尼崎駅(JR) 徒歩13分 阪神電鉄本線 杭瀬駅 徒歩16分 阪神電鉄本線 大物駅 徒歩17分 兵庫県尼崎市長洲中通2丁目 | 詳細を見る | |
アパート フジパレス尼崎東難波番館(1K/2階) | |||||||
![]() | 6.35万円 4,800円 | なし 7万円 | 1K 30.3m2 | 新築 | 阪神電鉄本線 尼崎駅(阪神) 徒歩10分 阪神電鉄本線 出屋敷駅 徒歩13分 兵庫県尼崎市東難波町5丁目 | 詳細を見る | |
アパート レオパレス東園田(1K/2階) | |||||||
![]() | 6.6万円 5,000円 | なし 6.6万円 | 1K 28.02m2 | 築19年 | 阪急電鉄神戸線 園田駅 徒歩4分 福知山線 塚口駅(JR) 徒歩38分 兵庫県尼崎市東園田町5丁目 | 詳細を見る | |
マンション ミランダ浪華(ワンルーム/3階) | |||||||
![]() | 6.5万円 5,000円 | なし 6.5万円 | ワンルーム 26.84m2 | 築9年 | 阪急電鉄神戸線 武庫之荘駅 徒歩17分 東海道本線 甲子園口駅 徒歩23分 阪急電鉄神戸線 西宮北口駅 徒歩32分 兵庫県尼崎市南武庫之荘8丁目 | 詳細を見る | |
アパート レオパレスアーク(1K/2階) | |||||||
![]() | 5.9万円 5,000円 | なし なし | 1K 19.87m2 | 築16年 | JR福知山線 塚口駅(JR) 徒歩12分 JR東海道本線 尼崎駅(JR) 徒歩22分 阪急神戸線 塚口駅(阪急) 徒歩25分 兵庫県尼崎市久々知 | 詳細を見る | |
マンション キューブ武庫川(ワンルーム/3階) | |||||||
![]() | 3.9万円 6,000円 | なし なし | ワンルーム 24.5m2 | 築42年 | 阪急電鉄神戸線 武庫之荘駅 徒歩22分 東海道本線 甲子園口駅 徒歩27分 阪急電鉄神戸線 西宮北口駅 徒歩34分 兵庫県尼崎市武庫町3丁目 | 詳細を見る | |






