賃貸マンション
ルーブル鷺宮六番館の賃貸物件情報(1K/3階)
| 家賃 | 管理費等 | 敷金 | 礼金 | 間取り | 専有面積 |
|---|---|---|---|---|---|
| 8.3万円 | 1.5万円 | なし | なし | 1K | 20.24m2 |
入居決定でお祝い金最大100,000円
Point
共用部には宅配ボックスが備え付けられているため、対面で荷物を受け取る必要がなくなります。
提供:(株)クレアスレント横浜店(SUUMO経由)

詳細情報 ルーブル鷺宮六番館
物件紹介
ルーブル鷺宮六番館は西武新宿線鷺ノ宮駅から徒歩6分にあり、駅近で通勤通学に便利なマンションです。
このお部屋は2階以上に位置しているので、通行人や周囲の住人からの視線が気になりにくく、防犯面でも安心。建物のエントランスはオートロックがついており、インターホンにはTVモニタもついているため、相手の顔を確認してから来客対応することができます。
フローリングのお部屋なのでお掃除もラクラク。キッチンはシステムキッチン仕様になっていますので、お料理好きの方にもぴったり。バス・トイレは別なので、のんびりお風呂タイムも楽しめるでしょう。また、雨の日でも浴室乾燥機を使えば、お洗濯も問題ありません。
通信設備面では、インターネット接続が可能です。また、BSアンテナ・CSアンテナがありCATVにも対応しているので、おうち時間も充実するでしょう(別途工事、契約料が必要な場合あり)。
建物にはエレベーターがついているので、重い荷物があっても安心。共用部には宅配ボックスが設定されているので、不在の時にも荷物を受け取ることができます。
このお部屋は2階以上に位置しているので、通行人や周囲の住人からの視線が気になりにくく、防犯面でも安心。建物のエントランスはオートロックがついており、インターホンにはTVモニタもついているため、相手の顔を確認してから来客対応することができます。
フローリングのお部屋なのでお掃除もラクラク。キッチンはシステムキッチン仕様になっていますので、お料理好きの方にもぴったり。バス・トイレは別なので、のんびりお風呂タイムも楽しめるでしょう。また、雨の日でも浴室乾燥機を使えば、お洗濯も問題ありません。
通信設備面では、インターネット接続が可能です。また、BSアンテナ・CSアンテナがありCATVにも対応しているので、おうち時間も充実するでしょう(別途工事、契約料が必要な場合あり)。
建物にはエレベーターがついているので、重い荷物があっても安心。共用部には宅配ボックスが設定されているので、不在の時にも荷物を受け取ることができます。
お金・契約の情報
※「-」と表示されているものは、実際は料金が発生するものもございます。詳細はお問い合わせください。
| 家賃 | 8.3万円 | 管理費・共益費 | 1.5万円 |
|---|---|---|---|
| 敷金 | なし | 礼金 | なし |
| 入居決定でお祝い金最大100,000円 | |||
| 保証金 | - | 償却・敷引 | - |
| 住宅保険料 | 1円 | 更新料 | - |
| その他費用 | 室内抗菌処理代:1.76万円、22000円: | ||
| 保証会社利用 | 必須 | 保証会社名 | - |
| 保証会社費用 | - | 保証会社備考 | 加入要。初回55%〜 |
| 契約形態 | - | 契約期間 | 1年 |
| 入居・引渡期間 | 2026年03月 | 現況 | - |
| 入居可能条件 | 2人入居可、学生可 | ||
| 契約備考 | 鍵交換費用:22000 その他設備/条件:室内洗濯機置き場、クローゼット、シューズボックス、照明器具付き、分譲賃貸 | ||
部屋の情報
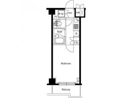
| 間取り | 1K | 専有面積 | 20.24m2 |
|---|---|---|---|
| 間取り詳細 | 洋室(6帖)、K(3帖) | ||
| 所在階 / 向き | 3階 / 北 | バルコニー面積 | - |
| 水道 / ガス | ガス【都市】 | ||
| 設備 | バス・トイレ別、オートロック、テレビドアホン、宅配ボックス、浴室乾燥機、光ファイバー対応、システムキッチン、エアコン、エレベーター、温水洗浄便座、バルコニー、フローリング、2口コンロ、コンロ:ガス、CSアンテナ、BSアンテナ、シャワー、給湯、タイル張り | ||
| 当社物件ID | 1492152 | ||
建物の情報
| 建物名 | ルーブル鷺宮六番館 | ||
|---|---|---|---|
| 所在地 | 東京都中野区鷺宮4丁目 | ||
| 交通 | 西武鉄道新宿線 鷺ノ宮駅 徒歩6分 西武鉄道新宿線 都立家政駅 徒歩12分 | ||
| 階数 | 7階建 | 総戸数 | - |
| 築年月 | 2010年12月 / 築16年 | エレベーター | あり |
| 駐車場 | - | バイク置き場 | - |
| 駐輪場 | あり | 管理人/管理会社 | - |
| 周辺環境 | 販売店 徒歩12分(884m) その他 ドラッグストア その他 公園 その他 銀行 その他 * | ||
| 建物種別 | マンション | 建物構造 | RC(鉄筋コンクリート) |
この部屋の取扱い不動産会社
| 会社名 | ハウスコム東東京株式会社 池袋西口店 | ||
|---|---|---|---|
| 所在地 | 東京都豊島区19-6松長ビル2階 | 交通 | - |
| 営業時間 | 10:00~18:00 | 定休日 | - |
| 免許番号 | 東京都知事(1)第108283号 | 取引態様 | 仲介 |
| 不動産会社管理番号 | HC2-625861-303-0113 | 当社管理番号 | 468 |
| 所属団体 | 、 | ||
| 取扱い物件情報 | 物件詳細へ | ||
※各種情報と現状に差異がある場合は、現状優先となります。問い合わせをすることで、より詳しい条件、情報を確認する事ができます。
提供:ハウスコム東東京株式会社 池袋西口店
この物件が気になったら掲載期限まであと5日
ルーブル鷺宮六番館に条件(家賃・エリア)が近い物件一覧
| 写真 | 家賃 管理費等 | 敷金 礼金 | 間取り 専有面積 | 築年数 | 最寄り駅 所在地 | キープ | 詳細 |
|---|---|---|---|---|---|---|---|
マンション デュオメゾン高円寺駅前(1K/1階) | |||||||
![]() | 11万円 7,000円 | 11万円 なし | 1K 19.46m2 | 築1年 | JR総武線 高円寺駅 徒歩4分 東京メトロ丸ノ内線 新高円寺駅 徒歩12分 JR総武線 阿佐ケ谷駅 徒歩14分 東京都杉並区高円寺南 | 詳細を見る | |
アパート RIKOHOUSE-女性限定-(ワンルーム/1階) | |||||||
![]() | 7.5万円 5,000円 | なし 7.5万円 | ワンルーム 17m2 | 築16年 | 京王線 代田橋駅 徒歩6分 京王線 笹塚駅 徒歩14分 京王線 明大前駅 徒歩15分 東京都杉並区和泉 | 詳細を見る | |
マンション ハーモニーレジデンス東京武蔵関ウエスト SIDE(1LDK/11階) | |||||||
![]() | 11.4万円 1.5万円 | なし なし | 1LDK 27.62m2 | 築2年 | 西武新宿線 武蔵関駅 徒歩3分 東京都練馬区関町北 | 詳細を見る | |
アパート ハーモニーテラス荻窪(ワンルーム/2階) | |||||||
![]() | 7万円 4,000円 | なし なし | ワンルーム 11.22m2 | 築8年 | 東京メトロ丸ノ内線 荻窪駅 徒歩10分 東京メトロ丸ノ内線 南阿佐ケ谷駅 徒歩23分 京王井の頭線 高井戸駅 徒歩25分 東京都杉並区荻窪 | 詳細を見る | |
マンション フラットガーデン(1K/3階) | |||||||
![]() | 8.8万円 4,000円 | 8.8万円 8.8万円 | 1K 20.6m2 | 築3年 | 東京メトロ丸ノ内線 南阿佐ケ谷駅 徒歩8分 JR中央線 阿佐ケ谷駅 徒歩11分 JR総武線 荻窪駅 徒歩14分 東京都杉並区成田東 | 詳細を見る | |
マンション ステージファースト光が丘アジールコート(1K/2階) | |||||||
![]() | 8.6万円 5,000円 | 8.6万円 8.6万円 | 1K 21.42m2 | 築19年 | 都営大江戸線 光が丘駅 徒歩10分 東京メトロ有楽町線 地下鉄成増駅 徒歩30分 東武東上線 成増駅 徒歩30分 東京都練馬区高松 | 詳細を見る | |
マンション ビエラコート桜台(1K/5階) | |||||||
![]() | 6.5万円 1万円 | 6.5万円 6.5万円 | 1K 20.81m2 | 築35年 | 西武池袋線 桜台駅(東京) 徒歩10分 都営大江戸線 新江古田駅 徒歩11分 西武有楽町線 新桜台駅 徒歩15分 東京都練馬区豊玉北 | 詳細を見る | |
マンション パラッツォ・ナーノ(ワンルーム/2階) | |||||||
![]() | 8.2万円 6,000円 | 8.2万円 9.84万円 | ワンルーム 17.96m2 | 築15年 | JR山手線 大塚駅(東京) 徒歩3分 東京メトロ丸ノ内線 新大塚駅 徒歩11分 JR山手線 巣鴨駅 徒歩13分 東京都豊島区北大塚 | 詳細を見る | |








