賃貸マンション
SANKOセントレアーバンの賃貸物件情報(1K/3階)
| 家賃 | 管理費等 | 敷金 | 礼金 | 間取り | 専有面積 |
|---|---|---|---|---|---|
| 6.5万円 | 7,000円 | なし | 25万円 | 1K | 24.3m2 |
入居決定でお祝い金最大100,000円
- 保証金
- -
- 償却・敷引
- -
- 築年数
- 築22年
- 所在階
- 3階
- 向き
- 南
Point
灘区役所まで徒歩1分と近いので、役所で手続きが必要な時もスムーズに行えます。セキュリティ面は、TVインターホン・オートロックなどを設置しているので安全面でも優れております。神戸市灘区への引っ越しならCHINTAI ROOM 六甲本店 キュリアにお任せください。お客様の様々なこだわり条件から、適したお
提供:CHINTAI ROOM 六甲本店

詳細情報 SANKOセントレアーバン
物件紹介
SANKOセントレアーバンは阪神電鉄本線新在家駅から徒歩4分にあり、駅近で通勤通学に便利なマンションです。
このお部屋は2階以上に位置しているので、通行人や周囲の住人からの視線が気になりにくく、防犯面でも安心。建物のエントランスはオートロックがついており、インターホンにはTVモニタもついているため、相手の顔を確認してから来客対応することができます。
おしゃれなデザイナーズ物件!人気の南向きのお部屋。また、フローリングなのでお掃除もラクラク。バス・トイレ別の仕様で、のんびりお風呂タイムも楽しめます。また、浴室乾燥機を使えば、雨の日でもお洗濯は問題ありません。
通信設備面では、インターネット接続が可能です。また、BSアンテナ・CSアンテナがありCATVにも対応しているので、おうち時間も充実するでしょう(別途工事、契約料が必要な場合あり)。
建物にはエレベーターがついているので、重い荷物があっても安心。共用部には宅配ボックスが設定されているので、不在の時にも荷物を受け取ることができます。また、ペット飼育の相談ができますので、あなたの大切な家族の一員も快適に暮らせるか、ぜひ確認してみてください。
このお部屋は2階以上に位置しているので、通行人や周囲の住人からの視線が気になりにくく、防犯面でも安心。建物のエントランスはオートロックがついており、インターホンにはTVモニタもついているため、相手の顔を確認してから来客対応することができます。
おしゃれなデザイナーズ物件!人気の南向きのお部屋。また、フローリングなのでお掃除もラクラク。バス・トイレ別の仕様で、のんびりお風呂タイムも楽しめます。また、浴室乾燥機を使えば、雨の日でもお洗濯は問題ありません。
通信設備面では、インターネット接続が可能です。また、BSアンテナ・CSアンテナがありCATVにも対応しているので、おうち時間も充実するでしょう(別途工事、契約料が必要な場合あり)。
建物にはエレベーターがついているので、重い荷物があっても安心。共用部には宅配ボックスが設定されているので、不在の時にも荷物を受け取ることができます。また、ペット飼育の相談ができますので、あなたの大切な家族の一員も快適に暮らせるか、ぜひ確認してみてください。
お金・契約の情報
※「-」と表示されているものは、実際は料金が発生するものもございます。詳細はお問い合わせください。
| 家賃 | 6.5万円 | 管理費・共益費 | 7,000円 |
|---|---|---|---|
| 敷金 | なし | 礼金 | 25万円 |
| 入居決定でお祝い金最大100,000円 | |||
| 保証金 | - | 償却・敷引 | - |
| 住宅保険料 | 住宅保険料あり(2年) | 更新料 | - |
| 保証会社利用 | 必須 | 保証会社名 | - |
| 保証会社費用 | - | 保証会社備考 | 初回50%、10,000円/年 |
| 契約形態 | - | 契約期間 | 2年 |
| 入居・引渡期間 | 即時 | 現況 | 空室 |
| 入居可能条件 | 高齢者可、学生可、ペット相談 | ||
| 契約備考 | 灘区役所なら、徒歩1分の場所にあり近いです。収納はクロゼット・シューズボックス・全居室収納など豊富なので、衣類や履き物の整理がしやすく便利です。女性からの評価が高い、キッチンスぺースのある物件。多種多様な賃貸情報を取り扱っているCHINTAI ROOM 六甲本店 キュリアは、神戸市灘区での住まい探しにきっと役立つことでしょう。 | ||
部屋の情報
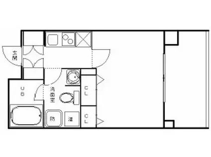
| 間取り | 1K | 専有面積 | 24.3m2 |
|---|---|---|---|
| 所在階 / 向き | 3階 / 南 | バルコニー面積 | - |
| 水道 / ガス | 水道【公営】 | ||
| 設備 | バス・トイレ別、オートロック、テレビドアホン、宅配ボックス、浴室乾燥機、光ファイバー対応、エアコン、エレベーター、温水洗浄便座、バルコニー、フローリング、洗髪洗面化粧台、オール電化、家具家電付き、2口コンロ、コンロ:IH、デザイナーズ、CATV、CSアンテナ、BSアンテナ、シャワー、冷蔵庫あり、給湯、洗濯機:室内 | ||
| 当社物件ID | 22254381 | ||
建物の情報
| 建物名 | SANKOセントレアーバン | ||
|---|---|---|---|
| 所在地 | 兵庫県神戸市灘区友田町4丁目 4-17 | ||
| 交通 | 阪神電鉄本線 新在家駅 徒歩4分 東海道本線 六甲道駅 徒歩7分 | ||
| 階数 | 9階建 | 総戸数 | 50戸 |
| 築年月 | 2004年03月 / 築22年 | エレベーター | あり |
| 駐車場 | 近隣 1.7万円/月 徒歩1分(50m) | バイク置き場 | あり |
| 駐輪場 | あり | 管理人/管理会社 | - |
| 周辺環境 | 販売店 徒歩13分(969m) 中学校 神戸市立 烏帽子中学校 徒歩4分(246m) 小学校 神戸市立成徳小学校 徒歩6分(413m) | ||
| 建物種別 | マンション | 建物構造 | RC(鉄筋コンクリート) |
この部屋の取扱い不動産会社
| 会社名 | CHINTAI ROOM 六甲本店 | ||
|---|---|---|---|
| 所在地 | 兵庫県 神戸市灘区森後町1丁目4番10号 フレグランス六甲1F | 交通 | JR東海道本線「六甲道駅」徒歩1分 |
| 営業時間 | 10:00-19:30 | 定休日 | なし |
| 免許番号 | 兵庫県知事(2)第11891号 | 取引態様 | 仲介 |
| 不動産会社管理番号 | 1572271 | 当社管理番号 | 377 |
| 取扱い物件情報 | 物件詳細へ | ||
※各種情報と現状に差異がある場合は、現状優先となります。問い合わせをすることで、より詳しい条件、情報を確認する事ができます。
提供:CHINTAI ROOM 六甲本店
この物件が気になったら掲載期限まであと5日
SANKOセントレアーバンに条件(家賃・エリア)が近い物件一覧
| 写真 | 家賃 管理費等 | 敷金 礼金 | 間取り 専有面積 | 築年数 | 最寄り駅 所在地 | キープ | 詳細 |
|---|---|---|---|---|---|---|---|
一戸建て 神戸電鉄粟生線 恵比須駅 徒歩6分 築51年(2LDK) | |||||||
![]() | 6.3万円 なし | なし 12.6万円 | 2LDK 56.73m2 | 築51年 | 神戸電鉄粟生線 恵比須駅 徒歩6分 神戸電鉄粟生線 三木上の丸駅 徒歩18分 神戸電鉄粟生線 志染駅 徒歩28分 兵庫県三木市宿原 | 詳細を見る | |
アパート サニーリバーツ(1LDK/1階) | |||||||
![]() | 5.5万円 3,000円 | 5.5万円 7万円 | 1LDK 36m2 | 築7年 | 兵庫県加古郡稲美町国岡 | 詳細を見る | |
マンション ソプラリア(ワンルーム/1階) | |||||||
![]() | 5万円 4,000円 | なし なし | ワンルーム 24.68m2 | 築22年 | 神戸電鉄粟生線 広野ゴルフ場前駅 徒歩14分 兵庫県三木市緑が丘町西5丁目 | 詳細を見る | |
マンション ビレッジハウス志染(3K/4階) | |||||||
![]() | 4.7699万円 なし | なし なし | 3K 43.5m2 | 築46年 | 神戸電鉄粟生線 志染駅 徒歩19分 神戸電鉄粟生線 恵比須駅 徒歩30分 神戸電鉄粟生線 広野ゴルフ場前駅 徒歩31分 兵庫県三木市志染町西自由が丘 | 詳細を見る | |
一戸建て 神戸電鉄粟生線 大村駅(兵庫) 徒歩7分 築46年(5DK) | |||||||
![]() | 4.5万円 なし | なし 9万円 | 5DK 60m2 | 築46年 | 神戸電鉄粟生線 大村駅(兵庫) 徒歩7分 神戸電鉄粟生線 三木駅(神戸電鉄) 徒歩16分 神戸電鉄粟生線 三木上の丸駅 徒歩26分 兵庫県三木市平田 | 詳細を見る | |
マンション 神戸電鉄公園都市線 ウッディタウン中央駅 徒歩9分 築37年(3LDK/4階) | |||||||
![]() | 6.12万円 4,100円 | 12.24万円 なし | 3LDK 73m2 | 築37年 | 神戸電鉄公園都市線 ウッディタウン中央駅 徒歩9分 兵庫県三田市あかしあ台3丁目 | 詳細を見る | |
アパート ラフィーネ緑が丘(1K/2階) | |||||||
![]() | 4.8万円 4,000円 | なし なし | 1K 29m2 | 築18年 | 神戸電鉄粟生線 緑が丘駅(兵庫) 徒歩13分 神戸電鉄粟生線 広野ゴルフ場前駅 徒歩20分 神戸電鉄粟生線 押部谷駅 徒歩22分 兵庫県三木市緑が丘町東 | 詳細を見る | |
アパート セジュール加佐A(2LDK/1階) | |||||||
![]() | 7.6万円 5,000円 | 3万円 15.2万円 | 2LDK 53.25m2 | 築10年 | 神戸電鉄粟生線 三木駅(神戸電鉄) 徒歩9分 神戸電鉄粟生線 三木上の丸駅 徒歩14分 神戸電鉄粟生線 恵比須駅 徒歩24分 兵庫県三木市加佐 | 詳細を見る | |






