賃貸マンション
プライムメゾン下北沢の賃貸物件情報(ワンルーム/3階)
| 家賃 | 管理費等 | 敷金 | 礼金 | 間取り | 専有面積 |
|---|---|---|---|---|---|
| 15万円 | 1.332万円 | 15万円 | 15万円 | ワンルーム | 27.25m2 |
入居決定でお祝い金最大100,000円
- 保証金
- -
- 償却・敷引
- -
- 築年数
- 築7年
- 所在階
- 3階
- 向き
- 南
Point
オートロック・防犯カメラ・宅配ボックスなど設備充実!敷地内のバイク置場・トランクルームに空き有(有料です)!渋谷や新宿まで直通で通える利便性の高い「下北沢駅」徒歩圏内!
提供:シャーメゾンショップ (株)イチイ吉祥寺店(SUUMO経由)

詳細情報 プライムメゾン下北沢
物件紹介
プライムメゾン下北沢は京王井の頭線下北沢駅から徒歩8分にあり、駅近で通勤通学に便利なマンションです。
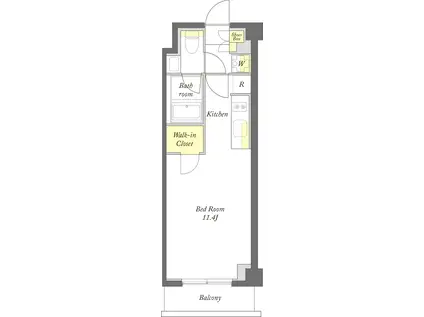
このお部屋は2階以上に位置しているので、通行人や周囲の住人からの視線が気になりにくく、防犯面でも安心。建物のエントランスはオートロックがついており、インターホンにはTVモニタもついているため、相手の顔を確認してから来客対応することができます。
人気の南向き・フローリングのお部屋。室内にはウォークインクローゼットがありますので、たくさんの荷物も効率的に収納ができます。バス・トイレ別の仕様で、のんびりお風呂タイムも楽しめます。
通信設備面では、インターネットが無料で使えるので、月々の出費を抑えられるのも魅力です(別途工事等が必要な場合あり)。
建物にはエレベーターがついているので、重い荷物があっても安心。共用部には宅配ボックスが設定されているので、不在の時にも荷物を受け取ることができます。
このお部屋は2階以上に位置しているので、通行人や周囲の住人からの視線が気になりにくく、防犯面でも安心。建物のエントランスはオートロックがついており、インターホンにはTVモニタもついているため、相手の顔を確認してから来客対応することができます。
人気の南向き・フローリングのお部屋。室内にはウォークインクローゼットがありますので、たくさんの荷物も効率的に収納ができます。バス・トイレ別の仕様で、のんびりお風呂タイムも楽しめます。
通信設備面では、インターネットが無料で使えるので、月々の出費を抑えられるのも魅力です(別途工事等が必要な場合あり)。
建物にはエレベーターがついているので、重い荷物があっても安心。共用部には宅配ボックスが設定されているので、不在の時にも荷物を受け取ることができます。
お金・契約の情報
※「-」と表示されているものは、実際は料金が発生するものもございます。詳細はお問い合わせください。
| 家賃 | 15万円 | 管理費・共益費 | 1.332万円 |
|---|---|---|---|
| 敷金 | 15万円 | 礼金 | 15万円 |
| 入居決定でお祝い金最大100,000円 | |||
| 保証金 | - | 償却・敷引 | - |
| 住宅保険料 | - | 更新料 | - |
| 保証会社利用 | 必須 | 保証会社名 | - |
| 保証会社費用 | - | 保証会社備考 | 保証会社利用必 保証会社加入必須:初回事務手数料:33,000円(初回家賃引落時)・保証料:家賃総額の2%/月 |
| 契約形態 | - | 契約期間 | - |
| 入居・引渡期間 | - | 現況 | - |
| 契約備考 | ◆間取り・設備など募集広告と現状が異なる場合は現状を優先いたします◆シャーメゾンライフポイント対象物件◆シャーメゾンライフSUPPORT24(月額1,320円)加入必須◆保証会社必須◆仲介手数料は原則貸主0.55ケ月借主0.55ケ月ですが、この物件に関しましては借主1.1ケ月となります◆解約予告2か月◆契約開始1年未満の解約は違約金がかかります◆バイク置場・駐輪場・トランクルーム使用は有料となり 合計3.19万円(内訳:鍵交換代:31,900円(税込)) 退去ハウスクリーニング代:55,000円(税込) ワンルーム 単身者限定/子供不可/事務所利用不可/ルームシェア不可 普通借家2年 損保【1.78万円2年】 バストイレ別、バルコニー、エアコン、TVインターホン、オートロック、室内洗濯置、陽当り良好、南向き、エレベーター、洗面化粧台、2口コンロ、駐輪場、宅配ボックス、最上階、防犯カメラ、全居室収納、全居室洋室、ウォークインクロゼット、保証人不要、単身者相談、敷金1ヶ月、バイク置場、全居室フローリング、ネット使用料不要、駅徒歩10分以内、敷地内ごみ置き場、当社管理物件、全居室8畳以上、都市ガス、礼金1ヶ月、保証会社利用可、IT重説対応物件、初期費用カード決済可、通風良好 入居日:'26年4月下旬 | ||
部屋の情報
| 間取り | ワンルーム | 専有面積 | 27.25m2 |
|---|---|---|---|
| 所在階 / 向き | 3階 / 南 | バルコニー面積 | - |
| 水道 / ガス | - | ||
| 設備 | バス・トイレ別、2階以上、オートロック、テレビドアホン、宅配ボックス、ウォークインクローゼット、インターネット対応、エアコン、エレベーター、南向き、バルコニー、フローリング、2口コンロ、インターネット使用料無料、洗濯機:室内 | ||
| 当社物件ID | 36571530 | ||
建物の情報
| 建物名 | プライムメゾン下北沢 | ||
|---|---|---|---|
| 所在地 | 東京都世田谷区代沢 | ||
| 交通 | 京王井の頭線 下北沢駅 徒歩8分 小田急線 下北沢駅 徒歩8分 小田急線 世田谷代田駅 徒歩10分 | ||
| 階数 | 3階建 | 総戸数 | 62戸 |
| 築年月 | 2019年12月 / 築7年 | エレベーター | あり |
| 駐車場 | なし | バイク置き場 | あり |
| 駐輪場 | あり | 管理人/管理会社 | - |
| 周辺環境 | その他 まいばすけっと代沢4丁目店(スーパー)まで260m その他 信濃屋代田食品館(スーパー)まで584m その他 ローソン代沢五丁目店(コンビニ)まで176m その他 トモズ代沢店(ドラッグストア)まで370m その他 スターバックスコーヒー代沢5丁目店(飲食店)まで357m その他 世田谷代沢郵便局(郵便局)まで368m | ||
| 建物種別 | マンション | 建物構造 | RC(鉄筋コンクリート) |
この部屋の取扱い不動産会社
| 会社名 | シャーメゾンショップ (株)イチイ吉祥寺店(SUUMO経由) | ||
|---|---|---|---|
| 所在地 | 東京都武蔵野市吉祥寺南町2-7-2 メイプル1階 | 交通 | - |
| 営業時間 | 10時~18時30分 | 定休日 | 水曜日 第一・第二・第三火曜日 |
| 免許番号 | 東京都知事39368 | 取引態様 | 仲介 |
| 不動産会社管理番号 | 100492155601 | 当社管理番号 | 89 |
| 所属団体 | (公社)全日本不動産協会東京都本部会員 | ||
| 公正取引協議会 | (公社)首都圏不動産公正取引協議会加盟 | ||
| 取扱い物件情報 | 物件詳細へ | ||
※各種情報と現状に差異がある場合は、現状優先となります。問い合わせをすることで、より詳しい条件、情報を確認する事ができます。
提供:シャーメゾンショップ (株)イチイ吉祥寺店(SUUMO経由)
この物件が気になったら掲載期限まであと12日
プライムメゾン下北沢に条件(家賃・エリア)が近い物件一覧
| 写真 | 家賃 管理費等 | 敷金 礼金 | 間取り 専有面積 | 築年数 | 最寄り駅 所在地 | キープ | 詳細 |
|---|---|---|---|---|---|---|---|
マンション ハイネス大森(2DK/3階) | |||||||
![]() | 13.2万円 6,000円 | 13.2万円 13.2万円 | 2DK 41.16m2 | 築42年 | 京浜急行電鉄本線 大森町駅 徒歩10分 京浜急行電鉄本線 梅屋敷駅(東京) 徒歩16分 東京都大田区大森西4丁目 | 詳細を見る | |
アパート SEED SAVE PETIRASU BREEZE(1LDK/3階) | |||||||
![]() | 11.5万円 1万円 | 23万円 11.5万円 | 1LDK 35.83m2 | 新築 | 東京モノレール羽田 昭和島駅 徒歩12分 京浜急行電鉄本線 大森町駅 徒歩18分 東京都大田区大森東5丁目 | 詳細を見る | |
マンション メゾンドボナール(1DK/4階) | |||||||
![]() | 12万円 3,000円 | 12万円 なし | 1DK 32.48m2 | 築29年 | 京浜東北・根岸線 蒲田駅 徒歩10分 京浜急行電鉄本線 京急蒲田駅 徒歩10分 東京都大田区蒲田3丁目 | 詳細を見る | |
アパート ノリアセット(2LDK/3階) | |||||||
![]() | 18.6万円 3,000円 | 18.6万円 18.6万円 | 2LDK 62.72m2 | 新築 | 京浜急行電鉄本線 大森町駅 徒歩9分 京浜急行電鉄本線 梅屋敷駅(東京) 徒歩16分 東京都大田区大森東3丁目 | 詳細を見る | |
マンション SAKURA(2LDK/2階) | |||||||
![]() | 19.5万円 5,000円 | 19.5万円 19.5万円 | 2LDK 54.84m2 | 築5年 | 京急本線 梅屋敷駅(東京) 徒歩7分 京急本線 大森町駅 徒歩9分 東京都大田区大森中 | 詳細を見る | |
マンション SEED JUST B-BASE COAST(1LDK/4階) | |||||||
![]() | 9.9万円 1.5万円 | 9.9万円 9.9万円 | 1LDK 25.41m2 | 築1年 | 東京モノレール羽田 昭和島駅 徒歩11分 京浜急行電鉄本線 梅屋敷駅(東京) 徒歩19分 東京都大田区大森南4丁目 | 詳細を見る | |
マンション 京浜急行電鉄本線 梅屋敷駅(東京) 徒歩4分 築37年(3LDK/2階) | |||||||
![]() | 23万円 7,000円 | 23万円 23万円 | 3LDK 84.68m2 | 築37年 | 京浜急行電鉄本線 梅屋敷駅(東京) 徒歩4分 京浜急行電鉄本線 大森町駅 徒歩12分 東京都大田区大森西6丁目 | 詳細を見る | |
アパート フォレスタ世田谷(2LDK/2階) | |||||||
![]() | 17.4万円 1,000円 | 17.4万円 なし | 2LDK 47.7m2 | 築55年 | 東急池上線 雪が谷大塚駅 徒歩6分 東急東横線 田園調布駅 徒歩16分 東急目黒線 多摩川駅 徒歩16分 東京都世田谷区東玉川 | 詳細を見る | |









