賃貸マンション
ルネサンスコート京成曳舟の賃貸物件情報(1K/7階)
| 家賃 | 管理費等 | 敷金 | 礼金 | 間取り | 専有面積 |
|---|---|---|---|---|---|
| 10.1万円 | 1.5万円 | なし | なし | 1K | 25.71m2 |
入居決定でお祝い金最大100,000円
- 保証金
- -
- 償却・敷引
- -
- 築年数
- 築2年
- 所在階
- 7階
- 向き
- 北西
Point
WEB相談・WEB内見・IT重説に対応。来店不要でご契約まで可能です。詳細はお問い合わせください。お部屋探しはタウンハウジング錦糸町店へ!
提供:(株)タウンハウジング東京 浅草店(SUUMO経由)

詳細情報 ルネサンスコート京成曳舟
物件紹介
ルネサンスコート京成曳舟は東武亀戸線小村井駅から徒歩8分にあり、駅近で通勤通学に便利なマンションです。
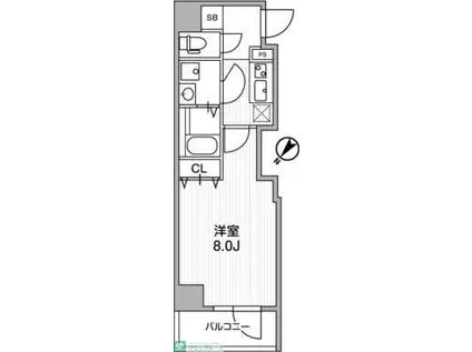
このお部屋は2階以上に位置しているので、通行人や周囲の住人からの視線が気になりにくく、防犯面でも安心。建物のエントランスはオートロックがついており、インターホンにはTVモニタもついているため、相手の顔を確認してから来客対応することができます。
フローリングのお部屋なのでお掃除もラクラク。室内には人気のウォークインクローゼットがありますので、たくさんの荷物も効率的に収納ができます。キッチンはシステムキッチン仕様になっていますので、お料理好きの方にもぴったり。バス・トイレは別なので、のんびりお風呂タイムも楽しめるでしょう。また、雨の日でも浴室乾燥機を使えば、お洗濯も問題ありません。
通信設備面では、インターネットが無料で使えるので、月々の出費を抑えられるのも魅力です。また、BSアンテナ・CSアンテナがありCATVにも対応しているので、おうち時間も充実するでしょう(別途工事、BS・CS・CATVの契約料等が必要な場合あり)。
建物にはエレベーターがついているので、重い荷物があっても安心。共用部には宅配ボックスが設定されているので、不在の時にも荷物を受け取ることができます。
このお部屋は2階以上に位置しているので、通行人や周囲の住人からの視線が気になりにくく、防犯面でも安心。建物のエントランスはオートロックがついており、インターホンにはTVモニタもついているため、相手の顔を確認してから来客対応することができます。
フローリングのお部屋なのでお掃除もラクラク。室内には人気のウォークインクローゼットがありますので、たくさんの荷物も効率的に収納ができます。キッチンはシステムキッチン仕様になっていますので、お料理好きの方にもぴったり。バス・トイレは別なので、のんびりお風呂タイムも楽しめるでしょう。また、雨の日でも浴室乾燥機を使えば、お洗濯も問題ありません。
通信設備面では、インターネットが無料で使えるので、月々の出費を抑えられるのも魅力です。また、BSアンテナ・CSアンテナがありCATVにも対応しているので、おうち時間も充実するでしょう(別途工事、BS・CS・CATVの契約料等が必要な場合あり)。
建物にはエレベーターがついているので、重い荷物があっても安心。共用部には宅配ボックスが設定されているので、不在の時にも荷物を受け取ることができます。
お金・契約の情報
※「-」と表示されているものは、実際は料金が発生するものもございます。詳細はお問い合わせください。
| 家賃 | 10.1万円 | 管理費・共益費 | 1.5万円 |
|---|---|---|---|
| 敷金 | なし | 礼金 | なし |
| 入居決定でお祝い金最大100,000円 | |||
| 保証金 | - | 償却・敷引 | - |
| 住宅保険料 | - | 更新料 | - |
| 保証会社利用 | 必須 | 保証会社名 | - |
| 保証会社費用 | - | 保証会社備考 | 保証会社利用必 賃貸保証料:0.60ヶ月 エポス月次(FIS保険)東京初回保証料60%+月次1%(フレックス少額短期保険代保証) |
| 契約形態 | - | 契約期間 | - |
| 入居・引渡期間 | 即時 | 現況 | - |
| 契約備考 | お部屋の詳細はどんなことでもお問い合わせください!【初期費用一部クレジット決済相談可】 合計5.17万円(内訳:鍵交換代:24200円/契約事務手数料:7700円/Goodプレミアムα:16500円/Goodプレミアムα登録料:3300円) 更新料新賃料(ヶ月):1.00ヶ月 1K 単身者可 普通借家2年 損保【2.2万円2年】 バストイレ別、バルコニー、エアコン、ガスコンロ対応、クロゼット、フローリング、TVインターホン、浴室乾燥機、オートロック、室内洗濯置、シューズボックス、システムキッチン、温水洗浄便座、脱衣所、エレベーター、洗面所独立、洗面化粧台、2口コンロ、駐輪場、宅配ボックス、光ファイバー、外壁タイル張り、即入居可、礼金不要、閑静な住宅地、BS・CS、敷金不要、防犯カメラ、全居室収納、全居室洋室、ウォークインクロゼット、保証人不要、単身者相談、バイク置場、全居室フローリング、2沿線利用可、ネット専用回線、駅まで平坦、ネット使用料不要、エアコン全室、ダブルロックキー、保証金不要、築2年以内、24時間換気システム、築3年以内、2駅利用可、3駅以上利用可、3沿線以上利用可、敷地内ごみ置き場、築5年以内、全居室6畳以上、都市ガス、洗面所にドア、玄関収納、高速ネット対応、マルチメディアコンセント、敷金・礼金不要、IT重説対応物件、初期費用カード決済可、通風良好 | ||
部屋の情報
| 間取り | 1K | 専有面積 | 25.71m2 |
|---|---|---|---|
| 所在階 / 向き | 7階 / 北西 | バルコニー面積 | - |
| 水道 / ガス | - | ||
| 設備 | バス・トイレ別、2階以上、オートロック、テレビドアホン、宅配ボックス、浴室乾燥機、ウォークインクローゼット、インターネット対応、システムキッチン、エアコン、エレベーター、温水洗浄便座、バルコニー、フローリング、洗髪洗面化粧台、2口コンロ、コンロ:ガス、CSアンテナ、BSアンテナ、インターネット使用料無料、洗濯機:室内 | ||
| 当社物件ID | 158500040 | ||
建物の情報
| 建物名 | ルネサンスコート京成曳舟 | ||
|---|---|---|---|
| 所在地 | 東京都墨田区八広 | ||
| 交通 | 東武亀戸線 小村井駅 徒歩8分 京成押上線 京成曳舟駅 徒歩10分 東武伊勢崎線 曳舟駅 徒歩16分 | ||
| 階数 | 9階建 | 総戸数 | - |
| 築年月 | 2025年02月 / 築2年 | エレベーター | あり |
| 駐車場 | なし | バイク置き場 | あり |
| 駐輪場 | あり | 管理人/管理会社 | - |
| 周辺環境 | その他 イーストコア曳舟三番館(ショッピングセンター)まで1110m その他 東京ソラマチ(ショッピングセンター)まで1750m その他 ベルクス東墨田店(スーパー)まで780m その他 オーケー曳舟店(スーパー)まで790m その他 セブンイレブン墨田八広はなみずき通り店(コンビニ)まで220m | ||
| 建物種別 | マンション | 建物構造 | RC(鉄筋コンクリート) |
この部屋の取扱い不動産会社
| 会社名 | (株)タウンハウジング東京 錦糸町店(SUUMO経由) | ||
|---|---|---|---|
| 所在地 | 東京都墨田区江東橋2-14-6 JU錦糸町駅前ビル1階 | 交通 | - |
| 営業時間 | AM10:00~PM7:00 | 定休日 | 水曜日 |
| 免許番号 | 国土交通大臣9926 | 取引態様 | 仲介 |
| 不動産会社管理番号 | 100483057044 | 当社管理番号 | 89 |
| 所属団体 | (公社)東京都宅地建物取引業協会会員 | ||
| 公正取引協議会 | (公社)首都圏不動産公正取引協議会加盟 | ||
| 取扱い物件情報 | 物件詳細へ | ||
※各種情報と現状に差異がある場合は、現状優先となります。問い合わせをすることで、より詳しい条件、情報を確認する事ができます。
提供:(株)タウンハウジング東京 錦糸町店(SUUMO経由)
この物件が気になったら掲載期限まであと10日
ルネサンスコート京成曳舟に条件(家賃・エリア)が近い物件一覧
| 写真 | 家賃 管理費等 | 敷金 礼金 | 間取り 専有面積 | 築年数 | 最寄り駅 所在地 | キープ | 詳細 |
|---|---|---|---|---|---|---|---|
マンション プラウドフラット浅草橋Ⅱ(1K/8階) | |||||||
![]() | 13.7万円 1万円 | 13.7万円 13.7万円 | 1K 25.1m2 | 築8年 | 東京都浅草線 浅草橋駅 徒歩4分 総武・中央緩行線 浅草橋駅 徒歩5分 総武本線 馬喰町駅 徒歩10分 東京都台東区柳橋2丁目 | 詳細を見る | |
マンション プライムステイ築地(ワンルーム/9階) | |||||||
![]() | 8.2万円 7,000円 | 8.2万円 8.2万円 | ワンルーム 16.92m2 | 築40年 | 東京地下鉄日比谷線 築地駅 徒歩3分 東京地下鉄有楽町線 新富町駅(東京) 徒歩6分 東京都大江戸線 築地市場駅 徒歩9分 東京都中央区築地3丁目 | 詳細を見る | |
マンション ニューボンデージ(1K/4階) | |||||||
![]() | 12万円 1万円 | なし 12万円 | 1K 27.46m2 | 築19年 | 東京都浅草線 本所吾妻橋駅 徒歩1分 東京地下鉄銀座線 浅草駅(東武・都営・メトロ) 徒歩12分 東京都大江戸線 蔵前駅 徒歩20分 東京都墨田区東駒形3丁目 | 詳細を見る | |
マンション エストゥルース両国Ⅱ(1K/4階) | |||||||
![]() | 11万円 1万円 | なし なし | 1K 25.77m2 | 築6年 | 東京都大江戸線 両国駅 徒歩8分 東京都大江戸線 蔵前駅 徒歩10分 総武・中央緩行線 両国駅 徒歩14分 東京都墨田区石原1丁目 | 詳細を見る | |
マンション RISING PLACE浅草(ワンルーム/2階) | |||||||
![]() | 10.5万円 1万円 | 10.5万円 なし | ワンルーム 29.53m2 | 築16年 | 東京地下鉄銀座線 浅草駅(東武・都営・メトロ) 徒歩3分 東京都浅草線 浅草駅(東武・都営・メトロ) 徒歩3分 東京地下鉄銀座線 田原町駅(東京) 徒歩4分 東京都台東区雷門1丁目 | 詳細を見る | |
マンション パークアクシス東上野(1K/11階) | |||||||
![]() | 13.1万円 1万円 | 13.1万円 13.1万円 | 1K 25.83m2 | 築12年 | 東京地下鉄銀座線 稲荷町駅(東京) 徒歩7分 山手線 上野駅 徒歩10分 つくばエクスプレス 浅草駅(つくばEXP) 徒歩11分 東京都台東区東上野6丁目 | 詳細を見る | |
マンション A LA MAISON LUANA アラメゾンルアナ(1LDK/4階) | |||||||
![]() | 14.8万円 4,000円 | 14.8万円 14.8万円 | 1LDK 33.91m2 | 築3年 | 山手線 鶯谷駅 徒歩3分 東京地下鉄日比谷線 入谷駅(東京) 徒歩7分 東京地下鉄銀座線 上野駅 徒歩14分 東京都台東区根岸3丁目 | 詳細を見る | |
マンション ルジェンテ・バリュ上野(1K/7階) | |||||||
![]() | 14万円 1万円 | なし 14万円 | 1K 25.07m2 | 築10年 | 山手線 上野駅 徒歩4分 東京地下鉄日比谷線 上野駅 徒歩7分 東京地下鉄銀座線 稲荷町駅(東京) 徒歩10分 東京都台東区上野7丁目 | 詳細を見る | |









