賃貸アパート
ニホコーポラスIIIの賃貸物件情報(ワンルーム/1階)
| 家賃 | 管理費等 | 敷金 | 礼金 | 間取り | 専有面積 |
|---|---|---|---|---|---|
| 3.4万円 | 4,000円 | 3.4万円 | 3.4万円 | ワンルーム | 21.02m2 |
入居決定でお祝い金最大100,000円
Point
◆ペット飼育相談可(賃料+2,000円、敷金+1ヶ月)◆バストイレ別◆ネット使用料無料◆オートロック、TVインターフォン、防犯カメラでセキュリティ面も充実★お気軽に良和ハウスまでお問い合わせください★
提供:(株)良和ハウス広島駅前店(SUUMO経由)

詳細情報 ニホコーポラスIII
物件紹介
ニホコーポラスIIIはJR山陽本線向洋駅から徒歩19分にあるアパートです。
建物のエントランスはオートロックがついており、インターホンにはTVモニタもついているため、相手の顔を確認してから来客対応することができます。
人気の角部屋で周囲の居住者の生活音も気になりにくく、また、フローリングのお部屋なのでお掃除もラクラク。バス・トイレ別の仕様で、のんびりお風呂タイムも楽しめます。また、浴室乾燥機を使えば、雨の日でもお洗濯は問題ありません。
通信設備面では、インターネットが無料で使えるので、月々の出費を抑えられるのも魅力です(別途工事等が必要な場合あり)。
床暖房があり、冬も足元から暖かく快適に過ごすことができます。共用部には宅配ボックスが設定されているので、不在の時にも荷物を受け取ることができます。また、ペット飼育の相談ができますので、あなたの大切な家族の一員も快適に暮らせるか、ぜひ確認してみてください。
建物のエントランスはオートロックがついており、インターホンにはTVモニタもついているため、相手の顔を確認してから来客対応することができます。
人気の角部屋で周囲の居住者の生活音も気になりにくく、また、フローリングのお部屋なのでお掃除もラクラク。バス・トイレ別の仕様で、のんびりお風呂タイムも楽しめます。また、浴室乾燥機を使えば、雨の日でもお洗濯は問題ありません。
通信設備面では、インターネットが無料で使えるので、月々の出費を抑えられるのも魅力です(別途工事等が必要な場合あり)。
床暖房があり、冬も足元から暖かく快適に過ごすことができます。共用部には宅配ボックスが設定されているので、不在の時にも荷物を受け取ることができます。また、ペット飼育の相談ができますので、あなたの大切な家族の一員も快適に暮らせるか、ぜひ確認してみてください。
お金・契約の情報
※「-」と表示されているものは、実際は料金が発生するものもございます。詳細はお問い合わせください。
| 家賃 | 3.4万円 | 管理費・共益費 | 4,000円 |
|---|---|---|---|
| 敷金 | 3.4万円 | 礼金 | 3.4万円 |
| 入居決定でお祝い金最大100,000円 | |||
| 保証金 | - | 償却・敷引 | - |
| 住宅保険料 | - | 更新料 | - |
| 保証会社利用 | 必須 | 保証会社名 | 全保連 |
| 保証会社費用 | - | 保証会社備考 | 全保連利用必 要確認 |
| 契約形態 | - | 契約期間 | - |
| 入居・引渡期間 | 即時 | 現況 | - |
| 入居可能条件 | ペット相談 | ||
| 契約備考 | 合計0.55万円(内訳:カギ交換代:5500円) ワンルーム ペット相談 損保【要】 バストイレ別、エアコン、ガスコンロ対応、クロゼット、フローリング、TVインターホン、浴室乾燥機、オートロック、室内洗濯置、追焚機能浴室、角住戸、温水洗浄便座、脱衣所、洗面所独立、2口コンロ、駐輪場、宅配ボックス、即入居可、閑静な住宅地、防犯カメラ、ペット相談、全居室洋室、単身者相談、バイク置場、ネット専用回線、ネット使用料不要、床暖房、バス2路線、敷地内ごみ置き場、プロパンガス、初期費用カード決済可 | ||
部屋の情報
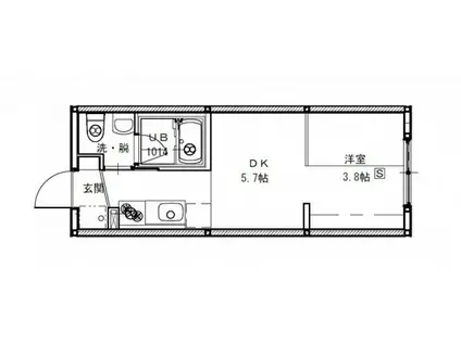
| 間取り | ワンルーム | 専有面積 | 21.02m2 |
|---|---|---|---|
| 所在階 / 向き | 1階 / - | バルコニー面積 | - |
| 水道 / ガス | - | ||
| 設備 | バス・トイレ別、オートロック、テレビドアホン、宅配ボックス、浴室乾燥機、追い焚き、インターネット対応、エアコン、温水洗浄便座、角部屋、フローリング、洗髪洗面化粧台、床暖房、2口コンロ、コンロ:ガス、インターネット使用料無料、洗濯機:室内 | ||
| 当社物件ID | 15752659 | ||
建物の情報
| 建物名 | ニホコーポラスIII | ||
|---|---|---|---|
| 所在地 | 広島県広島市南区仁保 | ||
| 交通 | JR山陽本線 向洋駅 徒歩19分 | ||
| 階数 | 2階建 | 総戸数 | 18戸 |
| 築年月 | 2014年11月 / 築12年 | エレベーター | - |
| 駐車場 | 近隣 250m11000円 | バイク置き場 | あり |
| 駐輪場 | あり | 管理人/管理会社 | - |
| 周辺環境 | その他 福屋広島駅前店(ショッピングセンター)まで3839m その他 ユアーズ本浦店(スーパー)まで756m その他 セブンイレブン広島仁保店(コンビニ)まで518m その他 ウォンツ本浦店(ドラッグストア)まで787m その他 広島市立仁保小学校(小学校)まで621m その他 医療法人広島厚生会広島厚生病院(病院)まで998m | ||
| 建物種別 | アパート | 建物構造 | 木造 |
この部屋の取扱い不動産会社
| 会社名 | (株)良和ハウス祇園店(SUUMO経由) | ||
|---|---|---|---|
| 所在地 | 広島県広島市安佐南区西原4-34-23 | 交通 | - |
| 営業時間 | 10時~18時 | 定休日 | 火曜日 |
| 免許番号 | 国土交通大臣9113 | 取引態様 | 仲介 |
| 不動産会社管理番号 | 100372777473 | 当社管理番号 | 89 |
| 所属団体 | (公社)広島県宅地建物取引業協会会員 | ||
| 公正取引協議会 | 中国地区不動産公正取引協議会加盟 | ||
| 取扱い物件情報 | 物件詳細へ | ||
※各種情報と現状に差異がある場合は、現状優先となります。問い合わせをすることで、より詳しい条件、情報を確認する事ができます。
提供:(株)良和ハウス祇園店(SUUMO経由)
この物件が気になったら掲載期限まであと11日
ニホコーポラスIIIに条件(家賃・エリア)が近い物件一覧
| 写真 | 家賃 管理費等 | 敷金 礼金 | 間取り 専有面積 | 築年数 | 最寄り駅 所在地 | キープ | 詳細 |
|---|---|---|---|---|---|---|---|
アパート メゾネット宇品御幸(1DK/1階) | |||||||
![]() | 4.8万円 なし | 9.6万円 4.8万円 | 1DK 36.35m2 | 築33年 | 広島電鉄宇品線 宇品五丁目駅 徒歩4分 広島電鉄宇品線 海岸通駅 徒歩4分 広島電鉄宇品線 元宇品口駅 徒歩6分 広島県広島市南区宇品御幸 | 詳細を見る | |
マンション ティニーMATSUYAMA(1K/7階) | |||||||
![]() | 5万円 なし | 5万円 5万円 | 1K 32.4m2 | 築22年 | 広島電鉄宮島線 山陽女学園前駅 徒歩5分 広島電鉄宮島線 広電廿日市駅 徒歩12分 JR山陽本線 廿日市駅 徒歩14分 広島県廿日市市佐方本町 | 詳細を見る | |
マンション シャルム広本(1K/3階) | |||||||
![]() | 3.3万円 なし | 6.6万円 3.3万円 | 1K 22.15m2 | 築41年 | 広島電鉄宇品線 県病院前駅 徒歩18分 広島電鉄宇品線 広大附属学校前駅 徒歩19分 広島電鉄宇品線 宇品二丁目駅 徒歩19分 広島県広島市南区山城町 | 詳細を見る | |
マンション レオパレスVIRGO(1K/3階) | |||||||
![]() | 3.8万円 4,500円 | なし なし | 1K 19.87m2 | 築19年 | 広島県呉市西鹿田2丁目 | 詳細を見る | |
アパート レオパレスファミリア(1K/1階) | |||||||
![]() | 4.4万円 4,500円 | なし 4.4万円 | 1K 23.18m2 | 築21年 | 広島県東広島市黒瀬楢原東2丁目 | 詳細を見る | |
アパート レオパレスきじの里C(1K/1階) | |||||||
![]() | 4.3万円 4,500円 | なし 4.3万円 | 1K 26.49m2 | 築24年 | 広島県東広島市黒瀬楢原北1丁目 | 詳細を見る | |
アパート フォブール木原A棟(1K/2階) | |||||||
![]() | 3.8万円 2,000円 | なし 5.7万円 | 1K 24.89m2 | 築32年 | 広島県東広島市西条下見6丁目 | 詳細を見る | |
アパート 野間アパート(2K/1階) | |||||||
![]() | 3.9万円 なし | なし なし | 2K 40m2 | 築51年 | 呉線 川原石駅 徒歩3分 広島県呉市海岸2丁目 | 詳細を見る | |








