賃貸マンション
リフィオ成増の賃貸物件情報(ワンルーム/3階)
| 家賃 | 管理費等 | 敷金 | 礼金 | 間取り | 専有面積 |
|---|---|---|---|---|---|
| 8.5万円 | 8,000円 | なし | なし | ワンルーム | 21.76m2 |
入居決定でお祝い金最大100,000円
- 保証金
- -
- 償却・敷引
- -
- 築年数
- 築34年
- 所在階
- 3階
- 向き
- 南東
Point
エリア問わず一括の案内も承ります。インターネット公開中の募集条件が全てでは御座いません!今の時期だから出来る交渉があります!初期費用の分割・クレジットカード払いなど何でもご相談ください!最新の
提供:ワングループ レーニス不動産 (株)レーニスワン(SUUMO経由)

詳細情報 リフィオ成増
物件紹介
リフィオ成増は東京メトロ有楽町線地下鉄成増駅から徒歩5分にあり、駅近で通勤通学に便利なマンションです。
このお部屋は2階以上に位置しているので、通行人や周囲の住人からの視線が気になりにくく、防犯面でも安心。建物のエントランスはオートロックがついており、インターホンにはTVモニタもついているため、相手の顔を確認してから来客対応することができます。
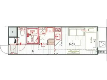
おしゃれなデザイナーズ物件!人気の南向き・フローリングのお部屋。室内には多目的に利用できるロフトもあり、お部屋のアレンジも自在です。キッチンはシステムキッチン仕様になっていますので、お料理好きの方にもぴったり。また、バス・トイレは別で、のんびりお風呂タイムも楽しめるでしょう。
通信設備面では、インターネットが無料で使えるので、月々の出費を抑えられるのも魅力です。また、CATVにも対応しているので、おうち時間も充実するでしょう(別途工事、CATVの契約料等が必要な場合あり)。
建物にはエレベーターがついているので、重い荷物があっても安心。共用部には宅配ボックスが設定されているので、不在の時にも荷物を受け取ることができます。
このお部屋は2階以上に位置しているので、通行人や周囲の住人からの視線が気になりにくく、防犯面でも安心。建物のエントランスはオートロックがついており、インターホンにはTVモニタもついているため、相手の顔を確認してから来客対応することができます。
おしゃれなデザイナーズ物件!人気の南向き・フローリングのお部屋。室内には多目的に利用できるロフトもあり、お部屋のアレンジも自在です。キッチンはシステムキッチン仕様になっていますので、お料理好きの方にもぴったり。また、バス・トイレは別で、のんびりお風呂タイムも楽しめるでしょう。
通信設備面では、インターネットが無料で使えるので、月々の出費を抑えられるのも魅力です。また、CATVにも対応しているので、おうち時間も充実するでしょう(別途工事、CATVの契約料等が必要な場合あり)。
建物にはエレベーターがついているので、重い荷物があっても安心。共用部には宅配ボックスが設定されているので、不在の時にも荷物を受け取ることができます。
お金・契約の情報
※「-」と表示されているものは、実際は料金が発生するものもございます。詳細はお問い合わせください。
| 家賃 | 8.5万円 | 管理費・共益費 | 8,000円 |
|---|---|---|---|
| 敷金 | なし | 礼金 | なし |
| 入居決定でお祝い金最大100,000円 | |||
| 保証金 | - | 償却・敷引 | - |
| 住宅保険料 | - | 更新料 | - |
| 保証会社利用 | 必須 | 保証会社名 | - |
| 保証会社費用 | - | 保証会社備考 | 保証会社利用必 お気軽にお問い合わせください。 初回保証:賃料等の50% 月額保証:賃料等の1.2% |
| 契約形態 | - | 契約期間 | - |
| 入居・引渡期間 | - | 現況 | - |
| 契約備考 | 短期解約違約金有:1年未満1か月 半年未満2か月物件詳細やご見学ご依頼等はお気軽にご相談下さいませ★毎日新規物件50件以上登録しております★入居日・初期費用等の交渉事は全て当社にお任せ下さい!お客様のご希望にそって全力でお部屋探しのサポートをさせて頂きます!ワングループでは、シングル(一人暮らし)・ファミリー(家族)賃貸物件を中心にお部屋探しをサポート致します!その他非公開物件の情報提供も致しま 合計2.2万円(内訳:鍵交換代2.2万円) 更新料 新賃料1.00ヶ月分 室内清掃費用 27500円 ワンルーム 普通借家2年 損保【1.5万円2年】 バストイレ別、バルコニー、エアコン、クロゼット、フローリング、TVインターホン、オートロック、室内洗濯置、シューズボックス、システムキッチン、南向き、脱衣所、エレベーター、洗面所独立、洗面化粧台、2口コンロ、駐輪場、宅配ボックス、CATV、光ファイバー、礼金不要、敷金不要、防犯カメラ、IHクッキングヒーター、全居室収納、ロフト、保証人不要、全居室フローリング、デザイナーズ、2沿線利用可、ディンプルキー、ネット使用料不要、エアコン全室、2駅利用可、3駅以上利用可、駅徒歩5分以内、駅徒歩10分以内、敷地内ごみ置き場、都市ガス、リノベーション、IT重説対応物件、初期費用カード決済可 入居日:'26年4月上旬 | ||
部屋の情報
| 間取り | ワンルーム | 専有面積 | 21.76m2 |
|---|---|---|---|
| 所在階 / 向き | 3階 / 南東 | バルコニー面積 | - |
| 水道 / ガス | - | ||
| 設備 | バス・トイレ別、2階以上、オートロック、テレビドアホン、宅配ボックス、インターネット対応、システムキッチン、エアコン、エレベーター、南向き、バルコニー、フローリング、ロフトあり、洗髪洗面化粧台、2口コンロ、コンロ:IH、デザイナーズ、CATV、インターネット使用料無料、洗濯機:室内 | ||
| 当社物件ID | 160514830 | ||
建物の情報
| 建物名 | リフィオ成増 | ||
|---|---|---|---|
| 所在地 | 東京都板橋区成増 | ||
| 交通 | 東京メトロ有楽町線 地下鉄成増駅 徒歩5分 東武東上線 成増駅 徒歩7分 東武東上線 下赤塚駅 徒歩17分 | ||
| 階数 | 4階建 | 総戸数 | 28戸 |
| 築年月 | 1992年03月 / 築34年 | エレベーター | あり |
| 駐車場 | 近隣 200m25000円 | バイク置き場 | - |
| 駐輪場 | あり | 管理人/管理会社 | - |
| 周辺環境 | その他 ヘアーサロン岩田(その他)まで1295m その他 光和化成株式会社(その他)まで1369m その他 丸田モータース(その他)まで1330m その他 成増駅(その他)まで656m その他 下赤塚駅(その他)まで1404m その他 高島平駅(その他)まで3678m | ||
| 建物種別 | マンション | 建物構造 | RC(鉄筋コンクリート) |
この部屋の取扱い不動産会社
| 会社名 | ワングループ アグノス不動産 (株)アグノスワン(SUUMO経由) | ||
|---|---|---|---|
| 所在地 | 東京都荒川区西日暮里5-18-11 パーク2ビル3階 | 交通 | - |
| 営業時間 | 10時~19時 | 定休日 | 水曜日 |
| 免許番号 | 東京都知事108381 | 取引態様 | 仲介 |
| 不動産会社管理番号 | 100492141934 | 当社管理番号 | 89 |
| 所属団体 | (公社)東京都宅地建物取引業協会会員 | ||
| 公正取引協議会 | (公社)首都圏不動産公正取引協議会加盟 | ||
| 取扱い物件情報 | 物件詳細へ | ||
※各種情報と現状に差異がある場合は、現状優先となります。問い合わせをすることで、より詳しい条件、情報を確認する事ができます。
提供:ワングループ アグノス不動産 (株)アグノスワン(SUUMO経由)
この物件が気になったら掲載期限まであと11日
リフィオ成増に条件(家賃・エリア)が近い物件一覧
| 写真 | 家賃 管理費等 | 敷金 礼金 | 間取り 専有面積 | 築年数 | 最寄り駅 所在地 | キープ | 詳細 |
|---|---|---|---|---|---|---|---|
マンション 高野台I-PLACE(2DK/1階) | |||||||
![]() | 7万円 2,000円 | 7万円 7万円 | 2DK 26m2 | 築34年 | 西武池袋線 練馬高野台駅 徒歩10分 西武池袋線 石神井公園駅 徒歩16分 都営大江戸線 光が丘駅 徒歩24分 東京都練馬区高野台 | 詳細を見る | |
マンション AGLAIA要町(1DK/3階) | |||||||
![]() | 13万円 1万円 | なし なし | 1DK 27.06m2 | 築1年 | 東京メトロ有楽町線 要町駅 徒歩9分 東京メトロ副都心線 要町駅 徒歩9分 JR山手線 池袋駅 徒歩15分 東京都豊島区高松 | 詳細を見る | |
マンション メインステージ武蔵関駅前II(1K/7階) | |||||||
![]() | 10万円 1.5万円 | なし 10万円 | 1K 25.51m2 | 築11年 | 西武新宿線 武蔵関駅 徒歩3分 西武新宿線 東伏見駅 徒歩15分 西武新宿線 上石神井駅 徒歩22分 東京都練馬区関町北 | 詳細を見る | |
マンション 千曲ビル(ワンルーム/2階) | |||||||
![]() | 6.2万円 5,000円 | 6.2万円 6.2万円 | ワンルーム 23.42m2 | 築37年 | 西武池袋線 練馬駅 徒歩7分 西武池袋線 桜台駅(東京) 徒歩14分 都営大江戸線 豊島園駅 徒歩17分 東京都練馬区豊玉北 | 詳細を見る | |
アパート パークアヴェニュー練馬北町(1K/3階) | |||||||
![]() | 8万円 3,000円 | 8万円 8万円 | 1K 18.18m2 | 築1年 | 東武東上線 東武練馬駅 徒歩6分 東武東上線 上板橋駅 徒歩13分 東京メトロ副都心線 平和台駅(東京) 徒歩21分 東京都練馬区北町 | 詳細を見る | |
マンション INNERHALB(1LDK/1階) | |||||||
![]() | 12万円 3,000円 | 12万円 12万円 | 1LDK 35.31m2 | 築5年 | 東京メトロ有楽町線 地下鉄成増駅 徒歩4分 東京メトロ副都心線 地下鉄成増駅 徒歩4分 東武東上線 成増駅 徒歩7分 東京都板橋区成増 | 詳細を見る | |
マンション コリンシアン東池袋(1K/5階) | |||||||
![]() | 11.1万円 1万円 | 11.1万円 なし | 1K 26.21m2 | 築4年 | 都電荒川線 向原駅(東京) 徒歩5分 JR山手線 大塚駅(東京) 徒歩7分 東京メトロ有楽町線 東池袋駅 徒歩8分 東京都豊島区東池袋 | 詳細を見る | |
マンション パークアクシス赤塚(ワンルーム/8階) | |||||||
![]() | 11.2万円 1万円 | 11.2万円 11.2万円 | ワンルーム 25.22m2 | 築8年 | 東武東上線 下赤塚駅 徒歩1分 東京メトロ有楽町線 地下鉄赤塚駅 徒歩3分 東武東上線 東武練馬駅 徒歩21分 東京都板橋区赤塚 | 詳細を見る | |









