賃貸マンション
エスリード神戸ハーバーテラスの賃貸物件情報(1K/2階)
| 家賃 | 管理費等 | 敷金 | 礼金 | 間取り | 専有面積 |
|---|---|---|---|---|---|
| 6.67万円 | 8,000円 | なし | 11.21万円 | 1K | 24.36m2 |
入居決定でお祝い金最大100,000円
- 保証金
- -
- 償却・敷引
- -
- 築年数
- 築7年
- 所在階
- 2階
- 向き
- 南
Point
神戸市の賃貸なら株式会社SuMiraiへ
提供:(株)SuMirai(SUUMO経由)

詳細情報 エスリード神戸ハーバーテラス
物件紹介
エスリード神戸ハーバーテラスはJR東海道本線神戸駅から徒歩7分にあり、駅近で通勤通学に便利なマンションです。
このお部屋は2階以上に位置しているので、通行人や周囲の住人からの視線が気になりにくく、防犯面でも安心。建物のエントランスはオートロックがついており、インターホンにはTVモニタもついているため、相手の顔を確認してから来客対応することができます。
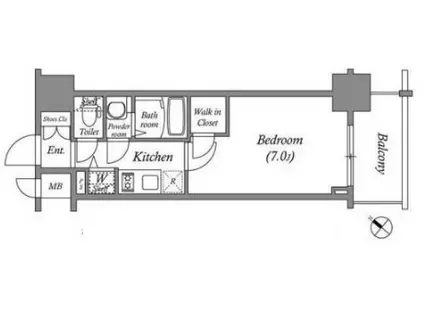
おしゃれなデザイナーズ物件!人気の南向き・フローリングのお部屋。室内にはウォークインクローゼットがありますので、たくさんの荷物も効率的に収納ができます。キッチンはシステムキッチン仕様になっていますので、お料理好きの方にもぴったり。バス・トイレは別なので、のんびりお風呂タイムも楽しめるでしょう。また、雨の日でも浴室乾燥機を使えば、お洗濯も問題ありません。
通信設備面では、インターネットが無料で使えるので、月々の出費を抑えられるのも魅力です。また、BSアンテナ・CSアンテナがありCATVにも対応しているので、おうち時間も充実するでしょう(別途工事、BS・CS・CATVの契約料等が必要な場合あり)。
建物にはエレベーターがついているので、重い荷物があっても安心。共用部には宅配ボックスが設定されているので、不在の時にも荷物を受け取ることができます。また、ペット飼育の相談ができますので、あなたの大切な家族の一員も快適に暮らせるか、ぜひ確認してみてください。
このお部屋は2階以上に位置しているので、通行人や周囲の住人からの視線が気になりにくく、防犯面でも安心。建物のエントランスはオートロックがついており、インターホンにはTVモニタもついているため、相手の顔を確認してから来客対応することができます。
おしゃれなデザイナーズ物件!人気の南向き・フローリングのお部屋。室内にはウォークインクローゼットがありますので、たくさんの荷物も効率的に収納ができます。キッチンはシステムキッチン仕様になっていますので、お料理好きの方にもぴったり。バス・トイレは別なので、のんびりお風呂タイムも楽しめるでしょう。また、雨の日でも浴室乾燥機を使えば、お洗濯も問題ありません。
通信設備面では、インターネットが無料で使えるので、月々の出費を抑えられるのも魅力です。また、BSアンテナ・CSアンテナがありCATVにも対応しているので、おうち時間も充実するでしょう(別途工事、BS・CS・CATVの契約料等が必要な場合あり)。
建物にはエレベーターがついているので、重い荷物があっても安心。共用部には宅配ボックスが設定されているので、不在の時にも荷物を受け取ることができます。また、ペット飼育の相談ができますので、あなたの大切な家族の一員も快適に暮らせるか、ぜひ確認してみてください。
お金・契約の情報
※「-」と表示されているものは、実際は料金が発生するものもございます。詳細はお問い合わせください。
| 家賃 | 6.67万円 | 管理費・共益費 | 8,000円 |
|---|---|---|---|
| 敷金 | なし | 礼金 | 11.21万円 |
| 入居決定でお祝い金最大100,000円 | |||
| 保証金 | - | 償却・敷引 | - |
| 住宅保険料 | - | 更新料 | - |
| 契約形態 | - | 契約期間 | - |
| 入居・引渡期間 | 相談 | 現況 | - |
| 入居可能条件 | ペット相談 | ||
| 契約備考 | 巡回管理 1K ペット相談 普通借家2年 損保【要】 バストイレ別、バルコニー、エアコン、ガスコンロ対応、クロゼット、フローリング、TVインターホン、浴室乾燥機、オートロック、室内洗濯置、シューズボックス、システムキッチン、温水洗浄便座、エレベーター、洗面所独立、洗面化粧台、2口コンロ、駐輪場、宅配ボックス、CATV、光ファイバー、外壁タイル張り、BS・CS、防犯カメラ、独立型キッチン、ペット相談、保証人不要、バイク置場、デザイナーズ、2沿線利用可、CS、駅まで平坦、ネット使用料不要、平坦地、人感照明センサー、耐火構造、耐震構造、2駅利用可、3駅以上利用可、3沿線以上利用可、駅徒歩10分以内、敷地内ごみ置き場、都市ガス、オートライト、BS、年内入居可、年度内入居可 | ||
部屋の情報
| 間取り | 1K | 専有面積 | 24.36m2 |
|---|---|---|---|
| 所在階 / 向き | 2階 / 南 | バルコニー面積 | 7m2 |
| 水道 / ガス | - | ||
| 設備 | バス・トイレ別、2階以上、オートロック、テレビドアホン、宅配ボックス、浴室乾燥機、インターネット対応、システムキッチン、エアコン、エレベーター、温水洗浄便座、南向き、バルコニー、フローリング、洗髪洗面化粧台、2口コンロ、コンロ:ガス、デザイナーズ、CATV、CSアンテナ、BSアンテナ、インターネット使用料無料、洗濯機:室内 | ||
| 当社物件ID | 30788327 | ||
建物の情報
| 建物名 | エスリード神戸ハーバーテラス | ||
|---|---|---|---|
| 所在地 | 兵庫県神戸市中央区中町通 | ||
| 交通 | JR東海道本線 神戸駅(兵庫) 徒歩7分 地下鉄西神・山手線 大倉山駅(兵庫) 徒歩13分 | ||
| 階数 | 14階建 | 総戸数 | 195戸 |
| 築年月 | 2019年10月 / 築7年 | エレベーター | あり |
| 駐車場 | 近隣 50m18000円 | バイク置き場 | あり |
| 駐輪場 | あり | 管理人/管理会社 | - |
| 周辺環境 | その他 兵庫信用金庫 神戸駅前支店(銀行)まで100m その他 ホームケアクリニックこうべ(病院)まで230m その他 ライフ 神戸駅前店(スーパー)まで187m その他 ローソン 神戸古湊通一丁目店(コンビニ)まで215m その他 兵庫警察署 新開地交番(警察署・交番)まで304m その他 セブンイレブン 神戸中央中町通店(コンビニ)まで283m | ||
| 建物種別 | マンション | 建物構造 | RC(鉄筋コンクリート) |
この部屋の取扱い不動産会社
| 会社名 | (株)SuMirai(SUUMO経由) | ||
|---|---|---|---|
| 所在地 | 兵庫県神戸市中央区琴ノ緒町5-29-501 | 交通 | - |
| 営業時間 | 9:00~19:00 | 定休日 | 水曜日 |
| 免許番号 | 兵庫県知事12483 | 取引態様 | 仲介 |
| 不動産会社管理番号 | 100482547890 | 当社管理番号 | 89 |
| 所属団体 | (公社)全日本不動産協会兵庫県本部会員 | ||
| 公正取引協議会 | (公社)近畿地区不動産公正取引協議会加盟 | ||
| 取扱い物件情報 | 物件詳細へ | ||
※各種情報と現状に差異がある場合は、現状優先となります。問い合わせをすることで、より詳しい条件、情報を確認する事ができます。
提供:(株)SuMirai(SUUMO経由)
この物件が気になったら掲載期限まであと11日
エスリード神戸ハーバーテラスに条件(家賃・エリア)が近い物件一覧
| 写真 | 家賃 管理費等 | 敷金 礼金 | 間取り 専有面積 | 築年数 | 最寄り駅 所在地 | キープ | 詳細 |
|---|---|---|---|---|---|---|---|
アパート グランシード住吉(2LDK/1階) | |||||||
![]() | 8.9万円 なし | 2万円 なし | 2LDK 50m2 | 築27年 | 山陽電気鉄道本線 山陽魚住駅 徒歩3分 山陽電気鉄道本線 西江井ケ島駅 徒歩12分 山陽本線 魚住駅 徒歩15分 兵庫県明石市魚住町住吉2丁目 | 詳細を見る | |
アパート グリーンハイツ(2LDK/2階) | |||||||
![]() | 6.1万円 なし | 2万円 なし | 2LDK 50m2 | 築27年 | 山陽電鉄本線 東二見駅 徒歩6分 山陽電鉄本線 山陽魚住駅 徒歩20分 山陽電鉄本線 西二見駅 徒歩23分 兵庫県明石市二見町東二見 | 詳細を見る | |
アパート ウエストヒルズB(1LDK/1階) | |||||||
![]() | 5.7万円 3,500円 | なし 11.4万円 | 1LDK 46.49m2 | 築17年 | 山陽電気鉄道本線 山陽魚住駅 徒歩9分 山陽本線 魚住駅 徒歩11分 兵庫県明石市魚住町住吉3 | 詳細を見る | |
アパート MKホーム広野(1LDK/1階) | |||||||
![]() | 6.5万円 なし | なし 13万円 | 1LDK 45.36m2 | 築47年 | 神戸電鉄粟生線 広野ゴルフ場前駅 徒歩11分 神戸電鉄粟生線 志染駅 徒歩20分 神戸電鉄粟生線 緑が丘駅(兵庫) 徒歩20分 兵庫県三木市志染町広野6丁目 | 詳細を見る | |
アパート 山陽電気鉄道本線 大蔵谷駅 徒歩6分 築9年(ワンルーム/1階) | |||||||
![]() | 5.2万円 3,000円 | なし 10.4万円 | ワンルーム 28.57m2 | 築9年 | 山陽電気鉄道本線 大蔵谷駅 徒歩6分 山陽本線 朝霧駅 徒歩12分 山陽電気鉄道本線 人丸前駅 徒歩15分 兵庫県明石市朝霧町2丁目 | 詳細を見る | |
アパート ガーデンハウス・KⅤ(1K/1階) | |||||||
![]() | 7.4万円 3,500円 | なし 7.4万円 | 1K 33.2m2 | 新築 | 東海道・山陽新幹線 西明石駅 徒歩8分 山陽本線 西明石駅 徒歩8分 山陽電気鉄道本線 藤江駅 徒歩16分 兵庫県明石市西明石西町2丁目 | 詳細を見る | |
アパート ペルル5(1LDK/1階) | |||||||
![]() | 7.6万円 4,500円 | 7.6万円 なし | 1LDK 42.5m2 | 築1年 | 山陽電気鉄道本線 藤江駅 徒歩5分 山陽本線 西明石駅 徒歩20分 山陽電気鉄道本線 中八木駅 徒歩20分 兵庫県明石市藤江 | 詳細を見る | |
アパート 神戸電鉄粟生線 恵比須駅 徒歩8分 築14年(1K/2階) | |||||||
![]() | 5.8万円 4,000円 | なし 5.8万円 | 1K 35.26m2 | 築14年 | 神戸電鉄粟生線 恵比須駅 徒歩8分 兵庫県三木市大塚 | 詳細を見る | |







