賃貸マンション
ザ・パークハビオ人形町レジデンスの賃貸物件情報(1K/9階)
| 家賃 | 管理費等 | 敷金 | 礼金 | 間取り | 専有面積 |
|---|---|---|---|---|---|
| 16.1万円 | 1.5万円 | 16.1万円 | なし | 1K | 26.73m2 |
入居決定でお祝い金最大100,000円
- 保証金
- -
- 償却・敷引
- -
- 築年数
- 築3年
- 所在階
- 9階
- 向き
- 北東
Point
オンライン内見・契約実施中!初期費用クレカ決済もご相談ください!お部屋探しはピアホームにお任せください♪
提供:SEG(株)PeerHome広尾駅前店アネックス(SUUMO経由)

詳細情報 ザ・パークハビオ人形町レジデンス
物件紹介
ザ・パークハビオ人形町レジデンスは東京メトロ日比谷線人形町駅から徒歩5分にあり、駅近で通勤通学に便利なマンションです。
このお部屋は2階以上に位置しているので、通行人や周囲の住人からの視線が気になりにくく、防犯面でも安心。建物のエントランスはオートロックがついており、インターホンにはTVモニタもついているため、相手の顔を確認してから来客対応することができます。
こちらは楽器相談が可能な物件。楽器演奏をお考えの方はぜひ相談してみてください。フローリングのお部屋なのでお掃除もラクラク。キッチンはシステムキッチン仕様になっていますので、お料理好きの方にもぴったり。バス・トイレは別なので、のんびりお風呂タイムも楽しめるでしょう。また、雨の日でも浴室乾燥機を使えば、お洗濯も問題ありません。
通信設備面では、インターネットが無料で使えるので、月々の出費を抑えられるのも魅力です。また、BSアンテナ・CSアンテナもありますので、おうち時間も充実するでしょう(別途工事、BS・CSの契約料等が必要な場合あり)。
建物にはエレベーターがついているので、重い荷物があっても安心。共用部には宅配ボックスが設定されているので、不在の時にも荷物を受け取ることができます。また、ペット飼育の相談ができますので、あなたの大切な家族の一員も快適に暮らせるか、ぜひ確認してみてください。
このお部屋は2階以上に位置しているので、通行人や周囲の住人からの視線が気になりにくく、防犯面でも安心。建物のエントランスはオートロックがついており、インターホンにはTVモニタもついているため、相手の顔を確認してから来客対応することができます。
こちらは楽器相談が可能な物件。楽器演奏をお考えの方はぜひ相談してみてください。フローリングのお部屋なのでお掃除もラクラク。キッチンはシステムキッチン仕様になっていますので、お料理好きの方にもぴったり。バス・トイレは別なので、のんびりお風呂タイムも楽しめるでしょう。また、雨の日でも浴室乾燥機を使えば、お洗濯も問題ありません。
通信設備面では、インターネットが無料で使えるので、月々の出費を抑えられるのも魅力です。また、BSアンテナ・CSアンテナもありますので、おうち時間も充実するでしょう(別途工事、BS・CSの契約料等が必要な場合あり)。
建物にはエレベーターがついているので、重い荷物があっても安心。共用部には宅配ボックスが設定されているので、不在の時にも荷物を受け取ることができます。また、ペット飼育の相談ができますので、あなたの大切な家族の一員も快適に暮らせるか、ぜひ確認してみてください。
お金・契約の情報
※「-」と表示されているものは、実際は料金が発生するものもございます。詳細はお問い合わせください。
| 家賃 | 16.1万円 | 管理費・共益費 | 1.5万円 |
|---|---|---|---|
| 敷金 | 16.1万円 | 礼金 | なし |
| 入居決定でお祝い金最大100,000円 | |||
| 保証金 | - | 償却・敷引 | - |
| 住宅保険料 | - | 更新料 | - |
| 保証会社利用 | 必須 | 保証会社名 | 日本セーフティー |
| 保証会社費用 | - | 保証会社備考 | 日本セーフティー利用必 初年度委託料:賃料等合計額の50%(最低保証料2万円)2年目以降:1年毎1万円~ |
| 契約形態 | - | 契約期間 | - |
| 入居・引渡期間 | - | 現況 | - |
| 入居可能条件 | 事務所可、楽器相談、ペット相談 | ||
| 契約備考 | ※短期解約時、違約金が発生する場合がございます。※同タイプ・別階の内観写真を掲載している場合があります。図面と現況が異なる場合は現況を優先いたします。 合計4.95万円(内訳:鍵交換代:33000円24時間サポート:16500円/2年) 駐輪場:330~880円/月バイク:5500円/月ペット:小型犬・猫2匹迄、敷金1ヶ月追加楽器:10~20時、連続演奏1時間以内、消音機能付限定SOHO:敷金1ヶ月追加、保証料賃料等合計100%・1年毎10%退去時清掃費:借主負担 1K ペット相談/楽器相談 損保【2万円2年】 バストイレ別、バルコニー、エアコン、ガスコンロ対応、クロゼット、フローリング、TVインターホン、浴室乾燥機、オートロック、室内洗濯置、陽当り良好、シューズボックス、システムキッチン、追焚機能浴室、温水洗浄便座、エレベーター、洗面所独立、2口コンロ、駐輪場、宅配ボックス、光ファイバー、3口以上コンロ、対面式キッチン、防犯カメラ、ペット相談、オートバス、保証人不要、バイク置場、全居室フローリング、CS、ネット使用料不要、エアコン全室、事務所相談、楽器相談、敷地内ごみ置き場、都市ガス、BS、初期費用カード決済可 入居日:'26年3月下旬 | ||
部屋の情報
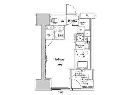
| 間取り | 1K | 専有面積 | 26.73m2 |
|---|---|---|---|
| 所在階 / 向き | 9階 / 北東 | バルコニー面積 | - |
| 水道 / ガス | - | ||
| 設備 | バス・トイレ別、2階以上、オートロック、テレビドアホン、宅配ボックス、浴室乾燥機、追い焚き、インターネット対応、システムキッチン、エアコン、エレベーター、温水洗浄便座、バルコニー、フローリング、洗髪洗面化粧台、2口コンロ、コンロ:ガス、CSアンテナ、BSアンテナ、インターネット使用料無料、洗濯機:室内 | ||
| 当社物件ID | 148960209 | ||
建物の情報
| 建物名 | ザ・パークハビオ人形町レジデンス | ||
|---|---|---|---|
| 所在地 | 東京都中央区日本橋久松町 | ||
| 交通 | 東京メトロ日比谷線 人形町駅 徒歩5分 都営浅草線 東日本橋駅 徒歩6分 都営新宿線 馬喰横山駅 徒歩6分 | ||
| 階数 | 12階建 | 総戸数 | - |
| 築年月 | 2024年01月 / 築3年 | エレベーター | あり |
| 駐車場 | 近隣 50m50000円 | バイク置き場 | あり |
| 駐輪場 | あり | 管理人/管理会社 | - |
| 周辺環境 | その他 ファミリーマート 堀留町二丁目店(コンビニ)まで213m その他 マルマンストア日本橋馬喰町店(スーパー)まで444m その他 久松小学校(小学校)まで49m その他 日本橋中学校(中学校)まで461m その他 三井記念病院(病院)まで1277m | ||
| 建物種別 | マンション | 建物構造 | RC(鉄筋コンクリート) |
この部屋の取扱い不動産会社
| 会社名 | SEG(株)広尾本店(SUUMO経由) | ||
|---|---|---|---|
| 所在地 | 東京都渋谷区広尾5-3-13 Barbizon86 6階 | 交通 | - |
| 営業時間 | 9:00~18:30 | 定休日 | なし |
| 免許番号 | 東京都知事103362 | 取引態様 | 仲介 |
| 不動産会社管理番号 | 100481796501 | 当社管理番号 | 89 |
| 所属団体 | (公社)東京都宅地建物取引業協会会員 | ||
| 公正取引協議会 | (公社)首都圏不動産公正取引協議会加盟 | ||
| 取扱い物件情報 | 物件詳細へ | ||
※各種情報と現状に差異がある場合は、現状優先となります。問い合わせをすることで、より詳しい条件、情報を確認する事ができます。
提供:SEG(株)広尾本店(SUUMO経由)
この物件が気になったら掲載期限まであと11日
ザ・パークハビオ人形町レジデンスに条件(家賃・エリア)が近い物件一覧
| 写真 | 家賃 管理費等 | 敷金 礼金 | 間取り 専有面積 | 築年数 | 最寄り駅 所在地 | キープ | 詳細 |
|---|---|---|---|---|---|---|---|
マンション リバーレ浅草ウエスト(1K/12階) | |||||||
![]() | 12.3万円 6,000円 | 12.3万円 12.3万円 | 1K 24.9m2 | 築11年 | 東京地下鉄銀座線 田原町駅(東京) 徒歩2分 東京都大江戸線 蔵前駅 徒歩10分 東京都台東区寿2丁目 | 詳細を見る | |
マンション フロンティアレジデンス錦糸公園(1LDK/4階) | |||||||
![]() | 17.7万円 1万円 | 17.7万円 なし | 1LDK 32.87m2 | 築2年 | 東京地下鉄半蔵門線 押上駅 徒歩10分 東京地下鉄半蔵門線 錦糸町駅 徒歩13分 東京都墨田区横川5丁目 | 詳細を見る | |
マンション セレナ両国(1LDK/1階) | |||||||
![]() | 14.1万円 4,000円 | 14.1万円 28.2万円 | 1LDK 37.84m2 | 築6年 | 東京都大江戸線 両国駅 徒歩4分 総武・中央緩行線 両国駅 徒歩10分 東京都墨田区亀沢1丁目 | 詳細を見る | |
マンション PANACHE(1LDK/4階) | |||||||
![]() | 16.6万円 8,000円 | 16.6万円 16.6万円 | 1LDK 41m2 | 築20年 | 東京地下鉄半蔵門線 押上駅 徒歩6分 東京都浅草線 本所吾妻橋駅 徒歩7分 東京都墨田区業平1丁目 | 詳細を見る | |
マンション ARROWSAL SHINKAWA(1LDK/1階) | |||||||
![]() | 17万円 8,000円 | なし なし | 1LDK 37.44m2 | 築4年 | 東京地下鉄日比谷線 八丁堀駅(東京) 徒歩8分 東京地下鉄東西線 茅場町駅 徒歩11分 東京都大江戸線 月島駅 徒歩14分 東京都中央区新川2丁目 | 詳細を見る | |
マンション TRADIS秋葉原(1LDK/3階) | |||||||
![]() | 17.7万円 1.2万円 | なし なし | 1LDK 32.41m2 | 築1年 | 東京地下鉄日比谷線 秋葉原駅 徒歩8分 山手線 秋葉原駅 徒歩9分 東京都浅草線 浅草橋駅 徒歩12分 東京都台東区台東1丁目 | 詳細を見る | |
マンション グランズ亀戸(1LDK/10階) | |||||||
![]() | 17万円 5,000円 | 17万円 17万円 | 1LDK 45.21m2 | 築30年 | JR総武線 亀戸駅 徒歩4分 JR総武線 錦糸町駅 徒歩14分 東京都江東区亀戸 | 詳細を見る | |
マンション セレサ日本橋堀留町(1LDK/6階) | |||||||
![]() | 20.1万円 なし | 20.1万円 35.175万円 | 1LDK 40.04m2 | 築14年 | 東京地下鉄日比谷線 人形町駅 徒歩2分 東京地下鉄日比谷線 小伝馬町駅 徒歩6分 東京地下鉄半蔵門線 水天宮前駅 徒歩6分 東京都中央区日本橋堀留町1丁目 | 詳細を見る | |








